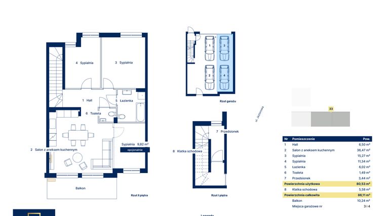
Mieszkanie na sprzedaż 4 pokoje o powierzchni 80,53 m² numer 32
Inwestycja:
Nova Jeziorowa 2Deweloper:
Jeziorowa House Sp. z o.o.
Inwestycja:
Nova Jeziorowa 2Deweloper:
Jeziorowa House Sp. z o.o.Warszawa, Wawer, Zerzeń, ul. Jeziorowa 40
Warszawa, Wawer, Zerzeń, ul. Jeziorowa 40
Oddanie
4 kw. 2027
Ilość pokoi
4 pokoje
Metraż
80,53 m²
Piętro
2 piętro
Strona świata
zachód, północ, południe
Dodatkowe
Balkon
Kuchnia
otwarta kuchnia
Wysokość
270 cm wysokości
Poziomy
2 poziomy
Oznaczenie oferty
32

Raport o deweloperze
Poznaj dewelopera bliżej! Pobierz raport, w którym znajdziesz kluczowe informacje o firmie, jej doświadczeniu, nagrodach oraz aktualnych i zrealizowanych inwestycjach.
Budynek i otoczenie
Miejsca postojowe | |
|---|---|
Standard wykończenia | standard deweloperski |
Realizacja inwestycji | rozpoczęcie budowy w 3 kw. 2025 roku, planowane oddanie do użytkowania w 4 kw. 2027 roku |
Udogodnienia | teren ogrodzony, klimatyzacja |
Przyroda | w okolicy inwestycji znajduje się rezerwat przyrody, park, las, jezioro |
Charakterystyka energetyczna nieruchomości | informacja u dewelopera |
Rezerwacja i finanse
Rodzaj własności | informacja u dewelopera |
|---|---|
Wysokość czynszu | informacja u dewelopera |
Warunki rezerwacji | umowa rezerwacyjna i wpłata w wysokości 1% ceny |
Zabezpieczenie środków | Otwarty mieszkaniowy rachunek powierniczy |
Postępy i zdjęcia z budowy
Zobacz na jakim etapie budowy jest ta inwestycja
Lokalizacja inwestycji
Stacja kolejowa - Warszawa Anin - 2990 m
Przystanek Autobusowy - 408 m
Dojazd do centrum: pokaż
W pobliżu 1 km od tej inwestycji znajdują się:
4 kawiarnie i restauracje, 8 sklepów, 4 obiekty sportowe, 1 placówka medyczna, 12 placówek edukacyjnych, 1 plac zabaw
Przeczytaj więcej o lokalizacji
Wawer to dzielnica w południowo-wschodniej części Warszawy wyróżniająca się największym obszarem terytorialnym – ok. 80 km2. Jednocześnie jest to jeden z tych rejonów miasta, w których znajduje się najwięcej zielonej przestrzeni. Rozległe obszary naturalnego krajobrazu, na które składają się: Mazowiecki Park Krajobrazowy, Rezerwat im. Króla Jana III Sobieskiego oraz Zakole Wawerskie, a także dominacja niskiej, przeważnie willowej zabudowy, to czynniki decydujące o niewielkiej gęstości zaludnienia. Wawer jest spokojnym, malowniczym miejscem, w którym można odpocząć od miejskiego gwaru lub spędzić czas na świeżym powietrzu, rozkoszując się pięknem przyrody. Na terenie Wawra znajduje się aż 7 stacji kolejowych, toteż pociągi Szybkiej Kolei Miejskiej stanowią najwygodniejszy środek transportu do centrum miasta. Ważnymi arteriami są m.in.: Most Siekierkowski, Wał Miedzeszyński, ul. Płowiecka.
Opis oferty
Nowe 4-pokojowe mieszkanie na sprzedaż o powierzchni 80,53 m² znajduje się w nowo budowanej inwestycji deweloperskiej Nova Jeziorowa 2 w Zerzniu, ul. Jeziorowa 40 (8.8 km od centrum Warszawy).
Inwestycja jest realizowana przez Jeziorowa House Sp. z o.o.
Cała inwestycja składa się z 8 budynków, w których łącznie znajduje się 48 nowych mieszkań.
Na sprzedaż pozostają 24 oferty o powierzchni od 70 do 81 m².
W budynkach są 3 kondygnacje naziemne. Budynek nie posiada kondygnacji podziemnych.
Inwestycja Nova Jeziorowa 2 jest w trakcie budowy z planowanym na 4 kw. 2027 roku terminem oddania do użytkowania.
Nowe mieszkanie o oznaczeniu 32 znajduje się na 2 piętrze i jest 2-poziomowe. Pomieszczenia mają 270 centymetrów wysokości. W mieszkaniu znajdują się 4 pokoje.
Okna w mieszkaniu wychodzą na zachód, północ, południe.
Północna ekspozycja to idealny wybór dla osób ceniących przytulne i klimatyczne wnętrza. Delikatne, rozproszone światło sprzyja harmonii i stwarza doskonałe warunki do relaksu lub pracy. Okna na północ zapewnią równomierne oświetlenie przez cały dzień.
Okna wychodzące na południe gwarantują maksymalną ilość naturalnego światła, co czyni wnętrza jasnymi i ciepłymi. Dodatkowo południowa ekspozycja pomaga obniżyć koszty ogrzewania w zimie. Okna na południe są idealne dla osób pragnących cieszyć się jasnym otoczeniem, które sprzyja dobremu samopoczuciu oraz pozytywnej energii.
Zachodnia ekspozycja to gwarancja intensywnego popołudniowego światła, które nadaje wnętrzom przytulności i ciepła. Idealne dla miłośników słonecznych wieczorów, którzy pragną cieszyć się pięknymi zachodami słońca we własnym domu. Zachodnie światło podkreśla kolory i faktury w aranżacji wnętrz, tworząc atmosferę sprzyjającą relaksowi po długim dniu.
Dla przyszłych mieszkańców Nova Jeziorowa 2 deweloper przewidział miejsca postojowe naziemne.
Dzięki temu przyszli właściciele nie będą musieli poszukiwać wolnej przestrzeni parkingowej.
Opis Inwestycji
Pow. dodatkowe
Nova Jeziorowa 2
Osiedle NOVA JEZIOROWA to inwestycja składająca się z 48 mieszkań usytuowanych w 8 kameralnych budynkach, położona w zielonej dzielnicy Warszawy – Wawrze.
Funkcjonalny układ wnętrz pozwala na aranżację 3 lub 4 pokoi . Do każdego lokalu przynależy duży balkon, dwa miejsca postojowe w przestronnych garażach, a do wybranych lokali ogródki o powierzchni od 34 do 399 m².
Inwestycja posiada podłączenie do kanalizacji miejskiej i wszystkich mediów oraz światłowodu.
Bliskość szkół, przedszkoli, opieki medycznej, sieci usług oraz terenów zielonych zapewni przyszłym mieszkańcom wygodę oraz wysoki standard codziennego życia.
W cenę lokalu wliczona jest cena 90 000 za 2 miejsca postojowe w garażu , a do lokali usytuowanych na I piętrze wliczona jest cena przynależnego ogródka o powierzchni od 34 -399 m².
Atuty inwestycji:
- 2 miejsca garażowe na wyłączność do każdego mieszkania
- doprowadzone wszystkie media miejskie: kanalizacja, woda, prąd, gaz, światłowód
- ogrzewanie podłogowe
- klimatyzator w każdym lokalu
- duże balkony
- ogródki przypisane do poszczególnych mieszkań
- szybki dojazd do Centrum Warszawy – 15 min
- wszystkie lokale przekazywane w standardzie deweloperskim
Mieszkanie znajduje się w inwestycji Nova Jeziorowa 2, w której znajduje się w sprzedaży jeszcze 18 podobnych nowych mieszkań.
Jeziorowa House Sp. z o.o.
Strona internetowa inwestycjiAdres biura sprzedaży:
Ul. Mrówcza 191 04-762 WarszawaGodziny otwarcia biura sprzedaży:
- Poniedziałek: 09:00 - 17:00
- Wtorek: 09:00 - 17:00
- Środa: 09:00 - 17:00
- Czwartek: 09:00 - 17:00
- Piątek: 09:00 - 17:00





