Mieszkanie na sprzedaż 3 pokoje o powierzchni 49,12 m² numer A4-1
Inwestycja:
Bliskie BłonieDeweloper:
JDM Deweloper Sp. z o.o.
Inwestycja:
Bliskie BłonieDeweloper:
JDM Deweloper Sp. z o.o.Błonie, ul. Nadrzeczna
Błonie, ul. Nadrzeczna
Promocje
Nieruchomość bez wkładu własnego
Wybrane mieszkania w tej inwestycji kupisz bez wkładu własnego
Szczegóły dostępne w biurze sprzedaży
Promocja
Zyskaj 15 000 zł rabatu!
Zyskaj 15 000 zł rabatu na mieszkanie w inwestycji Bliskie Błonie. Liczba lokali w promocji ograniczona. Nie przegap okazji!
Oddanie
4 kw. 2027
Ilość pokoi
3 pokoje
Metraż
49,12 m²
Piętro
Parter
Dodatkowe
Ogródek
Kuchnia
otwarta kuchnia
Wysokość
od 260 do 280 cm wysokości
Poziomy
1 poziom
Oznaczenie oferty
A4-1

Raport o deweloperze
Poznaj dewelopera bliżej! Pobierz raport, w którym znajdziesz kluczowe informacje o firmie, jej doświadczeniu, nagrodach oraz aktualnych i zrealizowanych inwestycjach.
Budynek i otoczenie
Miejsca postojowe | |
|---|---|
Standard wykończenia | standard deweloperski |
Realizacja inwestycji | rozpoczęcie budowy w 1 kw. 2026 roku, planowane oddanie do użytkowania w 4 kw. 2027 roku |
Udogodnienia | informacja u dewelopera |
Przyroda | informacja u dewelopera |
Charakterystyka energetyczna nieruchomości | informacja u dewelopera |
Rezerwacja i finanse
Rodzaj własności | Odrębna własność z własnością gruntu |
|---|---|
Wysokość czynszu | informacja u dewelopera |
Warunki rezerwacji | Informacja u dewelopera |
Zabezpieczenie środków | Informacja u dewelopera |
Postępy i zdjęcia z budowy
Zobacz na jakim etapie budowy jest ta inwestycja
Lokalizacja inwestycji
Stacja kolejowa - Błonie - 2551 m
Przystanek Autobusowy - 160 m
Dojazd do centrum Warszawy: pokaż
W pobliżu 1 km od tej inwestycji znajdują się:
2 sklepy, 5 obiektów sportowych, 4 placówki edukacyjne, 1 plac zabaw
Przeczytaj więcej o lokalizacji
Błonie to miasto znajdujące się w granicach województwa mazowieckiego, położone w powiecie warszawskim zachodnim. Na terenie miasta znajduje się Specjalna Strefa Przemysłowa Pass. Znajdują się tam liczne hale magazynowe, między innymi: ProLogis, Panattoni, FM Logistic i Metropol Group. Atutem miasta jest znajdujący się w pobliżu Kampinoski Park Narodowy - idealne miejsce do wypoczynku oraz rekreacji na świeżym powietrzu.
Opis oferty
Bliskie Błonie to inwestycja domów jednorodzinnych dwulokalowych w zabudowie szeregowej odpowiadająca na potrzeby osób szukających wymarzonego domu pod Warszawą. Została stworzona z myślą o singlach i rodzinach, które pragną mieszkać blisko Warszawy, zachowując przy tym pełen spokój, bliskość zieleni i codzienną wygodę
Nowe 3-pokojowe mieszkanie na sprzedaż o powierzchni 49,12 m² znajduje się w nowo budowanej inwestycji deweloperskiej Bliskie Błonie w Błoniu, ul. Nadrzeczna (16.6 km od Warszawy).
Inwestycja jest realizowana przez JDM Deweloper Sp. z o.o.
Cała inwestycja składa się z 12 budynków, w których łącznie znajdują się 24 nowe mieszkania.
Na sprzedaż pozostaje 13 ofert o powierzchni od 49 do 56 m².
W budynkach są 2 kondygnacje naziemne. Budynek nie posiada kondygnacji podziemnych.
Inwestycja Bliskie Błonie jest w trakcie budowy z planowanym na 4 kw. 2027 roku terminem oddania do użytkowania.
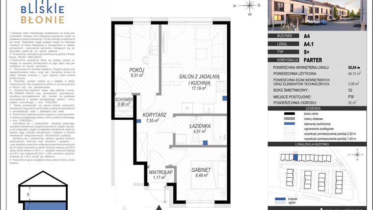
Nowe mieszkanie o oznaczeniu A4-1 znajduje się na parterze i jest 1-poziomowe. Pomieszczenia mają od 260 do 280 centymetrów wysokości. W mieszkaniu znajdują się 3 pokoje.
Dla przyszłych mieszkańców Bliskie Błonie deweloper przewidział miejsca postojowe naziemne.
Dzięki temu przyszli właściciele nie będą musieli poszukiwać wolnej przestrzeni parkingowej.
Opis Inwestycji
Pow. dodatkowe
Twój dom z ogrodem, blisko Warszawy
Natura i energia miasta
Bliskie Błonie to inwestycja domów jednorodzinnych dwulokalowych w zabudowie szeregowej odpowiadająca na potrzeby osób szukających wymarzonego domu pod Warszawą. Została stworzona z myślą o singlach i rodzinach, które pragną mieszkać blisko miasta, zachowując przy tym pełen spokój, bliskość zieleni i codzienną wygodę. Zamknięty teren osiedla z bramą wjazdową, gwarantuje mieszkańcom poczucie bezpieczeństwa oraz niezbędną prywatność. Inwestycja oferuje spokojne sąsiedztwo oraz szybki, wygodny dojazd do Warszawy, stanowiąc idealną przystań dla Ciebie i Twojej rodziny.
Inwestycja Bliskie Błonie przy ulicy Nadrzecznej to idealna propozycja dla osób szukających komfortowego mieszkania pod Warszawą. Położenie w zielonej części Błonia pozwala doświadczyć wymarzonego spokoju i prywatności, zapewniając jednocześnie szybki, zaledwie 25-minutowy dojazd do Warszawy. Dzięki strategicznej lokalizacji wszystko co niezbędne do wygodnego życia znajduje się na miejscu. Wybierając dom w inwestycji Bliskie Błonie, zyskujesz równowagę między bliskością natury, a pełną infrastrukturą miejską i wygodną komunikacją ze stolicą. W najbliższym sąsiedztwie czekają na Ciebie nowoczesne szkoły, przedszkola, żłobki oraz sklepy, które sprawiają, że codzienność staje się prosta i komfortowa.
Parter
Dom typu S+ na parterze to 52,54 m2 starannie przemyślanej powierzchni wewnętrznej, która łączy nowoczesną funkcjonalność z przytulnym charakterem idealnym do codziennego wypoczynku. Wejście prowadzi przez wiatrołap oraz korytarz, do serca domu, słonecznego salonu z aneksem kuchennym. Dzięki zastosowaniu ogrzewania podłogowego strefa dzienna jest niesamowicie ustawna i oferuje pełną swobodę aranżacji. Bezpośrednim przedłużeniem salonu jest ogród, który stanowi idealne miejsce na odpoczynek. Obok strefy dziennej znajdują się dwa ustawne pokoje, a także funkcjonalna łazienka. Wybierając dom typu S+, zyskujesz własny ogród, który będzie idealnym miejscem na poranną kawę, relaks po pracy oraz rodzinne spotkania na świeżym powietrzu.
Piętro
Dom typu S na piętrze to 63,17 m² powierzchni wewnętrznej zaprojektowanej z myślą o maksymalnej funkcjonalności. Wejście prowadzi przez wygodny wiatrołap do serca domu, słonecznego salonu z aneksem kuchennym, który dzięki ogrzewaniu podłogowemu jest bardzo ustawny i pozwala na dowolną aranżację mebli. Bezpośrednim przedłużeniem salonu jest balkon, oferujący dodatkową przestrzeń na poranną kawę czy wieczorny odpoczynek. Obok strefy dziennej znajdują się dwa przestronne pokoje oraz funkcjonalna łazienka. Wybierając dom typu S, zyskujesz również praktyczny schowek, który ułatwia zachowanie porządku i uwalnia pokoje od zbędnych przedmiotów.
Mieszkanie znajduje się w inwestycji Bliskie Błonie, w której znajduje się w sprzedaży jeszcze 16 podobnych nowych mieszkań.
JDM Deweloper Sp. z o.o.
Strona internetowa inwestycjiAdres biura sprzedaży:
ul. Puławska 45/1, 05-500 Piaseczno




