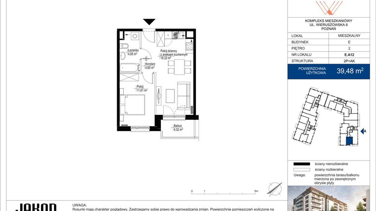
Mieszkanie na sprzedaż 2 pokoje o powierzchni 39,48 m² numer E.A12
Inwestycja:
Wieruszowska EDeweloper:
Jakon Sp. z o.o.
Inwestycja:
Wieruszowska EDeweloper:
Jakon Sp. z o.o.Poznań, Grunwald, Junikowo, ul. Wieruszowska 6
Poznań, Grunwald, Junikowo, ul. Wieruszowska 6
Termin oddania
4 kw. 2026
Ilość pokoi
2 pokoje
Metraż
39,48 m²
Piętro
2 piętro
Strona świata
wschód, południe
Kuchnia
otwarta kuchnia
Wysokość pomieszczeń
od 267 do 287 cm wysokości
Ilość poziomów
1 poziom
Oznaczenie oferty
E.A12

Raport o deweloperze
Poznaj dewelopera bliżej! Pobierz raport, w którym znajdziesz kluczowe informacje o firmie, jej doświadczeniu, nagrodach oraz aktualnych i zrealizowanych inwestycjach.
Budynek i otoczenie
Miejsca postojowe | |
|---|---|
Komórki lokatorskie | dostępne (82): nieobowiązkowy zakup; od 1,72 do 10,09 m2; od 14 000 do 28 000 zł |
Standard wykończenia | standard deweloperski Ogrzewanie miejskie |
Realizacja inwestycji | oddanie do użytkowania w 4 kw. 2026 roku |
Udogodnienia | plac zabaw, monitoring, klimatyzacja, winda, rowerownia, wózkarnia, miejsce do ładowania samochodów elektrycznych, paczkomat |
Przyroda | w okolicy inwestycji znajduje się las |
Charakterystyka energetyczna nieruchomości | informacja u dewelopera |
Rezerwacja i finanse
Rodzaj własności | Odrębna własność z własnością gruntu |
|---|---|
Wysokość czynszu | informacja u dewelopera |
Warunki rezerwacji | umowa rezerwacyjna z wpłata 2 000 zł |
Zabezpieczenie środków | Otwarty mieszkaniowy rachunek powierniczy |
Zdjęcia z budowy
Zobacz na jakim etapie budowy jest ta inwestycja
Lokalizacja inwestycji
Stacja kolejowa - Poznań Junikowo - 1167 m
Przystanek Tramwajowy - 292 m
Przystanek Autobusowy - 119 m
Dojazd do centrum: pokaż
W pobliżu 1 km od tej inwestycji znajdują się:
8 kawiarni i restauracji, 14 sklepów, 18 obiektów sportowych, 5 placówek medycznych, 9 placówek edukacyjnych, 15 placów zabaw
Przeczytaj więcej o lokalizacji
Grunwald to leżąca na zachodzie miasta dzielnica Poznania o powierzchni 36 km kw i populacji 125 tys. mieszkańców. Dzielnica zamyka się w ulicach Skórzewskiej, Bukowskiej, Kolejowej i Leszczyńskiej. Dzielnicę z południowego zachodu na północy wschód przedziela ul. Głogowska, za miastem przechodząca w drogę krajową E261. Na terenie Grunwaldu krzyżuje się z nią droga europejska E30. Dzielnica ma własną szkołę wyższą – to Wyższa Szkoła Bezpieczeństwa. Jest stąd również blisko do Portu Lotniczego Poznań-Ławica, który zaczyna się tuż za północną granicą. Dzielnica ma też dobry dostęp do opieki zdrowotnej dzięki dwóm szpitalom klinicznym, prywatnej lecznicy (Certus), 60 aptekom, 15 przychodniom i gabinetom lekarskim. Fani sportu docenią Arenę Poznań i stadion INEA a także Lasek Marceliński, idealny do uprawiania joggingu czy nordic walkingu. Na terenie dzielnicy są też dwa kina.
Opis oferty
Nowe 2-pokojowe mieszkanie na sprzedaż o powierzchni 39,48 m² znajduje się w nowo wybudowanej inwestycji deweloperskiej Wieruszowska E na Junikowie, ul. Wieruszowska 6 (6.2 km od centrum Poznania).
Inwestycja została zrealizowana przez Jakon Sp. z o.o.
Cała inwestycja składa się z 1 budynku, w którym łącznie znajduje się 137 nowych mieszkań.
Na sprzedaż pozostaje 137 ofert o powierzchni od 30 do 77 m².
W budynku jest 7 kondygnacji naziemnych oraz 1 kondygnacja podziemna.
Inwestycja Wieruszowska E jest w trakcie budowy z planowanym na 4 kw. 2026 roku terminem oddania do użytkowania.
Nowe mieszkanie o oznaczeniu E.A12 znajduje się na 2 piętrze i jest 1-poziomowe. Pomieszczenia mają od 267 do 287 centymetrów wysokości. W mieszkaniu znajdują się 2 pokoje.
Do mieszkania przewidziano możliwość zakupu komórki lokatorskiej, którą można zagospodarować na spiżarnię, warsztat czy składzik.
Okna w mieszkaniu wychodzą na wschód, południe.
Okna wychodzące na południe gwarantują maksymalną ilość naturalnego światła, co czyni wnętrza jasnymi i ciepłymi. Dodatkowo południowa ekspozycja pomaga obniżyć koszty ogrzewania w zimie. Okna na południe są idealne dla osób pragnących cieszyć się jasnym otoczeniem, które sprzyja dobremu samopoczuciu oraz pozytywnej energii.
Wschodnia orientacja zapewnia dostęp do łagodnego porannego światła, idealnego dla rozpoczęcia dnia pełnego energii. Wnętrza pozostają jasne, ale nieprzegrzane, co sprzyja utrzymaniu komfortowej temperatury. Przebywanie w pomieszczeniu z oknami na wschód inspiruje do działania i pozytywnie wpływa na poranny rytuał.
Dla przyszłych mieszkańców Wieruszowska E deweloper przewidział miejsca postojowe podziemne.
Dzięki temu przyszli właściciele nie będą musieli poszukiwać wolnej przestrzeni parkingowej. Dodatkowo, miejsce postojowe w garażu podziemnym zabezpiecza przed niekorzystnymi warunkami atmosferycznymi.
Opis Inwestycji
Inwestycja znajduje się przy ul. Wieruszowskiej, w pobliżu skrzyżowania z ulicą Grunwaldzką. Lokalizacja jest atrakcyjna dla wszystkich, którzy cenią sobie spokój i bliskość terenów zielonych. Dogodny dostęp do komunikacji miejskiej - pętli Junikowo sprawia, że jest to również propozycja dla osób, które nie chcą rezygnować z udogodnień, jakie daje centrum miasta. W pobliżu inwestycji znajdują się rozległe tereny spacerowe w Lasku Marcelińskim.
Na inwestycji Wieruszowska zaprojektowano podziemną halę garażową. Dodatkowo na dwóch miejscach postojowych na terenie osiedla zaplanowano stację do ładowania pojazdów elektrycznych.
Budynek został wyposażony w rolety na każdej kondygnacji, cichobieżne windy, oraz starannie zaprojektowaną zieleń na dziedzińcu wraz z placem zabaw dla najmłodszych mieszkańców.
Mieszkanie znajduje się w inwestycji Wieruszowska E, w której znajduje się w sprzedaży jeszcze 55 podobnych nowych mieszkań.
Jakon Sp. z o.o.
Strona internetowa inwestycjiAdres biura sprzedaży:
ul. Wieruszowska 4, PoznańGodziny otwarcia biura sprzedaży:
- Poniedziałek: 08:00 - 16:00
- Wtorek: 10:00 - 18:00
- Środa: 08:00 - 16:00
- Czwartek: 10:00 - 18:00
- Piątek: 08:00 - 16:00
- Sobota: 10:00 - 14:00





