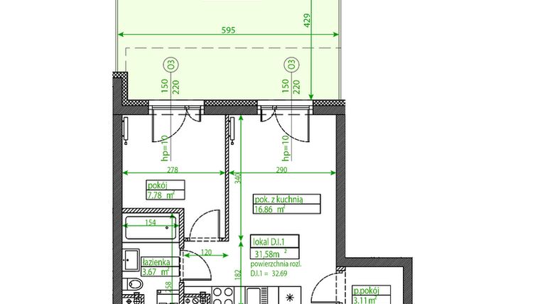
Mieszkanie na sprzedaż 1 pokój o powierzchni 31,42 m² numer D.I.1
Inwestycja:
Osiedle OpolskaDeweloper:
INTER-ES Deweloper
Inwestycja:
Osiedle OpolskaDeweloper:
INTER-ES DeweloperWrocław, Krzyki, Księże Wielkie, ul. Opolska 86-92
Wrocław, Krzyki, Księże Wielkie, ul. Opolska 86-92
Termin oddania
1 kw. 2027
Ilość pokoi
1 pokój
Metraż
31,42 m²
Piętro
Parter
Powierzchnie dodatkowe
Taras
Kuchnia
otwarta kuchnia
Wysokość pomieszczeń
od 260 do 280 cm wysokości
Ilość poziomów
1 poziom
Oznaczenie oferty
D.I.1

Raport o deweloperze
Poznaj dewelopera bliżej! Pobierz raport, w którym znajdziesz kluczowe informacje o firmie, jej doświadczeniu, nagrodach oraz aktualnych i zrealizowanych inwestycjach.
Budynek i otoczenie
Miejsca postojowe | |
|---|---|
Komórki lokatorskie | dostępne |
Standard wykończenia | standard deweloperski |
Realizacja inwestycji | rozpoczęcie budowy w 1 kw. 2025 roku, planowane oddanie do użytkowania w 1 kw. 2027 roku |
Udogodnienia | wózkarnia, rowerownia, winda |
Przyroda | informacja u dewelopera |
Charakterystyka energetyczna nieruchomości | informacja u dewelopera |
Rezerwacja i finanse
Rodzaj własności | Odrębna własność z własnością gruntu |
|---|---|
Wysokość czynszu | informacja u dewelopera |
Warunki rezerwacji | Informacja u dewelopera |
Zabezpieczenie środków | Informacja u dewelopera |
Zdjęcia z budowy
Zobacz na jakim etapie budowy jest ta inwestycja
Lokalizacja inwestycji
Stacja kolejowa - Wrocław Brochów - 1227 m
Przystanek Tramwajowy - 316 m
Przystanek Autobusowy - 150 m
Dojazd do centrum: pokaż
W pobliżu 1 km od tej inwestycji znajdują się:
9 kawiarni i restauracji, 17 sklepów, 10 obiektów sportowych, 1 placówka medyczna, 13 placówek edukacyjnych, 21 placów zabaw
Przeczytaj więcej o lokalizacji
Krzyki to dawna dzielnica Wrocławia, znajduje się w południowej części miasta. Zajmuje ponad 54 km2 a na jej terenie mieszka prawie 170 tysięcy osób. Na zabudowę dzielnicy składają się zarówno duże osiedla mieszkaniowe, jak i domy jednorodzinne. Został tu wybudowany także najwyższy budynek w Polsce – Sky Tower. Znajduje się tu dużo zabytkowych willi i inne zabytki takie jak Wieża Ciśnień czy Stary Cmentarz Żydowski. Na Krzykach znajduje się Wrocławski Uniwersytet Ekonomiczny a także ponad 100 szkół elementarnych. Największym centrum handlowym jest Wroclavia o powierzchni 71 000 m2. W południowej części Krzyków znajduje się tor wyścigów konnych Partynice oraz Wrocławski Tatr Pantomimy. Dzielnica posiada połączenia autobusowe i tramwajowe – znajduje się tu 5 pętli tramwajowych. Dwie główne ulice Krzyków, które łączą je z centrum miasta to Powstańców Śląskich oraz Ślężna. Znajduje się tu także Wrocławski Dworzec Główny.
Opis oferty
cena obejmuje taras
Nowe 1-pokojowe mieszkanie na sprzedaż o powierzchni 31,42 m² znajduje się w nowo budowanej inwestycji deweloperskiej Osiedle Opolska na Księżu Wielkim, ul. Opolska 86-92 (5 km od centrum Wrocławia).
Inwestycja jest realizowana przez INTER-ES Deweloper.
Cała inwestycja składa się z 1 budynku, w którym łącznie znajdują się 63 nowe mieszkania.
Na sprzedaż pozostają 42 oferty o powierzchni od 29 do 112 m².
W budynku jest 5 kondygnacji naziemnych oraz 1 kondygnacja podziemna.
Inwestycja Osiedle Opolska jest w trakcie budowy z planowanym na 1 kw. 2027 roku terminem oddania do użytkowania.
Nowe mieszkanie o oznaczeniu D.I.1 znajduje się na parterze i jest 1-poziomowe. Pomieszczenia mają od 260 do 280 centymetrów wysokości. W mieszkaniu znajduje się 1 pokój.
Dla przyszłych mieszkańców Osiedle Opolska deweloper przewidział miejsca postojowe podziemne, miejsca postojowe naziemne.
Dzięki temu przyszli właściciele nie będą musieli poszukiwać wolnej przestrzeni parkingowej. Dodatkowo, miejsce postojowe w garażu podziemnym zabezpiecza przed niekorzystnymi warunkami atmosferycznymi.
Opis Inwestycji
Pow. dodatkowe
Zapraszamy do zapoznania się z ofertą wyjątkowych mieszkań, które powstają w dynamicznie rozwijającej się części Wrocławia przy ul. Opolskiej 86-92. To idealne miejsce zarówno dla osób szukających nowego lokum, jak i inwestorów, którzy chcą zainwestować w nieruchomości na rynku wschodzącym.
Nasza inwestycja to nowoczesny kompleks mieszkalny, zaprojektowany z myślą o najwyższym komforcie mieszkańców. Oferujemy szeroki wybór mieszkań – od przytulnych kawalerek, idealnych dla singli lub par, po przestronne, wielopokojowe apartamenty doskonałe dla rodzin z dziećmi. Każde z mieszkań cechuje wysoki standard oraz funkcjonalny rozkład pomieszczeń, który umożliwia łatwą aranżację przestrzeni według własnych potrzeb.
Inwestycja znajduje się w dogodnej lokalizacji, zapewniając szybki dostęp do centrum miasta oraz najważniejszych arterii komunikacyjnych. W okolicy znajdują się liczne sklepy, szkoły, przedszkola oraz tereny zielone, co sprawia, że jest to doskonałe miejsce do życia dla osób ceniących sobie bliskość udogodnień miejskich, jak i kontakt z naturą.
Zakończenie inwestycji jest planowane w pierwszym kwartale 2027 roku.
Wszystkie mieszkania zlokalizowane na parterze będą dysponowały bezpośrednim dostępem do terenów zielonych (ogródków) przeznaczonych do wyłącznego korzystania o powierzchni od 24 do 155 mkw.
Dwa wyjątkowe lokale dwupoziomowe znajdujące się w bramie D posiadają tarasy na drugiej kondygnacji mieszkań o powierzchniach 20 i 25 mkw.
W budynku znajdują się cztery klatki schodowe z dostępem do windy, trzy z nich prowadzą bezpośrednio do garażu podziemnego gdzie zlokalizowane będą miejsca parkingowe, komórki lokatorskie oraz rowerownia i wózkowania. Od zewnątrz bezpośrednio od ulicy Opolskiej będą dodatkowo indywidualne , zamykane miejsca garażowe jedno i dwustanowiskowe.
W bezpośrednim sąsiedztwie inwestycji – około 50 m - znajduje się przystanek tramwajowy linii 3 oraz 5, przystanki autobusowe obsługujący linie 100,124, 134 oraz 243.
Mieszkanie znajduje się w inwestycji Osiedle Opolska, w której znajduje się w sprzedaży jeszcze 9 podobnych nowych mieszkań.
INTER-ES Deweloper
Strona internetowa inwestycjiAdres biura sprzedaży:
ul. Jedności Narodowej 194, 50-302 WrocławGodziny otwarcia biura sprzedaży:
- Poniedziałek: 08:00 - 17:00
- Wtorek: 08:00 - 17:00
- Środa: 08:00 - 17:00
- Czwartek: 08:00 - 17:00
- Piątek: 08:00 - 17:00





