Mieszkanie na sprzedaż 2 pokoje o powierzchni 42,92 m² numer A2.2.3
Inwestycja:
Mieszkaj w Mieście - Załęska od NowaDeweloper:
Henniger Investment S.A.
Inwestycja:
Mieszkaj w Mieście - Załęska od NowaDeweloper:
Henniger Investment S.A.Katowice, Załęska Hałda-Brynów, ul. Załęska Hałda
Katowice, Załęska Hałda-Brynów, ul. Załęska Hałda
Termin oddania
2 kw. 2026
Ilość pokoi
2 pokoje
Metraż
42,92 m²
Piętro
2 piętro
Strona świata
wschód
Powierzchnie dodatkowe
Balkon
Kuchnia
otwarta kuchnia
Wysokość pomieszczeń
270 cm wysokości
Ilość poziomów
1 poziom
Oznaczenie oferty
A2.2.3

Raport o deweloperze
Poznaj dewelopera bliżej! Pobierz raport, w którym znajdziesz kluczowe informacje o firmie, jej doświadczeniu, nagrodach oraz aktualnych i zrealizowanych inwestycjach.
Budynek i otoczenie
Miejsca postojowe | |
|---|---|
Komórki lokatorskie | dostępne (82): nieobowiązkowy zakup; od 2,48 do 9,31 m2 |
Standard wykończenia | standard deweloperski Ogrzewanie gazowe, podłogowe |
Realizacja inwestycji | rozpoczęcie budowy w 1 kw. 2025 roku, planowane oddanie do użytkowania w 2 kw. 2026 roku |
Udogodnienia | plac zabaw, monitoring, klimatyzacja, winda, rowerownia, instalacja fotowoltaiczna |
Przyroda | w okolicy inwestycji znajduje się park, las, jezioro |
Charakterystyka energetyczna nieruchomości | informacja u dewelopera |
Rezerwacja i finanse
Rodzaj własności | Odrębna własność z własnością gruntu |
|---|---|
Wysokość czynszu | informacja u dewelopera |
Warunki rezerwacji | Informacja u dewelopera |
Zabezpieczenie środków | Informacja u dewelopera |
Zdjęcia z budowy
Zobacz na jakim etapie budowy jest ta inwestycja
Lokalizacja inwestycji
Stacja kolejowa - Katowice Załęże - 1581 m
Przystanek Tramwajowy - 1650 m
Przystanek Autobusowy - 211 m
Dojazd do centrum: pokaż
W pobliżu 1 km od tej inwestycji znajdują się:
5 kawiarni i restauracji, 11 sklepów, 25 obiektów sportowych, 5 placówek medycznych, 10 placówek edukacyjnych, 5 placów zabaw
Przeczytaj więcej o lokalizacji
Katowice to miasto w województwie śląskim o powierzchni 164 km kw i liczbie mieszkańców ponad 300 tys. osób. Zabudowa miasta to głównie powojenne bloki i typowe dla Śląska zabytkowe kamienice. Katowice dzielą się na dzielnice pogrupowane w zespoły dzielnic: zespół północny, śródmiejski, południowy, wschodni i zachodni. Miasto jest wojewódzkim centrum medycznym, z kilkunastoma szpitalami, w tym Centralnym Szpitalem Klinicznym im. Kornela Gibińskiego, Szpitalem Klinicznym im. Andrzeja Mieleckiego, Uniwersyteckim Centrum Okulistyki i Onkologii, Szpitalem Klinicznym nr 6 czy Górnośląskim Centrum Zdrowia Dziecka. Działają tu też liczne uniwersytety, takie jak Akademia Wychowania Fizycznego im. Jerzego Kukuczki, Akademia Sztuk Pięknych czy wydziały Politechniki Śląskiej.
Opis oferty
Nowe 2-pokojowe mieszkanie na sprzedaż o powierzchni 42,92 m² znajduje się w nowo budowanej inwestycji deweloperskiej Mieszkaj w Mieście - Załęska od Nowa w Załęskiej Hałdzie, ul. Załęska Hałda (3.1 km od centrum Katowic).
Inwestycja jest realizowana przez Henniger Investment S.A.
Cała inwestycja składa się z 3 budynków, w których łącznie znajduje się 140 nowych mieszkań.
Na sprzedaż pozostaje 117 ofert o powierzchni od 31 do 96 m².
W budynkach jest od 3 do 4 kondygnacji naziemnych oraz 1 kondygnacja podziemna.
Inwestycja Mieszkaj w Mieście - Załęska od Nowa jest w trakcie budowy z planowanym na 2 kw. 2026 roku terminem oddania do użytkowania.
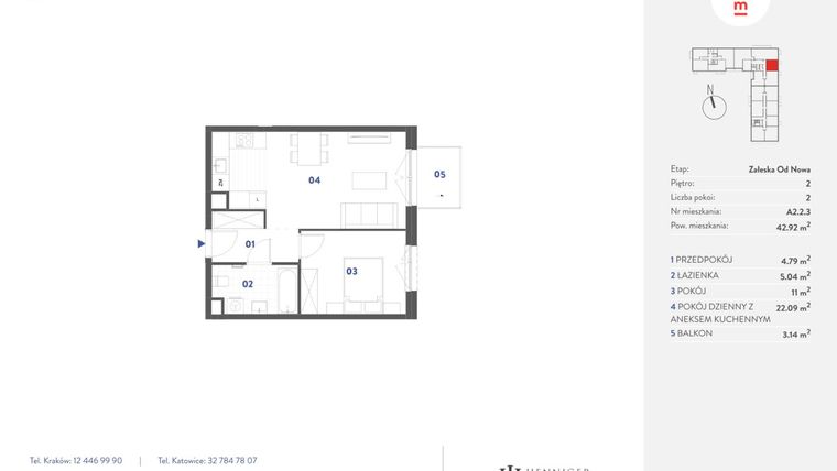
Nowe mieszkanie o oznaczeniu A2.2.3 znajduje się na 2 piętrze i jest 1-poziomowe. Pomieszczenia mają 270 centymetrów wysokości. W mieszkaniu znajdują się 2 pokoje.
Do mieszkania przewidziano możliwość zakupu komórki lokatorskiej, którą można zagospodarować na spiżarnię, warsztat czy składzik.
Okna w mieszkaniu wychodzą na wschód.
Wschodnia orientacja zapewnia dostęp do łagodnego porannego światła, idealnego dla rozpoczęcia dnia pełnego energii. Wnętrza pozostają jasne, ale nieprzegrzane, co sprzyja utrzymaniu komfortowej temperatury. Przebywanie w pomieszczeniu z oknami na wschód inspiruje do działania i pozytywnie wpływa na poranny rytuał.
Dla przyszłych mieszkańców Mieszkaj w Mieście - Załęska od Nowa deweloper przewidział miejsca postojowe podziemne, miejsca postojowe naziemne.
Dzięki temu przyszli właściciele nie będą musieli poszukiwać wolnej przestrzeni parkingowej. Dodatkowo, miejsce postojowe w garażu podziemnym zabezpiecza przed niekorzystnymi warunkami atmosferycznymi.
Opis Inwestycji
Okazyjna cena
Tereny zielone
Pow. dodatkowe
Zapraszamy do zapoznania się z inwestycją "Załęska od Nowa” – kameralnym projektem mieszkaniowym realizowanym przez firmę Henniger Investment Katowicach w dzielnicy Załęże. Zakończenie budowy osiedla planowane jest na II kwartał 2026 roku. To wyjątkowa inwestycja dla tych, którzy cenią połączenie nowoczesnych rozwiązań z naturalnym otoczeniem.
Lokalizacja
Inwestycja „Załęska od Nowa” powstaje w zielonej, historycznej części Katowic – dzielnicy Załęże, łącząc spokój i bliskość natury z doskonałą komunikacją oraz dostępem do miejskiej infrastruktury. W pobliżu znajduje się Las Załęski, idealny do spacerów i aktywnego wypoczynku, a także nowoczesna Arena Katowice, stanowiąca ważny punkt na mapie wydarzeń kulturalnych i sportowych w regionie. W najbliższym sąsiedztwie zlokalizowane są sklepy spożywcze, takie jak Biedronka, Makro Cash & Carry oraz lokalne punkty handlowe. Dogodna komunikacja miejska, dzięki pobliskim przystankom autobusowym i tramwajowym, oraz szybki dojazd do centrum Katowic i łatwy wyjazd na autostradę A4 zapewniają sprawne poruszanie się po całej aglomeracji.
Mieszkania
W ramach inwestycji powstaną trzy kameralne budynki o niskiej zabudowie – dwa trzypiętrowe i jeden dwupiętrowy, które razem oferują 140 mieszkań o powierzchniach od 31 do ponad 96 m². To zróżnicowana oferta obejmująca mieszkania od jedno- do pięciopokojowych, idealna zarówno dla singli, par, jak i rodzin. Lokale na parterze posiadają prywatne ogródki, natomiast na wyższych piętrach znajdują się balkony, tarasy oraz loggie, które stanowią dodatkową przestrzeń do wypoczynku. Na ostatnich piętrach zaprojektowano wyjątkowe mieszkania z dużymi tarasami – nawet do 70 m². To idealna przestrzeń do relaksu, spotkań z bliskimi i podziwiania zielonego otoczenia inwestycji.
Miejsca parkingowe i komórki lokatorskie
Pod każdym budynkiem zaprojektowano halę garażową z łączną liczbą 120 miejsc postojowych. Dodatkowo, na terenie inwestycji przewidziano 35 miejsc naziemnych, w tym 3 dostosowane do potrzeb osób z niepełnosprawnościami. W każdym budynku dostępne będą również komórki lokatorskie, które zapewnią dodatkową przestrzeń do przechowywania.
Komfort życia na co dzień
"Załęska od Nowa" została zaprojektowana z myślą o codziennym komforcie mieszkańców. W każdym mieszkaniu przewidziano możliwość montażu klimatyzacji, co pozwala dostosować przestrzeń do indywidualnych potrzeb przez cały rok. Dodatkowo, we wszystkich lokalach zastosowano ogrzewanie podłogowe, które równomiernie rozprowadza ciepło i zapewnia wygodę w codziennym użytkowaniu. Mając na uwadze bezpieczeństwo mieszkańców, w każdym lokalu zostaną zamontowane wideodomofony, które umożliwią kontrolę dostępu. Dla aktywnych przewidziano ogólnodostępną rowerownię, a w samym sercu inwestycji powstanie nowoczesny plac zabaw, będący miejscem spotkań i zabawy dla najmłodszych mieszkańców.
Edukacja
Inwestycja idealna dla rodzin z dziećmi – dzięki bliskości licznych placówek edukacyjnych. W pobliżu znajdują się miejskie przedszkola, żłobki oraz szkoły podstawowe.
Ponadto, lokalizacja inwestycji sprzyja studentom i osobom związanym z edukacją wyższą – w bliskiej odległości znajdują się renomowane uczelnie, takie jak Uniwersytet Ekonomiczny, Akademia Wychowania Fizycznego oraz Akademia Sztuk Pięknych.
Z myślą o środowisku
"Załęska od Nowa" to inwestycja zaprojektowana w duchu odpowiedzialności ekologicznej. Jednym z kluczowych elementów proekologicznych rozwiązań jest system retencji wody opadowej, realizowany w formie stawu hydrofitowego oraz ogrodów deszczowych. Tego typu rozwiązania nie tylko wspierają naturalne procesy przyrodnicze, lecz także wzbogacają estetykę osiedla i sprzyjają zachowaniu równowagi środowiskowej w jego otoczeniu.
Dodatkowo, w trosce o energooszczędność budynków, zastosowano wysokiej jakości okna trzyszybowe oraz instalację fotowoltaiczną, zasilającą części wspólne. Takie rozwiązania nie tylko zwiększają komfort termiczny mieszkań, ale także realnie przekładają się na niższe rachunki za energię.
Mieszkanie znajduje się w inwestycji Mieszkaj w Mieście - Załęska od Nowa, w której znajduje się w sprzedaży jeszcze 88 podobnych nowych mieszkań.
Adres biura sprzedaży:
ul. Zawiszy Czarnego 16B, KatowiceGodziny otwarcia biura sprzedaży:
- Poniedziałek: 08:00 - 17:00
- Wtorek: 08:00 - 17:00
- Środa: 08:00 - 17:00
- Czwartek: 08:00 - 17:00
- Piątek: 08:00 - 17:00
- Sobota: 10:00 - 14:00





