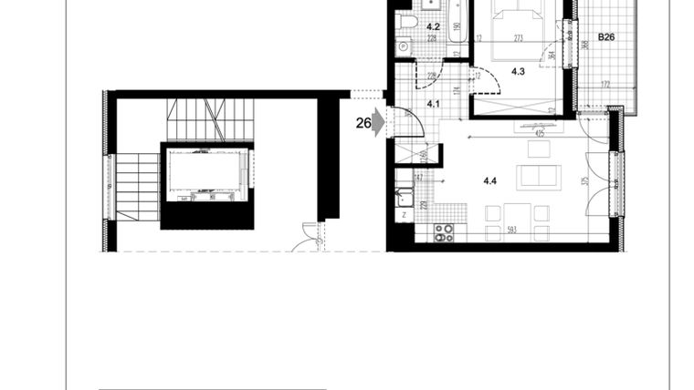
Mieszkanie na sprzedaż 2 pokoje o powierzchni 41,13 m² numer C1.26
Inwestycja:
Centralna 51CDeweloper:
Grupa Proins
Inwestycja:
Centralna 51CDeweloper:
Grupa ProinsKraków, Czyżyny, ul. Centralna 51C
Kraków, Czyżyny, ul. Centralna 51C
Oddanie
2 kw. 2027
Ilość pokoi
2 pokoje
Metraż
41,13 m²
Piętro
4 piętro
Strona świata
wschód
Kuchnia
otwarta kuchnia
Wysokość
258 cm wysokości
Poziomy
1 poziom
Oznaczenie oferty
C1.26

Raport o deweloperze
Poznaj dewelopera bliżej! Pobierz raport, w którym znajdziesz kluczowe informacje o firmie, jej doświadczeniu, nagrodach oraz aktualnych i zrealizowanych inwestycjach.
Budynek i otoczenie
Miejsca postojowe | |
|---|---|
Komórki lokatorskie | dostępne |
Standard wykończenia | standard deweloperski |
Realizacja inwestycji | rozpoczęcie budowy w 4 kw. 2024 roku, planowane oddanie do użytkowania w 2 kw. 2027 roku |
Udogodnienia | plac zabaw |
Przyroda | informacja u dewelopera |
Charakterystyka energetyczna nieruchomości | informacja u dewelopera |
Rezerwacja i finanse
Rodzaj własności | Odrębna własność z własnością gruntu |
|---|---|
Wysokość czynszu | informacja u dewelopera |
Warunki rezerwacji | Informacja u dewelopera |
Zabezpieczenie środków | Informacja u dewelopera |
Postępy i zdjęcia z budowy
Zobacz na jakim etapie budowy jest ta inwestycja
Lokalizacja inwestycji
Przystanek Tramwajowy - 534 m
Przystanek Autobusowy - 115 m
Dojazd do centrum: pokaż
W pobliżu 1 km od tej inwestycji znajdują się:
30 kawiarni i restauracji, 30 sklepów, 17 obiektów sportowych, 5 placówek medycznych, 9 placówek edukacyjnych, 19 placów zabaw
Przeczytaj więcej o lokalizacji
Czyżyny, czyli dzielnica XIV Krakowa leży w centralnej części miasta i zajmuje powierzchnię 1225,68 ha. Mieszka w niej 26 699 osób. Jest to jedna z bardziej zindustrializowanych części miasta. Znajduje się tu m.in. Elektrociepłownia Kraków i Krakowski Park Technologiczny. Początkowo krajobraz Czyżyn miał charakter stricte przemysłowy, jednak w latach 70-tych i 80-tych XXw. zaczęły powstawać także osiedla mieszkaniowe dla pracowników pobliskich zakładów. Z czasem zostały one odnowione, a zabudowa jest w ostatnich latach uzupełniana kolejnymi nieruchomościami pełniącymi funkcję mieszkalną. Zadbano również o rozbudowę infrastruktury społecznej w postaci m.in. przedszkoli i szkół. W dzielnicy znajduje się także krakowska Akademia Wychowania Fizycznego. Na Czyżynach bez problemu znajdziemy tereny zielone. Poza działkami, mamy tu Lasek Łęgowski i 60-hektarowy Park Lotników Polskich będący drugim, co do wielkości parkiem w mieście. W dzielnicy mieści się także Muzeum Lotnictwa Polskiego. Ze względu na swoje znaczenie przemysłowe, Czyżyny są dobrze skomunikowane z resztą miasta. Biegnie przez nie także droga krajowa i droga wojewódzka.
Opis oferty
Nowe 2-pokojowe mieszkanie na sprzedaż o powierzchni 41,13 m² znajduje się w nowo budowanej inwestycji deweloperskiej Centralna 51C na Czyżynach, ul. Centralna 51C (4.7 km od centrum Krakowa).
Inwestycja jest realizowana przez Grupa Proins.
Cała inwestycja składa się z 2 budynków, w których łącznie znajdują się 84 nowe mieszkania.
Na sprzedaż pozostaje 76 ofert o powierzchni od 34 do 142 m².
W budynkach jest od 5 do 6 kondygnacji naziemnych oraz 2 kondygnacje podziemne.
Inwestycja Centralna 51C jest w trakcie budowy z planowanym na 2 kw. 2027 roku terminem oddania do użytkowania.
Nowe mieszkanie o oznaczeniu C1.26 znajduje się na 4 piętrze i jest 1-poziomowe. Pomieszczenia mają 258 centymetrów wysokości. W mieszkaniu znajdują się 2 pokoje.
Okna w mieszkaniu wychodzą na wschód.
Wschodnia orientacja zapewnia dostęp do łagodnego porannego światła, idealnego dla rozpoczęcia dnia pełnego energii. Wnętrza pozostają jasne, ale nieprzegrzane, co sprzyja utrzymaniu komfortowej temperatury. Przebywanie w pomieszczeniu z oknami na wschód inspiruje do działania i pozytywnie wpływa na poranny rytuał.
Dla przyszłych mieszkańców Centralna 51C deweloper przewidział miejsca postojowe podziemne.
Dzięki temu przyszli właściciele nie będą musieli poszukiwać wolnej przestrzeni parkingowej. Dodatkowo, miejsce postojowe w garażu podziemnym zabezpiecza przed niekorzystnymi warunkami atmosferycznymi.
Opis Inwestycji
Okazyjna cena
Tereny zielone
Najnowsza inwestycja firmy PROINS usytuowana jest przy ul. Centralnej w Czyżynach. To 2 (ostatni) etap. Składać się będzie z dwóch 4- i 5-piętrowych segmentów, pod którymi znajdują się 2-poziomowe garaże wielostanowiskowe. Wszystkie mieszkania posiadają balkony lub loggie. Na parterach dodatkowo część mieszkań posiadać będzie ogródki.
W istniejącej już części osiedla na parterach zlokalizowane są liczne lokale usługowe, sklepy, żłobki i przedszkole. Obok budynków, w trosce o najmłodszych, powstał plac zabaw.
Mieszkanie znajduje się w inwestycji Centralna 51C, w której znajdują się w sprzedaży jeszcze 34 podobne nowe mieszkania.
Grupa Proins
Strona internetowa inwestycjiAdres biura sprzedaży:
KrakówDnia 2 maja 2022r. pełnimy dyżur w naszym biurze przy ul. Wapiennej 2. Osoby zainteresowane spotkaniem zachęcamy do wcześniejszego kontaktu w celu umówienia spotkania.





