Bydgoszcz, Bocianowo-Śródmieście-Stare Miasto, ul. Rycerska 24
Bydgoszcz, Bocianowo-Śródmieście-Stare Miasto, ul. Rycerska 24
:format(jpg)/offers/offer/19447/main_image/industria-etap-i-b_822ee9.jpg)
:format(jpg)/offers/offer/19447/main_image/industria-etap-i-b_822ee9.jpg)
1 zdjęcie
Termin oddania
3 kw. 2026
Powierzchnie
30 - 70/m2
Przedział pokoi
1 - 4
Kondygnacje
6
Budynki
1
Stand. wykończenia
Standard deweloperski
Mieszkania w inwestycji (63)
od 8 900 zł/m2
Stacja kolejowa - Bydgoszcz Główna - 907 m
Przystanek Tramwajowy - 353 m
Przystanek Autobusowy - 158 m
Dojazd do centrum: pokaż
W pobliżu 1 km od tej inwestycji znajdują się:
35 kawiarni i restauracji, 47 sklepów, 12 obiektów sportowych, 16 placówek medycznych, 36 placówek edukacyjnych, 13 placów zabaw
Postępy i zdjęcia z budowy
Zobacz na jakim etapie budowy jest ta inwestycja
Udogodnienia Inwestycji
Standard i bezpieczeństwo
- monitoring
- teren ogrodzony
- winda
- rowerownia
- Standard deweloperski
Instalacje i energetyka
- instalacja fotowoltaiczna
Rekreacja
- plac zabaw
- sala fitness
Przyroda w okolicy
- 4 parki w okolicy
- park
Szczegóły inwestycji
Realizacja inwestycji:
Liczba budynków:
Liczba kondygnacji:
Liczba mieszkań:
Wysokość pomieszczeń:
Standard wykończenia
standard deweloperski
Ogrzewanie
miejskie
Rodzaj własności:
Powierzchnie dodatkowe:
Komórki lokatorskie:
Miejsca postojowe:
- miejsca postojowe podziemne (48 miejsc) : nieobowiązkowy zakup
- miejsca postojowe naziemne
Przyroda:
Aktualna oferta
Dostępne mieszkania:
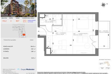
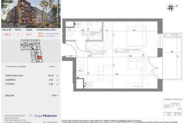
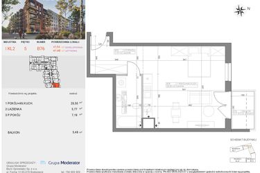
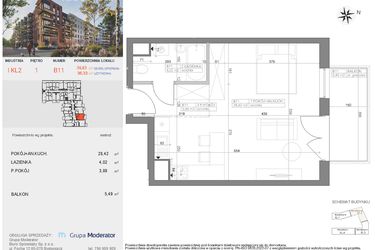
Powierzchnie mieszkań:
Liczba pokoi:
Ceny mieszkań:
- kształtują się w zakresie od 263 610 do 785 000 zł
- koszt metra kwadratowego wynosi od 8 900 do 12 808 zł
Opis płatności:
Warunki rezerwacji:
Zabezpieczenie środków klienta:
Wysokość czynszu:
Opis inwestycji
Inwestycja Industria etap I-B znajduje się na Bocianowo-Śródmieście-Stare Miasto, ul. Rycerska 24 (1.4 km od centrum Bydgoszczy), jest realizowana przez Grupa Moderator.
Inwestycja obecnie jest w trakcie budowy z planowanym na 3 kw. 2026 roku terminem oddania do użytkowania.
Cały projekt składa się z 80 nowych mieszkań znajdujących się w 1 budynku. Budynek posiada 6 kondygnacji naziemnych wraz z parterem oraz 1 kondygnację podziemną.
Aktualnie w inwestycji Industria etap I-B w sprzedaży są 63 nowe mieszkania o powierzchni od 30 do 70 metrów kwadratowych , w cenie od 8 900 zł za metr kwadratowy.
Dla przyszłych mieszkańców Industria etap I-B deweloper przewidział:
- miejsca postojowe podziemne (48 miejsc)
- miejsca postojowe naziemne
W inwestycji znajdują się komórki lokatorskie.
Lokalizacja inwestycji
Bydgoszcz to miasto powiatowe będące stolicą woj. kujawsko-pomorskiego. Przepływają tędy rzeki Wisła i Brda. Zabudowa jest zróżnicowana. Śródmieście wyróżnia się zwartym budownictwem i wieloma zabytkowymi kamienicami. Dalej od centrum pojawiają się budynki wielorodzinne, a na obrzeżach miasta liczne domy jednorodzinne. Przy północnej i południowej granicy rozciągają się rozległe tereny zielone, m.in. Las Gdański. Bydgoszcz to ośrodek gospodarczy, akademicki i kulturowy, w którym mieści się kilkanaście szkół wyższych, teatr, filharmonia i opera. Mieszkańcy mają dostęp do bogatej oferty medycznej – działa tu kilkanaście szpitali. Prężnie rozwija się sektor handlowo-usługowy i działa Bydgoski Park Przemysłowo-Technologiczny. Bydgoszcz jest rewelacyjnie skomunikowany z największymi miastami kraju. Znajduje się tu port lotniczy, a liczne drogi wojewódzkie i krajowe zapewniają dogodną komunikację drogową. Na obszarze całego miasta działa komunikacja publiczna.
Komunikacja
Jak wygląda komunikacja w okolicy inwestycji Industria etap I-B?
Bydgoszcz leży wśród arterii komunikacyjnych o znaczeniu regionalnym i krajowym. Przez miasto przechodzi kilka dróg krajowych (nr 5, 10, 25, 80). W promieniu 15 km biegną także liczne drogi wojewódzkie (nr 223, 244, 246, 249, 256, 394, 397, 546, 551, 597). Bydgoszcz przecina też trasa europejska E261. Mieści się tu czynny port lotniczy, a tutejsza magistrala kolejowa łączy południe kraju z miejscowościami nadbałtyckimi. Na terenie całego miasta kursują autobusy i tramwaje miejskie. Po Bydgoszczy można też pływać – taką opcję zapewniają tramwaje wodne. Nie brakuje również wypożyczalni rowerów i samochodów.
Przyszli mieszkańcy inwestycji Industria etap I-B mogą korzystać z rozbudowanej sieci połączeń komunikacyjnych. W odległości 200 metrów od inwestycji Industria etap I-B znajduje się najbliższy punkt komunikacyjny - Artyleryjska / Zaświat.
Edukacja
Czy w pobliżu inwestycji Industria etap I-B znajdują się szkoły/przedszkola?
Mieszkańcy mogą korzystać z bogatej oferty edukacyjnej. W najbliższej okolicy inwestycji Industria etap I-B znajduje się 36 placówek edukacyjnych. Najbliżej położone to: Przedszkole Niepubliczne "Puchatek" w odległości 100 m, szkoła w odległości 400 m.
Opieka medyczna
Dużym atutem inwestycji Industria etap I-B jest bliskość ośrodków zdrowotnych. Dostęp do opieki medycznej zapewnią położone w pobliżu: Gastromed-Ikar Sp. z o.o. w odległości 400 m.
Sklepy i usługi
Jak daleko jest do najbliższego sklepu?
Na infrastrukturę handlowo-usługową inwestycji Industria etap I-B składa się wiele punktów. Nieopodal, w odległości 200 m znajduje się Lidl, w odległości 300 m znajduje się sklep osiedlowy.
Sport
Bliskość terenów rekreacyjnych oraz obiektów sportowych to mocna strona tej lokalizacji. W najbliższej okolicy inwestycji Industria etap I-B w odległości 100 m znajduje się Centrum Wspinaczkowe "Spider", w odległości 300 m znajduje się siłownia na świeżym powietrzu, w odległości 300 m znajduje się Orlik.
Adres biura sprzedaży:
ul. Focha 12 85-070 BydgoszczGodziny otwarcia biura sprzedaży:
- Poniedziałek: 08:30 - 16:00
- Wtorek: 08:30 - 16:00
- Środa: 08:30 - 16:00
- Czwartek: 08:30 - 16:00
- Piątek: 08:30 - 16:00
Oferty, które mogą Cię zainteresować
Polecane Lokalizacje
- Mieszkania na sprzedaż Bartodzieje (424 oferty)
- Mieszkania na sprzedaż Bielawy (158 ofert)
- Mieszkania na sprzedaż Brdyujście (24 oferty)
- Mieszkania na sprzedaż Czyżkówko (53 oferty)
- Mieszkania na sprzedaż Flisy (52 oferty)
- Mieszkania na sprzedaż Górzyskowo (2 oferty)
- Mieszkania na sprzedaż Jachcice (72 oferty)
- Mieszkania na sprzedaż Kapuściska (419 ofert)
- Mieszkania na sprzedaż Leśne (468 ofert)
- Mieszkania na sprzedaż Nowy Fordon (228 ofert)
- Mieszkania na sprzedaż Okole (98 ofert)
Inwestycje w pobliżu na Bocianowo-Śródmieście-Stare Miasto
- Industria etap I-D oraz I-C (34 oferty)
- Symfonia - Chodkiewicza 9 (85 ofert)
- Osiedle Impresja 2 (36 ofert)
- Osiedle Symfonia (26 ofert)
- Enklawa Apartamenty Z4 i Z5 (33 oferty)
- Murapol Rivo (82 oferty)
- Platanowy Park etap IV (158 ofert)
- Riverside Residences (16 ofert)
- PULSE Wzgórze Wolności (36 ofert)
- Wspólnota Mieszkaniowa Gajowa 72 (52 oferty)
- Gajowa bud. A (75 ofert)
- Aura Towers (30 ofert)





