Mieszkanie na sprzedaż 1 pokój o powierzchni 33,99 m² - numer B54421 476 zł12 400 zł/m2Estymowana rata kredytu: 2 132 zł
Estymowana rata kredytu: 2 132 zł
Inwestycja:
Osiedle JózefowskaDeweloper:
Grimbud
Inwestycja:
Osiedle JózefowskaDeweloper:
GrimbudKatowice, Wełnowiec-Józefowiec, ul. Józefowska 23
Katowice, Wełnowiec-Józefowiec, ul. Józefowska 23
Uwaga
Ta nieruchomość jest nieaktywna. Informacje na jej temat pomagają nam jednak tworzyć wiarygodną bazę informacji na temat lokalnego rynku nieruchomości statystycznych portalu
:format(jpg)/properties/planimagepage/image/1198748/6e85c5.png)
:format(jpg)/offers/offer/17928/main_image/osiedle-jozefowska_fd9d69.jpg)
1 zdjęcie
Najbliższe inwestycje
/offers/offer/None/main_image/na-koszutce_d3821b.jpg)
% Promocje
Kolejny etap inwestycji „Na Koszutce” tworzą trzy pięciokondygnacyjne budynki, w których oferujemy łącznie 165 lokali o metrażach od 27 m², idealnych na funkcjonalne kawalerki lub mieszkania typu studio, aż po ponad 134 metrowe, przestronne apartamenty. Do lokali przynależą balkon, loggia, taras lub ogródek do własnej aranżacji. Dodatkowo każdy budynek posiadać będzie garaż podziemny, w którymNa Koszutce II
od 9 800 zł/m²
1 kwartał 2027
Katowice, Wełnowiec-Józefowiec,
ul. Słoneczna
2-5 pokoi, Metraż 39-135 m2
/offers/offer/15635/main_image/na-koszutce_cd9545.jpg)
% Promocje
"Na Koszutce” to inwestycja realizowana w samym sercu Katowic. Bez wątpienia wśród wszystkich projektów z portfolio Wawel Service, bijące tętno miasta słychać tu najgłośniej. Nowoczesne apartamentowce o unikatowym designie oddają niepowtarzalną energię Górnego Śląska i zapewniają komfortowy relaks. Jednocześnie, dzięki niedalekiej odległości terenów zielonych, również ci, którzy potrzebująNa Koszutce
od 9 400 zł/m²
gotowe
Katowice, Wełnowiec-Józefowiec,
ul. Słoneczna 1
3 pokoje, Metraż 60-78 m2
/offers/offer/18148/main_image/murapol-corfa_5838c1.png)
% Promocje
WYBRANE MIESZKANIA W PAKIECIE Z MIEJSCEM POSTOJOWYM W CENIE 15000 ZŁ- 30000 ZŁ I/LUB KOMÓRKĄ LOKATORSKĄ W CENIE 12960 ZŁ-19880 ZŁ. O SZCZEGÓŁY ZAPYTAJ DEWELOPERA. Murapol Corfa to miejsce zaprojektowane z myślą o osobach pragnących żyć nowocześnie niedaleko historycznego i kulturowego centrum miasta. Osiedle powstanie na zielonych Wzgórzach Chorzowskich w rejonie al. Wojciecha Korfantego w sercu4 kwartał 2026
Katowice, Wełnowiec-Józefowiec,
ul. Owocowa
2-4 pokoje, Metraż 37-74 m2
Termin oddania
2 kw. 2027
Ilość pokoi
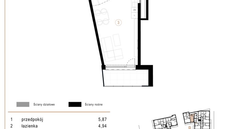
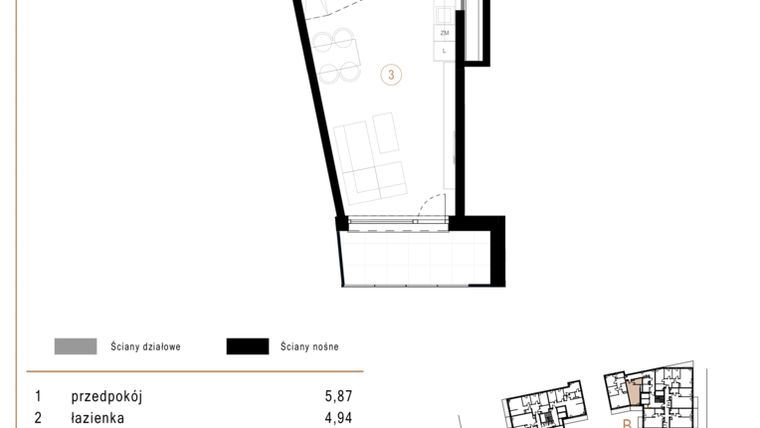
1 pokój
Metraż
33,99 m²
Piętro
5 piętro
Powierzchnie dodatkowe
Balkon
Kuchnia
otwarta kuchnia
Wysokość pomieszczeń
od 260 do 270 cm wysokości
Ilość poziomów
1 poziom
Oznaczenie oferty
B54

Raport o deweloperze
Poznaj dewelopera bliżej! Pobierz raport, w którym znajdziesz kluczowe informacje o firmie, jej doświadczeniu, nagrodach oraz aktualnych i zrealizowanych inwestycjach.
Budynek i otoczenie
Miejsca postojowe
- miejsca postojowe podziemne: do każdego mieszkania, możliwość zakupu więcej niż jednego
- miejsca postojowe naziemne
Komórki lokatorskie
Standard wykończenia
standard deweloperski
Ogrzewanie
miejskie
Realizacja inwestycji
Udogodnienia
Przyroda
Charakterystyka energetyczna nieruchomości
Rezerwacja i finanse
Rodzaj własności
Wysokość czynszu
Warunki rezerwacji
Zabezpieczenie środków
Lokalizacja inwestycji
Stacja kolejowa - Katowice - 2165 m
Przystanek Tramwajowy - 290 m
Przystanek Autobusowy - 146 m
Dojazd do centrum: pokaż
W pobliżu 1 km od tej inwestycji znajdują się:
17 kawiarni i restauracji, 49 sklepów, 25 obiektów sportowych, 18 placówek medycznych, 25 placówek edukacyjnych, 25 placów zabaw
Przeczytaj więcej o lokalizacji
Katowice to miasto w województwie śląskim o powierzchni 164 km kw i liczbie mieszkańców ponad 300 tys. osób. Zabudowa miasta to głównie powojenne bloki i typowe dla Śląska zabytkowe kamienice. Katowice dzielą się na dzielnice pogrupowane w zespoły dzielnic: zespół północny, śródmiejski, południowy, wschodni i zachodni. Miasto jest wojewódzkim centrum medycznym, z kilkunastoma szpitalami, w tym Centralnym Szpitalem Klinicznym im. Kornela Gibińskiego, Szpitalem Klinicznym im. Andrzeja Mieleckiego, Uniwersyteckim Centrum Okulistyki i Onkologii, Szpitalem Klinicznym nr 6 czy Górnośląskim Centrum Zdrowia Dziecka. Działają tu też liczne uniwersytety, takie jak Akademia Wychowania Fizycznego im. Jerzego Kukuczki, Akademia Sztuk Pięknych czy wydziały Politechniki Śląskiej.
Opis oferty
Nowe 1-pokojowe mieszkanie na sprzedaż o powierzchni 33,99 m² znajduje się w nowo budowanej inwestycji deweloperskiej Osiedle Józefowska w Wełnowcu, ul. Józefowska 23 (1.5 km od centrum Katowic).
Inwestycja jest realizowana przez Grimbud.
Cała inwestycja składa się z 4 budynków, w których łącznie znajdują się 273 nowe mieszkania.
Inwestycja jest już wyprzedana.
W budynkach jest 11 kondygnacji naziemnych oraz 2 kondygnacje podziemne.
Inwestycja Osiedle Józefowska jest w trakcie budowy z planowanym na 2 kw. 2027 roku terminem oddania do użytkowania.
Nowe mieszkanie o oznaczeniu B54 znajduje się na 5 piętrze i jest 1-poziomowe. Pomieszczenia mają od 260 do 270 centymetrów wysokości. W mieszkaniu znajduje się 1 pokój.
Do mieszkania przewidziano możliwość zakupu komórki lokatorskiej, którą można zagospodarować na spiżarnię, warsztat czy składzik.
Dla przyszłych mieszkańców Osiedle Józefowska deweloper przewidział miejsca postojowe podziemne, miejsca postojowe naziemne.
Dzięki temu przyszli właściciele nie będą musieli poszukiwać wolnej przestrzeni parkingowej. Dodatkowo, miejsce postojowe w garażu podziemnym zabezpiecza przed niekorzystnymi warunkami atmosferycznymi.
Cena ofertowa mieszkania wynosi 421 476 zł (12 400 zł/m²).
Opis Inwestycji
Okazyjna cena
Tereny zielone
Pow. dodatkowe
• Osiedle Józefowska to nowoczesna inwestycja znajdująca się przy ulicy Józefowskiej 23 w Katowicach składająca się z czterech budynków A, B, C oraz D
• Na całą inwestycję składa się 273 mieszkania i 7 lokali usługowych, oraz dwupoziomowy garaż podziemny na 358 miejsc, który zapewni miejsce postojowe do każdego mieszkania
• Komfortowe mieszkania o powierzchni od 33 do 117 metrów kwadratowych będą miały dostęp do ogródków, balkonów lub tarasów
• Planowany termin zakończenia budowy to 31.03.2027 roku
• W pobliżu znajdują się tereny zielone takie jak park Śląski i Park Wełnowiecki
• W sąsiedztwie pełna infrastruktura: supermarkety, żłobki, przedszkola, szkoły oraz inne punkty usługowe
• mieszkania parterowe z prywatnymi ogródkami
• mieszkania z przestronnymi balkonami
• plac zabaw
• tężnia solankowa
• siłownia zewnętrzna
• strefa workout
• strefa gier plenerowych
• rowerowa stacja serwisowa
• rowerownia i wózkownia
• miejsce postojowe do każdego mieszkania
• wsparcie i doradztwo kredytowe
• łazienka z oknem w wybranych mieszkaniach
• możliwość wykończenia "pod klucz"
• monitoring
• wideodomofon
Mieszkanie znajduje się w inwestycji Osiedle Józefowska.





