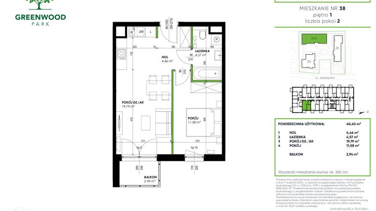
Mieszkanie na sprzedaż 2 pokoje o powierzchni 40,4 m² numer B 38
Inwestycja:
Greenwood ParkDeweloper:
Greenwood
Inwestycja:
Greenwood ParkDeweloper:
GreenwoodWarszawa, Wesoła, Stara Miłosna, ul. Jeździecka 26
Warszawa, Wesoła, Stara Miłosna, ul. Jeździecka 26
Promocje
Promocja
Wiosenne promocje w Greenwood Park! Mieszkania bez wkładu własnego w Warszawie Wesołej - sprawdź.
Mieszkanie bez wkładu własnego: Idealne rozwiązanie dla osób, które szukają wsparcia w finansowaniu zakupu. Wysokie rabaty: Możesz zaoszczędzić nawet 120 000 zł przy zakupie wybranych mieszkań 2-pokojowych. Sprawdź szczegóły oferty u Doradcy!
Oddanie
3 kw. 2027
Ilość pokoi
2 pokoje
Metraż
40,4 m²
Piętro
1 piętro
Strona świata
wschód
Dodatkowe
Balkon
Kuchnia
otwarta kuchnia
Wysokość
265 cm wysokości
Poziomy
1 poziom
Oznaczenie oferty
B 38

Raport o deweloperze
Poznaj dewelopera bliżej! Pobierz raport, w którym znajdziesz kluczowe informacje o firmie, jej doświadczeniu, nagrodach oraz aktualnych i zrealizowanych inwestycjach.
Budynek i otoczenie
Miejsca postojowe | |
|---|---|
Komórki lokatorskie | dostępne (31): nieobowiązkowy zakup; od 1,83 do 11,6 m2 |
Standard wykończenia | standard deweloperski Ogrzewanie kotłownia (wyposażona w kotły gazowe i pompy ciepła) |
Realizacja inwestycji | rozpoczęcie budowy w 3 kw. 2025 roku, planowane oddanie do użytkowania w 3 kw. 2027 roku |
Udogodnienia | plac zabaw, monitoring, teren ogrodzony, winda |
Przyroda | w okolicy inwestycji znajduje się park |
Charakterystyka energetyczna nieruchomości | informacja u dewelopera |
Rezerwacja i finanse
Rodzaj własności | Odrębna własność z własnością gruntu |
|---|---|
Wysokość czynszu | informacja u dewelopera |
Warunki rezerwacji | Informacja u dewelopera |
Zabezpieczenie środków | Otwarty mieszkaniowy rachunek powierniczy |
Postępy i zdjęcia z budowy
Zobacz na jakim etapie budowy jest ta inwestycja
Lokalizacja inwestycji
Przystanek Autobusowy - 157 m
Dojazd do centrum: pokaż
W pobliżu 1 km od tej inwestycji znajdują się:
16 kawiarni i restauracji, 21 sklepów, 12 obiektów sportowych, 5 placówek medycznych, 23 placówki edukacyjne, 8 placów zabaw
Przeczytaj więcej o lokalizacji
Wesoła to wysunięta na wschód dzielnica Warszawy, zajmująca obszar o powierzchni ok. 23 km2. Aż 2/3 tego terenu to malownicze przestrzenie naturalnego krajobrazu: sosnowe lasy, pagórkowate wzniesienia i liczne zbiorniki wodne, które nadają miejscu charakter spokojnej, zielonej enklawy. Przy ulicach przypominających niekiedy leśne aleje usytuowane są niskie budynki: wille oraz domy jedno- i wielorodzinne, które nie tworzą dużych skupisk, toteż dzielnica nie jest zatłoczona i zachowuje swoisty, leśny mikroklimat. Gęściejsza, lecz konsekwentnie niska zabudowa handlowo-usługowa występuje natomiast na Osiedlu Zielona. Wesoła uchodzi za jeden z najbezpieczniejszych rejonów stolicy, a walory przyrodnicze okolic zachęcają do sportu i rekreacji, toteż nie brakuje tutaj: ścieżek rowerowych, kortów tenisowych czy terenów do jazdy konnej. Z dzielnicy do centrum można dojechać pociągami Szybkiej Kolei Miejskiej, a ważną arterią wiodącą poza wschodnią granicę miasta jest Trakt Brzeski.
Opis oferty
Nowe 2-pokojowe mieszkanie na sprzedaż o powierzchni 40,4 m² znajduje się w nowo budowanej inwestycji deweloperskiej Greenwood Park w Starej Miłosnej, ul. Jeździecka 26 (15.3 km od centrum Warszawy).
Inwestycja jest realizowana przez Greenwood.
Cała inwestycja składa się z 3 budynków, w których łącznie znajduje się 108 nowych mieszkań.
Na sprzedaż pozostaje 91 ofert o powierzchni od 38 do 80 m².
W budynkach są 4 kondygnacje naziemne oraz 1 kondygnacja podziemna.
Inwestycja Greenwood Park jest w trakcie budowy z planowanym na 3 kw. 2027 roku terminem oddania do użytkowania.
Nowe mieszkanie o oznaczeniu B 38 znajduje się na 1 piętrze i jest 1-poziomowe. Pomieszczenia mają 265 centymetrów wysokości. W mieszkaniu znajdują się 2 pokoje.
Do mieszkania przewidziano możliwość zakupu komórki lokatorskiej, którą można zagospodarować na spiżarnię, warsztat czy składzik.
Okna w mieszkaniu wychodzą na wschód.
Wschodnia orientacja zapewnia dostęp do łagodnego porannego światła, idealnego dla rozpoczęcia dnia pełnego energii. Wnętrza pozostają jasne, ale nieprzegrzane, co sprzyja utrzymaniu komfortowej temperatury. Przebywanie w pomieszczeniu z oknami na wschód inspiruje do działania i pozytywnie wpływa na poranny rytuał.
Dla przyszłych mieszkańców Greenwood Park deweloper przewidział miejsca postojowe podziemne.
Dzięki temu przyszli właściciele nie będą musieli poszukiwać wolnej przestrzeni parkingowej. Dodatkowo, miejsce postojowe w garażu podziemnym zabezpiecza przed niekorzystnymi warunkami atmosferycznymi.
Mieszkanie znajduje się w inwestycji Greenwood Park, w której znajduje się w sprzedaży jeszcze 60 podobnych nowych mieszkań.
Greenwood
Strona internetowa inwestycjiAdres biura sprzedaży:
ul. Jeździecka 20, WarszawaGodziny otwarcia biura sprzedaży:
- Poniedziałek: 10:00 - 18:00
- Wtorek: 10:00 - 18:00
- Środa: 10:00 - 18:00
- Czwartek: 10:00 - 18:00
- Piątek: 10:00 - 18:00





