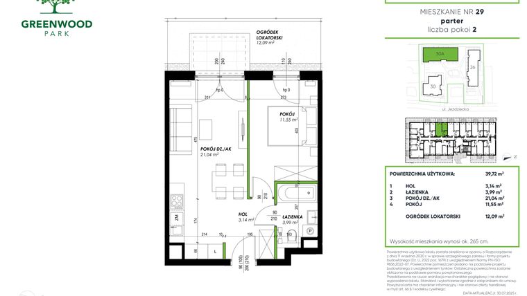
Mieszkanie na sprzedaż 2 pokoje o powierzchni 39,72 m² numer B 29
Inwestycja:
Greenwood ParkDeweloper:
Greenwood
Inwestycja:
Greenwood ParkDeweloper:
GreenwoodWarszawa, Wesoła, Stara Miłosna, ul. Jeździecka 26
Warszawa, Wesoła, Stara Miłosna, ul. Jeździecka 26
Promocje
Promocja
Wiosenne promocje w Greenwood Park! Mieszkania bez wkładu własnego w Warszawie Wesołej - sprawdź.
Mieszkanie bez wkładu własnego: Idealne rozwiązanie dla osób, które szukają wsparcia w finansowaniu zakupu. Wysokie rabaty: Możesz zaoszczędzić nawet 120 000 zł przy zakupie wybranych mieszkań 2-pokojowych. Sprawdź szczegóły oferty u Doradcy!
Termin oddania
3 kw. 2027
Ilość pokoi
2 pokoje
Metraż
39,72 m²
Piętro
Parter
Strona świata
zachód
Powierzchnie dodatkowe
Ogródek
Kuchnia
otwarta kuchnia
Wysokość pomieszczeń
265 cm wysokości
Ilość poziomów
1 poziom
Oznaczenie oferty
B 29

Raport o deweloperze
Poznaj dewelopera bliżej! Pobierz raport, w którym znajdziesz kluczowe informacje o firmie, jej doświadczeniu, nagrodach oraz aktualnych i zrealizowanych inwestycjach.
Budynek i otoczenie
Miejsca postojowe | |
|---|---|
Komórki lokatorskie | dostępne (31): nieobowiązkowy zakup; od 1,83 do 11,6 m2 |
Standard wykończenia | standard deweloperski Ogrzewanie kotłownia (wyposażona w kotły gazowe i pompy ciepła) |
Realizacja inwestycji | rozpoczęcie budowy w 3 kw. 2025 roku, planowane oddanie do użytkowania w 3 kw. 2027 roku |
Udogodnienia | plac zabaw, monitoring, teren ogrodzony, winda |
Przyroda | w okolicy inwestycji znajduje się park |
Charakterystyka energetyczna nieruchomości | informacja u dewelopera |
Rezerwacja i finanse
Rodzaj własności | Odrębna własność z własnością gruntu |
|---|---|
Wysokość czynszu | informacja u dewelopera |
Warunki rezerwacji | Informacja u dewelopera |
Zabezpieczenie środków | Otwarty mieszkaniowy rachunek powierniczy |
Zdjęcia z budowy
Zobacz na jakim etapie budowy jest ta inwestycja
Lokalizacja inwestycji
Przystanek Autobusowy - 157 m
Dojazd do centrum: pokaż
W pobliżu 1 km od tej inwestycji znajdują się:
16 kawiarni i restauracji, 21 sklepów, 12 obiektów sportowych, 5 placówek medycznych, 23 placówki edukacyjne, 8 placów zabaw
Przeczytaj więcej o lokalizacji
Wesoła to wysunięta na wschód dzielnica Warszawy, zajmująca obszar o powierzchni ok. 23 km2. Aż 2/3 tego terenu to malownicze przestrzenie naturalnego krajobrazu: sosnowe lasy, pagórkowate wzniesienia i liczne zbiorniki wodne, które nadają miejscu charakter spokojnej, zielonej enklawy. Przy ulicach przypominających niekiedy leśne aleje usytuowane są niskie budynki: wille oraz domy jedno- i wielorodzinne, które nie tworzą dużych skupisk, toteż dzielnica nie jest zatłoczona i zachowuje swoisty, leśny mikroklimat. Gęściejsza, lecz konsekwentnie niska zabudowa handlowo-usługowa występuje natomiast na Osiedlu Zielona. Wesoła uchodzi za jeden z najbezpieczniejszych rejonów stolicy, a walory przyrodnicze okolic zachęcają do sportu i rekreacji, toteż nie brakuje tutaj: ścieżek rowerowych, kortów tenisowych czy terenów do jazdy konnej. Z dzielnicy do centrum można dojechać pociągami Szybkiej Kolei Miejskiej, a ważną arterią wiodącą poza wschodnią granicę miasta jest Trakt Brzeski.
Opis oferty
Nowe 2-pokojowe mieszkanie na sprzedaż o powierzchni 39,72 m² znajduje się w nowo budowanej inwestycji deweloperskiej Greenwood Park w Starej Miłosnej, ul. Jeździecka 26 (15.3 km od centrum Warszawy).
Inwestycja jest realizowana przez Greenwood.
Cała inwestycja składa się z 3 budynków, w których łącznie znajduje się 108 nowych mieszkań.
Na sprzedaż pozostają 94 oferty o powierzchni od 38 do 80 m².
W budynkach są 4 kondygnacje naziemne oraz 1 kondygnacja podziemna.
Inwestycja Greenwood Park jest w trakcie budowy z planowanym na 3 kw. 2027 roku terminem oddania do użytkowania.
Nowe mieszkanie o oznaczeniu B 29 znajduje się na parterze i jest 1-poziomowe. Pomieszczenia mają 265 centymetrów wysokości. W mieszkaniu znajdują się 2 pokoje.
Do mieszkania przewidziano możliwość zakupu komórki lokatorskiej, którą można zagospodarować na spiżarnię, warsztat czy składzik.
Okna w mieszkaniu wychodzą na zachód.
Zachodnia ekspozycja to gwarancja intensywnego popołudniowego światła, które nadaje wnętrzom przytulności i ciepła. Idealne dla miłośników słonecznych wieczorów, którzy pragną cieszyć się pięknymi zachodami słońca we własnym domu. Zachodnie światło podkreśla kolory i faktury w aranżacji wnętrz, tworząc atmosferę sprzyjającą relaksowi po długim dniu.
Dla przyszłych mieszkańców Greenwood Park deweloper przewidział miejsca postojowe podziemne.
Dzięki temu przyszli właściciele nie będą musieli poszukiwać wolnej przestrzeni parkingowej. Dodatkowo, miejsce postojowe w garażu podziemnym zabezpiecza przed niekorzystnymi warunkami atmosferycznymi.
Mieszkanie znajduje się w inwestycji Greenwood Park, w której znajduje się w sprzedaży jeszcze 60 podobnych nowych mieszkań.
Greenwood
Strona internetowa inwestycjiAdres biura sprzedaży:
ul. Jeździecka 20, WarszawaGodziny otwarcia biura sprzedaży:
- Poniedziałek: 10:00 - 18:00
- Wtorek: 10:00 - 18:00
- Środa: 10:00 - 18:00
- Czwartek: 10:00 - 18:00
- Piątek: 10:00 - 18:00





