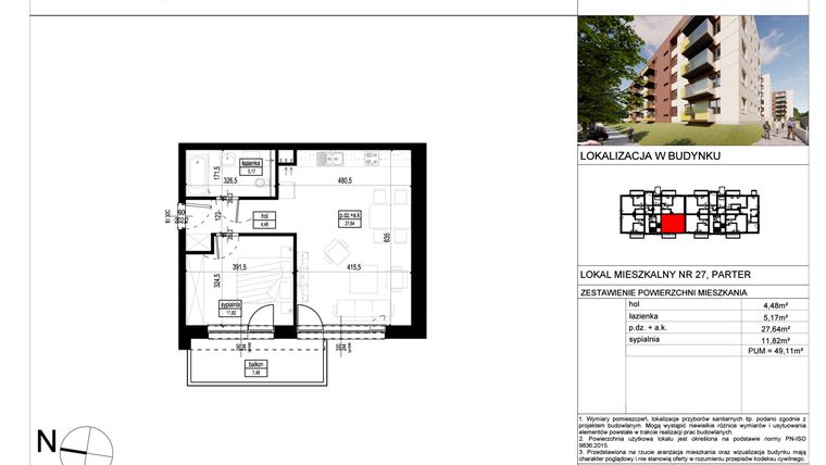
Mieszkanie na sprzedaż 2 pokoje o powierzchni 49,11 m² numer A.27
Inwestycja:
Wólczańska 248 - etap IIDeweloper:
Ezbud Sp. z o.o.
Inwestycja:
Wólczańska 248 - etap IIDeweloper:
Ezbud Sp. z o.o.Łódź, Górna, Górniak, ul. Wólczańska 248/248A
Łódź, Górna, Górniak, ul. Wólczańska 248/248A
Termin oddania
2 kw. 2026
Ilość pokoi
2 pokoje
Metraż
49,11 m²
Piętro
Parter
Kuchnia
otwarta kuchnia
Wysokość pomieszczeń
od 260 do 280 cm wysokości
Ilość poziomów
1 poziom
Oznaczenie oferty
A.27

Raport o deweloperze
Poznaj dewelopera bliżej! Pobierz raport, w którym znajdziesz kluczowe informacje o firmie, jej doświadczeniu, nagrodach oraz aktualnych i zrealizowanych inwestycjach.
Budynek i otoczenie
Miejsca postojowe | |
|---|---|
Komórki lokatorskie | dostępne: boks 3.700 zł/mkw |
Standard wykończenia | standard deweloperski Ogrzewanie miejskie |
Realizacja inwestycji | rozpoczęcie budowy w 1 kw. 2024 roku, planowane oddanie do użytkowania w 2 kw. 2026 roku |
Udogodnienia | plac zabaw, teren ogrodzony, internet, winda |
Przyroda | w okolicy inwestycji znajduje się park |
Charakterystyka energetyczna nieruchomości | informacja u dewelopera |
Rezerwacja i finanse
Rodzaj własności | Odrębna własność z własnością gruntu |
|---|---|
Wysokość czynszu | informacja u dewelopera |
Warunki rezerwacji | Informacja u dewelopera |
Zabezpieczenie środków | Informacja u dewelopera |
Zdjęcia z budowy
Zobacz na jakim etapie budowy jest ta inwestycja
Lokalizacja inwestycji
Stacja kolejowa - Łódź Pabianicka - 2006 m
Przystanek Tramwajowy - 301 m
Przystanek Autobusowy - 54 m
Dojazd do centrum: pokaż
W pobliżu 1 km od tej inwestycji znajdują się:
18 kawiarni i restauracji, 39 sklepów, 35 obiektów sportowych, 16 placówek medycznych, 45 placówek edukacyjnych, 24 place zabaw
Przeczytaj więcej o lokalizacji
Południowa część Łodzi rozciągnięta na powierzchni ok. 70 km. kw i zamieszkana jest przez 170 tys. osób. Dzielnica dzieli się na rejony Chojny-Dąbrowa, Chojny, Górniak, Piastów-Kurak, Rokicie, Ruda, Nad Nerem, Wiskitno. Główne ulice dzielnicy to u. Pabianicka, ul. Rzgowska i odchodząca od niej w kierunku wschodnim ul. Jarosława Dąbrowskiego. To dzielnica bogata w parki i ośrodki rekreacyjne, takie jak Stawy Jana, Młynek, Rudzka Góra czy Las Ruda Popioły. Na terenie dzielnicy znajdują się też zabytki takie, jak dwór Benedykta Górskiego, Muzeum Włókiennictwa, Willa Ferdynanda Koninga czy liczne parki. Dzielnica jest doskonale skomunikowana dzięki sieci komunikacji miejskiej ale też dworcowi PKP Łódź Chojny i położonego we wschodniej części dzielnicy portowi lotniczemu. Dzielnica ma dobry odstęp do punktów usługowych dzięki kilku hipermarketom, centrum handlowemu Guliwer i supermarketom budowlanym. Zabudowa mieszkalna to głównie bloki, przedwojenne kamienice i robotnicze domki jednorodzinne. Mieszczą się tu też cmentarze katolickie i ewangelicko-augsburski. Główne centrum handlowe to Guliwer z hipermarketem Carrefour.
Opis oferty
Miejsce parkingowe w garażu pod budynkiem A i B – 49.000,00 zł,
Miejsce szerokie (N) 60.000,00 zł,
Boks 3.700 zł/mkw
Miejsce parkingowe w garażu pomiędzy budynkami A i B – 43.000 zł
Nowe 2-pokojowe mieszkanie na sprzedaż o powierzchni 49,11 m² znajduje się w nowo budowanej inwestycji deweloperskiej Wólczańska 248 - etap II na Górniaku, ul. Wólczańska 248/248A (1.9 km od centrum Łodzi).
Inwestycja jest realizowana przez Ezbud Sp. z o.o.
Cała inwestycja składa się z 2 budynków, w których łącznie znajdują się 93 nowe mieszkania.
Na sprzedaż pozostaje 78 ofert o powierzchni od 32 do 90 m².
W budynkach jest 6 kondygnacji naziemnych oraz 1 kondygnacja podziemna.
Inwestycja Wólczańska 248 - etap II jest w trakcie budowy z planowanym na 2 kw. 2026 roku terminem oddania do użytkowania.
Nowe mieszkanie o oznaczeniu A.27 znajduje się na parterze i jest 1-poziomowe. Pomieszczenia mają od 260 do 280 centymetrów wysokości. W mieszkaniu znajdują się 2 pokoje.
Dla przyszłych mieszkańców Wólczańska 248 - etap II deweloper przewidział miejsca postojowe podziemne.
Dzięki temu przyszli właściciele nie będą musieli poszukiwać wolnej przestrzeni parkingowej. Dodatkowo, miejsce postojowe w garażu podziemnym zabezpiecza przed niekorzystnymi warunkami atmosferycznymi.
Opis Inwestycji
Okazyjna cena
Tereny zielone
Nowa inwestycja firmy EZBUD to budowa osiedla przy ul. Wólczańskiej 248 w Łodzi. Osiedle tworzyć będzie zespół 4 budynków mieszkalnych wielorodzinnych – 1 budynek czterokondygnacyjny, 1 budynek pięciokondygnacyjny i 2 sześciokondygnacyjne, wyposażone w windy. Osiedle charakteryzować się będzie prostą zabudową i nowoczesną architekturą.
Budynki zostały zaprojektowane zgodnie z najwyższym standardem wpływającym na funkcjonalność, wygodę oraz wysoką jakość użytych materiałów. Budujemy metodą tradycyjną z pustaka ceramicznego. Teren inwestycji będzie ogrodzony, zagospodarowany zielenią z placem zabaw dla najmłodszych mieszkańców.
Doskonała lokalizacja nowo powstającego osiedla przekładać się będzie na duży komfort codziennego życia dla wszystkich tych, którzy pragną mieszkać blisko serca Łodzi. W okolicy znajdują się: ulica Piotrkowska, Ogrody Geyera, politechnika Łódzka, hala targowa Górniak. Do aktywnego spędzania wolnego czasu zachęcają znajdujące się w okolicy tereny zielone. Dużym plusem inwestycji są również tereny rekreacyjno-sportowe, placówki kulturalno-oświatowe, centra handlowe oraz zakłady opieki medycznej.
https://ezbud.pl/
Mieszkanie znajduje się w inwestycji Wólczańska 248 - etap II, w której znajdują się w sprzedaży jeszcze 24 podobne nowe mieszkania.
Ezbud Sp. z o.o.
Strona internetowa inwestycjiAdres biura sprzedaży:
ul. Wysoka 2/4, Tomaszów MazowieckiGodziny otwarcia biura sprzedaży:
- Poniedziałek: 08:00 - 16:00
- Wtorek: 08:00 - 16:00
- Środa: 08:00 - 16:00
- Czwartek: 08:00 - 16:00
- Piątek: 08:00 - 16:00





