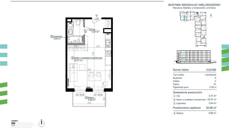
Mieszkanie na sprzedaż 1 pokój o powierzchni 30,98 m² numer AC0189
Inwestycja:
OrnekoDeweloper:
Equilis Poland
Inwestycja:
OrnekoDeweloper:
Equilis PolandWarszawa, Białołęka, Białołęka Dworska, ul. Cieślewskich
Warszawa, Białołęka, Białołęka Dworska, ul. Cieślewskich
Uwaga
Ta nieruchomość jest nieaktywna. Informacje na jej temat pomagają nam jednak tworzyć wiarygodną bazę informacji na temat lokalnego rynku nieruchomości statystycznych portalu
Najbliższe inwestycje
% Promocje
Zakątek Harmonia jest idealną propozycją zarówno dla osób młodych oraz rodzin, ceniących komfort, spokój jak i przestrzeń. Inwestycja znajduje się na Białołęce, urokliwej, a także wyjątkowo prężnie rozwijającej się dzielnicy Warszawy. Stale rozbudowywana infrastruktura oraz komunikacja zapewnią wygodę i niezależność. Mieszkania będą dopasowane do potrzeb przyszłych właścicieli dziękiZakątek Harmonia II
od 9 614 zł/m²
gotowe
Warszawa, Białołęka, Szamocin,
ul. Płochocińska 101
2-4 pokoje, Metraż 65-107 m2
- Inwestycja Werandova to propozycja Żerański Development dla osób, które pragną mieszkać w Warszawie, jednocześnie nie rezygnując z bliskości zieleni i spokoju. Osiedle powstaje w sąsiedztwie Lasu Białołęki Dworskiej, który jest jednym z największych kompleksów leśnych w stolicy, oferującym codzienny kontakt z naturą. Bliskość terenów zielonych i rekreacyjnych czyni to miejsce wyjątkowo
Werandowa
od 10 800 zł/m²
1 kwartał 2027
Warszawa, Białołęka, Szamocin,
ul. Werandowa
2-3 pokoje, Metraż 43-68 m2
- BIAŁOŁĘCKA 327 to kameralne osiedle mieszkań oraz segmentów bezczynszowych. Mieszkanie na parterze 89m2 z ogródkiem do 253m2, mieszkanie na piętrze 104m2 z poddaszem 83m2 oraz segment środkowy 123m2 z ogródkiem do 53m2 i poddaszem 63m2 oraz segment skrajny 123m2 z ogródkiem do 169m2 i poddaszem 53m2. Oddzielne wejście, brak klatki schodowej. Wysokość 280 cm. Wysokie właściwości energetyczne oraz
Białołęcka 327
od 9 900 zł/m²
1 kwartał 2027
Warszawa, Białołęka, Brzeziny,
ul. Białołęcka 327
4 pokoje, Metraż 89-105 m2
Termin oddania
4 kw. 2027
Ilość pokoi
1 pokój
Metraż
30,98 m²
Piętro
1 piętro
Strona świata
południe
Powierzchnie dodatkowe
Balkon
Kuchnia
otwarta kuchnia
Wysokość pomieszczeń
od 260 do 280 cm wysokości
Ilość poziomów
1 poziom
Oznaczenie oferty
AC0189

Raport o deweloperze
Poznaj dewelopera bliżej! Pobierz raport, w którym znajdziesz kluczowe informacje o firmie, jej doświadczeniu, nagrodach oraz aktualnych i zrealizowanych inwestycjach.
Budynek i otoczenie
Miejsca postojowe | |
|---|---|
Komórki lokatorskie | dostępne |
Standard wykończenia | standard deweloperski |
Realizacja inwestycji | rozpoczęcie budowy w 1 kw. 2026 roku, planowane oddanie do użytkowania w 4 kw. 2027 roku |
Udogodnienia | miejsce do ładowania samochodów elektrycznych, winda |
Przyroda | informacja u dewelopera |
Charakterystyka energetyczna nieruchomości | informacja u dewelopera |
Rezerwacja i finanse
Rodzaj własności | Odrębna własność z własnością gruntu |
|---|---|
Wysokość czynszu | informacja u dewelopera |
Warunki rezerwacji | Informacja u dewelopera |
Zabezpieczenie środków | Informacja u dewelopera |
Lokalizacja inwestycji
Stacja kolejowa - Warszawa Płudy - 1867 m
Przystanek Tramwajowy - 2688 m
Przystanek Autobusowy - 287 m
Dojazd do centrum: pokaż
W pobliżu 1 km od tej inwestycji znajdują się:
6 obiektów sportowych, 6 placówek edukacyjnych, 1 plac zabaw
Przeczytaj więcej o lokalizacji
Białołęka to północna, druga pod względem wielkości powierzchni, dzielnica Warszawy odznaczająca się najszybszym rozwojem. Występują tutaj zarówno osiedla domów jednorodzinnych w północnej części obszaru, jak również wysoka, nowoczesna zabudowa mieszkaniowa. Dużą popularnością nadal cieszą się białołęckie osiedla z wielkiej płyty: Nowy Tarchomin, Nowodwory i Nowe Świdry. W strefie centralnej i południowej rozwija się infrastruktura handlowo-usługowa, więc obszar ten ma szansę stać się czymś więcej, niż kolejną warszawską "sypialnią". Białołęka jest jedną z najspokojniejszych dzielnic, a wypoczynek umożliwiają: kompleksy leśne, parki, rezerwaty przyrody i ścieżki rowerowe. Dogodnym sposobem dojazdu do centrum miasta są tutaj liczne linie autobusowe z pętlą Nowodwory, zaś do głównych arterii dzielnicy należą fragmenty dróg krajowych: ul. Modlińska i Trasa Toruńska, a także ul. Płochocińska.
Opis oferty
Nowe 1-pokojowe mieszkanie na sprzedaż o powierzchni 30,98 m² znajduje się w nowo budowanej inwestycji deweloperskiej Orneko na Białołęce Dworskiej, ul. Cieślewskich (11.7 km od centrum Warszawy).
Inwestycja jest realizowana przez Equilis Poland.
Cała inwestycja składa się z 2 budynków, w których łącznie znajduje się 199 nowych mieszkań.
Inwestycja jest już wyprzedana.
W budynkach jest od 5 do 6 kondygnacji naziemnych oraz 1 kondygnacja podziemna.
Inwestycja Orneko jest w trakcie budowy z planowanym na 4 kw. 2027 roku terminem oddania do użytkowania.
Nowe mieszkanie o oznaczeniu AC0189 znajduje się na 1 piętrze i jest 1-poziomowe. Pomieszczenia mają od 260 do 280 centymetrów wysokości. W mieszkaniu znajduje się 1 pokój.
Okna w mieszkaniu wychodzą na południe.
Okna wychodzące na południe gwarantują maksymalną ilość naturalnego światła, co czyni wnętrza jasnymi i ciepłymi. Dodatkowo południowa ekspozycja pomaga obniżyć koszty ogrzewania w zimie. Okna na południe są idealne dla osób pragnących cieszyć się jasnym otoczeniem, które sprzyja dobremu samopoczuciu oraz pozytywnej energii.
Dla przyszłych mieszkańców Orneko deweloper przewidział miejsca postojowe podziemne, miejsca postojowe naziemne.
Dzięki temu przyszli właściciele nie będą musieli poszukiwać wolnej przestrzeni parkingowej. Dodatkowo, miejsce postojowe w garażu podziemnym zabezpiecza przed niekorzystnymi warunkami atmosferycznymi.
Opis Inwestycji
Pow. dodatkowe
Mieszkania w Warszawie już od 9.999 zł/m² – ORNEKO od EQUILIS Polska!
Nowoczesne osiedle w zielonej części Białołęki. 🌿
Tu design spotyka funkcjonalność, a natura – miejski rytm życia.
✅ Mieszkania od 25 do 145 m²
✅ Kameralna zabudowa – tylko dwa budynki
✅ Ogródki, balkony i antresole
✅ System płatności 10/90 (oferta limitowana)
Nie czekaj! Takie ceny w Warszawie szybko znikają!
👉 Sprawdź ofertę i zarezerwuj mieszkanie w przedsprzedaży już dziś.
ORNEKO to wyjątkowa inwestycja mieszkaniowa powstająca na warszawskiej Białołęce, u zbiegu ulic Orneckiej i Cieślewskich. Projekt obejmuje dwa kameralne budynki – 5- i 6-kondygnacyjne, w których zaplanowano łącznie 200 mieszkań o zróżnicowanych metrażach:
Budynek A – mieszkania od 30 do 60 m² (1–3 pokoje),
Budynek B – mieszkania od 28,7 do 145 m² (1–4 pokoje + antresole).
To przestrzeń stworzona z myślą o mieszkańcach i naturze. Pomiędzy budynkami zaplanowano plac zabaw, elementy małej architektury i bogate nasadzenia, które zmienią przestrzeń w zielony azyl.
ORNEKO oferuje ekologiczne i praktyczne rozwiązania:
● Stojaki na rowery,
● Miejsca parkingowe naziemne i podziemne wraz ze stacjami ładowania samochodów elektrycznych
● Otoczenie licznych drzew (około 100 szt.) – rzadko spotykane platany oraz dęby, lipy, sosny i modrzewie, tworząc leśną atmosferę osiedla,
Pozostałe udogodnienia:
Las na wyciągnięcie ręki
Ścieżki rowerowe wzdłuż Kanału Żerańskiego nad Jezioro Zegrzyńskie oraz przy ul. Płochocińskiej
Liczne restauracje z dobrymi opiniami w okolicy
Klub Ganador Sport: tenis badminton oraz piłka nożna - 5 minut samochodem
Dojazd do przedszkola i szkół podstawowych od 5 do 10 minut
Przystanki SKM oraz KM (Warszawa Płudy) w odległości 5 minut samochodem oraz 10 minut autobusem
Dojazd kolejką do stacji Centrum - 20 minut
Przystanek autobusowy znajduje się w odległości - 3 minuty spacerem
Poczta znajduje się w odległości 5 minut spacerem
Factory Annopol oraz CH Targówek - 10 minut samochodem
Mieszkanie znajduje się w inwestycji Orneko.





