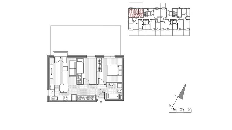
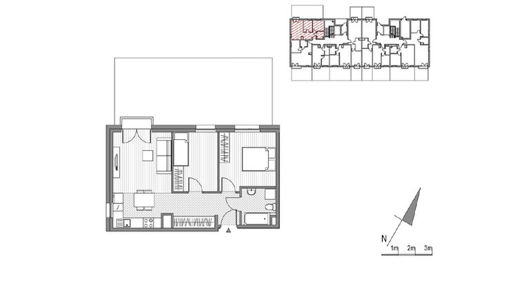
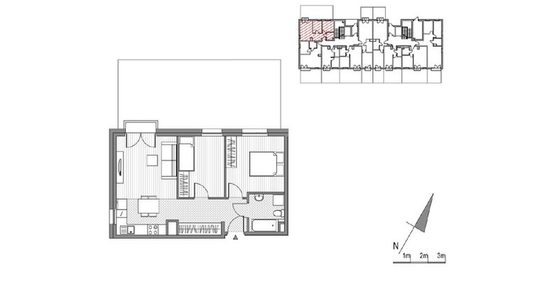
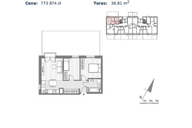
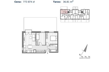
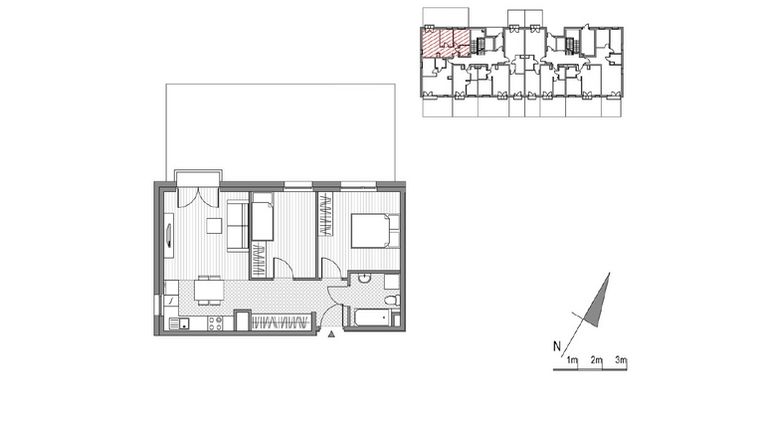
Mieszkanie na sprzedaż 3 pokoje o powierzchni 50,58 m² numer F.24
Rezerwacja
Inwestycja:
Glogera bud. F i GDeweloper:
Dom-Bud M. Szaflarski Sp. j.
Inwestycja:
Glogera bud. F i GDeweloper:
Dom-Bud M. Szaflarski Sp. j.Kraków, Prądnik Biały, ul. Zygmunta Glogera
Kraków, Prądnik Biały, ul. Zygmunta Glogera
Termin oddania
Gotowe
Ilość pokoi
3 pokoje
Metraż
50,58 m²
Piętro
Parter
Kuchnia
otwarta kuchnia
Wysokość pomieszczeń
257 cm wysokości
Ilość poziomów
1 poziom
Oznaczenie oferty
F.24

Raport o deweloperze
Poznaj dewelopera bliżej! Pobierz raport, w którym znajdziesz kluczowe informacje o firmie, jej doświadczeniu, nagrodach oraz aktualnych i zrealizowanych inwestycjach.
Budynek i otoczenie
Miejsca postojowe | |
|---|---|
Komórki lokatorskie | dostępne: są także indywidualne boksy garażowe |
Standard wykończenia | standard deweloperski |
Realizacja inwestycji | rozpoczęcie budowy w 3 kw. 2023 roku, inwestycja została oddana do użytkowania w 2 kw. 2025 roku |
Udogodnienia | informacja u dewelopera |
Przyroda | w okolicy inwestycji znajduje się rzeka |
Charakterystyka energetyczna nieruchomości |
|
Rezerwacja i finanse
Rodzaj własności | Odrębna własność z własnością gruntu |
|---|---|
Wysokość czynszu | informacja u dewelopera |
Warunki rezerwacji | Informacja u dewelopera |
Zabezpieczenie środków | Informacja u dewelopera |
Zdjęcia z budowy
Zobacz na jakim etapie budowy jest ta inwestycja
Lokalizacja inwestycji
Stacja kolejowa - Kraków Łobzów tor 304 - 2000 m
Przystanek Tramwajowy - 643 m
Przystanek Autobusowy - 216 m
Dojazd do centrum: pokaż
W pobliżu 1 km od tej inwestycji znajdują się:
9 kawiarni i restauracji, 24 sklepy, 7 obiektów sportowych, 4 placówki medyczne, 20 placówek edukacyjnych, 13 placów zabaw
Przeczytaj więcej o lokalizacji
Prądnik Biały to dzielnica IV Krakowa. Jest częścią miasta najbardziej wysuniętą na północ i zajmującą obszar 2341,87 ha. Powstała z połączenia 5 historycznych miejscowości. Zamieszkuje ją 69 135 osób. Jest jedną z tych części Krakowa, których zabudowa jest najbardziej zróżnicowana. Większość nieruchomości stanowią tu osiedla bloków mieszkalnych wzniesione w latach 60-tych, jednak uzupełnione są one blokami z wielkiej płyty powstałymi w latach 70-tych. Do tego dochodzą nowsze osiedla domów jednorodzinnych, a także domy szeregowe. Choć rozmaitość krajobrazu architektonicznego wskazuje na stały rozwój dzielnicy, to wciąż jeszcze można tu znaleźć elementy zabudowy typowo wiejskiej. W okolicy wiele jest miejsc rekreacyjnych idealnych do zabaw dla dzieci. Znajduje się tu 20 ogródków jordanowskich. W dzielnicy działa też 5 klubów sportowych. Dobrze rozbudowana jest infrastruktura oświatowa, o czym świadczy 10 funkcjonujących tu szkół i 4 zespoły szkolne. Zaletą dzielnicy jest też sieć połączeń komunikacyjnych z innymi częściami Krakowa. Działa tu łącznie 30 linii autobusowych i 5 linii tramwajowych. Przez Prądnik Biały przechodzi też droga krajowa nr 7 i droga wojewódzka nr 794.
Opis oferty
Nowe 3-pokojowe mieszkanie na sprzedaż o powierzchni 50,58 m² znajduje się w nowo budowanej inwestycji deweloperskiej Glogera bud. F i G na Prądniku Białym, ul. Zygmunta Glogera (4.1 km od centrum Krakowa).
Inwestycja jest realizowana przez Dom-Bud M. Szaflarski Sp. j.
Cała inwestycja składa się z 3 budynków, w których łącznie znajduje się 110 nowych mieszkań.
Na sprzedaż pozostaje 51 ofert o powierzchni od 32 do 95 m².
W budynkach jest 5 kondygnacji naziemnych oraz 1 kondygnacja podziemna.
Inwestycja Glogera bud. F i G została wybudowana i oddana do użytkowania w 2 kw. 2025 roku.
Nowe mieszkanie o oznaczeniu F.24 znajduje się na parterze i jest 1-poziomowe. Pomieszczenia mają 257 centymetrów wysokości. W mieszkaniu znajdują się 3 pokoje.
Dla przyszłych mieszkańców Glogera bud. F i G deweloper przewidział miejsca postojowe podziemne.
Dzięki temu przyszli właściciele nie będą musieli poszukiwać wolnej przestrzeni parkingowej. Dodatkowo, miejsce postojowe w garażu podziemnym zabezpiecza przed niekorzystnymi warunkami atmosferycznymi.
Opis Inwestycji
Okazyjna cena
Inwestycja przy ul. Glogera to idealne połączenie sielskiego klimatu obrzeży Krakowa z codzienną wygodą miejskiego życia. Nowy projekt zlokalizowany w malowniczej części Prądnika Białego to kameralne budynki o prostej a zarazem nowoczesnej bryle utrzymanej w kolorystyce inspirowanej twórczością Pieta Mondriana.
Szeroki wachlarz mieszkań o powierzchni od 28 m2 do 95 m2 sprawi, iż każdy znajdzie coś dla siebie. W dbałości o komfort klientów do mieszkań położonych na parterach oraz na ostatnich kondygnacjach zaprojektowano tarasy, a na pozostałych kondygnacjach balkony. W podziemiu znajdować się będą zamykane indywidualne boksy garażowe.
Atuty
W dbałości o komfort klientów do mieszkań położonych na parterach oraz na ostatnich kondygnacjach zaprojektowano tarasy, a na pozostałych kondygnacjach balkony. W podziemiu znajdować się będą zamykane indywidualne boksy garażowe.
Mieszkanie znajduje się w inwestycji Glogera bud. F i G, w której znajduje się w sprzedaży jeszcze 19 podobnych nowych mieszkań.
Dom-Bud M. Szaflarski Sp. j.
Strona internetowa inwestycjiAdres biura sprzedaży:
ul. Salwatorska 14, 30-109 KrakówGodziny otwarcia biura sprzedaży:
- Poniedziałek: 07:30 - 17:00
- Wtorek: 07:30 - 17:00
- Środa: 07:30 - 17:00
- Czwartek: 07:30 - 17:00
- Piątek: 07:30 - 17:00





