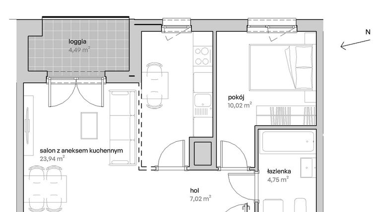
Mieszkanie na sprzedaż 2 pokoje o powierzchni 45,73 m² numer A.09.113
Inwestycja:
Unii Lubelskiej VitaDeweloper:
Develia
Inwestycja:
Unii Lubelskiej VitaDeweloper:
DeveliaPoznań, Nowe Miasto, Starołęka-Minikowo-Marlewo, ul. Unii Lubelskiej 10
Poznań, Nowe Miasto, Starołęka-Minikowo-Marlewo, ul. Unii Lubelskiej 10
Termin oddania
Gotowe
Ilość pokoi
2 pokoje
Metraż
45,73 m²
Piętro
9 piętro
Strona świata
wschód
Powierzchnie dodatkowe
Balkon
Kuchnia
otwarta kuchnia
Wysokość pomieszczeń
264 cm wysokości
Ilość poziomów
1 poziom
Oznaczenie oferty
A.09.113

Raport o deweloperze
Poznaj dewelopera bliżej! Pobierz raport, w którym znajdziesz kluczowe informacje o firmie, jej doświadczeniu, nagrodach oraz aktualnych i zrealizowanych inwestycjach.
Budynek i otoczenie
Miejsca postojowe | |
|---|---|
Komórki lokatorskie | dostępne: nieobowiązkowy zakup |
Standard wykończenia | standard deweloperski Ogrzewanie miejska sieć cieplna |
Realizacja inwestycji | rozpoczęcie budowy w 2 kw. 2024 roku, inwestycja została oddana do użytkowania w 1 kw. 2026 roku |
Udogodnienia | winda, rowerownia |
Przyroda | informacja u dewelopera |
Charakterystyka energetyczna nieruchomości |
|
Rezerwacja i finanse
Rodzaj własności | Odrębna własność z własnością gruntu |
|---|---|
Wysokość czynszu | informacja u dewelopera |
Warunki rezerwacji | Informacja u dewelopera |
Zabezpieczenie środków | Informacja u dewelopera |
Zdjęcia z budowy
Zobacz na jakim etapie budowy jest ta inwestycja
Lokalizacja inwestycji
Stacja kolejowa - Poznań Starołęka - 1192 m
Przystanek Tramwajowy - 90 m
Przystanek Autobusowy - 91 m
Dojazd do centrum: pokaż
W pobliżu 1 km od tej inwestycji znajdują się:
4 kawiarnie i restauracje, 18 sklepów, 27 obiektów sportowych, 4 placówki medyczne, 7 placówek edukacyjnych, 28 placów zabaw
Przeczytaj więcej o lokalizacji
Unii Lubelskiej Vita to najnowsza propozycja Develii w Poznaniu. Inwestycja powstaje przy ul. Unii Lubelskiej 10, na poznańskiej Starołęce, na terenie bardzo dobrze skomunikowanej dzielnicy Nowe Miasto. Jedną z największych zalet tej lokalizacji są bogate tereny zielone w najbliższej okolicy. Malowniczy Las Dębiński, oddalony jedynie o 1,5 km, jest rajem dla miłośników przyrody, oferującym możliwość aktywnego wypoczynku przez cały rok. W bliskim sąsiedztwie znajduje się też urokliwa Wartostrada: idealna trasa dla spacerowiczów i rowerzystów, biegnąca wzdłuż rzeki Warty. Nieopodal położony jest także Park Rataje, który zachwyca fascynującymi instalacjami, skansenem kolejowym oraz różnorodnymi placami zabaw. Lokalizacja projektu zapewnia niezrównaną wygodę komunikacyjną. Mieszkańcy tego obszaru mają bezpośredni dostęp do wyremontowanej pętli tramwajowej, co gwarantuje sprawny dojazd do Dworca Głównego oraz Starego Miasta, zajmujący zaledwie 20 minut. Ponadto, transportem publicznym można w łatwy i szybki sposób dotrzeć do renomowanych uczelni takich jak AWF i Politechnika Poznańska. Korzystając z rozbudowanej infrastruktury drogowej, podróże samochodem do licznych szkół oraz do 4 okolicznych galerii handlowych zajmą mniej niż 10 minut, a oddalona o ok. 2 km stacja kolejowa Poznań Starołęka umożliwia połączenie z Dworcem Głównym w zaledwie kilka minut.
Nowe Miasto to najstarsza część Poznania, którą ze wschodu na zachód przecina linia kolejowa a z północy na południe ul. Bolesława Krzywoustego. Dzielnica ma powierzchnię ponad 100 km kw na której mieszka 136 tys. mieszkańców. Dzielnicę przecinają na południu i północy drogi krajowe i europejskie E30, S11 i 92 a w odległości 7 km znajduje się Port Lotniczy Poznań-Ławica. Najbardziej atrakcyjnym pod względem przyrodniczym punktem dzielnicy jest Jezioro Maltańskie z ogrodem zoologicznym i Parkiem Tysiąclecia. Od wschodu dzielnicę pokrywają lasy miejskie. W odległości 1 km od granic dzielnicy znaleźć można Wyższą Szkołę Psychologii Społecznej, Uniwersytet im. Adama Mickiewicza, Politechnikę Poznańską czy Wyższą Szkołę Umiejętności Społecznych. W samej dzielnicy i w promieniu 500 metrów znajdują się szpitale Szpital-Przychodnia Celsus, Wielospecjalistyczny Szpital Miejski, ZOZ Poznań-Nowe Miasto, Ortopedyczno-Rehabilitacyjny Szpital Kliniczny czy Specjalistyczny Zespół Opieki Zdrowotnej.
Opis oferty
Nowe 2-pokojowe mieszkanie na sprzedaż o powierzchni 45,73 m² znajduje się w nowo budowanej inwestycji deweloperskiej Unii Lubelskiej Vita na Starołęce-Minikowie-Marlewie, ul. Unii Lubelskiej 10 (4.1 km od centrum Poznania).
Inwestycja jest realizowana przez Develia.
Cała inwestycja składa się z 1 budynku, w którym łącznie znajduje się 285 nowych mieszkań.
Na sprzedaż pozostaje 56 ofert o powierzchni od 44 do 81 m².
W budynku jest od 5 do 13 kondygnacji naziemnych oraz 2 kondygnacje podziemne.
Inwestycja Unii Lubelskiej Vita została wybudowana i oddana do użytkowania w 1 kw. 2026 roku.
Nowe mieszkanie o oznaczeniu A.09.113 znajduje się na 9 piętrze i jest 1-poziomowe. Pomieszczenia mają 264 centymetrów wysokości. W mieszkaniu znajdują się 2 pokoje.
Okna w mieszkaniu wychodzą na wschód.
Wschodnia orientacja zapewnia dostęp do łagodnego porannego światła, idealnego dla rozpoczęcia dnia pełnego energii. Wnętrza pozostają jasne, ale nieprzegrzane, co sprzyja utrzymaniu komfortowej temperatury. Przebywanie w pomieszczeniu z oknami na wschód inspiruje do działania i pozytywnie wpływa na poranny rytuał.
Dla przyszłych mieszkańców Unii Lubelskiej Vita deweloper przewidział miejsca postojowe podziemne.
Dzięki temu przyszli właściciele nie będą musieli poszukiwać wolnej przestrzeni parkingowej. Dodatkowo, miejsce postojowe w garażu podziemnym zabezpiecza przed niekorzystnymi warunkami atmosferycznymi.
Opis Inwestycji
Okazyjna cena
Pow. dodatkowe
Położona w popularnej lokalizacji na Starołęce w Poznaniu inwestycja Unii Lubelskiej Vita została zaprojektowana z myślą o nowoczesności i komforcie.
Powstanie 285 mieszkań w budynku o atrakcyjnej architekturze, liczącym od 5 do 13 kondygnacji. Bogaty wybór lokali o różnych metrażach mieszczących od 1 do 4 pokoi sprawia, że oferta ta jest idealna dla rodzin, par, singli oraz osób poszukujących inwestycji pod wynajem.
Dwupoziomowy garaż podziemny z niezależnym wjazdem na każdą kondygnację zapewnia 291 stanowisk postojowych, w tym 8 dostępnych dla osób z niepełnosprawnościami, a na terenie inwestycji utworzone będą także 3 naziemne miejsca parkingowe oraz stojaki dla rowerów. Na parterze przewidziano też 7 lokali usługowych, co dodatkowo podniesie komfort życia mieszkańców.
Inwestycja zapewnia także strefy rekreacyjne z urządzeniami dla dzieci i dorosłych, otoczone zielenią i elementami małej architektury. Nawierzchnia utwardzona została zaprojektowana tak, aby przepuszczać wody opadowe i roztopowe, co przyczyni się do zachowania ekologicznej równowagi.
Koncepcja architektoniczna Unii Lubelskiej Vita zakłada też duży nacisk na tereny zielone i ograniczenie ruchu kołowego, co sprzyjać będzie spokojnej atmosferze i aktywnemu wypoczynkowi mieszkańców.
Termin zakończenia budowy osiedla zaplanowany jest na I kwartał 2026 r.
Atuty
• Szeroki wybór mieszkań od kawalerek po 4-pokojowe
• Siedem lokali usługowych na parterze
• Atrakcyjna lokalizacja na poznańskiej Starołęce
• Sąsiedztwo terenów zielonych
• Lokalizacja bezpośrednio przy pętli tramwajowej
Szczegóły inwestycji oraz pełna oferta dostępne są na stronie internetowej:
https://develia.pl/pl/
Mieszkanie znajduje się w inwestycji Unii Lubelskiej Vita, w której znajduje się w sprzedaży jeszcze 18 podobnych nowych mieszkań.
Develia
Strona internetowa inwestycjiAdres biura sprzedaży:
ul. Bóźnicza 1, 61-751 Poznań (lokal usługowy 204).Godziny otwarcia biura sprzedaży:
- Poniedziałek: 10:00 - 18:00
- Wtorek: 10:00 - 18:00
- Środa: 10:00 - 18:00
- Czwartek: 10:00 - 18:00
- Piątek: 10:00 - 18:00
- Sobota: 10:00 - 15:00





