Mieszkanie na sprzedaż 2 pokoje o powierzchni 38,72 m² numer 1/A/2/12
Inwestycja:
Sochaczewska VitaDeweloper:
Develia
Inwestycja:
Sochaczewska VitaDeweloper:
DeveliaWarszawa, Bemowo, Chrzanów, ul. Sochaczewska 12
Warszawa, Bemowo, Chrzanów, ul. Sochaczewska 12
Termin oddania
4 kw. 2027
Ilość pokoi
2 pokoje
Metraż
38,72 m²
Piętro
1 piętro
Strona świata
zachód
Wysokość pomieszczeń
od 268 do 270 cm wysokości
Ilość poziomów
1 poziom
Oznaczenie oferty
1/A/2/12

Raport o deweloperze
Poznaj dewelopera bliżej! Pobierz raport, w którym znajdziesz kluczowe informacje o firmie, jej doświadczeniu, nagrodach oraz aktualnych i zrealizowanych inwestycjach.
Budynek i otoczenie
Miejsca postojowe | |
|---|---|
Komórki lokatorskie | dostępne (32): obowiązkowy zakup; od 2,22 do 7,72 m2; od 17 000 do 26 000 zł |
Standard wykończenia | standard deweloperski Ogrzewanie kotłownia gazowa |
Realizacja inwestycji | oddanie do użytkowania w 4 kw. 2027 roku |
Udogodnienia | winda, plac zabaw, rowerownia |
Przyroda | informacja u dewelopera |
Charakterystyka energetyczna nieruchomości | informacja u dewelopera |
Rezerwacja i finanse
Rodzaj własności | Odrębna własność z własnością gruntu |
|---|---|
Wysokość czynszu | informacja u dewelopera |
Warunki rezerwacji | Informacja u dewelopera |
Zabezpieczenie środków | Otwarty mieszkaniowy rachunek powierniczy |

Zdjęcia z budowy i widok 3D
Zobacz na jakim etapie budowy jest ta inwestycja
Lokalizacja inwestycji
Metro - Bemowo - 2999 m
Przystanek Tramwajowy - 2183 m
Przystanek Autobusowy - 351 m
Dojazd do centrum: pokaż
W pobliżu 1 km od tej inwestycji znajdują się:
9 kawiarni i restauracji, 14 sklepów, 9 obiektów sportowych, 2 placówki medyczne, 8 placówek edukacyjnych, 16 placów zabaw
Przeczytaj więcej o lokalizacji
Lokalizacja i otoczenie Inwestycja to idealny adres dla osób ceniących mobilność i pełną infrastrukturę miejską: • Komunikacja: Dzięki nowej stacji metra oraz bliskości trasy S8, dojazd do centrum Warszawy czy wyjazd z miasta będzie szybki i bezproblemowy. • Wszystko pod ręką: W najbliższym sąsiedztwie działają sklepy, punkty usługowe oraz placówki edukacyjne (szkoły i przedszkola). • Natura i rekreacja: Okolica sprzyja aktywnemu wypoczynkowi – do Parku Górczewska dojedziesz w 10 minut rowerem, a w 20 minut samochodem dotrzesz do Kampinoskiego Parku Narodowego.
Rozciągająca się u zachodnich granic Warszawy dzielnica Bemowo to miejsce zamieszkania ok. 116 tys. ludzi. Zabudowa mieszkaniowa jest dość zróżnicowana. Do architektury z okresu międzywojennego należą: skupisko domów jednorodzinnych Boernerowo oraz fragment miasta-ogrodu Stare Jelonki. Wysokie bloki występują na osiedlach: Lazurowa, Jelonki, Górczewska czy Nowe Bemowo. Z kolei Groty, Górce i Chrzanów to tereny, na których obecnie rozwija się nowoczesne budownictwo. Charakterystycznymi miejscami Bemowa są obiekty wojskowe lub lotnicze: zabytkowe forty (Fort Radiowo, Fort Bema, Fort Blizne), Lotnisko Babice, Wojskowe Zakłady Lotnicze oraz Wojskowa Akademia Techniczna. Na lotnisku organizowane są widowiska i koncerty o charakterze masowym, zaś zieloną strefę dzielnicy stanowi Las Bemowski. Dogodny dojazd do centrum umożliwiają: dobrze rozwinięta sieć dróg, linie autobusowe i tramwajowe oraz II linia metra. Do najważniejszych arterii należą ulice: Połczyńska, Górczewska oraz Powstańców Śląskich.
Opis oferty
Nowe 2-pokojowe mieszkanie na sprzedaż o powierzchni 38,72 m² znajduje się w nowo wybudowanej inwestycji deweloperskiej Sochaczewska Vita na Chrzanowie, ul. Sochaczewska 12 (8.6 km od centrum Warszawy).
Inwestycja została zrealizowana przez Develia.
Cała inwestycja składa się z 2 budynków, w których łącznie znajduje się 91 nowych mieszkań.
Na sprzedaż pozostaje 57 ofert o powierzchni od 32 do 82 m².
W budynkach są 4 kondygnacje naziemne oraz 1 kondygnacja podziemna.
Inwestycja Sochaczewska Vita jest w trakcie budowy z planowanym na 4 kw. 2027 roku terminem oddania do użytkowania.
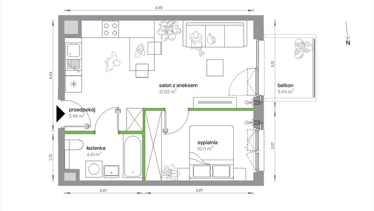
Nowe mieszkanie o oznaczeniu 1/A/2/12 znajduje się na 1 piętrze i jest 1-poziomowe. Pomieszczenia mają od 268 do 270 centymetrów wysokości. W mieszkaniu znajdują się 2 pokoje.
Do mieszkania przewidziano możliwość zakupu komórki lokatorskiej, którą można zagospodarować na spiżarnię, warsztat czy składzik.
Okna w mieszkaniu wychodzą na zachód.
Zachodnia ekspozycja to gwarancja intensywnego popołudniowego światła, które nadaje wnętrzom przytulności i ciepła. Idealne dla miłośników słonecznych wieczorów, którzy pragną cieszyć się pięknymi zachodami słońca we własnym domu. Zachodnie światło podkreśla kolory i faktury w aranżacji wnętrz, tworząc atmosferę sprzyjającą relaksowi po długim dniu.
Dla przyszłych mieszkańców Sochaczewska Vita deweloper przewidział miejsca postojowe naziemne.
Dzięki temu przyszli właściciele nie będą musieli poszukiwać wolnej przestrzeni parkingowej.
Opis Inwestycji
Sochaczewska Vita – zamieszkaj tuż przy metrze Karolin
Atuty inwestycji:
• Lokalizacja: Bezpośrednio przy budowanej stacji metra Karolin.
• Niska zabudowa: Kameralne budynki o nowoczesnej architekturze.
• Przestrzeń dodatkowa: Balkon, loggia, taras lub ogródek do każdego lokalu.
• Duży wybór: Funkcjonalne metraże od 30 do 133 mkw. i lokale dwupoziomowe.
• Doświetlenie: Ponadstandardowe przeszklenia w każdym pokoju.
• Bezpieczeństwo: Zielone dziedzińce bez ruchu aut i plac zabaw dla dzieci.
• Komunikacja: Szybki dojazd do trasy S8 oraz ulic Lazurowej i Połczyńskiej.
Sochaczewska Vita to nowa, kameralna inwestycja na warszawskim Bemowie (Chrzanów). Projekt łączy nowoczesną architekturę z przyjaznym, niskim charakterem zabudowy, idealnie wpisując się w potrzeby osób szukających balansu między miastem a spokojem.
W ramach pierwszego etapu zostaną wzniesione dwa czterokondygnacyjne budynki, w których powstanie łącznie 91 mieszkań. Oferta obejmuje zarówno funkcjonalne lokale kompaktowe, jak i przestronne apartamenty rodzinne. Na terenie osiedla zaplanowano pełną infrastrukturę: podziemną halę garażową, lokale usługowe na parterze oraz liczne udogodnienia dla rowerzystów.
Mieszkanie znajduje się w inwestycji Sochaczewska Vita, w której znajdują się w sprzedaży jeszcze 52 podobne nowe mieszkania.
Develia
Strona internetowa inwestycjiAdres biura sprzedaży:
ul. Człuchowska 49, lok. U3/U4, 01-360 WarszawaGodziny otwarcia biura sprzedaży:
- Poniedziałek: 10:00 - 18:00
- Wtorek: 10:00 - 18:00
- Środa: 10:00 - 18:00
- Czwartek: 10:00 - 18:00
- Piątek: 09:00 - 17:00
- Sobota: 10:00 - 15:00





