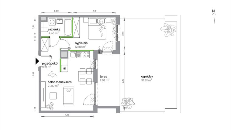
Mieszkanie na sprzedaż 2 pokoje o powierzchni 44,63 m² numer 1/A/1/3
Inwestycja:
Sochaczewska VitaDeweloper:
Develia
Inwestycja:
Sochaczewska VitaDeweloper:
DeveliaWarszawa, Bemowo, Chrzanów, ul. Sochaczewska 12
Warszawa, Bemowo, Chrzanów, ul. Sochaczewska 12
Termin oddania
4 kw. 2027
Ilość pokoi
2 pokoje
Metraż
44,63 m²
Piętro
Parter
Strona świata
wschód
Wysokość pomieszczeń
od 268 do 270 cm wysokości
Ilość poziomów
1 poziom
Oznaczenie oferty
1/A/1/3

Raport o deweloperze
Poznaj dewelopera bliżej! Pobierz raport, w którym znajdziesz kluczowe informacje o firmie, jej doświadczeniu, nagrodach oraz aktualnych i zrealizowanych inwestycjach.
Budynek i otoczenie
Miejsca postojowe | |
|---|---|
Komórki lokatorskie | dostępne (32): obowiązkowy zakup; od 2,22 do 7,72 m2; od 17 000 do 26 000 zł |
Standard wykończenia | standard deweloperski Ogrzewanie kotłownia gazowa |
Realizacja inwestycji | oddanie do użytkowania w 4 kw. 2027 roku |
Udogodnienia | winda, plac zabaw, rowerownia |
Przyroda | informacja u dewelopera |
Charakterystyka energetyczna nieruchomości | informacja u dewelopera |
Rezerwacja i finanse
Rodzaj własności | Odrębna własność z własnością gruntu |
|---|---|
Wysokość czynszu | informacja u dewelopera |
Warunki rezerwacji | Informacja u dewelopera |
Zabezpieczenie środków | Otwarty mieszkaniowy rachunek powierniczy |

Zdjęcia z budowy i widok 3D
Zobacz na jakim etapie budowy jest ta inwestycja
Lokalizacja inwestycji
Metro - Bemowo - 2999 m
Przystanek Tramwajowy - 2183 m
Przystanek Autobusowy - 351 m
Dojazd do centrum: pokaż
W pobliżu 1 km od tej inwestycji znajdują się:
9 kawiarni i restauracji, 14 sklepów, 9 obiektów sportowych, 2 placówki medyczne, 8 placówek edukacyjnych, 16 placów zabaw
Przeczytaj więcej o lokalizacji
Lokalizacja i otoczenie Inwestycja to idealny adres dla osób ceniących mobilność i pełną infrastrukturę miejską: • Komunikacja: Dzięki nowej stacji metra oraz bliskości trasy S8, dojazd do centrum Warszawy czy wyjazd z miasta będzie szybki i bezproblemowy. • Wszystko pod ręką: W najbliższym sąsiedztwie działają sklepy, punkty usługowe oraz placówki edukacyjne (szkoły i przedszkola). • Natura i rekreacja: Okolica sprzyja aktywnemu wypoczynkowi – do Parku Górczewska dojedziesz w 10 minut rowerem, a w 20 minut samochodem dotrzesz do Kampinoskiego Parku Narodowego.
Rozciągająca się u zachodnich granic Warszawy dzielnica Bemowo to miejsce zamieszkania ok. 116 tys. ludzi. Zabudowa mieszkaniowa jest dość zróżnicowana. Do architektury z okresu międzywojennego należą: skupisko domów jednorodzinnych Boernerowo oraz fragment miasta-ogrodu Stare Jelonki. Wysokie bloki występują na osiedlach: Lazurowa, Jelonki, Górczewska czy Nowe Bemowo. Z kolei Groty, Górce i Chrzanów to tereny, na których obecnie rozwija się nowoczesne budownictwo. Charakterystycznymi miejscami Bemowa są obiekty wojskowe lub lotnicze: zabytkowe forty (Fort Radiowo, Fort Bema, Fort Blizne), Lotnisko Babice, Wojskowe Zakłady Lotnicze oraz Wojskowa Akademia Techniczna. Na lotnisku organizowane są widowiska i koncerty o charakterze masowym, zaś zieloną strefę dzielnicy stanowi Las Bemowski. Dogodny dojazd do centrum umożliwiają: dobrze rozwinięta sieć dróg, linie autobusowe i tramwajowe oraz II linia metra. Do najważniejszych arterii należą ulice: Połczyńska, Górczewska oraz Powstańców Śląskich.
Opis oferty
Nowe 2-pokojowe mieszkanie na sprzedaż o powierzchni 44,63 m² znajduje się w nowo wybudowanej inwestycji deweloperskiej Sochaczewska Vita na Chrzanowie, ul. Sochaczewska 12 (8.6 km od centrum Warszawy).
Inwestycja została zrealizowana przez Develia.
Cała inwestycja składa się z 2 budynków, w których łącznie znajduje się 91 nowych mieszkań.
Na sprzedaż pozostaje 57 ofert o powierzchni od 32 do 82 m².
W budynkach są 4 kondygnacje naziemne oraz 1 kondygnacja podziemna.
Inwestycja Sochaczewska Vita jest w trakcie budowy z planowanym na 4 kw. 2027 roku terminem oddania do użytkowania.
Nowe mieszkanie o oznaczeniu 1/A/1/3 znajduje się na parterze i jest 1-poziomowe. Pomieszczenia mają od 268 do 270 centymetrów wysokości. W mieszkaniu znajdują się 2 pokoje.
Do mieszkania przewidziano możliwość zakupu komórki lokatorskiej, którą można zagospodarować na spiżarnię, warsztat czy składzik.
Okna w mieszkaniu wychodzą na wschód.
Wschodnia orientacja zapewnia dostęp do łagodnego porannego światła, idealnego dla rozpoczęcia dnia pełnego energii. Wnętrza pozostają jasne, ale nieprzegrzane, co sprzyja utrzymaniu komfortowej temperatury. Przebywanie w pomieszczeniu z oknami na wschód inspiruje do działania i pozytywnie wpływa na poranny rytuał.
Dla przyszłych mieszkańców Sochaczewska Vita deweloper przewidział miejsca postojowe naziemne.
Dzięki temu przyszli właściciele nie będą musieli poszukiwać wolnej przestrzeni parkingowej.
Opis Inwestycji
Sochaczewska Vita – zamieszkaj tuż przy metrze Karolin
Atuty inwestycji:
• Lokalizacja: Bezpośrednio przy budowanej stacji metra Karolin.
• Niska zabudowa: Kameralne budynki o nowoczesnej architekturze.
• Przestrzeń dodatkowa: Balkon, loggia, taras lub ogródek do każdego lokalu.
• Duży wybór: Funkcjonalne metraże od 30 do 133 mkw. i lokale dwupoziomowe.
• Doświetlenie: Ponadstandardowe przeszklenia w każdym pokoju.
• Bezpieczeństwo: Zielone dziedzińce bez ruchu aut i plac zabaw dla dzieci.
• Komunikacja: Szybki dojazd do trasy S8 oraz ulic Lazurowej i Połczyńskiej.
Sochaczewska Vita to nowa, kameralna inwestycja na warszawskim Bemowie (Chrzanów). Projekt łączy nowoczesną architekturę z przyjaznym, niskim charakterem zabudowy, idealnie wpisując się w potrzeby osób szukających balansu między miastem a spokojem.
W ramach pierwszego etapu zostaną wzniesione dwa czterokondygnacyjne budynki, w których powstanie łącznie 91 mieszkań. Oferta obejmuje zarówno funkcjonalne lokale kompaktowe, jak i przestronne apartamenty rodzinne. Na terenie osiedla zaplanowano pełną infrastrukturę: podziemną halę garażową, lokale usługowe na parterze oraz liczne udogodnienia dla rowerzystów.
Mieszkanie znajduje się w inwestycji Sochaczewska Vita, w której znajdują się w sprzedaży jeszcze 52 podobne nowe mieszkania.
Develia
Strona internetowa inwestycjiAdres biura sprzedaży:
ul. Człuchowska 49, lok. U3/U4, 01-360 WarszawaGodziny otwarcia biura sprzedaży:
- Poniedziałek: 10:00 - 18:00
- Wtorek: 10:00 - 18:00
- Środa: 10:00 - 18:00
- Czwartek: 10:00 - 18:00
- Piątek: 09:00 - 17:00
- Sobota: 10:00 - 15:00





