Termin oddania
3 kw. 2027
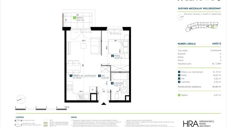
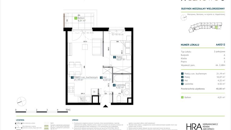
Ilość pokoi
2 pokoje
Metraż
40 m²
Piętro
2 piętro
Powierzchnie dodatkowe
Balkon
Kuchnia
otwarta kuchnia
Wysokość pomieszczeń
od 260 do 280 cm wysokości
Ilość poziomów
1 poziom
Oznaczenie oferty
AA0212

Raport o deweloperze
Poznaj dewelopera bliżej! Pobierz raport, w którym znajdziesz kluczowe informacje o firmie, jej doświadczeniu, nagrodach oraz aktualnych i zrealizowanych inwestycjach.
Budynek i otoczenie
Miejsca postojowe | |
|---|---|
Standard wykończenia | standard deweloperski |
Realizacja inwestycji | rozpoczęcie budowy w 4 kw. 2024 roku, planowane oddanie do użytkowania w 3 kw. 2027 roku |
Udogodnienia | winda, inteligentny dom, instalacja fotowoltaiczna |
Przyroda | informacja u dewelopera |
Charakterystyka energetyczna nieruchomości | informacja u dewelopera |
Rezerwacja i finanse
Rodzaj własności | Odrębna własność z własnością gruntu |
|---|---|
Wysokość czynszu | informacja u dewelopera |
Warunki rezerwacji | Informacja u dewelopera |
Zabezpieczenie środków | Informacja u dewelopera |

Zdjęcia z budowy i widok 3D
Zobacz na jakim etapie budowy jest ta inwestycja
Lokalizacja inwestycji
Metro - Bemowo - 2414 m
Przystanek Tramwajowy - 1644 m
Przystanek Autobusowy - 360 m
Dojazd do centrum: pokaż
W pobliżu 1 km od tej inwestycji znajdują się:
18 kawiarni i restauracji, 27 sklepów, 29 obiektów sportowych, 6 placówek medycznych, 27 placówek edukacyjnych, 35 placów zabaw
Przeczytaj więcej o lokalizacji
Rozciągająca się u zachodnich granic Warszawy dzielnica Bemowo to miejsce zamieszkania ok. 116 tys. ludzi. Zabudowa mieszkaniowa jest dość zróżnicowana. Do architektury z okresu międzywojennego należą: skupisko domów jednorodzinnych Boernerowo oraz fragment miasta-ogrodu Stare Jelonki. Wysokie bloki występują na osiedlach: Lazurowa, Jelonki, Górczewska czy Nowe Bemowo. Z kolei Groty, Górce i Chrzanów to tereny, na których obecnie rozwija się nowoczesne budownictwo. Charakterystycznymi miejscami Bemowa są obiekty wojskowe lub lotnicze: zabytkowe forty (Fort Radiowo, Fort Bema, Fort Blizne), Lotnisko Babice, Wojskowe Zakłady Lotnicze oraz Wojskowa Akademia Techniczna. Na lotnisku organizowane są widowiska i koncerty o charakterze masowym, zaś zieloną strefę dzielnicy stanowi Las Bemowski. Dogodny dojazd do centrum umożliwiają: dobrze rozwinięta sieć dróg, linie autobusowe i tramwajowe oraz II linia metra. Do najważniejszych arterii należą ulice: Połczyńska, Górczewska oraz Powstańców Śląskich.
Opis oferty
Nowe 2-pokojowe mieszkanie na sprzedaż o powierzchni 40 m² znajduje się w nowo budowanej inwestycji deweloperskiej M Bemowo na Chrzanowie, ul. Szeligowska (8.1 km od centrum Warszawy).
Inwestycja jest realizowana przez Develia.
Cała inwestycja składa się z 2 budynków, w których łącznie znajduje się 255 nowych mieszkań.
Na sprzedaż pozostaje 109 ofert o powierzchni od 26 do 108 m².
W budynkach są 4 kondygnacje naziemne oraz 1 kondygnacja podziemna.
Inwestycja M Bemowo jest w trakcie budowy z planowanym na 3 kw. 2027 roku terminem oddania do użytkowania.
Nowe mieszkanie o oznaczeniu AA0212 znajduje się na 2 piętrze i jest 1-poziomowe. Pomieszczenia mają od 260 do 280 centymetrów wysokości. W mieszkaniu znajdują się 2 pokoje.
Dla przyszłych mieszkańców M Bemowo deweloper przewidział miejsca postojowe podziemne.
Dzięki temu przyszli właściciele nie będą musieli poszukiwać wolnej przestrzeni parkingowej. Dodatkowo, miejsce postojowe w garażu podziemnym zabezpiecza przed niekorzystnymi warunkami atmosferycznymi.
Opis Inwestycji
Okazyjna cena
Pow. dodatkowe
LOKALIZACJA
M Bemowo 3 powstaje na warszawskim Bemowie – jednej z najszybciej rozwijających się dzielnic stolicy, cenionej za balans między miejską energią a dostępem do zieleni i miejsc rekreacji. Inwestycja zlokalizowana jest w bezpośrednim sąsiedztwie dwóch nowo budowanych stacji metra – Chrzanów i Karolin, co zapewni szybki i wygodny dojazd do Śródmieścia oraz pozostałych części Warszawy. W promieniu kilku minut spacerem znajdują się również przystanki autobusowe, sklepy spożywcze, punkty usługowe, apteki, restauracje, a także placówki edukacyjne – żłobki, przedszkola oraz szkoły podstawowe.
Zaledwie 8 minut dzieli mieszkańców od popularnego Parku Górczewska – idealnego miejsca na spacery i aktywność fizyczną. W podobnej odległości znajduje się także naturalne kąpielisko Glinianki Sznajdra oraz centrum handlowe Fort Wola. Rodziny z dziećmi docenią bliskość placów zabaw, terenów sportowych i miejskich instytucji kultury, takich jak Bemowskie Centrum Kultury. Lokalizacja oferuje również dogodny dostęp do tras wylotowych – m.in. ulicy Lazurowej, Połczyńskiej oraz drogi S8 – co pozwala na sprawne poruszanie się także poza granicami miasta.
OFERTA
W ramach inwestycji M Bemowo 3 zaprojektowano 59 nowoczesnych mieszkań o powierzchniach od 35 do 100 m². Dostępne są zarówno kompaktowe 2-pokojowe lokale „na start”, jak i przestronne 4-pokojowe mieszkania idealne dla rodzin. Wszystkie lokale wyposażone są w balkony, loggie lub ogródki, a duże przeszklenia zapewniają naturalne doświetlenie wnętrz.
Budynek utrzymany jest w nowoczesnym, minimalistycznym stylu z eleganckimi akcentami drewna, szkła i zieleni. Dla komfortu mieszkańców przewidziano teren rekreacyjny, zieloną strefę relaksu, a także udogodnienia takie jak stanowisko do ładowania samochodów elektrycznych, stojaki i stacja naprawy rowerów czy panele fotowoltaiczne.
ATUTY
Atuty inwestycji
• Szeroki wybór mieszkań z balkonami, tarasami lub ogródkami
• Komfortowe, funkcjonalne układy mieszkań
• System smart home w standardzie
• Rozwiązania przyjazne środowisku
• 8 minut pieszo do realizowanej stacji metra Chrzanów
• Doskonałe połączenie komunikacyjne z innymi częściami Warszawy
• Bliskość placówek edukacyjnych, sklepów i punktów usługowych.
Mieszkanie znajduje się w inwestycji M Bemowo, w której znajdują się w sprzedaży jeszcze 83 podobne nowe mieszkania.
Develia
Strona internetowa inwestycjiAdres biura sprzedaży:
ul. Człuchowska 49, lok. U3/U4, 01-360 WarszawaGodziny otwarcia biura sprzedaży:
- Poniedziałek: 10:00 - 18:00
- Wtorek: 10:00 - 18:00
- Środa: 10:00 - 18:00
- Czwartek: 10:00 - 18:00
- Piątek: 09:00 - 17:00





