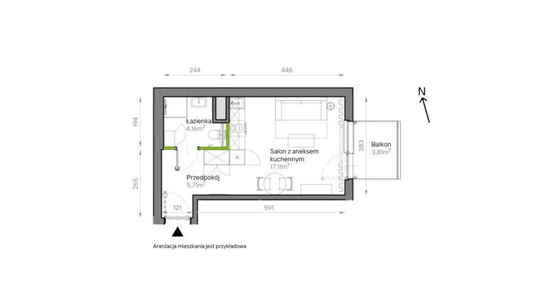
Mieszkanie na sprzedaż 1 pokój o powierzchni 26,98 m² numer A2/30
Inwestycja:
Bemowo VitaDeweloper:
Develia
Inwestycja:
Bemowo VitaDeweloper:
DeveliaWarszawa, Bemowo, Chrzanów, ul. Szeligowska 59
Warszawa, Bemowo, Chrzanów, ul. Szeligowska 59
Termin oddania
4 kw. 2027
Ilość pokoi
1 pokój
Metraż
26,98 m²
Piętro
3 piętro
Wysokość pomieszczeń
262 cm wysokości
Ilość poziomów
1 poziom
Oznaczenie oferty
A2/30

Raport o deweloperze
Poznaj dewelopera bliżej! Pobierz raport, w którym znajdziesz kluczowe informacje o firmie, jej doświadczeniu, nagrodach oraz aktualnych i zrealizowanych inwestycjach.
Budynek i otoczenie
Miejsca postojowe | |
|---|---|
Komórki lokatorskie | dostępne (37) |
Standard wykończenia | standard deweloperski Ogrzewanie miejskie |
Realizacja inwestycji | rozpoczęcie budowy w 1 kw. 2024 roku, planowane oddanie do użytkowania w 4 kw. 2027 roku |
Udogodnienia | plac zabaw, monitoring, teren ogrodzony, klimatyzacja, winda, rowerownia |
Przyroda | informacja u dewelopera |
Charakterystyka energetyczna nieruchomości | informacja u dewelopera |
Rezerwacja i finanse
Rodzaj własności | Odrębna własność z własnością gruntu |
|---|---|
Wysokość czynszu | informacja u dewelopera |
Warunki rezerwacji | -umowa rezerwacyjna
-3000zł bezzwrotne, na okres 30/60dni |
Zabezpieczenie środków | Otwarty mieszkaniowy rachunek powierniczy |
Zdjęcia z budowy
Zobacz na jakim etapie budowy jest ta inwestycja
Lokalizacja inwestycji
Metro - Bemowo - 2472 m
Przystanek Tramwajowy - 1659 m
Przystanek Autobusowy - 190 m
Dojazd do centrum: pokaż
W pobliżu 1 km od tej inwestycji znajdują się:
8 kawiarni i restauracji, 21 sklepów, 8 obiektów sportowych, 5 placówek medycznych, 17 placówek edukacyjnych, 25 placów zabaw
Przeczytaj więcej o lokalizacji
Bemowo Vita to nowoczesny projekt mieszkaniowy, realizowany przez firmę Develia przy ul. Szeligowskiej 59 na zielonym Chrzanowie. Osiedle usytuowane jest na malowniczym terenie, zaledwie o krok od przyszłej stacji Metra Chrzanów. Gwarantuje to szybkie i wygodne połączenie z każdą częścią miasta, podobnie jak inne ważne ciągi komunikacyjne w okolicy - trasa S8 oraz ulice Lazurowa i Połczyńska. Inwestycja powstaje w okolicy o rozbudowanej infrastrukturze lokalnej. W sąsiedztwie znajdują się centrum handlowe, liczne sklepy, punkty usługowe, żłobki, przedszkola, szkoły, a także obiekty sportowe i placówki zdrowia. Nie brakuje tu też terenów zielonych i rekreacyjnych.
Rozciągająca się u zachodnich granic Warszawy dzielnica Bemowo to miejsce zamieszkania ok. 116 tys. ludzi. Zabudowa mieszkaniowa jest dość zróżnicowana. Do architektury z okresu międzywojennego należą: skupisko domów jednorodzinnych Boernerowo oraz fragment miasta-ogrodu Stare Jelonki. Wysokie bloki występują na osiedlach: Lazurowa, Jelonki, Górczewska czy Nowe Bemowo. Z kolei Groty, Górce i Chrzanów to tereny, na których obecnie rozwija się nowoczesne budownictwo. Charakterystycznymi miejscami Bemowa są obiekty wojskowe lub lotnicze: zabytkowe forty (Fort Radiowo, Fort Bema, Fort Blizne), Lotnisko Babice, Wojskowe Zakłady Lotnicze oraz Wojskowa Akademia Techniczna. Na lotnisku organizowane są widowiska i koncerty o charakterze masowym, zaś zieloną strefę dzielnicy stanowi Las Bemowski. Dogodny dojazd do centrum umożliwiają: dobrze rozwinięta sieć dróg, linie autobusowe i tramwajowe oraz II linia metra. Do najważniejszych arterii należą ulice: Połczyńska, Górczewska oraz Powstańców Śląskich.
Opis oferty
Nowe 1-pokojowe mieszkanie na sprzedaż o powierzchni 26,98 m² znajduje się w nowo budowanej inwestycji deweloperskiej Bemowo Vita na Chrzanowie, ul. Szeligowska 59 (8.7 km od centrum Warszawy).
Inwestycja jest realizowana przez Develia.
Cała inwestycja składa się z 2 budynków, w których łącznie znajdują się 684 nowe mieszkania.
Na sprzedaż pozostają 62 oferty o powierzchni od 27 do 77 m².
W budynkach jest 6 kondygnacji naziemnych oraz 1 kondygnacja podziemna.
Inwestycja Bemowo Vita jest w trakcie budowy z planowanym na 4 kw. 2027 roku terminem oddania do użytkowania.
Nowe mieszkanie o oznaczeniu A2/30 znajduje się na 3 piętrze i jest 1-poziomowe. Pomieszczenia mają 262 centymetrów wysokości. W mieszkaniu znajduje się 1 pokój.
Do mieszkania przewidziano możliwość zakupu komórki lokatorskiej, którą można zagospodarować na spiżarnię, warsztat czy składzik.
Dla przyszłych mieszkańców Bemowo Vita deweloper przewidział miejsca postojowe podziemne, miejsca postojowe naziemne.
Dzięki temu przyszli właściciele nie będą musieli poszukiwać wolnej przestrzeni parkingowej. Dodatkowo, miejsce postojowe w garażu podziemnym zabezpiecza przed niekorzystnymi warunkami atmosferycznymi.
Opis Inwestycji
Kup mieszkanie – my zajmiemy się wynajmem!
Kup mieszkanie w Develii, a my zajmiemy się jego wynajmem! W promocji „Pół roku najmu za 1 zł” zapewniamy znalezienie pierwszego najemcy i pół roku obsługi najmu za jedyne 1 zł!
Szczegóły oferty w biurze sprzedaży.
Oferta:
Aktualna oferta osiedla obejmuje pięć 6/7- kondygnacyjnych budynków z ogródkami, przestronnymi loggiami, tarasami, balkonami i podziemnymi parkingami. Znajdzie się w nich łącznie 477 funkcjonalnych mieszkań o powierzchni od 25 do 85 m² i rozkładach od 1 do 4 pokoi. Projekt uwzględnia liczne udogodnienia dla mieszkańców, w tym podziemne parkingi oraz stojaki na rowery. Przestrzenie zewnętrzne osiedla zostaną zagospodarowane starannie zaaranżowaną zielenią. Dla najmłodszych powstanie również specjalna strefa zabaw.
Atuty:
• Doskonała lokalizacja przy realizowanej stacji Metra Chrzanów
• Elegancka, spójna architektura
• Budynki z ogródkami, loggiami/tarasami/balkonami i podziemnymi parkingami
• Ogrody deszczowe i liczne ekologiczne rozwiązania
• Tereny do aktywności i rekreacji
Terminy zakończenia:
I etap – II kwartał 2025 r. (zakończony)
II etap – II kwartał 2026 r.
III etap – II kwartał 2027 r.
Niniejszy materiał nie stanowi oferty w rozumieniu Kodeksu cywilnego i ma charakter wyłącznie informacyjny.
Szczegóły inwestycji oraz pełna oferta dostępne są na stronie internetowej:
https://develia.pl/pl/
Mieszkanie znajduje się w inwestycji Bemowo Vita, w której znajduje się w sprzedaży jeszcze 26 podobnych nowych mieszkań.
Develia
Strona internetowa inwestycjiAdres biura sprzedaży:
ul. Człuchowska 49, lok. U3/U4, 01-360 WarszawaGodziny otwarcia biura sprzedaży:
- Poniedziałek: 10:00 - 18:00
- Wtorek: 10:00 - 18:00
- Środa: 10:00 - 18:00
- Czwartek: 10:00 - 18:00
- Piątek: 09:00 - 17:00





