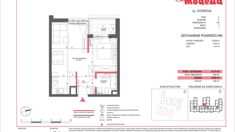
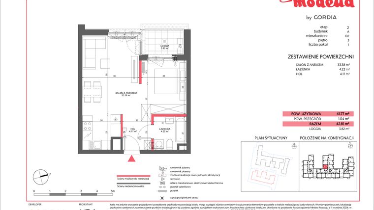
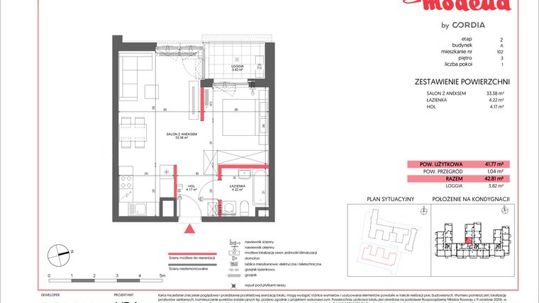
Mieszkanie na sprzedaż 1 pokój o powierzchni 41,77 m² numer A.102
Inwestycja:
Modena IIDeweloper:
Cordia Polska
Inwestycja:
Modena IIDeweloper:
Cordia PolskaPoznań, Jeżyce, Osiedle Jeżyce, ul. Jackowskiego
Poznań, Jeżyce, Osiedle Jeżyce, ul. Jackowskiego
Termin oddania
1 kw. 2027
Ilość pokoi
1 pokój
Metraż
41,77 m²
Piętro
3 piętro
Kuchnia
otwarta kuchnia
Wysokość pomieszczeń
270 cm wysokości
Ilość poziomów
1 poziom
Oznaczenie oferty
A.102

Raport o deweloperze
Poznaj dewelopera bliżej! Pobierz raport, w którym znajdziesz kluczowe informacje o firmie, jej doświadczeniu, nagrodach oraz aktualnych i zrealizowanych inwestycjach.
Budynek i otoczenie
Miejsca postojowe | |
|---|---|
Komórki lokatorskie | dostępne (144): (nieobowiązkowy zakup) |
Standard wykończenia | standard deweloperski Ogrzewanie miejskie |
Realizacja inwestycji | rozpoczęcie budowy w 4 kw. 2024 roku, planowane oddanie do użytkowania w 1 kw. 2027 roku |
Udogodnienia | ochrona całodobowa, plac zabaw, monitoring, klimatyzacja, rowerownia, wózkarnia, instalacja fotowoltaiczna, miejsce do ładowania samochodów elektrycznych |
Przyroda | w okolicy inwestycji znajduje się park |
Charakterystyka energetyczna nieruchomości | informacja u dewelopera |
Rezerwacja i finanse
Rodzaj własności | Odrębna własność z własnością gruntu |
|---|---|
Wysokość czynszu | informacja u dewelopera |
Warunki rezerwacji | Informacja u dewelopera |
Zabezpieczenie środków | Otwarty mieszkaniowy rachunek powierniczy |
Zdjęcia z budowy
Zobacz na jakim etapie budowy jest ta inwestycja
Lokalizacja inwestycji
Stacja kolejowa - Poznań Główny - 1082 m
Przystanek Tramwajowy - 215 m
Przystanek Autobusowy - 142 m
Dojazd do centrum: pokaż
W pobliżu 1 km od tej inwestycji znajdują się:
139 kawiarni i restauracji, 102 sklepy, 33 obiekty sportowe, 47 placówek medycznych, 37 placówek edukacyjnych, 30 placów zabaw
Przeczytaj więcej o lokalizacji
Jeżyce to dzielnica Poznania rozmieszczona na planie niemal idealnego kwadratu. Na jego zachodzie można znaleźć Jezioro Kerskie, natomiast południową granicę wyznacza obszar Lotniska Poznań-Ławica. Na wschodzie dzielnicę ogranicza ul. Obornicka a na północy osiedla Suchy Las i Jelonek. Jeżyce składają się głównie z zabytkowych, przedwojennych kamienic, które coraz częściej dzięki renowacji okazują się być perełkami architektonicznymi miasta. Na Jeżycach na powierzchni 2 km kw mieszka ok. 24 tys. mieszkańców. Największy zakład opieki zdrowotnej to Szpital Rehabilitacyjny dla dzieci. W odległości ok. 500 metrów na wschód mieści się wydział Nauk Politycznych i Dziennikarstwa Uniwersytetu im. Adama Mickiewicza. W odległości ok. 1 km od granic dzielnicy można znaleźć liczne centra handlowe, kina i teatry. Największe centrum handlowe okolicy to Galeria Podolany, jednak w odległości ok. 1 km na południe i wschód można znaleźć inne sklepy wielkopowierzchniowe, takie jak CH Poznań Plaza, Galeria Pestka czy King Cross Marcelin.
Opis oferty
Nowe 1-pokojowe mieszkanie na sprzedaż o powierzchni 41,77 m² znajduje się w nowo budowanej inwestycji deweloperskiej Modena II na Jeżycach, ul. Jackowskiego (1.8 km od centrum Poznania).
Inwestycja jest realizowana przez Cordia Polska.
Cała inwestycja składa się z 1 budynku, w którym łącznie znajduje się 199 nowych mieszkań.
Na sprzedaż pozostaje 81 ofert o powierzchni od 28 do 116 m².
W budynku jest 8 kondygnacji naziemnych oraz 2 kondygnacje podziemne.
Inwestycja Modena II jest w trakcie budowy z planowanym na 1 kw. 2027 roku terminem oddania do użytkowania.
Nowe mieszkanie o oznaczeniu A.102 znajduje się na 3 piętrze i jest 1-poziomowe. Pomieszczenia mają 270 centymetrów wysokości. W mieszkaniu znajduje się 1 pokój.
Do mieszkania przewidziano możliwość zakupu komórki lokatorskiej, którą można zagospodarować na spiżarnię, warsztat czy składzik.
Dla przyszłych mieszkańców Modena II deweloper przewidział miejsca postojowe podziemne.
Dzięki temu przyszli właściciele nie będą musieli poszukiwać wolnej przestrzeni parkingowej. Dodatkowo, miejsce postojowe w garażu podziemnym zabezpiecza przed niekorzystnymi warunkami atmosferycznymi.
Opis Inwestycji
Na terenie dawnych zakładów odzieżowych "Modena" rozpoczyna się kolejny etap inwestycji. Pomiędzy ulicami Jackowskiego i Kraszewskiego powstanie drugi budynek realizowany przez dewelopera Cordia Polska. Obiekt będzie miał 7-8 kondygnacji, obejmował 199 mieszkań o układzie od 1 do 5 pokoi oraz jeden lokal usługowy.
Nowy budynek swoją skalą, stylem architektonicznym i jakością wykończenia będzie przypominał ten zrealizowany w pierwszym etapie inwestycji. Elewacja zostanie utrzymana w stonowanej, jasnej kolorystyce, z detalami inspirowanymi ceglaną zabudową charakterystyczną dla tej dzielnicy. Tektonikę elewacji nadadzą balkony, loggie oraz tarasy na najwyższym piętrze, wzbogacone o różnorodne balustrady. Powierzchnia mieszkań będzie zróżnicowana i wyniesie od 27 do 116 m². W podobnej, co gotowy już budynek, eleganckiej czarno-białej stylistyce będą utrzymane również wnętrza części wspólnych budynku.
W strefie wejściowej inwestycji na ścianach zewnętrznych i wewnętrznych pojawią się mozaiki inspirowane historią zakładów odzieżowych Modena, wykonane przez lokalnego artystę-rzemieślnika.
Nowy budynek mieszkalny będzie wyposażony w wygodny, dwukondygnacyjny garaż podziemny mieszczący 182 miejsca parkingowe (w tym miejsca z możliwością ładowania samochodów elektrycznych), aż 200 miejsc dla rowerów, a także boksy dla jednośladów. Zostały też zaprojektowane wózkownie i komórki lokatorskie (144). Budynek zostanie objęty ochroną i monitoringiem oraz wyposażony w nowoczesny system rozpoznawania tablic rejestracyjnych mieszkańców na wjeździe do garażu.
W nowej części przeprowadzona zostanie rewitalizacja drugiej części zabytkowej alei ponad 100-letnich platanów, wyznaczającej oś całej inwestycji Modena by Cordia. Powstaną także nowe nasadzenia, w tym: drzewa, krzewy, żywopłoty, byliny i trawy ozdobne, do podlewania których będzie wykorzystywany kolejny zbiornik retencyjny na wodę deszczową.
Każdy lokal wyposażony w preinstalację dla klimatyzacji (dedykowane miejsca pod jednostki zewnętrzne, przygotowane przejścia przez ściany zewnętrzne, oraz instalacja zasilająca urządzenia)
Mieszkanie znajduje się w inwestycji Modena II, w której znajdują się w sprzedaży jeszcze 23 podobne nowe mieszkania.
Cordia Polska
Strona internetowa inwestycjiAdres biura sprzedaży:
ul. Jackowskiego 22, PoznańGodziny otwarcia biura sprzedaży:
- Poniedziałek: 09:00 - 17:00
- Wtorek: 09:00 - 17:00
- Środa: 09:00 - 17:00
- Czwartek: 09:00 - 17:00
- Piątek: 09:00 - 17:00





