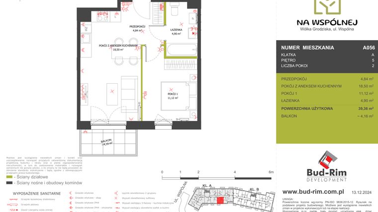
Mieszkanie na sprzedaż 2 pokoje o powierzchni 39,36 m² numer 56
Inwestycja:
Na WspólnejDeweloper:
BUD-RIM Development
Inwestycja:
Na WspólnejDeweloper:
BUD-RIM Developmentmazowieckie, grodziski, Wólka Grodziska, ul. Wspólna 5
mazowieckie, grodziski, Wólka Grodziska, ul. Wspólna 5
Termin oddania
1 kw. 2027
Ilość pokoi
2 pokoje
Metraż
39,36 m²
Piętro
5 piętro
Strona świata
zachód
Powierzchnie dodatkowe
Balkon
Kuchnia
otwarta kuchnia
Wysokość pomieszczeń
od 250 do 270 cm wysokości
Ilość poziomów
1 poziom
Oznaczenie oferty
56

Raport o deweloperze
Poznaj dewelopera bliżej! Pobierz raport, w którym znajdziesz kluczowe informacje o firmie, jej doświadczeniu, nagrodach oraz aktualnych i zrealizowanych inwestycjach.
Budynek i otoczenie
Miejsca postojowe | |
|---|---|
Komórki lokatorskie | dostępne |
Standard wykończenia | standard deweloperski Ogrzewanie kotłownia gazowa, pompy ciepła |
Realizacja inwestycji | rozpoczęcie budowy w 3 kw. 2024 roku, planowane oddanie do użytkowania w 1 kw. 2027 roku |
Udogodnienia | monitoring, usługi w budynku, winda, rowerownia, wózkarnia |
Przyroda | informacja u dewelopera |
Charakterystyka energetyczna nieruchomości |
|
Rezerwacja i finanse
Rodzaj własności | Odrębna własność z własnością gruntu |
|---|---|
Wysokość czynszu | informacja u dewelopera |
Warunki rezerwacji | Informacja u dewelopera |
Zabezpieczenie środków | Otwarty mieszkaniowy rachunek powierniczy |
Zdjęcia z budowy
Zobacz na jakim etapie budowy jest ta inwestycja
Lokalizacja inwestycji
Stacja kolejowa - Grodzisk Mazowiecki - 1969 m
Przystanek Autobusowy - 279 m
Dojazd do centrum Warszawy: pokaż
W pobliżu 1 km od tej inwestycji znajdują się:
1 sklep, 2 placówki edukacyjne
Przeczytaj więcej o lokalizacji
Powiat grodziski w województwie mazowieckim zajmuje powierzchnię ok. 367 km2 i położony jest w odległości 30 km od Warszawy. W skład powiatu wchodzą miasta: Grodzisk Mazowiecki, Milanówek i Podkowa Leśna oraz gminy wiejskie: Baranów, Jaktorów i Żabia Wola. Milanówek oraz Podkowa Leśna z rezerwatem Parów Sójek, to miasta-ogrody słynące z walorów krajobrazowych oraz zabytkowej architektury dworsko-pałacowej. Grodzisk Mazowiecki jest siedzibą powiatu i dawanym uzdrowiskiem, toteż dominuje tu niska zabudowa otoczona parkami. Wsie Baranów i Jaktorów to obszary rolnicze z domami jednorodzinnymi, zaś w Żabiej Woli znajdują się kompleksy leśne z rezerwatami: Skulski Las i Uroczysko Skuły Zachód. Atrakcję powiatu stanowią tereny sportowo-rekreacyjne, m.in. korty tenisowe, tereny do jazdy konnej i zbiorniki do wędkowania, np. Stawy Walczewskiego czy Zalew Grzymek. Dojazd do stolicy umożliwiają linie kolejowe: Warszawa – Skierniewice i Warszawska Kolej Dojazdowa, a także droga wojewódzka nr 719.
Opis oferty
Nowe 2-pokojowe mieszkanie na sprzedaż o powierzchni 39,36 m² znajduje się w nowo budowanej inwestycji deweloperskiej Na Wspólnej w Wólce Grodziskiej, ul. Wspólna 5 (19.7 km od Warszawy).
Inwestycja jest realizowana przez BUD-RIM Development.
Cała inwestycja składa się z 2 budynków, w których łącznie znajduje się 127 nowych mieszkań.
Na sprzedaż pozostaje 66 ofert o powierzchni od 37 do 62 m².
W budynkach jest 6 kondygnacji naziemnych oraz 1 kondygnacja podziemna.
Inwestycja Na Wspólnej jest w trakcie budowy z planowanym na 1 kw. 2027 roku terminem oddania do użytkowania.
Nowe mieszkanie o oznaczeniu 56 znajduje się na 5 piętrze i jest 1-poziomowe. Pomieszczenia mają od 250 do 270 centymetrów wysokości. W mieszkaniu znajdują się 2 pokoje.
Okna w mieszkaniu wychodzą na zachód.
Zachodnia ekspozycja to gwarancja intensywnego popołudniowego światła, które nadaje wnętrzom przytulności i ciepła. Idealne dla miłośników słonecznych wieczorów, którzy pragną cieszyć się pięknymi zachodami słońca we własnym domu. Zachodnie światło podkreśla kolory i faktury w aranżacji wnętrz, tworząc atmosferę sprzyjającą relaksowi po długim dniu.
Dla przyszłych mieszkańców Na Wspólnej deweloper przewidział miejsca postojowe podziemne.
Dzięki temu przyszli właściciele nie będą musieli poszukiwać wolnej przestrzeni parkingowej. Dodatkowo, miejsce postojowe w garażu podziemnym zabezpiecza przed niekorzystnymi warunkami atmosferycznymi.
Opis Inwestycji
Pow. dodatkowe
NA WSPÓLNEJ WÓLKA GRODZISKA
Poznaj naszą inwestycję NA WSPÓLNEJ zlokalizowaną w Wólce Grodziskiej przy Grodzisku Mazowieckim. To miejsce, które wyróżnia estetyczny i nowoczesny design, funkcjonalne rozkłady mieszkań, a także spokojna okolica przy jednoczesnej bliskości miasta.
Inwestycja składa się z dwóch pięciopiętrowych budynków, w których znajdą się zarówno mieszkania jak i lokale usługowe. Zostały one zaprojektowane z dbałością o walory estetyczne jak i jakościowe. W ofercie znajdują się mieszkania o różnorodnych metrażach od 34 do 77m2. Przemyślane rozkłady mieszkań zapewniają maksymalne wykorzystanie przestrzeni i komfort codziennego użytkowania. Elewacje wyróżniają się nowoczesnym designem i eleganckimi detalami. Dla wygody mieszkańców przewidziane są hale garażowe oraz zewnętrzne miejsca postojowe, a także komórki i boksy lokatorskie.
Biało-szara elewacja wyróżnia się klasycznym i ponadczasowym designem, zaś czarne i szklane balustrady balkonowe nadają nowoczesności i elegancji. Duże okna, balkony, aranżacja zieleni i elementów małej architektury pozwolą Ci zatrzymać się na chwilę i złapać oddech od codzienności. Z kolei plac zabaw zapewni atrakcję najmłodszym mieszkańcom.
Zakochaj się w okolicy! Spokój i cisza pozwoli na odpoczynek od miejskiego zgiełku. Przy czym dojazd na stację benzynową i do supermarketów zajmuje zaledwie kilka minut. Jednocześnie przyszli mieszkańcy cieszyć się będą sąsiedztwem rozwijającego się miasta – Grodziska Mazowieckiego, który oferuje wszystko, co potrzebne. 7 minut – tyle potrzeba, aby dojechać na stację kolejową – a stamtąd już bezpośrednim pociągiem dojedziemy do Warszawy czy Łodzi.
Twoja historia zaczyna się tutaj – zamieszkaj Na Wspólnej!
1 ETAP: 1 BUDYNEK KL A,B
Mieszkanie znajduje się w inwestycji Na Wspólnej, w której znajduje się w sprzedaży jeszcze 27 podobnych nowych mieszkań.
BUD-RIM Development
Strona internetowa inwestycjiAdres biura sprzedaży:
Wółka Grodziska k. Grodziska Mazowieckiego, ul. Wspólna 5Godziny otwarcia biura sprzedaży:
- Wtorek: 13:00 - 17:00
- Czwartek: 13:00 - 17:00





