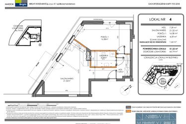
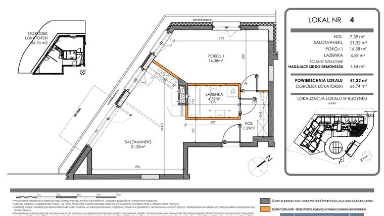
Mieszkanie na sprzedaż 2 pokoje o powierzchni 51,32 m² numer M-4
Oferta archiwalna
Inwestycja:
Nowe międzylesieDeweloper:
Bright Developments Sp. z o.o
Inwestycja:
Nowe międzylesieDeweloper:
Bright Developments Sp. z o.oWarszawa, Wawer, Międzylesie, ul. Kożuchowska 11-13
Warszawa, Wawer, Międzylesie, ul. Kożuchowska 11-13
Nieruchomość została sprzedana
Zobacz pozostałe mieszkania w inwestycji Nowe międzylesie lub inne propozycje w Międzylesiu
Najbliższe inwestycje
- W inwestycji Międzylesie przy lesie ul Świebodzińska 13 Warszawa Wawer zaprojektowano zaledwie 15 apartamentów na 4 kondygnacjach w unikalnej lokalizacji. Ten kameralny apartamentowiec zlokalizowany jest w centrum dzielnicy Wawer w centralnej części Międzylesia a jednocześnie w bezpośrednim sąsiedztwie Mazowieckiego Parku Krajobrazowego. Doskonała lokalizacja zapewniająca bliskość miejsc
Międzylesie przy lesie
od 16 500 zł/m²
2 kwartał 2026
Warszawa, Wawer, Międzylesie,
ul. Świebodzińska 13
2-3 pokoje, Metraż 38-58 m2
- Charakter inwestycji: - Kameralna inwestycja 5 budynków dwulokalowych w zabudowie szeregowej położonych w otoczeniu zabudowy jednorodzinnej - Zaciszna lokalizacja w oddaleniu od głównych ulic - Mieszkania o powierzchni 100-127 m2 - Mieszkania z ogrodami lub obszernymi balkonami - Garaże w budynku z dostępem z klatki schodowej - Teren ogrodzony - Nowoczesne ekologiczne rozwiązania oparte o
Apartamenty Anin
od 13 897 zł/m²
4 kwartał 2027
Warszawa, Wawer, Anin,
ul. Rzeźbiarska
4 pokoje, Metraż 101-128 m2
Termin oddania
Gotowe
Ilość pokoi
2 pokoje
Metraż
51,32 m²
Piętro
Parter
Strona świata
zachód, południe
Powierzchnie dodatkowe
Ogródek
Kuchnia
otwarta kuchnia
Wysokość pomieszczeń
260 cm wysokości
Ilość poziomów
1 poziom
Oznaczenie oferty
M-4

Raport o deweloperze
Poznaj dewelopera bliżej! Pobierz raport, w którym znajdziesz kluczowe informacje o firmie, jej doświadczeniu, nagrodach oraz aktualnych i zrealizowanych inwestycjach.
Budynek i otoczenie
Miejsca postojowe | |
|---|---|
Komórki lokatorskie | dostępne |
Standard wykończenia | standard deweloperski |
Realizacja inwestycji | rozpoczęcie budowy w 3 kw. 2019 roku, inwestycja została oddana do użytkowania w 1 kw. 2021 roku |
Udogodnienia | teren ogrodzony, internet, przystosowane dla niepełnosprawnych, TV kablowa, winda, własna kotłownia, patio / dziedziniec |
Przyroda | w okolicy inwestycji znajduje się park, las, rezerwat przyrody |
Charakterystyka energetyczna nieruchomości | informacja u dewelopera |
Rezerwacja i finanse
Rodzaj własności | Odrębna własność z własnością gruntu |
|---|---|
Wysokość czynszu | informacja u dewelopera |
Warunki rezerwacji | Informacja u dewelopera |
Zabezpieczenie środków | Informacja u dewelopera |
Lokalizacja inwestycji
Przeczytaj więcej o lokalizacji
W bliskiej odległości znajdują się: Szkoła Podstawowa nr 92 przy ul. Patriotów 347 – nr 2 w rankingu szkół podstawowych w Warszawie - http://www.nauka.com.pl/szkoly.htm Centrum Handlowe Ferio Wawer projektu Kuryłowicz & Associates - Laureat licznych nagród branżowych – unikalny przykład rewitalizacji starej fabryki, https://tustolica.pl/miedzylesie-ma-najladniejsze-centrum-handlowe-w-warszawie_71873 - liczne kawiarnie i restauracje, m.in. znana i lubiana lokalnie Cafe Peron - liczne sklepy spożywcze, placówki medyczne i oświatowe oraz sportowe. - autobusy linii 115, 119, 125, 147, 525, 305 - stacja kolejki SKM Warszawa Międzylesie
Wawer to dzielnica w południowo-wschodniej części Warszawy wyróżniająca się największym obszarem terytorialnym – ok. 80 km2. Jednocześnie jest to jeden z tych rejonów miasta, w których znajduje się najwięcej zielonej przestrzeni. Rozległe obszary naturalnego krajobrazu, na które składają się: Mazowiecki Park Krajobrazowy, Rezerwat im. Króla Jana III Sobieskiego oraz Zakole Wawerskie, a także dominacja niskiej, przeważnie willowej zabudowy, to czynniki decydujące o niewielkiej gęstości zaludnienia. Wawer jest spokojnym, malowniczym miejscem, w którym można odpocząć od miejskiego gwaru lub spędzić czas na świeżym powietrzu, rozkoszując się pięknem przyrody. Na terenie Wawra znajduje się aż 7 stacji kolejowych, toteż pociągi Szybkiej Kolei Miejskiej stanowią najwygodniejszy środek transportu do centrum miasta. Ważnymi arteriami są m.in.: Most Siekierkowski, Wał Miedzeszyński, ul. Płowiecka.
Opis oferty
Nowe 2-pokojowe mieszkanie na sprzedaż o powierzchni 51,32 m² znajduje się w nowo budowanej inwestycji deweloperskiej Nowe międzylesie w Międzylesiu, ul. Kożuchowska 11-13 (11.3 km od centrum Warszawy).
Inwestycja jest realizowana przez Bright Developments Sp. z o.o.
Cała inwestycja składa się z 1 budynku, w którym łącznie znajduje się 60 nowych mieszkań.
Inwestycja jest już wyprzedana.
W budynku jest 5 kondygnacji naziemnych oraz 1 kondygnacja podziemna.
Inwestycja Nowe międzylesie została wybudowana i oddana do użytkowania w 1 kw. 2021 roku.
Nowe mieszkanie o oznaczeniu M-4 znajduje się na parterze i jest 1-poziomowe. Pomieszczenia mają 260 centymetrów wysokości. W mieszkaniu znajdują się 2 pokoje.
Okna w mieszkaniu wychodzą na zachód, południe.
Okna wychodzące na południe gwarantują maksymalną ilość naturalnego światła, co czyni wnętrza jasnymi i ciepłymi. Dodatkowo południowa ekspozycja pomaga obniżyć koszty ogrzewania w zimie. Okna na południe są idealne dla osób pragnących cieszyć się jasnym otoczeniem, które sprzyja dobremu samopoczuciu oraz pozytywnej energii.
Zachodnia ekspozycja to gwarancja intensywnego popołudniowego światła, które nadaje wnętrzom przytulności i ciepła. Idealne dla miłośników słonecznych wieczorów, którzy pragną cieszyć się pięknymi zachodami słońca we własnym domu. Zachodnie światło podkreśla kolory i faktury w aranżacji wnętrz, tworząc atmosferę sprzyjającą relaksowi po długim dniu.
Dla przyszłych mieszkańców Nowe międzylesie deweloper przewidział miejsca postojowe podziemne, miejsca postojowe naziemne.
Dzięki temu przyszli właściciele nie będą musieli poszukiwać wolnej przestrzeni parkingowej. Dodatkowo, miejsce postojowe w garażu podziemnym zabezpiecza przed niekorzystnymi warunkami atmosferycznymi.
Opis Inwestycji
Okazyjna cena
Pow. dodatkowe
Zapraszamy do Nowego Międzylesia! Budowa już rozpoczęta!
Nowe Międzylesie to kolejny przykład prostej i eleganckiej, a przez to ponadczasowej architektury.
Położone w samym centrum dzielnicy Wawer przy ulicy Kożuchowskiej 11/13, Nowe Międzylesie to kameralny projekt z zaledwie 60-cioma mieszkaniami.
Z dala od zgiełku wielkiego miasta, ale z łatwym dostępem do niego.
Do stacji kolejki SKM jest zaledwie 300 m – w centrum Warszawy znajdziesz się w ciągu 30 minut!
A do Mazowieckiego Parku Krajobrazowego rowerem dotrzesz w 2 minuty!
Na zaawansowanym etapie jest budowa Południowej Obwodnicy Warszawy – po jej ukończeniu wiosną 2021 roku z Nowego Międzylesia na lotnisko Chopina na Okęciu dojedziesz w kilkanaście minut!
Do mieszkań przynależą miejsca postojowe w garażu podziemnym. Lokale na parterze dysponują ogródkami, zaś te na piętrach balkonami.
Budowę zakończymy w 1 kwartale 2021 roku.
Mieszkanie znajduje się w inwestycji Nowe międzylesie.





