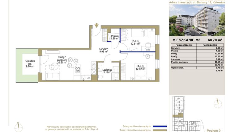
Mieszkanie na sprzedaż 3 pokoje o powierzchni 60,7 m² numer 8
Inwestycja:
Barbary 19Deweloper:
Barbary 19
Inwestycja:
Barbary 19Deweloper:
Barbary 19Katowice, Śródmieście, ul. Barbary 19
Katowice, Śródmieście, ul. Barbary 19
Termin oddania
Gotowe
Ilość pokoi
3 pokoje
Metraż
60,7 m²
Piętro
Parter
Powierzchnie dodatkowe
Ogródek
Kuchnia
otwarta kuchnia
Wysokość pomieszczeń
od 262 do 300 cm wysokości
Ilość poziomów
1 poziom
Oznaczenie oferty
8

Raport o deweloperze
Poznaj dewelopera bliżej! Pobierz raport, w którym znajdziesz kluczowe informacje o firmie, jej doświadczeniu, nagrodach oraz aktualnych i zrealizowanych inwestycjach.
Budynek i otoczenie
Miejsca postojowe | |
|---|---|
Komórki lokatorskie | dostępne (26): nieobowiązkowy zakup; od 1,77 do 4,16 m2 |
Standard wykończenia | standard deweloperski Ogrzewanie podłogowe, z miejskiej sieci PEC |
Realizacja inwestycji | rozpoczęcie budowy w 2 kw. 2024 roku, inwestycja została oddana do użytkowania w 3 kw. 2025 roku |
Udogodnienia | monitoring, teren ogrodzony, winda, rowerownia, wózkarnia |
Przyroda | w okolicy inwestycji znajduje się park |
Charakterystyka energetyczna nieruchomości |
|
Rezerwacja i finanse
Rodzaj własności | Odrębna własność z własnością gruntu |
|---|---|
Wysokość czynszu | informacja u dewelopera |
Warunki rezerwacji | podpisanie umowy + wpłata opłaty rezerwacyjnej |
Zabezpieczenie środków | Otwarty mieszkaniowy rachunek powierniczy |
Zdjęcia z budowy
Zobacz na jakim etapie budowy jest ta inwestycja
Lokalizacja inwestycji
Stacja kolejowa - Katowice - 1040 m
Przystanek Tramwajowy - 334 m
Przystanek Autobusowy - 292 m
Dojazd do centrum: pokaż
W pobliżu 1 km od tej inwestycji znajdują się:
35 kawiarni i restauracji, 50 sklepów, 27 obiektów sportowych, 34 placówki medyczne, 30 placówek edukacyjnych, 16 placów zabaw
Przeczytaj więcej o lokalizacji
Miejskie udogodnienia na wyciągnięcie ręki Chcesz zamieszkać w spokojnej okolicy, ciesząc się równocześnie udogodnieniami pobliskiej infrastruktury? Jesteś w doskonałym miejscu – zrealizuj swoje marzenia już dzisiaj! Inwestycja Barbary19 to nie tylko wygodny dostęp do sąsiadującego Parku Kościuszki czy centrum miasta, ale także świetnie skomunikowana okolica. Bliskość wjazdu na autostradę A4 w kierunku Krakowa i Wrocławia oraz kilku dróg wylotowych na południe, w kierunku Wisły czy Bielska-Białej, umożliwia Ci wygodny dojazd do pracy lub na weekendowy wypoczynek. Możesz także zrezygnować z samochodu – w sąsiedztwie nie brakuje przystanków komunikacji miejskiej, a spacer do dworca PKP trwa mniej niż 15 min.
Katowice to miasto w województwie śląskim o powierzchni 164 km kw i liczbie mieszkańców ponad 300 tys. osób. Zabudowa miasta to głównie powojenne bloki i typowe dla Śląska zabytkowe kamienice. Katowice dzielą się na dzielnice pogrupowane w zespoły dzielnic: zespół północny, śródmiejski, południowy, wschodni i zachodni. Miasto jest wojewódzkim centrum medycznym, z kilkunastoma szpitalami, w tym Centralnym Szpitalem Klinicznym im. Kornela Gibińskiego, Szpitalem Klinicznym im. Andrzeja Mieleckiego, Uniwersyteckim Centrum Okulistyki i Onkologii, Szpitalem Klinicznym nr 6 czy Górnośląskim Centrum Zdrowia Dziecka. Działają tu też liczne uniwersytety, takie jak Akademia Wychowania Fizycznego im. Jerzego Kukuczki, Akademia Sztuk Pięknych czy wydziały Politechniki Śląskiej.
Opis oferty
Nowe 3-pokojowe mieszkanie na sprzedaż o powierzchni 60,7 m² znajduje się w nowo budowanej inwestycji deweloperskiej Barbary 19 w Śródmieście, ul. Barbary 19 (2 km od centrum Katowic).
Inwestycja jest realizowana przez Barbary 19.
Cała inwestycja składa się z 1 budynku, w którym łącznie znajduje się 76 nowych mieszkań.
Na sprzedaż pozostaje 21 ofert o powierzchni od 27 do 150 m².
W budynku jest 5 kondygnacji naziemnych oraz 2 kondygnacje podziemne.
Inwestycja Barbary 19 została wybudowana i oddana do użytkowania w 3 kw. 2025 roku.
Nowe mieszkanie o oznaczeniu 8 znajduje się na parterze i jest 1-poziomowe. Pomieszczenia mają od 262 do 300 centymetrów wysokości. W mieszkaniu znajdują się 3 pokoje.
Do mieszkania przewidziano możliwość zakupu komórki lokatorskiej, którą można zagospodarować na spiżarnię, warsztat czy składzik.
Dla przyszłych mieszkańców Barbary 19 deweloper przewidział miejsca postojowe podziemne.
Dzięki temu przyszli właściciele nie będą musieli poszukiwać wolnej przestrzeni parkingowej. Dodatkowo, miejsce postojowe w garażu podziemnym zabezpiecza przed niekorzystnymi warunkami atmosferycznymi.
Opis Inwestycji
Okazyjna cena
Tereny zielone
Pow. dodatkowe
Centrum życia, centrum komfortu – zamieszkaj w sercu Katowic Barbary 19.
Apartamenty Barbary 19 już na pierwszy rzut oka wyróżniają się gustownym projektem budynku. Łączy on nowoczesną bryłę z eleganckimi, wysokiej klasy materiałami wykończeniowymi, które gwarantują trwałą estetykę.
Apartamenty Barbary 19 obejmują mieszkania o powierzchniach od 27 m² do 76 m² oraz luksusowe penthouse’y o powierzchniach od 101 m² do 149 m². Z łatwością znajdziesz więc układ wnętrz, który spełnia Twoje oczekiwania.
15 minut spacerem do Rynku.
Inwestycja zlokalizowana jest w cichej i spokojnej okolicy w sercu Katowic - zamieszkasz tuż obok Parku Kościuszki, a jednocześnie w pobliżu ścisłego centrum miasta. To otoczenie pełne możliwości w którym załatwisz wszystkie najważniejsze sprawy w jednym miejscu.
Mieszkania od 27 m² do 76 m² i penthouse'y do 149 m².
Czekają na Ciebie zróżnicowane metraże oraz układy wnętrz, w tym m.in.: kompaktowe lokale 2-pokojowe o powierzchni ok. 30 m², duże mieszkania dla rodzin z dziećmi, czy luksusowe penthouse’y w standardzie premium.
Duże balkony, przestronne tarasy.
Lubisz wypoczywać na świeżym powietrzu w kameralnej atmosferze? Wybierz mieszkanie z ogrodem na parterze lub na piętrze z dużym balkonem. Na ostatniej kondygnacji dostępne będą penthouse'y z przestronnymi tarasami.
Nowoczesne windy i garaż podziemny.
Pod budynkiem znajduje się duży garaż podziemny z komórkami lokatorskimi i rowerownią. Do Twojej dyspozycji są również cichobieżne windy, zapewniające wygodną komunikację między kondygnacjami.
Odwiedź mieszkanie pokazowe, zainspiruj się gotowym wnętrzem i wybierz swoje nowe „M”.
Na terenie inwestycji dostępne jest stylowo wykończone mieszkanie pokazowe, które pozwala zobaczyć standard, funkcjonalność układów oraz realne możliwości aranżacyjne.
Zobacz, jak może wyglądać Twoje przyszłe mieszkanie i wybierz idealny metraż dla siebie!
Mieszkanie znajduje się w inwestycji Barbary 19, w której znajduje się w sprzedaży jeszcze 9 podobnych nowych mieszkań.
Barbary 19
Strona internetowa inwestycjiAdres biura sprzedaży:
ul. Konduktorska 33, 40-155 KatowiceGodziny otwarcia biura sprzedaży:
- Poniedziałek: 09:00 - 17:00
- Wtorek: 09:00 - 17:00
- Środa: 09:00 - 17:00
- Czwartek: 09:00 - 17:00
- Piątek: 09:00 - 17:00
W trosce o zdrowie naszych klientów przyłączamy się do akcji #Zostań w domu. Udostępniamy możliwość rezerwacji mieszkania przez internet. Specjalnie dla Ciebie, zrobimy relację wideo z wybranego mieszkania.





