Dom na sprzedaż 5 pokoi o powierzchni 134,15 m² numer 39A
Rezerwacja
Inwestycja:
Domy Golfowe IIDeweloper:
ATM Golf Estate Sp. z o.o.
Inwestycja:
Domy Golfowe IIDeweloper:
ATM Golf Estate Sp. z o.o.trzebnicki, Kryniczno, ul. Pod Lasem
trzebnicki, Kryniczno, ul. Pod Lasem
Termin oddania
Gotowe
Ilość pokoi
5 pokoi
Metraż
134,15 m²
Strona świata
południe
Powierzchnie dodatkowe
Ogródek
Kuchnia
otwarta kuchnia
Wysokość pomieszczeń
255 cm wysokości
Ilość kondygnacji
2 poziomy
Oznaczenie oferty
39A

Raport o deweloperze
Poznaj dewelopera bliżej! Pobierz raport, w którym znajdziesz kluczowe informacje o firmie, jej doświadczeniu, nagrodach oraz aktualnych i zrealizowanych inwestycjach.
Budynek i otoczenie
Miejsca postojowe | |
|---|---|
Standard wykończenia | standard deweloperski |
Realizacja inwestycji | rozpoczęcie budowy w 4 kw. 2024 roku, inwestycja została oddana do użytkowania w 4 kw. 2025 roku |
Udogodnienia | teren ogrodzony, boisko |
Przyroda | informacja u dewelopera |
Charakterystyka energetyczna nieruchomości | informacja u dewelopera |
Rezerwacja i finanse
Rodzaj własności | Odrębna własność z własnością gruntu |
|---|---|
Wysokość czynszu | informacja u dewelopera |
Warunki rezerwacji | Informacja u dewelopera |
Zabezpieczenie środków | Otwarty mieszkaniowy rachunek powierniczy |
Zdjęcia z budowy
Zobacz na jakim etapie budowy jest ta inwestycja
Lokalizacja inwestycji
Stacja kolejowa - Ramiszów - 2593 m
Przystanek Autobusowy - 386 m
Dojazd do centrum Wrocławia: pokaż
W pobliżu 1 km od tej inwestycji znajdują się:
2 obiekty sportowe, 1 plac zabaw
Przeczytaj więcej o lokalizacji
Doskonała komunikacja z centrum miasta oraz łatwy dojazd do głównych dróg dzięki węzłowi komunikacyjnemu Wrocław Północ. 4 km do granic Wrocławia, 6 km do najbliższego wjazdu na autostradę, 8 km do centrum Wrocławia, 3 min pieszo do domu klubowego Wrocław Golf Club w tym restauracji, Szkoła podstawowa jest w Psarach – 4,4 km, Przedszkole w Krynicznie 6,9 km, 51.172428067269806, 17.052776138407264 Boisko Orlik w Krzyżanowicach, Przedszkole Wesołe Skrzaty 51.17305124102062, 17.05324591302442 Krzyżanowice, Biedronka Psary 51.16883, 17.02589, Stadnina koni Raków 51.19511214405726, 17.068810760288326, 2 min do najbliższego sklepu - Żabka, Możliwość rozbudowy zimowego ogrodu, 8 min dojazd do Szpitala Kamińskiego/Wrocław, Autobus linia 930 z Kryniczna do Placu Kromera/Wrocław. Kryniczno – bezkonkurencyjna lokalizacja 4km Do granicy Wrocławia 6km Do najbliższego wjazdu na autostradę, 8km Do centrum Wrocławia, 0,8km Do domu klubowego Wrocław Golf Club.
Powiat trzebnicki usytuowany jest w dorzeczu Odry, w północno-wschodniej części województwa dolnośląskiego. Jego terytorium obejmuje powierzchnię ponad 1025 km2 i przedzielone jest przez wzgórza Wału Trzebnickiego. Do powiatu należą miasta: Trzebnica, Oborniki Śląskie, Prusice i Żmigród oraz 2 gminy wiejskie. Zielony pejzaż obfituje w malownicze wzgórza, bukowe i sosnowe lasy, stawy, 3 rezerwaty przyrody oraz Park Krajobrazowy Dolina Baryczy. Ludność, której liczba wynosi ok. 79 tys., koncentruje się w miastach, gdzie dominuje niska zabudowa: wille, kamienice, domy jedno- i wielorodzinne. W Trzebnicy oraz Obornikach Śląskich znajdują się zabytkowe kompleksy uzdrowiskowe. Dobrze rozwinięta jest baza turystyczna, a do atrakcji należą: kąpieliska – Glinianki i Produs, Park Wodny Zdrój w Trzebnicy, Gradi Golf Club koło Prusic, a także liczne ośrodki nauki jazdy konnej, muzea i skanseny. W powiecie kursują pociągi oraz autobusy, a najważniejsze arterie to drogi krajowe: nr 5 i nr 15.
Opis oferty
Nowy 5-pokojowy dom bliźniak na sprzedaż o powierzchni 134,15 m² znajduje się w nowo budowanej inwestycji deweloperskiej Domy Golfowe II w Krynicznie, ul. Pod Lasem (2.1 km od Wrocławia).
Inwestycja jest realizowana przez ATM Golf Estate Sp. z o.o.
Cała inwestycja składa się z 8 nowych domów.
Inwestycja Domy Golfowe II została wybudowana i oddana do użytkowania w 4 kw. 2025 roku.
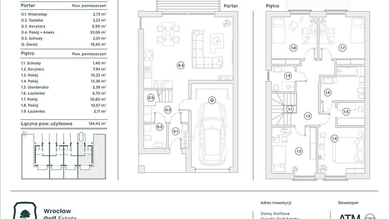
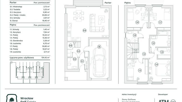
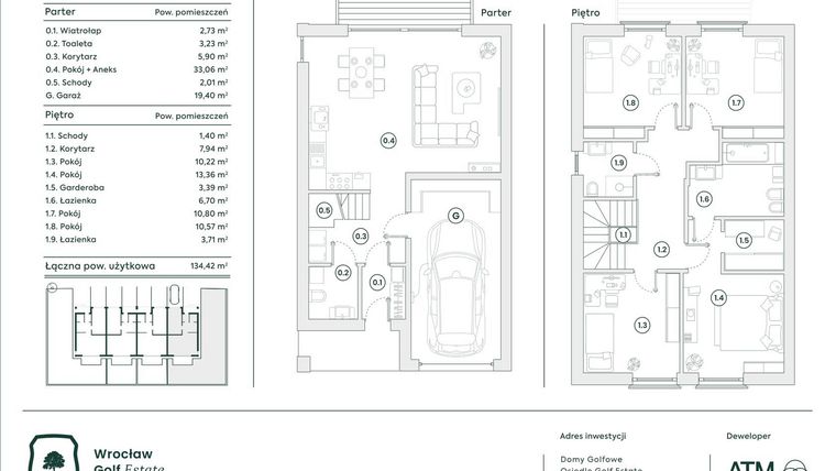
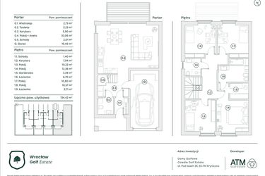
Nowy dom bliźniak o oznaczeniu 39A , składa się z 2 kondygnacji bez poddasza, nie posiada podpiwniczenia. Wysokość pomieszczeń wynosi 255 cm.
W domu bliźniaku numer 39A znajduje się się 5 pokoi.
Okna domu wychodzą na południe.
Do domu przynależy ogródek o powierzchni 51 m².
Dla przyszłych mieszkańców Domy Golfowe II deweloper przewidział miejsca postojowe naziemne
Opis Inwestycji
Pow. dodatkowe
Domy Golfowe – luksus, przestrzeń i spokój tuż pod Wrocławiem.
W sprzedaży dostępny jest obecnie II Etap inwestycji Domy Golfowe, którego zakończenie planowane jest na koniec 2025 roku. To propozycja dla osób ceniących wysoką jakość życia, prywatność oraz bliskość natury – z doskonałą komunikacją z Wrocławiem.
Każdy z domów został zaprojektowany z myślą o funkcjonalności i komforcie codziennego życia:
Parter to przestronny salon z aneksem kuchennym, miejscem na kominek oraz imponującym, przesuwnym oknem, które otwiera wnętrze na prywatny ogród i naturalną zieleń za oknem.
Piętro oferuje cztery wygodne sypialnie bez skosów, w tym elegancki master bedroom z prywatną łazienką i garderobą.
Poddasze pozostaje do własnej aranżacji – idealne na pracownię, siłownię, pokój zabaw lub dodatkową przestrzeń wypoczynkową.
To miejsce stworzone z myślą o osobach poszukujących równowagi między aktywnym życiem zawodowym a spokojem, jaki daje otoczenie natury. Inwestycja położona jest w malowniczej okolicy, zapewniającej ciszę, zieleń i prywatność, a zarazem dostęp do atrakcyjnej infrastruktury.
Mieszkańcy mają wyjątkową możliwość codziennego korzystania z uroków prestiżowego Wrocław Golf Club – od pola golfowego dzieli ich zaledwie kilka minut spacerem. Na jego terenie znajduje się również stylowa restauracja, otwarta dla mieszkańców i gości.
Dodatkowym atutem inwestycji jest jej charakter kameralnego, zamkniętego osiedla, które nie wiąże się z żadnymi dodatkowymi opłatami administracyjnymi. To komfort życia w otoczeniu zieleni, prywatności i spokoju – bez zbędnych zobowiązań.
Dom znajduje się w inwestycji Domy Golfowe II, w której znajdują się w sprzedaży jeszcze 4 podobne nowe domy.
ATM Golf Estate Sp. z o.o.
Strona internetowa inwestycjiAdres biura sprzedaży:
ul. Dwa Światy 1, 55-040 Bielany WrocławskieGodziny otwarcia biura sprzedaży:
- Poniedziałek: 09:00 - 17:00
- Wtorek: 09:00 - 17:00
- Środa: 09:00 - 17:00
- Czwartek: 09:00 - 17:00
- Piątek: 09:00 - 17:00





