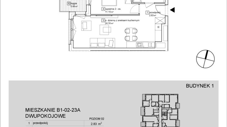
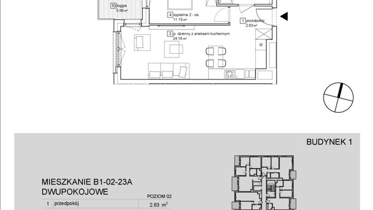
Mieszkanie na sprzedaż 2 pokoje o powierzchni 42,91 m² numer B1-02-23A
Inwestycja:
Francuska Park IXDeweloper:
ATAL S.A.
Inwestycja:
Francuska Park IXDeweloper:
ATAL S.A.Katowice, Osiedle Paderewskiego-Muchowiec, ul. Szybowcowa
Katowice, Osiedle Paderewskiego-Muchowiec, ul. Szybowcowa
Promocje
Promocja
Mieszkanie stworzone dla Ciebie! Rabat do 1300 zł/m2!
Szczegóły w biurze sprzedaży.
Promocja
Nie przegap okazji! Tylko dla 10 pierwszych klientów rabat do 96 000 zł*
Harmonogram 10/90%. Akt notarialny za 1 zł. *Dotyczy mieszkań w IX etapie inwestycji. Promocje łączą się!
Termin oddania
Gotowe
Ilość pokoi
2 pokoje
Metraż
42,91 m²
Piętro
2 piętro
Powierzchnie dodatkowe
Loggia
Kuchnia
otwarta kuchnia
Wysokość pomieszczeń
od 260 do 280 cm wysokości
Ilość poziomów
1 poziom
Oznaczenie oferty
B1-02-23A

Raport o deweloperze
Poznaj dewelopera bliżej! Pobierz raport, w którym znajdziesz kluczowe informacje o firmie, jej doświadczeniu, nagrodach oraz aktualnych i zrealizowanych inwestycjach.
Budynek i otoczenie
Miejsca postojowe | |
|---|---|
Komórki lokatorskie | dostępne |
Standard wykończenia | standard deweloperski Pakiety wykończeń:
Pakiet Classic – 950 zł/mkw
Pakiet Comfort – 1 150 zł/mkw
Pakiet Premium – 1 650 zł/mkw |
Realizacja inwestycji | rozpoczęcie budowy w 1 kw. 2024 roku, inwestycja została oddana do użytkowania w 1 kw. 2026 roku |
Udogodnienia | plac zabaw, usługi w budynku, rowerownia |
Przyroda | w okolicy inwestycji znajduje się park |
Charakterystyka energetyczna nieruchomości |
|
Rezerwacja i finanse
Rodzaj własności | Odrębna własność z własnością gruntu |
|---|---|
Wysokość czynszu | informacja u dewelopera |
Warunki rezerwacji | Informacja u dewelopera |
Zabezpieczenie środków | Informacja u dewelopera |
Zdjęcia z budowy
Zobacz na jakim etapie budowy jest ta inwestycja
Lokalizacja inwestycji
Stacja kolejowa - Katowice - 1779 m
Przystanek Tramwajowy - 1310 m
Przystanek Autobusowy - 302 m
Dojazd do centrum: pokaż
W pobliżu 1 km od tej inwestycji znajdują się:
18 kawiarni i restauracji, 20 sklepów, 14 obiektów sportowych, 15 placówek medycznych, 15 placówek edukacyjnych, 16 placów zabaw
Przeczytaj więcej o lokalizacji
Katowice to miasto w województwie śląskim o powierzchni 164 km kw i liczbie mieszkańców ponad 300 tys. osób. Zabudowa miasta to głównie powojenne bloki i typowe dla Śląska zabytkowe kamienice. Katowice dzielą się na dzielnice pogrupowane w zespoły dzielnic: zespół północny, śródmiejski, południowy, wschodni i zachodni. Miasto jest wojewódzkim centrum medycznym, z kilkunastoma szpitalami, w tym Centralnym Szpitalem Klinicznym im. Kornela Gibińskiego, Szpitalem Klinicznym im. Andrzeja Mieleckiego, Uniwersyteckim Centrum Okulistyki i Onkologii, Szpitalem Klinicznym nr 6 czy Górnośląskim Centrum Zdrowia Dziecka. Działają tu też liczne uniwersytety, takie jak Akademia Wychowania Fizycznego im. Jerzego Kukuczki, Akademia Sztuk Pięknych czy wydziały Politechniki Śląskiej.
Opis oferty
Nowe 2-pokojowe mieszkanie na sprzedaż o powierzchni 42,91 m² znajduje się w nowo budowanej inwestycji deweloperskiej Francuska Park IX na Osiedlu Paderewskiego-Muchowca, ul. Szybowcowa (2.4 km od centrum Katowic).
Inwestycja jest realizowana przez ATAL S.A.
Cała inwestycja składa się z 2 budynków, w których łącznie znajduje się 165 nowych mieszkań.
Na sprzedaż pozostaje 112 ofert o powierzchni od 40 do 121 m².
W budynkach jest 8 kondygnacji naziemnych oraz 1 kondygnacja podziemna.
Inwestycja Francuska Park IX została wybudowana i oddana do użytkowania w 1 kw. 2026 roku.
Nowe mieszkanie o oznaczeniu B1-02-23A znajduje się na 2 piętrze i jest 1-poziomowe. Pomieszczenia mają od 260 do 280 centymetrów wysokości. W mieszkaniu znajdują się 2 pokoje.
Dla przyszłych mieszkańców Francuska Park IX deweloper przewidział miejsca postojowe podziemne, miejsca postojowe naziemne.
Dzięki temu przyszli właściciele nie będą musieli poszukiwać wolnej przestrzeni parkingowej. Dodatkowo, miejsce postojowe w garażu podziemnym zabezpiecza przed niekorzystnymi warunkami atmosferycznymi.
Opis Inwestycji
Okazyjna cena
Tereny zielone
Pow. dodatkowe
Przestrzeń, którą pokochasz
Urzekająca panorama za oknami, bliskość wyjątkowych terenów rekreacyjnych, spokój i bezpieczeństwo.
Francuska Park, to kilkuetapowy projekt, którego głównym założeniem jest stworzenie nowoczesnego, a zarazem skąpanego w zieleni osiedla. Inwestycja stanowi istotny element tkanki miejskiej Katowic. Usytuowana jest w wyjątkowo atrakcyjnej lokalizacji – w sąsiedztwie katowickiego lotniska Muchowiec i w niedalekiej odległości od samego centrum miasta.
Nowa odsłona Inwestycji jest kontynuacją znanego kompleksu Francuska Park, który liczy aż siedem zrealizowanych etapów!
Projekt i wykończenie mieszkania zajmuje sporo czasu oraz pieniędzy.
Korzystnym rozwiązaniem jest przekazanie tego zadania naszym Specjalistom.
Ich zadaniem jest zaprojektowanie oraz wykończenie mieszkania w sposób nowoczesny i funkcjonalny.
Mieszkanie znajduje się w inwestycji Francuska Park IX, w której znajdują się w sprzedaży jeszcze 53 podobne nowe mieszkania.
ATAL S.A.
Strona internetowa inwestycjiAdres biura sprzedaży:
ul. Porcelanowa 10 40-246 KatowiceGodziny otwarcia biura sprzedaży:
- Poniedziałek: 10:00 - 18:00
- Wtorek: 08:00 - 16:00
- Środa: 08:00 - 16:00
- Czwartek: 08:00 - 16:00
- Piątek: 08:00 - 16:00
Artykuły powiązane:
:format(jpg)/articles/gallery/image/9813/e54c4c.jpg)
Czy warto zamieszkać na peryferiach Wrocławia?
Jakie są zalety mieszkania na peryferiach? Sprawdźcie ofertę mieszkań od deweloperów na peryferiach Wrocławia! We Wrocławiu ceny nowych mieszkań w samym centrum lub stosunkowo blisko Rynku potrafią sięgać nawet 8 tys. złotych za metr kwadratowy. Średnia cena na rynku deweloperskim...
30 października 2019
Bartosz Moch





