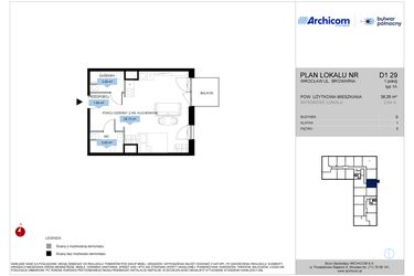
Mieszkanie na sprzedaż 1 pokój o powierzchni 38,26 m² numer D1.29
Inwestycja:
Bulwar PółnocnyDeweloper:
Archicom S.A.
Inwestycja:
Bulwar PółnocnyDeweloper:
Archicom S.A.Wrocław, Psie Pole, Kleczków, ul. Browarna 6
Wrocław, Psie Pole, Kleczków, ul. Browarna 6
Termin oddania
3 kw. 2027
Ilość pokoi
1 pokój
Metraż
38,26 m²
Piętro
2 piętro
Kuchnia
otwarta kuchnia
Wysokość pomieszczeń
od 260 do 280 cm wysokości
Ilość poziomów
1 poziom
Oznaczenie oferty
D1.29

Raport o deweloperze
Poznaj dewelopera bliżej! Pobierz raport, w którym znajdziesz kluczowe informacje o firmie, jej doświadczeniu, nagrodach oraz aktualnych i zrealizowanych inwestycjach.
Budynek i otoczenie
Miejsca postojowe | |
|---|---|
Standard wykończenia | standard deweloperski Ogrzewanie miejskie |
Realizacja inwestycji | rozpoczęcie budowy w 4 kw. 2025 roku, planowane oddanie do użytkowania w 3 kw. 2027 roku |
Udogodnienia | usługi w budynku, winda, monitoring, rowerownia, inteligentny dom, miejsce do ładowania samochodów elektrycznych |
Przyroda | informacja u dewelopera |
Charakterystyka energetyczna nieruchomości | informacja u dewelopera |
Rezerwacja i finanse
Rodzaj własności | Odrębna własność z własnością gruntu |
|---|---|
Wysokość czynszu | informacja u dewelopera |
Warunki rezerwacji | Informacja u dewelopera |
Zabezpieczenie środków | Otwarty mieszkaniowy rachunek powierniczy |
Zdjęcia z budowy
Zobacz na jakim etapie budowy jest ta inwestycja
Lokalizacja inwestycji
Stacja kolejowa - Wrocław Nadodrze - 1418 m
Przystanek Tramwajowy - 342 m
Przystanek Autobusowy - 342 m
Dojazd do centrum: pokaż
W pobliżu 1 km od tej inwestycji znajdują się:
47 kawiarni i restauracji, 73 sklepy, 23 obiekty sportowe, 18 placówek medycznych, 23 placówki edukacyjne, 42 place zabaw
Przeczytaj więcej o lokalizacji
Psie Pole to wrocławskie osiedle rozciągające się w północnej części miasta. Zamieszkuje je ponad 93 tysiące mieszkańców, a jego obszar liczy prawie 100 km2. Zabudowę tworzą liczne osiedla domów jednorodzinnych i willi oraz osiedla mieszkaniowe. W południowej części osiedla Psie Pole znajduje się duży zespół przemysłowy. Na obrzeżach zaś osiedle otaczają tereny zielone w tym lasy: rędziński, osobowicki czy sołtysowicki. W centralnej części znajduje się siedziba Wyższej Szkoły Oficerskiej Wojsk Lądowych. Zachodnią część Psiego Pola ze wschodnią łączy największa arteria tego osiedla: ulica Jana Kasprowicza. Przebiega tędy również odcinek obwodnicy śródmiejskiej oraz droga E-67. Osiedle jest dobrze skomunikowane dzięki dogodnym połączeniom autobusowym i tramwajowym (w szczególności centrum z innymi ważnymi punktami Wrocławia).
Opis oferty
Nowe 1-pokojowe mieszkanie na sprzedaż o powierzchni 38,26 m² znajduje się w nowo budowanej inwestycji deweloperskiej Bulwar Północny na Kleczkowie, ul. Browarna 6 (2.7 km od centrum Wrocławia).
Inwestycja jest realizowana przez Archicom S.A.
Cała inwestycja składa się z 1 budynku, w którym łącznie znajduje się 145 nowych mieszkań.
Na sprzedaż pozostaje 76 ofert o powierzchni od 37 do 77 m².
W budynku jest 8 kondygnacji naziemnych oraz 2 kondygnacje podziemne.
Inwestycja Bulwar Północny jest w trakcie budowy z planowanym na 3 kw. 2027 roku terminem oddania do użytkowania.
Nowe mieszkanie o oznaczeniu D1.29 znajduje się na 2 piętrze i jest 1-poziomowe. Pomieszczenia mają od 260 do 280 centymetrów wysokości. W mieszkaniu znajduje się 1 pokój.
Dla przyszłych mieszkańców Bulwar Północny deweloper przewidział miejsca postojowe podziemne.
Dzięki temu przyszli właściciele nie będą musieli poszukiwać wolnej przestrzeni parkingowej. Dodatkowo, miejsce postojowe w garażu podziemnym zabezpiecza przed niekorzystnymi warunkami atmosferycznymi.
Opis Inwestycji
Nowa strona miasta
Poznaj miejsce wpisane w nowoczesne miejskie trendy i zielony krajobraz rzeki, które stawia na to, co dla ciebie ważne - dobre relacje z naturą i komfort codziennego życia. Wybierz przestrzeń do mieszkania dopasowaną do ciebie. Taką, która, tak jak i ty, ma pomysł na przyszłość, co zaczyna się tu i teraz.
Nowa miejska konstelacja
Bulwar Północny to miejsce, które wytycza kierunek zmian w tej części Wrocławia. Łączy nowoczesną miejskość z troską o przyrodę i współczesnym, humanistycznym podejściem do projektowania.
Nowe nadbrzeże.
Bulwar Północny kreuje nową jakość w nadbrzeżnym miejskim krajobrazie. Pełna lekkości architektura z dużymi przeszkleniami i tarasami przenika się z zielonym otoczeniem, otwierając się z każdej strony na widoki Starej Odry, która opływa ten kwartał malownicznym zakolem.
Układ szerokich pieszych alei i placów na osiedlu naturalnie ciąży ku nurtowi rzeki. Łączą się one z rewitalizowaną promenadą, która doda do miejskich szlaków nowych pięknych tras nad Starą Odrą.
Mieszkanie znajduje się w inwestycji Bulwar Północny, w której znajduje się w sprzedaży jeszcze 28 podobnych nowych mieszkań.
Archicom S.A.
Strona internetowa inwestycjiAdres biura sprzedaży:
ul. Powstańców Śląskich 9, 53-332 WrocławGodziny otwarcia biura sprzedaży:
- Poniedziałek: 10:00 - 18:00
- Wtorek: 10:00 - 18:00
- Środa: 10:00 - 18:00
- Czwartek: 10:00 - 18:00
- Piątek: 10:00 - 18:00
- Sobota: 10:00 - 14:00





