Termin oddania
1 kw. 2028
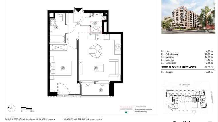
Ilość pokoi
2 pokoje
Metraż
42,81 m²
Piętro
1 piętro
Powierzchnie dodatkowe
Loggia
Wysokość pomieszczeń
274 cm wysokości
Ilość poziomów
1 poziom
Oznaczenie oferty
A.01.L.03

Raport o deweloperze
Poznaj dewelopera bliżej! Pobierz raport, w którym znajdziesz kluczowe informacje o firmie, jej doświadczeniu, nagrodach oraz aktualnych i zrealizowanych inwestycjach.
Budynek i otoczenie
Miejsca postojowe | |
|---|---|
Komórki lokatorskie | dostępne |
Standard wykończenia | standard deweloperski podwyższony Ogrzewanie miejskie |
Realizacja inwestycji | oddanie do użytkowania w 1 kw. 2028 roku |
Udogodnienia | plac zabaw, monitoring, usługi w budynku, winda, instalacja fotowoltaiczna |
Przyroda | w okolicy inwestycji znajduje się park |
Charakterystyka energetyczna nieruchomości | informacja u dewelopera |
Rezerwacja i finanse
Rodzaj własności | Odrębna własność z własnością gruntu |
|---|---|
Wysokość czynszu | informacja u dewelopera |
Warunki rezerwacji | 1% |
Zabezpieczenie środków | Otwarty mieszkaniowy rachunek powierniczy |
Zdjęcia z budowy
Zobacz na jakim etapie budowy jest ta inwestycja
Lokalizacja inwestycji
Metro - Płocka - 779 m
Przystanek Tramwajowy - 186 m
Przystanek Autobusowy - 138 m
Dojazd do centrum: pokaż
W pobliżu 1 km od tej inwestycji znajdują się:
199 kawiarni i restauracji, 140 sklepów, 73 obiekty sportowe, 92 placówki medyczne, 79 placówek edukacyjnych, 56 placów zabaw
Przeczytaj więcej o lokalizacji
Znajdująca się w lewobrzeżnej części Warszawy, w bezpośrednim sąsiedztwie Śródmieścia, dzielnica Wola należy do najgęściej i najliczniej zaludnionych rejonów miasta. Dawny teren przemysłowy, na którym niegdyś powstały wielkie blokowiska, do dnia dzisiejszego stanowi skupisko wysokościowców. Współczesna architektura to przede wszystkim nowoczesne, postmodernistyczne biurowce, jak Atrium, budynki Kredyt Banku czy najwyższy na Woli drapacz – Warsaw Trade Tower. Atrakcyjne położenie dzielnicy sprzyja również dynamicznemu rozwojowi wysokiego budownictwa mieszkaniowego. Współczesna Wola to także ważny ośrodek życia kulturalnego, gdyż znajdują się tu znane w kraju i na świecie placówki muzealne: Muzeum Powstania Warszawskiego, Muzeum Historii Żydów Polskich oraz Muzeum Więzienia Pawiak, a ponadto: teatry, galerie sztuki i klubokawiarnie. Na tereny zielone dzielnicy składają się 4 parki i Lasek na Kole, a najważniejsze arterie to Al. Jana Pawła II i Trasa W-Z.
Opis oferty
Nowe 2-pokojowe mieszkanie na sprzedaż o powierzchni 42,81 m² znajduje się w nowo wybudowanej inwestycji deweloperskiej ReVola na Młynowie, ul. Karolkowa 53 (2.5 km od centrum Warszawy).
Inwestycja została zrealizowana przez Alides.
Cała inwestycja składa się z 1 budynku, w którym łącznie znajduje się 114 nowych mieszkań.
Na sprzedaż pozostaje 114 ofert o powierzchni od 29 do 100 m².
W budynku jest 8 kondygnacji naziemnych oraz 2 kondygnacje podziemne.
Inwestycja ReVola jest w trakcie budowy z planowanym na 1 kw. 2028 roku terminem oddania do użytkowania.
Nowe mieszkanie o oznaczeniu A.01.L.03 znajduje się na 1 piętrze i jest 1-poziomowe. Pomieszczenia mają 274 centymetrów wysokości. W mieszkaniu znajdują się 2 pokoje.
Dla przyszłych mieszkańców ReVola deweloper przewidział miejsca postojowe podziemne.
Dzięki temu przyszli właściciele nie będą musieli poszukiwać wolnej przestrzeni parkingowej. Dodatkowo, miejsce postojowe w garażu podziemnym zabezpiecza przed niekorzystnymi warunkami atmosferycznymi.
Opis Inwestycji
Tereny zielone
Pow. dodatkowe
ReVola – nowoczesna inwestycja mieszkaniowa na warszawskiej Woli
ReVola to wyjątkowa inwestycja, która powstaje przy ul. Karolkowej 53 na warszawskiej Woli – jednej z najbardziej dynamicznie rozwijających się dzielnic stolicy.
Projekt łączy nowoczesną architekturę z wysokim standardem wykonania oraz rozwiązaniami odpowiadającymi potrzebom współczesnego stylu życia. Charakterystyczna elewacja z ręcznie formowanej cegły, ułożonej w strukturalny wzór nawiązuje do industrialnej przeszłości Woli, dopracowane detale oraz spójna estetyka części wspólnych tworzą elegancką i ponadczasową przestrzeń do życia.
W inwestycji zaprojektowano 114 apartamentów o zróżnicowanych metrażach od 30 do 100 m², w układach od 1 do 4 pokoi. Każdy apartament został zaplanowany z myślą o funkcjonalności, komforcie i maksymalnym doświetleniu wnętrz – z dużymi przeszkleniami, balkonami, loggiami oraz przestronnymi ogródkami usytuowanymi na parterze. Dodatkowym wyróżnikiem jest ponadstandardowa wysokość pomieszczeń.
Atuty inwestycji:
✔ prestiżowa lokalizacja na Woli: blisko centrum Warszawy, biurowców i drugiej linii metra
✔ doskonała komunikacja w bezpośrednim sąsiedztwie
✔spektakularne widoki z okien na warszawski skyline
✔ nowoczesna architektura z elewacją z ręcznie formowanej cegły
✔ wysoki standard wykończenia części wspólnych budynku
✔ lokale usługowe na parterze
✔ eleganckie lobby
✔okna aluminiowe
✔ dekoracyjne portale drzwiowe
✔ energooszczędne oświetlenie
✔ wideodomofon
✔ panele fotowoltaiczne zasilające części wspólne budynku
✔ starannie zaprojektowane strefy zielone i miejsca relaksu na terenie inwestycji, w tym plac zabaw z osłoną przeciwsłoneczną, strefy relaksu z ławkami, hamakiem i starannie zaplanowaną zielenią
✔stojaki na rowery
ReVola powstaje w otoczeniu rozwiniętej infrastruktury miejskiej – w bezpośrednim sąsiedztwie znajdują się restauracje, kawiarnie, sklepy, punkty usługowe oraz centra biznesowe. To miejsce, w którym codzienność jest po prostu wygodna – dzięki pełnej infrastrukturze w najbliższym otoczeniu: szkołom, przedszkolom, placówkom medycznym i klubom fitness. Bliskość Skweru Gwary Warszawskiej zapewnia dostęp do kameralnej zieleni i przestrzeni do odpoczynku, tworząc idealny balans między miejskim rytmem, a chwilą wytchnienia.
To propozycja dla osób poszukujących apartamentu w dobrze skomunikowanej części miasta, który łączy miejski styl życia z komfortem, estetyką i dostępem do zieleni.
Mieszkanie znajduje się w inwestycji ReVola, w której znajduje się w sprzedaży jeszcze 68 podobnych nowych mieszkań.
Alides
Strona internetowa inwestycjiAdres biura sprzedaży:
ul. Krakowiaków 50, 02-255 WarszawaGodziny otwarcia biura sprzedaży:
- Poniedziałek: 09:00 - 17:00
- Wtorek: 09:00 - 17:00
- Środa: 09:00 - 17:00
- Czwartek: 09:00 - 17:00
- Piątek: 09:00 - 17:00





