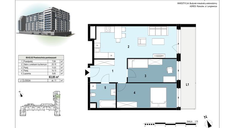
Mieszkanie na sprzedaż 3 pokoje o powierzchni 64,03 m² numer 205
Inwestycja:
Langiewicza 37Deweloper:
ACATOM Sp. z o.o.
Inwestycja:
Langiewicza 37Deweloper:
ACATOM Sp. z o.o.Rzeszów, Staroniwa, ul. gen. Mariana Langiewicza 37
Rzeszów, Staroniwa, ul. gen. Mariana Langiewicza 37
Termin oddania
Gotowe
Ilość pokoi
3 pokoje
Metraż
64,03 m²
Piętro
9 piętro
Powierzchnie dodatkowe
Loggia
Kuchnia
otwarta kuchnia
Wysokość pomieszczeń
od 260 do 280 cm wysokości
Ilość poziomów
1 poziom
Oznaczenie oferty
205

Raport o deweloperze
Poznaj dewelopera bliżej! Pobierz raport, w którym znajdziesz kluczowe informacje o firmie, jej doświadczeniu, nagrodach oraz aktualnych i zrealizowanych inwestycjach.
Budynek i otoczenie
Miejsca postojowe | |
|---|---|
Komórki lokatorskie | dostępne (90) |
Standard wykończenia | standard deweloperski Ogrzewanie z sieci miejskiej |
Realizacja inwestycji | rozpoczęcie budowy w 3 kw. 2023 roku, inwestycja została oddana do użytkowania w 3 kw. 2025 roku |
Udogodnienia | usługi w budynku, winda, wózkarnia, paczkomat |
Przyroda | w okolicy inwestycji znajduje się park |
Charakterystyka energetyczna nieruchomości |
|
Rezerwacja i finanse
Rodzaj własności | Odrębna własność z własnością gruntu |
|---|---|
Wysokość czynszu | informacja u dewelopera |
Warunki rezerwacji | Informacja u dewelopera |
Zabezpieczenie środków | Informacja u dewelopera |
Zdjęcia z budowy
Zobacz na jakim etapie budowy jest ta inwestycja
Lokalizacja inwestycji
Stacja kolejowa - Rzeszów Politechnika - 365 m
Przystanek Autobusowy - 116 m
Dojazd do centrum: pokaż
W pobliżu 1 km od tej inwestycji znajdują się:
16 kawiarni i restauracji, 45 sklepów, 29 obiektów sportowych, 12 placówek medycznych, 67 placówek edukacyjnych, 24 place zabaw
Przeczytaj więcej o lokalizacji
Rzeszów to miasto w południowo-wschodniej Polsce będące stolica województwa podkarpackiego. Położony jest na Podgórzu Rzeszowskim. W skład Rzeszowa wchodzi kilkadziesiąt osiedli. Zabudowa Śródmieścia Rzeszowa pochodzi w większości z XIX wieku, pozostałe części miasta charakteryzują się przeważnie zabudową typową dla osiedli miejskich – są to bloki oraz osiedla domów jednorodzinnych czy szeregowców. Do najważniejszych zabytków Rzeszowa należy gotycki kościół farny oraz zamek z czasów Lubomirskich. Reprezentacyjną częścią miasta jest deptak 3 Maja. W Rzeszowie jest też kilka wieżowców – w 2014 roku oddano do użytku 18-piętrowy apartamentowiec Capital Towers, a w 2015 r. SkyRes Warszawska, 14-piętrowy biurowiec wraz z zapleczem mieszkalnym. W obrębie Rzeszowa znajduje się także rezerwat przyrody Lisia Góra położony nad Zbiornikiem Rzeszowskim. W mieście znajduje się również wiele ważnych obiektów sportowych oraz kulturalnych, m.in. Filharmonia Podkarpacka czy Hala Podpromie.
Opis oferty
Nowe 3-pokojowe mieszkanie na sprzedaż o powierzchni 64,03 m² znajduje się w nowo budowanej inwestycji deweloperskiej Langiewicza 37 na Staroniwie, ul. gen. Mariana Langiewicza 37 (1.7 km od centrum Rzeszowa).
Inwestycja jest realizowana przez ACATOM Sp. z o.o.
Cała inwestycja składa się z 1 budynku, w którym łącznie znajduje się 230 nowych mieszkań.
Na sprzedaż pozostaje 30 ofert o powierzchni od 64 do 99 m².
W budynku jest 12 kondygnacji naziemnych oraz 1 kondygnacja podziemna.
Inwestycja Langiewicza 37 została wybudowana i oddana do użytkowania w 3 kw. 2025 roku.
Nowe mieszkanie o oznaczeniu 205 znajduje się na 9 piętrze i jest 1-poziomowe. Pomieszczenia mają od 260 do 280 centymetrów wysokości. W mieszkaniu znajdują się 3 pokoje.
Do mieszkania przewidziano możliwość zakupu komórki lokatorskiej, którą można zagospodarować na spiżarnię, warsztat czy składzik.
Dla przyszłych mieszkańców Langiewicza 37 deweloper przewidział miejsca postojowe podziemne, miejsca postojowe naziemne.
Dzięki temu przyszli właściciele nie będą musieli poszukiwać wolnej przestrzeni parkingowej. Dodatkowo, miejsce postojowe w garażu podziemnym zabezpiecza przed niekorzystnymi warunkami atmosferycznymi.
Opis Inwestycji
Tereny zielone
Pow. dodatkowe
Langiewicza 37 to nowa inwestycja, która powstaje blisko centrum Rzeszowa. W dwunastokondygnacyjnym budynku wydzielono łącznie 230 mieszkań o powierzchni od 34,04 m² do 99,12 m², które w zależności od kondygnacji posiadają ogródki, balkony lub widokowe tarasy. Dla właścicieli przewidziano w sumie 290 miejsc postojowych, a także komórki lokatorskie, schowki oraz wózkownie. Na parterze zaplanowano strefę 5 lokali usługowych. Oferujemy jedno i dwupokojowe mieszkania, komfortowe dla singli i par. Znajdą tu też coś dla siebie rodziny i osoby szukające większego lokum, które potrzebują dobrze zaplanowanej przestrzeni w ramach trzech, czterech lub nawet pięciu pokoi.
Z ostatnich pięter budynku będzie się rozlegał widok na panoramę Rzeszowa. Chwilę wytchnienia po długim dniu zapewni ogród japoński znajdujący się na terenie inwestycji, a także strefa rekreacji. Zieleń wokół osiedla zostanie zaaranżowana z dbałością o szczegóły, z zachowaniem naturalnych walorów okolicy. Lokale usługowe na parterze pozwolą na bezproblemowe załatwianie codziennych spraw. Znajdzie się tu również parking dla rowerów. Mieszkańcy, którzy na co dzień żyją tempem Rzeszowa, docenią po intensywnym dniu miejsce, gdzie na wyciągnięcie ręki będą mieli wszystko, czego potrzebują.
Wyróżniki inwestycji
Dogodna lokalizacja
Inwestycja położona jest blisko centrum Rzeszowa, około 2 km od Rynku Miejskiego, w dobrze skomunikowanej z obwodnicą miasta okolicy.
Duży wybór mieszkań
Zaprojektowaliśmy zarówno małe metraże, komfortowe dla singli i par, ale także duże, przestronne mieszkania dla rodzin i osób szukających większej przestrzeni.
Udogodnienia dla mieszkańców
Na terenie inwestycji znajdzie się strefa rekreacji dla mieszkańców, ogród japoński, 5 lokali usługowych, a także stacja przechowywania rowerów.
Mieszkanie znajduje się w inwestycji Langiewicza 37, w której znajduje się w sprzedaży jeszcze 12 podobnych nowych mieszkań.
ACATOM Sp. z o.o.
Strona internetowa inwestycjiAdres biura sprzedaży:
ul. Langiewicza 37/12 (II piętro) RzeszówGodziny otwarcia biura sprzedaży:
- Poniedziałek: 08:00 - 16:00
- Wtorek: 08:00 - 16:00
- Środa: 08:00 - 17:00
- Czwartek: 08:00 - 16:00
- Piątek: 08:00 - 16:00
- Sobota: 09:00 - 13:00





