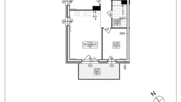
Mieszkanie na sprzedaż 3 pokoje o powierzchni 51,86 m² numer A1.9
Inwestycja:
Osiedle Zielone bud. A1, B8Deweloper:
Zelbo Szczytno
Inwestycja:
Osiedle Zielone bud. A1, B8Deweloper:
Zelbo SzczytnoSzczytno, ul. Sobieszczańskiego 15B
Szczytno, ul. Sobieszczańskiego 15B
Termin oddania
2 kw. 2027
Ilość pokoi
3 pokoje
Metraż
51,86 m²
Piętro
1 piętro
Powierzchnie dodatkowe
Balkon
Kuchnia
otwarta kuchnia
Wysokość pomieszczeń
od 260 do 280 cm wysokości
Ilość poziomów
1 poziom
Oznaczenie oferty
A1.9

Raport o deweloperze
Poznaj dewelopera bliżej! Pobierz raport, w którym znajdziesz kluczowe informacje o firmie, jej doświadczeniu, nagrodach oraz aktualnych i zrealizowanych inwestycjach.
Budynek i otoczenie
Miejsca postojowe | |
|---|---|
Standard wykończenia | standard deweloperski Ogrzewanie miejska sieć ciepłownicza |
Realizacja inwestycji | rozpoczęcie budowy w 1 kw. 2025 roku, planowane oddanie do użytkowania w 2 kw. 2027 roku |
Udogodnienia | plac zabaw, winda, rowerownia, wózkarnia, paczkomat |
Przyroda | w okolicy inwestycji znajduje się park |
Charakterystyka energetyczna nieruchomości | informacja u dewelopera |
Rezerwacja i finanse
Rodzaj własności | informacja u dewelopera |
|---|---|
Wysokość czynszu | informacja u dewelopera |
Warunki rezerwacji | 1 tydzień lub do uzyskania informacji o kredycie |
Zabezpieczenie środków | Informacja u dewelopera |
Zdjęcia z budowy
Zobacz na jakim etapie budowy jest ta inwestycja
Lokalizacja inwestycji
Stacja kolejowa - Szczytno - 1135 m
Przystanek Autobusowy - 55 m
Dojazd do centrum Olsztyna: pokaż
W pobliżu 1 km od tej inwestycji znajdują się:
1 kawiarnia lub restauracja, 9 sklepów, 4 obiekty sportowe, 4 placówki medyczne, 6 placówek edukacyjnych, 6 placów zabaw
Przeczytaj więcej o lokalizacji
Szczytno to 25-tysięczne miasto zlokalizowane w województwie warmińsko-mazurskim, w powiecie szczycieńskim. Szczytno to najbardziej wysunięty punkt południowo-wschodniej części województwa. Miejscowość o tyle niezwykła, gdyż od centrum mieszkańców dzieli zaledwie kilka kroków do dwóch jezior - Domowe Małe i Duże. Aktywny wypoczynek umożliwiają szlaki turystyczne – piesze, rowerowe, kajakowe. Szczytno kojarzone jest bardziej z turystycznym charakterem gdyż ze wszystkich stron otoczone jest lasami i krystalicznymi wodami jezior. Ze względu na szlak komunikacyjny wiodący do Krainy Wielkich Jezior Mazurskich, często wybierane jest jako miejsce wypoczynku. Zaplecze sklepów, lokali usługowych i gastronomicznych pozwala na bieżące uzupełnianie zapasów mieszkańców, a także letników wybierających wypoczynek na obrzeżach miasta. Na terenie Szczytna działalność gospodarczą prowadzą małe i średnie przedsiębiorstwa spożywcze, meblarskie. Rozwija się także handel detaliczny, hurtowy oraz usługi turystyczne. Warmińsko-Mazurska Specjalna Strefa Ekonomiczna daje prawo do korzystania z pomocy publicznej w postaci zwolnienia z podatku dochodowego z tytułu kosztów nowej inwestycji lub utworzenia nowych miejsc pracy. Niskie ceny działek i lokali przyczyniają się do powstawania coraz to nowszych inwestycji dzięki czemu mieszkańców Szczytna wciąż przybywa.
Opis oferty
Nowe 3-pokojowe mieszkanie na sprzedaż o powierzchni 51,86 m² znajduje się w nowo budowanej inwestycji deweloperskiej Osiedle Zielone bud. A1, B8 w Szczytnie, ul. Sobieszczańskiego 15B (35.9 km od Olsztyna).
Inwestycja jest realizowana przez Zelbo Szczytno.
Cała inwestycja składa się z 2 budynków, w których łącznie znajdują się 44 nowe mieszkania.
Na sprzedaż pozostają 43 oferty o powierzchni od 40 do 71 m².
W budynkach jest 6 kondygnacji naziemnych. Budynek nie posiada kondygnacji podziemnych.
Inwestycja Osiedle Zielone bud. A1, B8 jest w trakcie budowy z planowanym na 2 kw. 2027 roku terminem oddania do użytkowania.
Nowe mieszkanie o oznaczeniu A1.9 znajduje się na 1 piętrze i jest 1-poziomowe. Pomieszczenia mają od 260 do 280 centymetrów wysokości. W mieszkaniu znajdują się 3 pokoje.
Dla przyszłych mieszkańców Osiedle Zielone bud. A1, B8 deweloper przewidział miejsca postojowe naziemne.
Dzięki temu przyszli właściciele nie będą musieli poszukiwać wolnej przestrzeni parkingowej.
Opis Inwestycji
Pow. dodatkowe
Osiedle Zielone jest w położone w cichej i spokojnej okolicy. W sąsiedztwie znajdują się dyskonty spożywcze i usługi takie jak piekarnia, poczta oraz szpital. W ofercie kompleks posiada szeroki wybór mieszkań 2,3,4-pokojowych oraz lokale usługowe. Większość mieszkań posiada balkon lub przynależne tarasy z ogródkami. Inwestycja jest bardzo dobrze skomunikowana z centrum miasta. Jest to idealna inwestycja zarówno dla mieszkańców ceniących sobie spokój, jak i osób aktywnych. Osiedle znajduje się przy popularnej trasie rowerowej prowadzącej przez lasy Puszczy Napiwodzko-Ramuckiej.
Mieszkanie znajduje się w inwestycji Osiedle Zielone bud. A1, B8, w której znajduje się w sprzedaży jeszcze 30 podobnych nowych mieszkań.
Zelbo Szczytno
Strona internetowa inwestycjiAdres biura sprzedaży:
ul. Dąbrowskiego 8, 12-100 SzczytnoGodziny otwarcia biura sprzedaży:
- Poniedziałek: 08:00 - 15:00
- Wtorek: 08:00 - 15:00
- Środa: 08:00 - 15:00
- Czwartek: 08:00 - 15:00
- Piątek: 08:00 - 15:00





