Mieszkanie na sprzedaż 1 pokój o powierzchni 26,74 m² numer EA0003
Inwestycja:
Talarowa Park IIDeweloper:
YIT Development Sp. z o.o.
Inwestycja:
Talarowa Park IIDeweloper:
YIT Development Sp. z o.o.Warszawa, Białołęka, Tarchomin, ul. Talarowa
Warszawa, Białołęka, Tarchomin, ul. Talarowa
Termin oddania
3 kw. 2026
Ilość pokoi
1 pokój
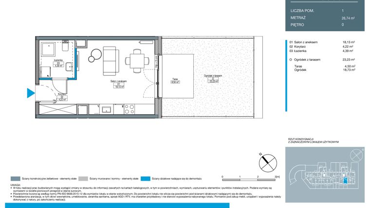
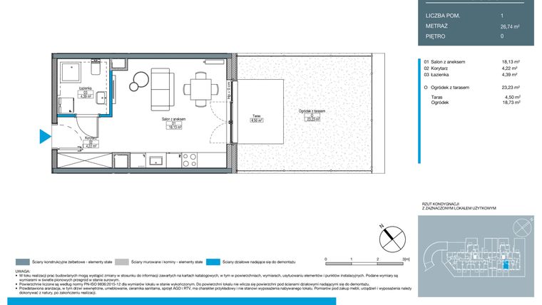
Metraż
26,74 m²
Piętro
Parter
Powierzchnie dodatkowe
Taras
Kuchnia
otwarta kuchnia
Wysokość pomieszczeń
od 260 do 280 cm wysokości
Ilość poziomów
1 poziom
Oznaczenie oferty
EA0003

Raport o deweloperze
Poznaj dewelopera bliżej! Pobierz raport, w którym znajdziesz kluczowe informacje o firmie, jej doświadczeniu, nagrodach oraz aktualnych i zrealizowanych inwestycjach.
Budynek i otoczenie
Miejsca postojowe | |
|---|---|
Standard wykończenia | standard deweloperski Ogrzewanie miejskie |
Realizacja inwestycji | oddanie do użytkowania w 3 kw. 2026 roku |
Udogodnienia | plac zabaw, monitoring, winda, instalacja fotowoltaiczna |
Przyroda | w okolicy inwestycji znajduje się las |
Charakterystyka energetyczna nieruchomości | informacja u dewelopera |
Rezerwacja i finanse
Rodzaj własności | Odrębna własność z własnością gruntu |
|---|---|
Wysokość czynszu | informacja u dewelopera |
Warunki rezerwacji | Informacja u dewelopera |
Zabezpieczenie środków | Otwarty mieszkaniowy rachunek powierniczy |

Zdjęcia z budowy i widok 3D
Zobacz na jakim etapie budowy jest ta inwestycja
Lokalizacja inwestycji
Stacja kolejowa - Warszawa Płudy - 2506 m
Przystanek Tramwajowy - 567 m
Przystanek Autobusowy - 59 m
Dojazd do centrum: pokaż
W pobliżu 1 km od tej inwestycji znajdują się:
33 kawiarnie i restauracje, 46 sklepów, 44 obiekty sportowe, 15 placówek medycznych, 66 placówek edukacyjnych, 71 placów zabaw
Przeczytaj więcej o lokalizacji
Białołęka to północna, druga pod względem wielkości powierzchni, dzielnica Warszawy odznaczająca się najszybszym rozwojem. Występują tutaj zarówno osiedla domów jednorodzinnych w północnej części obszaru, jak również wysoka, nowoczesna zabudowa mieszkaniowa. Dużą popularnością nadal cieszą się białołęckie osiedla z wielkiej płyty: Nowy Tarchomin, Nowodwory i Nowe Świdry. W strefie centralnej i południowej rozwija się infrastruktura handlowo-usługowa, więc obszar ten ma szansę stać się czymś więcej, niż kolejną warszawską "sypialnią". Białołęka jest jedną z najspokojniejszych dzielnic, a wypoczynek umożliwiają: kompleksy leśne, parki, rezerwaty przyrody i ścieżki rowerowe. Dogodnym sposobem dojazdu do centrum miasta są tutaj liczne linie autobusowe z pętlą Nowodwory, zaś do głównych arterii dzielnicy należą fragmenty dróg krajowych: ul. Modlińska i Trasa Toruńska, a także ul. Płochocińska.
Opis oferty
Nowe 1-pokojowe mieszkanie na sprzedaż o powierzchni 26,74 m² znajduje się w nowo wybudowanej inwestycji deweloperskiej Talarowa Park II na Tarchominie, ul. Talarowa (11.3 km od centrum Warszawy).
Inwestycja została zrealizowana przez YIT Development Sp. z o.o.
Cała inwestycja składa się z 2 budynków, w których łącznie znajduje się 109 nowych mieszkań.
Na sprzedaż pozostaje 61 ofert o powierzchni od 27 do 107 m².
W budynkach są 4 kondygnacje naziemne oraz 1 kondygnacja podziemna.
Inwestycja Talarowa Park II jest w trakcie budowy z planowanym na 3 kw. 2026 roku terminem oddania do użytkowania.
Nowe mieszkanie o oznaczeniu EA0003 znajduje się na parterze i jest 1-poziomowe. Pomieszczenia mają od 260 do 280 centymetrów wysokości. W mieszkaniu znajduje się 1 pokój.
Dla przyszłych mieszkańców Talarowa Park II deweloper przewidział miejsca postojowe podziemne, miejsca postojowe naziemne.
Dzięki temu przyszli właściciele nie będą musieli poszukiwać wolnej przestrzeni parkingowej. Dodatkowo, miejsce postojowe w garażu podziemnym zabezpiecza przed niekorzystnymi warunkami atmosferycznymi.
Opis Inwestycji
Okazyjna cena
Pow. dodatkowe
Talarowa Park to inwestycja największego fińskiego dewelopera – YIT.
Talarowa Park będzie miejscem idealnym dla osób pragnących połączyć bliskość natury z bliskością miasta. W niskiej, czteropiętrowej zabudowie w ramach drugiego etapu powstanie 109 mieszkań. Ich uzupełnieniem są garaż podziemny oraz naziemne miejsca parkingowe. Dla bezpieczeństwa mieszkańców osiedle będzie monitorowane.
Tworząc Talarowa Park, pomyśleliśmy o wszystkim – doskonałej lokalizacji, bliskości natury i perfekcyjnym wykonaniu. Sięgamy wyłącznie po materiały wysokiej jakości – tak, by zyskać pewność, że w pełni odpowiedzą na Twoje oczekiwania. Wybierane przez nas stylowe materiały pozwala ją budować fiński design, ale są też w pełni funkcjonalne.
Mieszkanie znajduje się w inwestycji Talarowa Park II, w której znajdują się w sprzedaży jeszcze 3 podobne nowe mieszkania.





