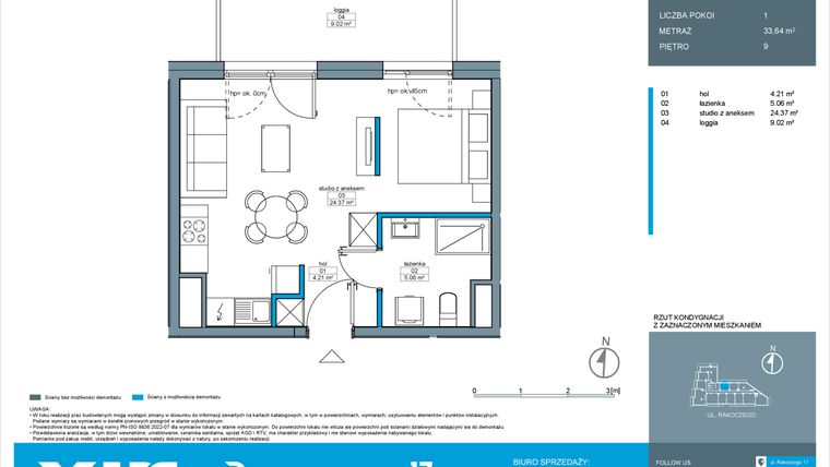
Mieszkanie na sprzedaż 1 pokój o powierzchni 33,6 m² numer A.9.1
Inwestycja:
Rakoczego 17Deweloper:
YIT Development Sp. z o.o.
Inwestycja:
Rakoczego 17Deweloper:
YIT Development Sp. z o.o.Gdańsk, Piecki-Migowo, ul. Rakoczego 17
Gdańsk, Piecki-Migowo, ul. Rakoczego 17
Termin oddania
4 kw. 2026
Ilość pokoi
1 pokój
Metraż
33,6 m²
Piętro
8 piętro
Powierzchnie dodatkowe
Balkon
Kuchnia
otwarta kuchnia
Wysokość pomieszczeń
261 cm wysokości
Ilość poziomów
1 poziom
Oznaczenie oferty
A.9.1

Raport o deweloperze
Poznaj dewelopera bliżej! Pobierz raport, w którym znajdziesz kluczowe informacje o firmie, jej doświadczeniu, nagrodach oraz aktualnych i zrealizowanych inwestycjach.
Budynek i otoczenie
Miejsca postojowe | |
|---|---|
Komórki lokatorskie | dostępne (22): nieobowiązkowy zakup; 2,54 do 5,96 m2 |
Standard wykończenia | standard deweloperski Ogrzewanie miejskie |
Realizacja inwestycji | rozpoczęcie budowy w 2 kw. 2025 roku, planowane oddanie do użytkowania w 4 kw. 2026 roku |
Udogodnienia | monitoring, usługi w budynku, winda, rowerownia, instalacja fotowoltaiczna, miejsce do ładowania samochodów elektrycznych |
Przyroda | w okolicy inwestycji znajduje się park |
Charakterystyka energetyczna nieruchomości | informacja u dewelopera |
Rezerwacja i finanse
Rodzaj własności | Odrębna własność z własnością gruntu |
|---|---|
Wysokość czynszu | informacja u dewelopera |
Warunki rezerwacji | 1% wpłaty |
Zabezpieczenie środków | Otwarty mieszkaniowy rachunek powierniczy i gwarancję bankową |
Zdjęcia z budowy
Zobacz na jakim etapie budowy jest ta inwestycja
Lokalizacja inwestycji
Stacja kolejowa - Gdańsk Brętowo - 1099 m
Przystanek Tramwajowy - 154 m
Przystanek Autobusowy - 107 m
Dojazd do centrum: pokaż
W pobliżu 1 km od tej inwestycji znajdują się:
42 kawiarnie i restauracje, 67 sklepów, 56 obiektów sportowych, 15 placówek medycznych, 32 placówki edukacyjne, 65 placów zabaw
Przeczytaj więcej o lokalizacji
Piecki-Migowo to dzielnica Gdańska o powierzchni nieco ponad 4 km kw i liczbie ludności 22 tys. Ta niewielka dzielnica położona jest w środkowej części Gdańska, pomiędzy dzielnicami Brętowo, Wrzeszcz Górny, Suchanino, Siedlce, Ujeścisko-Łostowice i Jasień. Znajdują się tu liczne zbiorniki wodne, m. in. Staw Pistolet i Wileńska. Znajduje się tu też Gdański Park Naukowo-Technologiczny, miejskie ogródki działkowe i spore tereny zielone. Największą arterią dzielnicy jest przecinająca ją na pół ul. Rakoczego z licznymi kawiarniami czy restauracjami. Znajdują się tu też liczne zabytki wojskowe z okresu II wojny światowej. W dzielnicy mieści się centrum handlowe Morena a także supermarket Tesco. Najbliższymi szkołami wyższymi są Gdański Uniwersytet Medyczny, Wyższa Szkoła Turystyki i Hotelarstwa a także Wyższa Szkoła Bankowa mieszczące się w odległości ok. 2 km od granicy dzielnicy. Dobry dojazd do innych dzielnic zapewniają trzy pętle autobusowe i kilkanaście linii autobusów przejeżdżających przez Piecki – Migowo.
Opis oferty
Nowe 1-pokojowe mieszkanie na sprzedaż o powierzchni 33,6 m² znajduje się w nowo budowanej inwestycji deweloperskiej Rakoczego 17 na Pieckach-Migowo, ul. Rakoczego 17 (4 km od centrum Gdańska).
Inwestycja jest realizowana przez YIT Development Sp. z o.o.
Cała inwestycja składa się z 1 budynku, w którym łącznie znajdują się 154 nowe mieszkania.
Na sprzedaż pozostaje 120 ofert o powierzchni od 30 do 126 m².
W budynku jest 13 kondygnacji naziemnych oraz 2 kondygnacje podziemne.
Inwestycja Rakoczego 17 jest w trakcie budowy z planowanym na 4 kw. 2026 roku terminem oddania do użytkowania.
Nowe mieszkanie o oznaczeniu A.9.1 znajduje się na 8 piętrze i jest 1-poziomowe. Pomieszczenia mają 261 centymetrów wysokości. W mieszkaniu znajduje się 1 pokój.
Do mieszkania przewidziano możliwość zakupu komórki lokatorskiej, którą można zagospodarować na spiżarnię, warsztat czy składzik.
Dla przyszłych mieszkańców Rakoczego 17 deweloper przewidział miejsca postojowe podziemne.
Dzięki temu przyszli właściciele nie będą musieli poszukiwać wolnej przestrzeni parkingowej. Dodatkowo, miejsce postojowe w garażu podziemnym zabezpiecza przed niekorzystnymi warunkami atmosferycznymi.
Opis Inwestycji
Okazyjna cena
Tereny zielone
Pow. dodatkowe
Rakoczego 17 to inwestycja największego fińskiego dewelopera – YIT.
W ramach tej jednoetapowej inwestycji, powstaną 154 komfortowe mieszkania. Doskonała lokalizacja na gdańskiej Morenie oznacza świetną komunikację z pozostałymi częściami miasta, a dzięki rozbudowanej, istniejącej już infrastrukturze, z pewnością okaże się wygodnym miejscem do życia.
W YIT stawiamy na proekologiczne rozwiązania: panele fotowoltaiczne na dachu, oświetlenie LED na korytarzach czy gniazda do ładowania aut elektrycznych. Doceniamy także osoby, które wybierają przyjazne dla środowiska środki transportu – dla ich komfortu zaplanowaliśmy stojaki rowerowe na terenie inwestycji. W północnej części działki powstanie ogród deszczowy, retencjonujący wodę opadową. Przestrzeń zostanie wzbogacona o zielone patio i zielone, nieużytkowe dachy.
Mieszkanie znajduje się w inwestycji Rakoczego 17, w której znajduje się w sprzedaży jeszcze 18 podobnych nowych mieszkań.
YIT Development Sp. z o.o.
Strona internetowa inwestycjiAdres biura sprzedaży:
ul. ks. Jerzego Popiełuszki 2, lok. U2 80-864 GdańskGodziny otwarcia biura sprzedaży:
- Poniedziałek: 10:00 - 18:00
- Wtorek: 10:00 - 18:00
- Środa: 10:00 - 18:00
- Czwartek: 10:00 - 18:00
- Piątek: 10:00 - 18:00
- Sobota: 09:00 - 14:00





