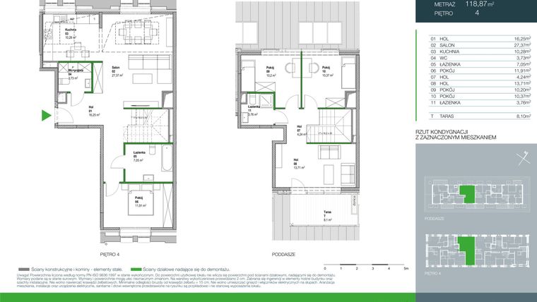
Mieszkanie na sprzedaż 4 pokoje o powierzchni 118,87 m² numer E.2.4.01
Inwestycja:
Aroma Park LoftyDeweloper:
YIT Development Sp. z o.o.
Inwestycja:
Aroma Park LoftyDeweloper:
YIT Development Sp. z o.o.Warszawa, Białołęka, Henryków, ul. Klasyków 10
Warszawa, Białołęka, Henryków, ul. Klasyków 10
Termin oddania
Gotowe
Ilość pokoi
4 pokoje
Metraż
118,87 m²
Piętro
4 piętro
Powierzchnie dodatkowe
Balkon
Kuchnia
otwarta kuchnia
Wysokość pomieszczeń
od 265 do 440 cm wysokości
Ilość poziomów
1 poziom
Oznaczenie oferty
E.2.4.01

Raport o deweloperze
Poznaj dewelopera bliżej! Pobierz raport, w którym znajdziesz kluczowe informacje o firmie, jej doświadczeniu, nagrodach oraz aktualnych i zrealizowanych inwestycjach.
Budynek i otoczenie
Miejsca postojowe | |
|---|---|
Komórki lokatorskie | dostępne |
Standard wykończenia | standard deweloperski |
Realizacja inwestycji | została oddana do użytkowania w 3 kw. 2024 roku |
Udogodnienia | ochrona całodobowa, plac zabaw, monitoring, teren ogrodzony, przystosowane dla niepełnosprawnych, usługi w budynku, winda, rowerownia, videodomofon, wózkarnia, patio / dziedziniec |
Przyroda | w okolicy inwestycji znajduje się park |
Charakterystyka energetyczna nieruchomości |
|
Rezerwacja i finanse
Rodzaj własności | Odrębna własność z własnością gruntu |
|---|---|
Wysokość czynszu | informacja u dewelopera |
Warunki rezerwacji | Informacja u dewelopera |
Zabezpieczenie środków | Informacja u dewelopera |
Zdjęcia z budowy
Zobacz na jakim etapie budowy jest ta inwestycja
Lokalizacja inwestycji
Stacja kolejowa - Warszawa Płudy - 1135 m
Przystanek Tramwajowy - 1553 m
Przystanek Autobusowy - 159 m
Dojazd do centrum: pokaż
W pobliżu 1 km od tej inwestycji znajdują się:
8 kawiarni i restauracji, 9 sklepów, 18 obiektów sportowych, 3 placówki medyczne, 29 placówek edukacyjnych, 11 placów zabaw
Przeczytaj więcej o lokalizacji
Teren inwestycji znajduje się na warszawskiej Białołęce, a dokładniej w Henrykowie przy ul. Klasyków. W okolicy Aroma Park Lofty znajdują się: park, w którym będziesz mieć możliwość spacerowania, przedszkola oraz szkoła podstawowa, dzięki czemu Twoje dziecko będzie mogło uczyć się w pobliżu domu, sklepy spożywcze, gdzie zakupisz świeże produkty, siłowania, na której będziesz mieć możliwość pracy nad swoją formą oraz galeria, w której znajdziesz wiele restauracji, miejsc rozrywki oraz sklepów.
Białołęka to północna, druga pod względem wielkości powierzchni, dzielnica Warszawy odznaczająca się najszybszym rozwojem. Występują tutaj zarówno osiedla domów jednorodzinnych w północnej części obszaru, jak również wysoka, nowoczesna zabudowa mieszkaniowa. Dużą popularnością nadal cieszą się białołęckie osiedla z wielkiej płyty: Nowy Tarchomin, Nowodwory i Nowe Świdry. W strefie centralnej i południowej rozwija się infrastruktura handlowo-usługowa, więc obszar ten ma szansę stać się czymś więcej, niż kolejną warszawską "sypialnią". Białołęka jest jedną z najspokojniejszych dzielnic, a wypoczynek umożliwiają: kompleksy leśne, parki, rezerwaty przyrody i ścieżki rowerowe. Dogodnym sposobem dojazdu do centrum miasta są tutaj liczne linie autobusowe z pętlą Nowodwory, zaś do głównych arterii dzielnicy należą fragmenty dróg krajowych: ul. Modlińska i Trasa Toruńska, a także ul. Płochocińska.
Opis oferty
Nowe 4-pokojowe mieszkanie na sprzedaż o powierzchni 118,87 m² znajduje się w nowo wybudowanej inwestycji deweloperskiej Aroma Park Lofty na Henrykowie, ul. Klasyków 10 (11.8 km od centrum Warszawy).
Inwestycja została zrealizowana przez YIT Development Sp. z o.o.
Cała inwestycja składa się z 4 budynków, w których łącznie znajduje się 170 nowych mieszkań.
Na sprzedaż pozostaje 11 ofert o powierzchni od 28 do 119 m².
W budynkach są 4 kondygnacje naziemne oraz 1 kondygnacja podziemna.
Inwestycja Aroma Park Lofty została wybudowana i oddana do użytkowania w 3 kw. 2024 roku.
Nowe mieszkanie o oznaczeniu E.2.4.01 znajduje się na 4 piętrze i jest 1-poziomowe. Pomieszczenia mają od 265 do 440 centymetrów wysokości. W mieszkaniu znajdują się 4 pokoje.
Dla przyszłych mieszkańców Aroma Park Lofty deweloper przewidział miejsca postojowe podziemne, miejsca postojowe naziemne.
Dzięki temu przyszli właściciele nie będą musieli poszukiwać wolnej przestrzeni parkingowej. Dodatkowo, miejsce postojowe w garażu podziemnym zabezpiecza przed niekorzystnymi warunkami atmosferycznymi.
Opis Inwestycji
Pow. dodatkowe
Przestrzeń dla Twojej historii
Aroma Park Lofty to inwestycja największego fińskiego dewelopera – YIT.
Białołęka, a dokładniej Henryków - dawniej tereny, na których znajdowały się niewielkie wsie, dzikie pola oraz lasy. Punktem zwrotnym dla okolicy było powstanie gorzelni drożdżowej, która zaczęła przyciągać w swe okolice nowych mieszkańców.
Od momentu powstania gorzelni drożdżowej minęło ponad 100 lat, w tym czasie powstała niesamowita historia nie tylko samej fabryki, ale również dzielnicy. Sam obszar - Henryków – zawdzięcza swoją nazwę właśnie założycielowi gorzelni Henrykowi Bienenthal.
Gorzelnia zakończyła już swoją działalność, natomiast YIT postanowiło dać terenowi nowe życie poprzez zachowanie ponad stuletniej architektury i zrewitalizowanie budynków. Dzięki temu przyszli mieszkańcy otrzymają niepowtarzalną okazję, by zamieszkać w jedynym takim miejscu w stolicy.
Aroma Park znajduje się w samym sercu zielonej Białołęki, na działce o wielkości trzech hektarów. Blisko 40% tej powierzchni stanowi zieleń oraz dojrzałe drzewostany. Inwestycja graniczy również z odnowionym Parkiem Henrykowskim, do którego prowadzi bezpośrednie przejście z terenu osiedla, które dostępne jest wyłącznie dla mieszkańców.
Przyszli mieszkańcy mogą liczyć na liczne udogodnienia w stylu fińskim, zaprojektowane z myślą o środowisku, zaś miejsca postojowe w garażu podziemnym zostaną wyposażone w instalacje do ładowania pojazdów elektrycznych i hybrydowych.
Aroma Park jest osiedlem dla osób lubiących spędzać czas na świeżym powietrzu. W częściach wspólnych powstanie plac zabaw, strefa jogi, tężnia solankowa, strefa relaksu czy część piknikowa, gdzie znajdą się stoły, hamaki oraz boisko do gry w bule.
Każdy budynek, każde mieszkanie będzie posiadać swój unikatowy charakter, oferując przestrzeń, w której każdy będzie mógł napisać swoją własną historię.
Jedno miejsce wiele możliwości
Obecnie w sprzedaży znajdują się mieszkania w:
- budynku zrewitalizowanej Fabryki (łącznie 30 mieszkań),
- budynku zrewitalizowanej Willi (łącznie 8 mieszkań),
- Starym Magazynie (łącznie 8 mieszkań),
- nowym budynku łączącym nowoczesność z historią miejsca (łącznie 124 mieszkania).
Doświadczenie i jakość
Decydując się na zakup mieszkania w Aroma Park Lofty wybierasz sprawdzonego fińskiego dewelopera YIT Development Sp. z o.o. posiadającego doświadczenie oraz najwyższe standardy jakości w budownictwie. Działamy na terenie: Finlandii, Czech, Estonii, Litwy, Łotwy, Szwecji, Norwegii oraz Słowacji.
Mieszkanie znajduje się w inwestycji Aroma Park Lofty, w której znajdują się w sprzedaży jeszcze 2 podobne nowe mieszkania.
YIT Development Sp. z o.o.
Strona internetowa inwestycjiAdres biura sprzedaży:
ul. Klasyków 10, 03-115 WarszawaGodziny otwarcia biura sprzedaży:
- Poniedziałek: 09:00 - 17:00
- Wtorek: 09:00 - 17:00
- Środa: 09:00 - 17:00
- Czwartek: 09:00 - 17:00
- Piątek: 09:00 - 17:00
- Sobota: 09:00 - 14:00





