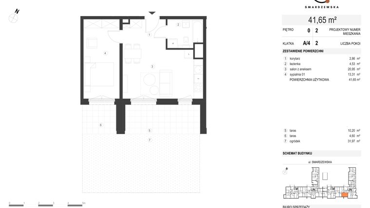
Mieszkanie na sprzedaż 2 pokoje o powierzchni 41,65 m² numer A/4/0.2
Inwestycja:
Smardzewska 8Deweloper:
VINCI Immobilier Polska
Inwestycja:
Smardzewska 8Deweloper:
VINCI Immobilier PolskaPoznań, Grunwald, Grunwald Południe, ul. Smardzewska 8
Poznań, Grunwald, Grunwald Południe, ul. Smardzewska 8
Termin oddania
2 kw. 2027
Ilość pokoi
2 pokoje
Metraż
41,65 m²
Piętro
Parter
Powierzchnie dodatkowe
Taras, Ogródek
Kuchnia
otwarta kuchnia
Wysokość pomieszczeń
od 270 do 300 cm wysokości
Ilość poziomów
1 poziom
Oznaczenie oferty
A/4/0.2

Raport o deweloperze
Poznaj dewelopera bliżej! Pobierz raport, w którym znajdziesz kluczowe informacje o firmie, jej doświadczeniu, nagrodach oraz aktualnych i zrealizowanych inwestycjach.
Budynek i otoczenie
Miejsca postojowe | |
|---|---|
Standard wykończenia | standard deweloperski Ogrzewanie miejskie |
Realizacja inwestycji | rozpoczęcie budowy w 2 kw. 2025 roku, planowane oddanie do użytkowania w 2 kw. 2027 roku |
Udogodnienia | winda |
Przyroda | informacja u dewelopera |
Charakterystyka energetyczna nieruchomości | informacja u dewelopera |
Rezerwacja i finanse
Rodzaj własności | Odrębna własność z własnością gruntu |
|---|---|
Wysokość czynszu | informacja u dewelopera |
Warunki rezerwacji | Informacja u dewelopera |
Zabezpieczenie środków | Informacja u dewelopera |
Zdjęcia z budowy
Zobacz na jakim etapie budowy jest ta inwestycja
Lokalizacja inwestycji
Stacja kolejowa - Poznań Górczyn - 1803 m
Przystanek Tramwajowy - 333 m
Przystanek Autobusowy - 143 m
Dojazd do centrum: pokaż
W pobliżu 1 km od tej inwestycji znajdują się:
12 kawiarni i restauracji, 24 sklepy, 43 obiekty sportowe, 10 placówek medycznych, 31 placówek edukacyjnych, 28 placów zabaw
Przeczytaj więcej o lokalizacji
Grunwald to leżąca na zachodzie miasta dzielnica Poznania o powierzchni 36 km kw i populacji 125 tys. mieszkańców. Dzielnica zamyka się w ulicach Skórzewskiej, Bukowskiej, Kolejowej i Leszczyńskiej. Dzielnicę z południowego zachodu na północy wschód przedziela ul. Głogowska, za miastem przechodząca w drogę krajową E261. Na terenie Grunwaldu krzyżuje się z nią droga europejska E30. Dzielnica ma własną szkołę wyższą – to Wyższa Szkoła Bezpieczeństwa. Jest stąd również blisko do Portu Lotniczego Poznań-Ławica, który zaczyna się tuż za północną granicą. Dzielnica ma też dobry dostęp do opieki zdrowotnej dzięki dwóm szpitalom klinicznym, prywatnej lecznicy (Certus), 60 aptekom, 15 przychodniom i gabinetom lekarskim. Fani sportu docenią Arenę Poznań i stadion INEA a także Lasek Marceliński, idealny do uprawiania joggingu czy nordic walkingu. Na terenie dzielnicy są też dwa kina.
Opis oferty
Nowe 2-pokojowe mieszkanie na sprzedaż o powierzchni 41,65 m² znajduje się w nowo budowanej inwestycji deweloperskiej Smardzewska 8 na Grunwaldzie Południe, ul. Smardzewska 8 (4.9 km od centrum Poznania).
Inwestycja jest realizowana przez VINCI Immobilier Polska.
Cała inwestycja składa się z 2 budynków, w których łącznie znajduje się 141 nowych mieszkań.
Na sprzedaż pozostaje 106 ofert o powierzchni od 29 do 90 m².
W budynkach jest od 4 do 6 kondygnacji naziemnych oraz 1 kondygnacja podziemna.
Inwestycja Smardzewska 8 jest w trakcie budowy z planowanym na 2 kw. 2027 roku terminem oddania do użytkowania.
Nowe mieszkanie o oznaczeniu A/4/0.2 znajduje się na parterze i jest 1-poziomowe. Pomieszczenia mają od 270 do 300 centymetrów wysokości. W mieszkaniu znajdują się 2 pokoje.
Dla przyszłych mieszkańców Smardzewska 8 deweloper przewidział miejsca postojowe podziemne.
Dzięki temu przyszli właściciele nie będą musieli poszukiwać wolnej przestrzeni parkingowej. Dodatkowo, miejsce postojowe w garażu podziemnym zabezpiecza przed niekorzystnymi warunkami atmosferycznymi.
Opis Inwestycji
Okazyjna cena
Tereny zielone
Pow. dodatkowe
Dopracowane detale, nieprzeciętny komfort, idealna przestrzeń
Smardzewska 8 jest miejscem gdzie nowoczesność, i spokój współistnieją w doskonałej harmonii, oferując mieszkańcom przestrzeń do życia na najwyższym poziomie. Trzy kameralne budynki kryją 141 mieszkań, zaprojektowanych z dbałością o najwyższe standardy. Funkcjonalne wnętrza wypełnione są naturalnym światłem, wysokie sufity potęgują wrażenie przestronności a widok na zielone otoczenie zapewnia atmosferę sprzyjającą codziennemu wytchnieniu. Smardzewska 8 to propozycja dla osób ceniących balans między miejskim stylem życia a bliskością natury.
Prestiż, który nie potrzebuje definicji. Wystarczy adres. Smardzewska 8 to inwestycja położona w jednej z najbardziej prestiżowych dzielnic Poznania – na Starym Grunwaldzie. To miejsce, gdzie historia spotyka się z nowoczesnością, a urokliwa zieleń przenika się z elegancką architekturą. W pobliżu znajdują się renomowane szkoły, uczelnie, tereny rekreacyjne oraz klimatyczne kawiarnie i restauracje, które tworzą niepowtarzalny charakter tej części miasta.
Nie podążasz za trendami. Tworzysz własne. Smardzewska 8 to miejsce stworzone dla tych, którzy wiedzą, czego chcą. To inwestycja zaprojektowana w taki sposób, by zapewnić mieszkańcom poczucie stabilności, bezpieczeństwa i komfortu, które pozostają na lata. Wybierz przestrzeń, która mówi Twoim głosem.
Mieszkanie znajduje się w inwestycji Smardzewska 8, w której znajduje się w sprzedaży jeszcze 48 podobnych nowych mieszkań.
VINCI Immobilier Polska
Strona internetowa inwestycjiAdres biura sprzedaży:
ul. Paderewskiego 8; 61-700 PoznańGodziny otwarcia biura sprzedaży:
- Poniedziałek: 09:00 - 17:00
- Wtorek: 09:00 - 17:00
- Środa: 09:00 - 17:00
- Czwartek: 09:00 - 17:00
- Piątek: 09:00 - 17:00





