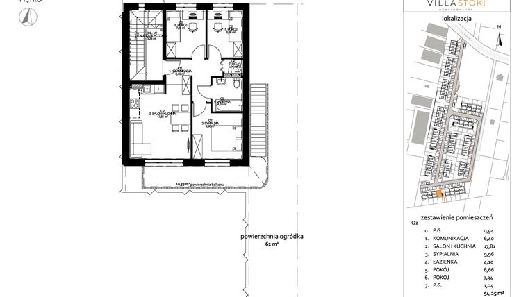
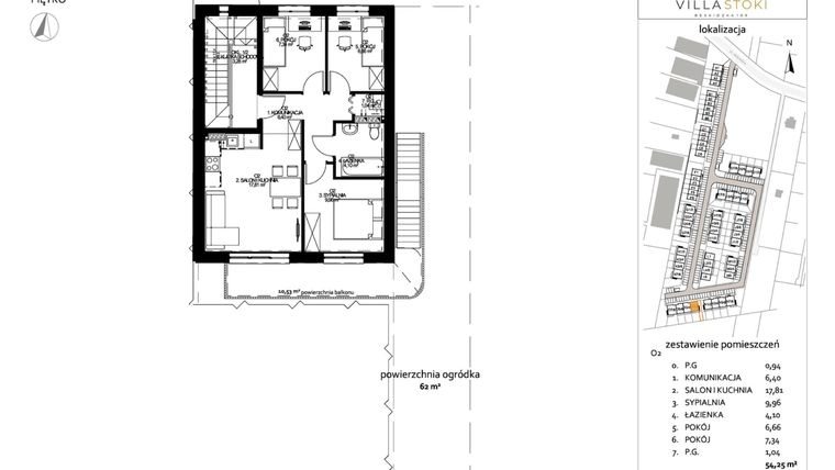
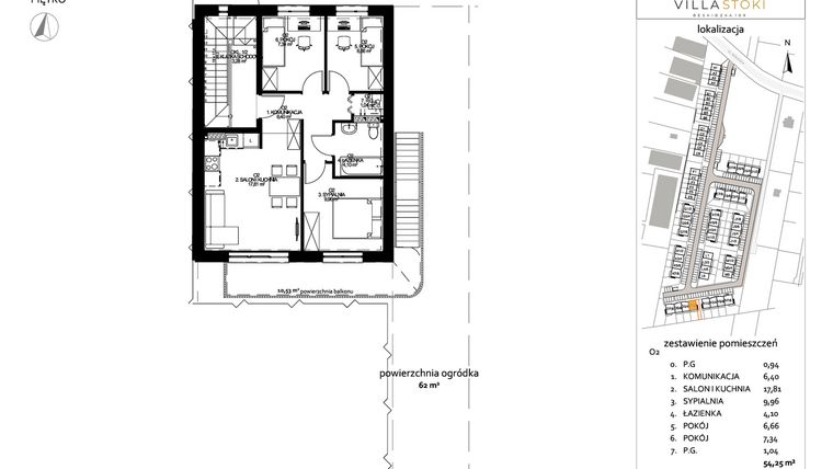
Mieszkanie na sprzedaż 4 pokoje o powierzchni 54,25 m² numer O2
Inwestycja:
Villa Stoki (mieszkania)Deweloper:
Varitex Sp. z o.o.
Inwestycja:
Villa Stoki (mieszkania)Deweloper:
Varitex Sp. z o.o.Łódź, Dolina Łódki, ul. Beskidzka 109
Łódź, Dolina Łódki, ul. Beskidzka 109
Termin oddania
3 kw. 2026
Ilość pokoi
4 pokoje
Metraż
54,25 m²
Piętro
1 piętro
Strona świata
południe
Powierzchnie dodatkowe
Ogródek
Wysokość pomieszczeń
od 260 do 280 cm wysokości
Ilość poziomów
1 poziom
Oznaczenie oferty
O2

Raport o deweloperze
Poznaj dewelopera bliżej! Pobierz raport, w którym znajdziesz kluczowe informacje o firmie, jej doświadczeniu, nagrodach oraz aktualnych i zrealizowanych inwestycjach.
Budynek i otoczenie
Miejsca postojowe | |
|---|---|
Standard wykończenia | standard deweloperski Ogrzewanie gazowe |
Realizacja inwestycji | rozpoczęcie budowy w 1 kw. 2025 roku, planowane oddanie do użytkowania w 3 kw. 2026 roku |
Udogodnienia | internet, TV kablowa, teren ogrodzony |
Przyroda | informacja u dewelopera |
Charakterystyka energetyczna nieruchomości | informacja u dewelopera |
Rezerwacja i finanse
Rodzaj własności | Odrębna własność z własnością gruntu |
|---|---|
Wysokość czynszu | informacja u dewelopera |
Warunki rezerwacji | Informacja u dewelopera |
Zabezpieczenie środków | Otwarty mieszkaniowy rachunek powierniczy |
Zdjęcia z budowy
Zobacz na jakim etapie budowy jest ta inwestycja
Lokalizacja inwestycji
Stacja kolejowa - Łódź Stoki - 2905 m
Przystanek Tramwajowy - 1885 m
Przystanek Autobusowy - 147 m
Dojazd do centrum: pokaż
W pobliżu 1 km od tej inwestycji znajdują się:
1 kawiarnia lub restauracja, 6 sklepów, 4 obiekty sportowe, 1 placówka medyczna, 6 placówek edukacyjnych, 5 placów zabaw
Przeczytaj więcej o lokalizacji
Widzew jest największą dzielnicą Łodzi i ma powierzchnię ok. 91 km², a liczba jego mieszkańców wynosi ok. 140 000. Gęstość zaludnienia jest niska, gdyż na obrzeżach Widzewa znajduje się sporo terenów zielonych – pól, lasów, nieużytków. Poza tym dominuje zabudowa przemysłowa i duże osiedla mieszkaniowe (złożone z bloków i wieżowców). Dzielnica leży na terenie dawnej wsi Widzew, która przez lata stopniowo była inkorporowana do granic miasta. Najbardziej uprzemysłowioną część wsi przyłączono do Łodzi już w 1906 roku, a kolejne wcielenia miały miejsce w 1915 i 1946 roku. Także dawna wieś Widzew jest w całości częścią Łodzi od zakończenia II wojny światowej, natomiast jako osobna dzielnica funkcjonuje od 1954 roku. Od tego czasu jej powierzchnia kilkukrotnie rozszerzała się o nowe tereny.
Opis oferty
Nowe 4-pokojowe mieszkanie na sprzedaż o powierzchni 54,25 m² znajduje się w nowo budowanej inwestycji deweloperskiej Villa Stoki (mieszkania) na Dolinie Łódki, ul. Beskidzka 109 (6.8 km od centrum Łodzi).
Inwestycja jest realizowana przez Varitex Sp. z o.o.
Cała inwestycja składa się z 4 budynków, w których łącznie znajduje się 28 nowych mieszkań.
Na sprzedaż pozostaje 15 ofert o powierzchni od 51 do 64 m².
W budynkach są 2 kondygnacje naziemne. Budynek nie posiada kondygnacji podziemnych.
Inwestycja Villa Stoki (mieszkania) jest w trakcie budowy z planowanym na 3 kw. 2026 roku terminem oddania do użytkowania.
Nowe mieszkanie o oznaczeniu O2 znajduje się na 1 piętrze i jest 1-poziomowe. Pomieszczenia mają od 260 do 280 centymetrów wysokości. W mieszkaniu znajdują się 4 pokoje.
Okna w mieszkaniu wychodzą na południe.
Okna wychodzące na południe gwarantują maksymalną ilość naturalnego światła, co czyni wnętrza jasnymi i ciepłymi. Dodatkowo południowa ekspozycja pomaga obniżyć koszty ogrzewania w zimie. Okna na południe są idealne dla osób pragnących cieszyć się jasnym otoczeniem, które sprzyja dobremu samopoczuciu oraz pozytywnej energii.
Dla przyszłych mieszkańców Villa Stoki (mieszkania) deweloper przewidział miejsca postojowe naziemne.
Dzięki temu przyszli właściciele nie będą musieli poszukiwać wolnej przestrzeni parkingowej.
Opis Inwestycji
Okazyjna cena
Pow. dodatkowe
Projektując osiedle Villa Stoki zależało nam na stworzeniu przestrzeni oddającej wartości bliskie współczesnej rodzinie. Podeszliśmy więc do zadania z entuzjazmem równym potencjałowi miejsca. Cel był jasny – w wielkomiejskie otoczenie wrysować zaciszne osiedle o wysokich walorach użytkowych i atrakcyjnej formie wizualnej. W rezultacie powstał projekt funkcjonalnej i nowoczesnej szeregowej zabudowy mieszkaniowej jednorodzinnej. Projekt, który z dumą Państwu przedstawiamy.
Zespół nowoczesnych w formie budynków jednorodzinnych nawiązuje do prostego ładu miejskiej architektury użytkowej łączącej swobodę i niezależność z komfortem codziennego życia. Starannie dobrane proporcje w elementach przestrzennych i przyjazna stonowana kolorystka odzwierciedlają ducha współczesnego ideału mieszkaniowego. Uporządkowana w ten sposób przestrzeń daje odpoczynek od zgiełku miasta, ciesząc mieszkańców harmonią otoczenia.
Mieszkanie znajduje się w inwestycji Villa Stoki (mieszkania), w której znajduje się w sprzedaży jeszcze 9 podobnych nowych mieszkań.
Varitex Sp. z o.o.
Adres biura sprzedaży:
ul. Żeromskiego 96, 90-550 ŁódźGodziny otwarcia biura sprzedaży:
- Poniedziałek: 08:00 - 16:00
- Wtorek: 08:00 - 16:00
- Środa: 08:00 - 16:00
- Czwartek: 08:00 - 16:00
- Piątek: 08:00 - 16:00





