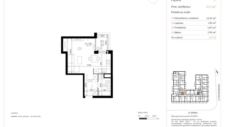
Mieszkanie na sprzedaż 1 pokój o powierzchni 32,13 m² numer A/2/01
Promocja
Inwestycja:
Wielka 16Deweloper:
Toscom Development
Inwestycja:
Wielka 16Deweloper:
Toscom DevelopmentWrocław, Krzyki, Południe, ul. Wielka 16
Wrocław, Krzyki, Południe, ul. Wielka 16
Termin oddania
3 kw. 2027
Ilość pokoi
1 pokój
Metraż
32,13 m²
Piętro
2 piętro
Strona świata
wschód, północ
Powierzchnie dodatkowe
Balkon
Kuchnia
otwarta kuchnia
Wysokość pomieszczeń
od 261 do 264 cm wysokości
Ilość poziomów
1 poziom
Oznaczenie oferty
A/2/01

Raport o deweloperze
Poznaj dewelopera bliżej! Pobierz raport, w którym znajdziesz kluczowe informacje o firmie, jej doświadczeniu, nagrodach oraz aktualnych i zrealizowanych inwestycjach.
Budynek i otoczenie
Miejsca postojowe | |
|---|---|
Standard wykończenia | standard deweloperski Ogrzewanie miejskie |
Realizacja inwestycji | rozpoczęcie budowy w 4 kw. 2025 roku, planowane oddanie do użytkowania w 3 kw. 2027 roku |
Udogodnienia | winda, usługi w budynku, recepcja, pomieszczenie rekreacyjne, ochrona całodobowa, monitoring, rowerownia |
Przyroda | w okolicy inwestycji znajduje się park |
Charakterystyka energetyczna nieruchomości | informacja u dewelopera |
Rezerwacja i finanse
Rodzaj własności | informacja u dewelopera |
|---|---|
Wysokość czynszu | informacja u dewelopera |
Warunki rezerwacji | rezerwacja miękka 7 dni |
Zabezpieczenie środków | Otwarty mieszkaniowy rachunek powierniczy |
Zdjęcia z budowy
Zobacz na jakim etapie budowy jest ta inwestycja
Lokalizacja inwestycji
Stacja kolejowa - Wrocław Główny - 1080 m
Przystanek Tramwajowy - 322 m
Przystanek Autobusowy - 26 m
Dojazd do centrum: pokaż
W pobliżu 1 km od tej inwestycji znajdują się:
136 kawiarni i restauracji, 65 sklepów, 83 obiekty sportowe, 41 placówek medycznych, 135 placówek edukacyjnych, 69 placów zabaw
Przeczytaj więcej o lokalizacji
Krzyki to dawna dzielnica Wrocławia, znajduje się w południowej części miasta. Zajmuje ponad 54 km2 a na jej terenie mieszka prawie 170 tysięcy osób. Na zabudowę dzielnicy składają się zarówno duże osiedla mieszkaniowe, jak i domy jednorodzinne. Został tu wybudowany także najwyższy budynek w Polsce – Sky Tower. Znajduje się tu dużo zabytkowych willi i inne zabytki takie jak Wieża Ciśnień czy Stary Cmentarz Żydowski. Na Krzykach znajduje się Wrocławski Uniwersytet Ekonomiczny a także ponad 100 szkół elementarnych. Największym centrum handlowym jest Wroclavia o powierzchni 71 000 m2. W południowej części Krzyków znajduje się tor wyścigów konnych Partynice oraz Wrocławski Tatr Pantomimy. Dzielnica posiada połączenia autobusowe i tramwajowe – znajduje się tu 5 pętli tramwajowych. Dwie główne ulice Krzyków, które łączą je z centrum miasta to Powstańców Śląskich oraz Ślężna. Znajduje się tu także Wrocławski Dworzec Główny.
Opis oferty
Nowe 1-pokojowe mieszkanie na sprzedaż o powierzchni 32,13 m² znajduje się w nowo budowanej inwestycji deweloperskiej Wielka 16 na Południu, ul. Wielka 16 (2 km od centrum Wrocławia).
Inwestycja jest realizowana przez Toscom Development.
Cała inwestycja składa się z 1 budynku, w którym łącznie znajduje się 119 nowych mieszkań.
Na sprzedaż pozostają 93 oferty o powierzchni od 29 do 86 m².
W budynku jest od 5 do 11 kondygnacji naziemnych oraz 1 kondygnacja podziemna.
Inwestycja Wielka 16 jest w trakcie budowy z planowanym na 3 kw. 2027 roku terminem oddania do użytkowania.
Nowe mieszkanie o oznaczeniu A/2/01 znajduje się na 2 piętrze i jest 1-poziomowe. Pomieszczenia mają od 261 do 264 centymetrów wysokości. W mieszkaniu znajduje się 1 pokój.
Okna w mieszkaniu wychodzą na wschód, północ.
Północna ekspozycja to idealny wybór dla osób ceniących przytulne i klimatyczne wnętrza. Delikatne, rozproszone światło sprzyja harmonii i stwarza doskonałe warunki do relaksu lub pracy. Okna na północ zapewnią równomierne oświetlenie przez cały dzień.
Wschodnia orientacja zapewnia dostęp do łagodnego porannego światła, idealnego dla rozpoczęcia dnia pełnego energii. Wnętrza pozostają jasne, ale nieprzegrzane, co sprzyja utrzymaniu komfortowej temperatury. Przebywanie w pomieszczeniu z oknami na wschód inspiruje do działania i pozytywnie wpływa na poranny rytuał.
Dla przyszłych mieszkańców Wielka 16 deweloper przewidział miejsca postojowe podziemne.
Dzięki temu przyszli właściciele nie będą musieli poszukiwać wolnej przestrzeni parkingowej. Dodatkowo, miejsce postojowe w garażu podziemnym zabezpiecza przed niekorzystnymi warunkami atmosferycznymi.
Opis Inwestycji
Tereny zielone
Pow. dodatkowe
WIELKA 16 – nowy wymiar życia w centrum Wrocławia
WIELKA 16 to nowa inwestycja mieszkaniowa w centrum Wrocławia, stworzona dla osób, które cenią miejski styl życia, wysoką jakość architektury i komfort codzienności. Projekt wyróżnia dopracowana forma, elegancka elewacja oraz przemyślane rozwiązania funkcjonalne – od kompaktowych kawalerek po przestronne apartamenty rodzinne.
Styl i jakość na co dzień
Budynek zaprojektowano z dbałością o detal, światło i proporcję. Prosta, ponadczasowa bryła harmonijnie wpisuje się w tkankę miejską, a szlachetne materiały elewacyjne i wysokie przeszklenia nadają jej wyjątkowy charakter. To architektura, która nie dominuje, lecz współtworzy estetykę miasta.
Komfort i funkcjonalność
WIELKA 16 oferuje podwyższony standard wykonania – m.in. ciche windy od poziomu garażu, reprezentacyjne lobby, wysokiej klasy wykończenie części wspólnych oraz designerską strefę W16 z przestrzenią do pracy i spotkań mieszkańców. Każde mieszkanie zaprojektowano tak, by zapewniało maksymalne wykorzystanie przestrzeni, dostęp światła dziennego i możliwość aranżacji zgodnie z indywidualnymi potrzebami.
Lokalizacja z potencjałem
Adres Wielka 16 to serce Wrocławia z dostępem do wszystkiego, co najważniejsze. W zasięgu kilku minut znajdują się Sky Tower, Aquapark, Uniwersytet Ekonomiczny, Dworzec Główny oraz Rynek. Doskonała komunikacja tramwajowa i autobusowa, a także bliskość ścieżek rowerowych sprawiają, że to idealne miejsce do życia, pracy i inwestowania.
Dlaczego warto
Centralna lokalizacja – 5 minut od najważniejszych punktów Wrocławia
Wysoki standard części wspólnych i strefa mieszkańców
Przemyślane układy mieszkań, duże przeszklenia i loggie
Ponadczasowa architektura z dopracowanym detalem
Pewny deweloper – Toscom, znany z jakości i estetyki projektów
Inwestycja z charakterem
WIELKA 16 to propozycja dla osób, które szukają nie tylko mieszkania, ale nowego sposobu życia – w dobrze zaprojektowanej przestrzeni, w centrum wydarzeń, ale z własnym rytmem i spokojem. To doskonały wybór zarówno dla osób prywatnych, jak i inwestorów szukających bezpiecznej lokaty kapitału.
Mieszkanie znajduje się w inwestycji Wielka 16, w której znajduje się w sprzedaży jeszcze 27 podobnych nowych mieszkań.
Toscom Development
Strona internetowa inwestycjiAdres biura sprzedaży:
ul. Bernardyńska 2c 50-156 WrocławGodziny otwarcia biura sprzedaży:
- Poniedziałek: 09:00 - 17:00
- Wtorek: 09:00 - 17:00
- Środa: 09:00 - 17:00
- Czwartek: 09:00 - 17:00
- Piątek: 09:00 - 17:00
- Sobota: 10:00 - 14:00





