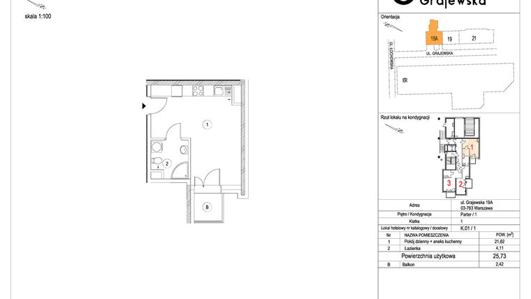
Mieszkanie na sprzedaż 1 pokój o powierzchni 25,56 m² numer M-1
Inwestycja:
Apartamenty GrajewskaDeweloper:
Gomiko Capital Sp z o.o
Inwestycja:
Apartamenty GrajewskaDeweloper:
Gomiko Capital Sp z o.oWarszawa, Praga-Północ, Szmulowizna, ul. Grajewska
Warszawa, Praga-Północ, Szmulowizna, ul. Grajewska
Termin oddania
Gotowe
Ilość pokoi
1 pokój
Metraż
25,56 m²
Piętro
Parter
Powierzchnie dodatkowe
Balkon
Wysokość pomieszczeń
od 260 do 280 cm wysokości
Ilość poziomów
1 poziom
Oznaczenie oferty
M-1

Raport o deweloperze
Poznaj dewelopera bliżej! Pobierz raport, w którym znajdziesz kluczowe informacje o firmie, jej doświadczeniu, nagrodach oraz aktualnych i zrealizowanych inwestycjach.
Budynek i otoczenie
Miejsca postojowe | |
|---|---|
Standard wykończenia | standard deweloperski |
Realizacja inwestycji | rozpoczęcie budowy w 2 kw. 2024 roku, inwestycja została oddana do użytkowania w 4 kw. 2025 roku |
Udogodnienia | informacja u dewelopera |
Przyroda | informacja u dewelopera |
Charakterystyka energetyczna nieruchomości | informacja u dewelopera |
Rezerwacja i finanse
Rodzaj własności | Odrębna własność z własnością gruntu |
|---|---|
Wysokość czynszu | informacja u dewelopera |
Warunki rezerwacji | Informacja u dewelopera |
Zabezpieczenie środków | Informacja u dewelopera |
Zdjęcia z budowy
Zobacz na jakim etapie budowy jest ta inwestycja
Lokalizacja inwestycji
Metro - Szwedzka - 1063 m
Przystanek Tramwajowy - 257 m
Przystanek Autobusowy - 200 m
Dojazd do centrum: pokaż
W pobliżu 1 km od tej inwestycji znajdują się:
12 kawiarni i restauracji, 15 sklepów, 24 obiekty sportowe, 2 placówki medyczne, 43 placówki edukacyjne, 12 placów zabaw
Przeczytaj więcej o lokalizacji
Praga-Północ to niewielka, położona na prawym brzegu Wisły, dzielnica Warszawy, która słynie z przedwojennej architektury, a także cieszy się popularnością ze względu na relikty tzw. warszawskiego folkloru. Wzdłuż ulicy Targowej usytuowane zostały najstarsze, stylowe kamienice, we wnętrzach których znajdują się obecnie galerie sztuki, pracownie artystyczne, kawiarnie i restauracje. Zabytkowa architektura stanowi także część zabudowy Nowej Pragi oraz Szmulowizny, lecz występują tu także rozległe socrealistyczne blokowiska. Nowe inwestycje mieszkaniowe powstają natomiast w malowniczym rejonie Portu Praskiego. Największymi kompleksami przyrodniczymi na terenie dzielnicy są Park Praski i Ogród Zoologiczny. Znajduje się tu również kino i aż 4 teatry. Z Pragi-Północ jest zaledwie 10 minut drogi do centrum miasta, gdzie można dotrzeć tramwajem, autobusem, a także drugą linią metra. Ważne arterie dzielnicy to Al. Solidarności i ulice: Targowa, Jagiellońska, Szwedzka.
Opis oferty
SPRZEDAŻ INWESTYCJI "APARTAMENTY GRAJEWSKA" Apartamenty Grajewska, to kameralna inwestycja położona w spokojnej i cichej części dzielnicy Praga-Północ. Wyjątkowa lokalizacja, bliskość terenów zielonych i rekreacyjnych oraz doskonałe skomunikowanie z większością stołecznych dzielnic sprawiają, że Apartamenty Grajewska to idealny wybór dla tych, którzy pragną połączyć życie blisko centrum wydarzeń z potrzebą wytchnienia i relaksu. Praga Północ to najstarsza i jedna z najbardziej klimatycznych części stolicy, która w zdecydowanej większości zachowała swój wyjątkowy, historyczny charakter. Przepiękne zabytkowe kamienice, malownicze uliczki, kawiarenki, galerie i centra kultury przyciągają zarówno mieszkańców jak i turystów. Apartamenty Grajewska to inwestycja uszyta na miarę naszych czasów. Nowoczesna forma budynku, oryginalnie zaprojektowane balkony oraz podziemna hala garażowa dla mieszkańców to niewątpliwe atuty tego obiektu. Lokale jedno lub dwu pokojowe o niewielkich metrażach, zaaranżowano wygodnie i nowocześnie oraz z dbałością o każdy detal. Apartamenty Grajewska składa się z 39 nowych mieszkań znajdujących się w nowym Apartamentowcu. Budynek posiada 7 kondygnacji naziemnych wraz z parterem. Aktualnie w inwestycji w sprzedaży jest 19 nowych mieszkań o powierzchni od 25,10 do 38,32 mkw oraz komórki lokatorskie i miejsca postojowe w hali garażowej. Apartamenty wykańczane są w standardzie deweloperskim. Inwestycja jest obecnie w trakcie budowy.
Nowe 1-pokojowe mieszkanie na sprzedaż o powierzchni 25,56 m² znajduje się w nowo budowanej inwestycji deweloperskiej Apartamenty Grajewska na Szmulowiźnie, ul. Grajewska (4.8 km od centrum Warszawy).
Inwestycja jest realizowana przez Gomiko Capital Sp z o.o.
Cała inwestycja składa się z 1 budynku, w którym łącznie znajduje się 39 nowych mieszkań.
Na sprzedaż pozostaje 18 ofert o powierzchni od 26 do 40 m².
W budynku jest 7 kondygnacji naziemnych. Budynek nie posiada kondygnacji podziemnych.
Inwestycja Apartamenty Grajewska została wybudowana i oddana do użytkowania w 4 kw. 2025 roku.
Nowe mieszkanie o oznaczeniu M-1 znajduje się na parterze i jest 1-poziomowe. Pomieszczenia mają od 260 do 280 centymetrów wysokości. W mieszkaniu znajduje się 1 pokój.
Dla przyszłych mieszkańców Apartamenty Grajewska deweloper nie przewidział miejsc postojowych.
Mieszkanie znajduje się w inwestycji Apartamenty Grajewska, w której znajduje się w sprzedaży jeszcze 7 podobnych nowych mieszkań.
Gomiko Capital Sp z o.o
Adres biura sprzedaży:
Bolesława Chrobrego 40 lok.U1 02-479 Warszawa




