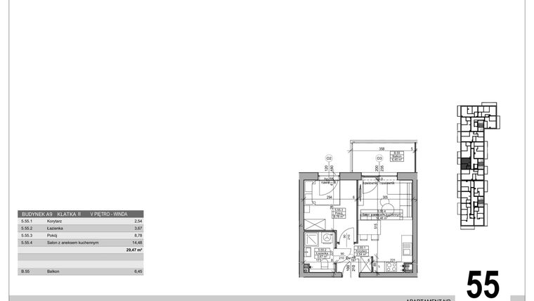
Mieszkanie na sprzedaż 2 pokoje o powierzchni 29,47 m² numer A.9.M.55
Inwestycja:
Sobola Biel A9Deweloper:
Rutkowski Development Sp. J.
Inwestycja:
Sobola Biel A9Deweloper:
Rutkowski Development Sp. J.Suwałki, ul. Aleksandry Piłsudskiej
Suwałki, ul. Aleksandry Piłsudskiej
Termin oddania
1 kw. 2027
Ilość pokoi
2 pokoje
Metraż
29,47 m²
Piętro
5 piętro
Kuchnia
otwarta kuchnia
Wysokość pomieszczeń
od 260 do 280 cm wysokości
Ilość poziomów
1 poziom
Oznaczenie oferty
A.9.M.55

Raport o deweloperze
Poznaj dewelopera bliżej! Pobierz raport, w którym znajdziesz kluczowe informacje o firmie, jej doświadczeniu, nagrodach oraz aktualnych i zrealizowanych inwestycjach.
Budynek i otoczenie
Miejsca postojowe | |
|---|---|
Komórki lokatorskie | dostępne |
Standard wykończenia | standard deweloperski Ogrzewanie z sieci miejskiej |
Realizacja inwestycji | rozpoczęcie budowy w 2 kw. 2024 roku, planowane oddanie do użytkowania w 1 kw. 2027 roku |
Udogodnienia | plac zabaw, usługi w budynku, winda, rowerownia, wózkarnia |
Przyroda | w okolicy inwestycji znajduje się park |
Charakterystyka energetyczna nieruchomości | informacja u dewelopera |
Rezerwacja i finanse
Rodzaj własności | Odrębna własność z własnością gruntu |
|---|---|
Wysokość czynszu | informacja u dewelopera |
Warunki rezerwacji | Informacja u dewelopera |
Zabezpieczenie środków | Informacja u dewelopera |
Zdjęcia z budowy
Zobacz na jakim etapie budowy jest ta inwestycja
Lokalizacja inwestycji
Stacja kolejowa - Suwałki - 1931 m
Przystanek Autobusowy - 133 m
Dojazd do centrum: pokaż
W pobliżu 1 km od tej inwestycji znajdują się:
5 kawiarni i restauracji, 5 sklepów, 17 obiektów sportowych, 1 placówka medyczna, 8 placówek edukacyjnych, 14 placów zabaw
Przeczytaj więcej o lokalizacji
Suwałki to miasto powiatowe leżące w woj. podlaskim, niedaleko granic z Białorusią, Litwą i Rosją. Jego powierzchnia wynosi 65,24 km2 . Mieszka tu ok. 69 000 ludzi. W mieście panuje niezwykły klimat, który zawdzięcza się m.in. ciekawej, częściowo zabytkowej zabudowie. Uwagę przykuwa neoklasycystyczna ul. Kościuszki oraz przechodzący przez miasto szlak turystyczny i szlak kulturowy. Suwałki położone są na malowniczych terenach, w otoczeniu rozległych obszarów zielonych, m.in. Wigierskiego Parku Narodowego i Puszczy Augustowskiej. Dynamiczny rozwój gospodarczy miasta zapewnia w ostatnich latach działająca tu Specjalna Strefa Ekonomiczna i park technologiczny. Miasto zapewnia mieszkańcom dostęp do wszystkich niezbędnych instytucji. Mieści się tu 6 szkół i 12 zespołów szkół. Działają też dwa szpitale, 12 przychodni lekarskich, dysponujący rozbudowaną infrastrukturą ośrodek sportu i rekreacji, kino, muzeum, a także galeria handlowa.
Opis oferty
Nowe 2-pokojowe mieszkanie na sprzedaż o powierzchni 29,47 m² znajduje się w nowo budowanej inwestycji deweloperskiej Sobola Biel A9 w Suwałkach, ul. Aleksandry Piłsudskiej (2.6 km od centrum Suwałk).
Inwestycja jest realizowana przez Rutkowski Development Sp. J.
Cała inwestycja składa się z 1 budynku, w którym łącznie znajduje się 87 nowych mieszkań.
Na sprzedaż pozostaje 77 ofert o powierzchni od 29 do 74 m².
W budynku jest 6 kondygnacji naziemnych oraz 1 kondygnacja podziemna.
Inwestycja Sobola Biel A9 jest w trakcie budowy z planowanym na 1 kw. 2027 roku terminem oddania do użytkowania.
Nowe mieszkanie o oznaczeniu A.9.M.55 znajduje się na 5 piętrze i jest 1-poziomowe. Pomieszczenia mają od 260 do 280 centymetrów wysokości. W mieszkaniu znajdują się 2 pokoje.
Dla przyszłych mieszkańców Sobola Biel A9 deweloper przewidział miejsca postojowe podziemne.
Dzięki temu przyszli właściciele nie będą musieli poszukiwać wolnej przestrzeni parkingowej. Dodatkowo, miejsce postojowe w garażu podziemnym zabezpiecza przed niekorzystnymi warunkami atmosferycznymi.
Opis Inwestycji
Sobola Biel to kompleks mieszkaniowy zaprojektowany w nowoczesnym stylu. W ofercie znajduje się szeroki wybór metraży od 30 m² do 99 m². Przemyślane układy mieszkań, łatwe w aranżacji spełnią oczekiwania singli, młodych par czy rodzin z dziećmi.
Prywatne zielone tarasy do 130 m² w mieszkaniach na parterze oraz przestronne balkony od 7 do 44 m² z licznymi przeszkleniami, zagwarantują upragnioną przestrzeń.
Niekwestionowanym atutem Soboli Biel jest otoczenie terenów zielonych. W pobliskim sąsiedztwie znajduje się Zalew Arkadia oraz Wigierski Park Krajobrazowy. Na osiedlu z kolei powstanie prywatny park o powierzchni 2 ha ze strefą rekreacyjną, placami zabaw dla młodszych i starszych dzieci oraz strefą sportową. Na terenie parku zostanie odtworzony naturalny krajobraz, a różnorodność zieleni zagwarantuje atrakcyjność parku przez cały rok.
Budowana przestrzeń parkowa realizuje założenia programu „bez barier”, odpowiadając na potrzeby każdego - niezależnie od wieku czy kondycji fizycznej. Ponadto jako jedna z niewielu projektów komercyjnych w Polsce, została zaprojektowana zgodnie ze strategią ESG, będąc niskoemisyjnym, efektywnym energetycznie parkiem samo nawadniającym.
Mieszkanie znajduje się w inwestycji Sobola Biel A9, w której znajdują się w sprzedaży jeszcze 32 podobne nowe mieszkania.
Rutkowski Development Sp. J.
Strona internetowa inwestycjiAdres biura sprzedaży:
ul. Aleksandry Piłsudskiej 9D, 14-400 SuwałkiGodziny otwarcia biura sprzedaży:
- Poniedziałek: 08:00 - 16:00
- Wtorek: 08:00 - 16:00
- Środa: 08:00 - 16:00
- Czwartek: 08:00 - 16:00
- Piątek: 08:00 - 16:00





