Mieszkanie na sprzedaż 3 pokoje o powierzchni 59,21 m² numer M-19
Inwestycja:
Osiedle Radosne IIDeweloper:
Rutkowski Development Sp. J.
Inwestycja:
Osiedle Radosne IIDeweloper:
Rutkowski Development Sp. J.Pisz, ul. Słubicka
Pisz, ul. Słubicka
Termin oddania
3 kw. 2026
Ilość pokoi
3 pokoje
Metraż
59,21 m²
Piętro
2 piętro
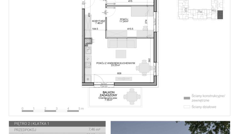
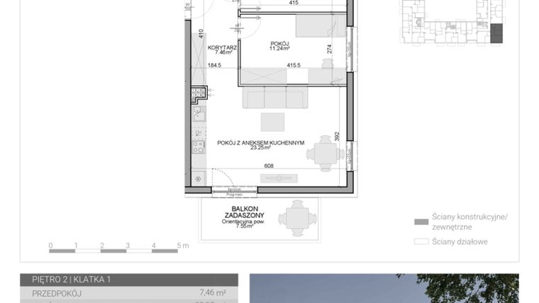
Powierzchnie dodatkowe
Balkon
Kuchnia
otwarta kuchnia
Wysokość pomieszczeń
263 cm wysokości
Ilość poziomów
1 poziom
Oznaczenie oferty
M-19

Raport o deweloperze
Poznaj dewelopera bliżej! Pobierz raport, w którym znajdziesz kluczowe informacje o firmie, jej doświadczeniu, nagrodach oraz aktualnych i zrealizowanych inwestycjach.
Budynek i otoczenie
Miejsca postojowe | |
|---|---|
Komórki lokatorskie | dostępne: do każdego mieszkania |
Standard wykończenia | standard deweloperski |
Realizacja inwestycji | rozpoczęcie budowy w 4 kw. 2023 roku, planowane oddanie do użytkowania w 3 kw. 2026 roku |
Udogodnienia | plac zabaw, pomieszczenie rekreacyjne, monitoring, internet, przystosowane dla niepełnosprawnych, winda, videodomofon, patio / dziedziniec |
Przyroda | w okolicy inwestycji znajduje się park, las, jezioro |
Charakterystyka energetyczna nieruchomości | informacja u dewelopera |
Rezerwacja i finanse
Rodzaj własności | Odrębna własność z własnością gruntu |
|---|---|
Wysokość czynszu | informacja u dewelopera |
Warunki rezerwacji | informacja u dewelopera |
Zabezpieczenie środków | Informacja u dewelopera |
Zdjęcia z budowy
Zobacz na jakim etapie budowy jest ta inwestycja
Lokalizacja inwestycji
Stacja kolejowa - Pisz Wschodni - 697 m
Przystanek Autobusowy - 343 m
Dojazd do centrum Mikołajek: pokaż
W pobliżu 1 km od tej inwestycji znajdują się:
4 kawiarnie i restauracje, 9 sklepów, 8 obiektów sportowych, 5 placówek edukacyjnych, 2 place zabaw
Przeczytaj więcej o lokalizacji
NIEZWYKŁA CODZIENNOŚĆ Osiedle Radosne to ustronna przestrzeń w otoczeniu młodej zabudowy. Tu dobrze się żyje, zakłada rodzinę i wychowuje dzieci. • dyskont spożywczy – 10 min • Gminny Zespół Szkół – 10 min • Zespół Szkolno-Przedszkolny nr 1 – 3 min • dworzec autobusowy – 7 min • centrum Pisza – 5 min Sąsiedztwo ważnych miejsc rekreacyjnych, handlowo-usługowych i edukacyjnych ułatwi codzienność: • bajkowy plac zabaw – na osiedlu • tereny zielone do spacerowania – przy osiedlu • kręgielnia – 3 min • Piski Dom Kultury – 4 min • Park w Piszu – 4 min • plaża miejska – 5 min • wypożyczalnia sprzętu wodnego – 5 min
Pisz to miasto w woj. warmińsko-mazurskim, w powiecie piskim, siedziba gminy miejsko-wiejskiej Pisz, położone w południowo-wschodniej części Krainy Wielkich Jezior Mazurskich, nad jeziorem Roś i nad wypływającą z niego rzeką Pisą. Miasto otacza Puszcza Piska. W latach 1975-1998 miasto administracyjnie należało do woj. suwalskiego. Według danych z 31 grudnia 2010 r. miasto miało 19 439 mieszkańców. Według danych z 1 stycznia 2011 r. powierzchnia miasta wynosiła 10,08 km². Gmina Pisz jest największą obszarowo gminą w Polsce – 634 km². Około 2/3 jeziora Śniardwy leży w jej granicach.
Opis oferty
Nowe 3-pokojowe mieszkanie na sprzedaż o powierzchni 59,21 m² znajduje się w nowo budowanej inwestycji deweloperskiej Osiedle Radosne II w Piszu, ul. Słubicka (22.7 km od Mikołajek).
Inwestycja jest realizowana przez Rutkowski Development Sp. J.
Cała inwestycja składa się z 1 budynku, w którym łącznie znajduje się 58 nowych mieszkań.
Na sprzedaż pozostaje 11 ofert o powierzchni od 51 do 77 m².
W budynku są 4 kondygnacje naziemne oraz 1 kondygnacja podziemna.
Inwestycja Osiedle Radosne II jest w trakcie budowy z planowanym na 3 kw. 2026 roku terminem oddania do użytkowania.
Nowe mieszkanie o oznaczeniu M-19 znajduje się na 2 piętrze i jest 1-poziomowe. Pomieszczenia mają 263 centymetrów wysokości. W mieszkaniu znajdują się 3 pokoje.
Dla przyszłych mieszkańców Osiedle Radosne II deweloper przewidział miejsca postojowe podziemne, miejsca postojowe naziemne.
Dzięki temu przyszli właściciele nie będą musieli poszukiwać wolnej przestrzeni parkingowej. Dodatkowo, miejsce postojowe w garażu podziemnym zabezpiecza przed niekorzystnymi warunkami atmosferycznymi.
Opis Inwestycji
Pow. dodatkowe
OSIEDLE RADOSNE
W Piszu przy ul. Słubickiej powstaje kameralne Osiedle Radosne. Pięknie zaaranżowane części wspólne z możliwością wypoczynku na świeżym powietrzu, ponadczasowa architektura i zaaranżowana przez architekta zieleń sprawią, ze każdy będzie czuł się tu dobrze.
Bajkowy plac zabaw to świetne miejsce rozrywki dla dzieci, ale również i rozwoju najmłodszych mieszkańców. Umiejscowiony został w samym sercu osiedla – tworząc beztroską i bezpieczną przestrzeń.
SPRAWDŹ STANDARD
Jasna elewacja, kameralny dziedziniec i panoramiczne przeszklenia to wizytówka osiedla. W ofercie znajduje się szeroki wybór metraży od 34 m² do ponad 70 m², stanowiąc doskonałą propozycję zarówno dla singli, jak i rodzin lub pod zakup inwestycyjny.
Przestronne balkony, prywatne, parterowe tarasy, charakterystyczne dla budownictwa Rutkowski Development, zapewnią dodatkową przestrzeń do spędzania wolnego czasu.
DOSKONAŁOŚĆ TKWI W SZCZEGÓŁACH
• bajkowy plac zabaw
• prywatne parterowe ogrody
• kids room
• kameralny dziedziniec
• reprezentacyjne części wspólne
• windy
• hala garażowa
• miejsca postojowe zewnętrzne
• komórki lokatorskie do każdego mieszkania
• wideodomofony
• drzwi wejściowe antywłamaniowe
*W OSTATNIĄ SOBOTĘ MIESIĄCA WSZYSTKIE BIURA SPRZEDAŻY SĄ OTWARTE W GODZINACH 9-14. ZAPRASZAMY!*
Mieszkanie znajduje się w inwestycji Osiedle Radosne II, w której znajduje się w sprzedaży jeszcze 8 podobnych nowych mieszkań.
Rutkowski Development Sp. J.
M.Dziarnowska
OPIEKUN INWESTYCJI
Strona internetowa inwestycjiAdres biura sprzedaży:
ul. Armii Krajowej 7B lok. 6, 19-300 EłkGodziny otwarcia biura sprzedaży:
- Poniedziałek: 08:00 - 17:00
- Wtorek: 08:00 - 17:00
- Środa: 08:00 - 17:00
- Czwartek: 08:00 - 17:00
- Piątek: 08:00 - 17:00
- Sobota: 09:00 - 14:00
Salony otwarte w każdą ostatnią sobotę miesiąca!





