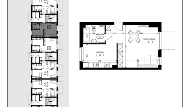
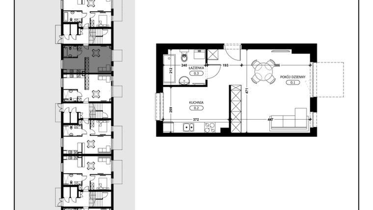
Mieszkanie na sprzedaż 1 pokój o powierzchni 37,12 m² numer B3-M2
Inwestycja:
Śląska ParkDeweloper:
Rorbach Development Sp. z o.o.
Inwestycja:
Śląska ParkDeweloper:
Rorbach Development Sp. z o.o.Łódź, Chojny-Dąbrowa, ul. śląska 39
Łódź, Chojny-Dąbrowa, ul. śląska 39
Promocje
Nieruchomość bez wkładu własnego
Wybrane mieszkania w tej inwestycji kupisz bez wkładu własnego
Szczegóły dostępne w biurze sprzedaży
Termin oddania
2 kw. 2026
Ilość pokoi
1 pokój
Metraż
37,12 m²
Piętro
Parter
Strona świata
wschód, zachód
Powierzchnie dodatkowe
Taras
Kuchnia
zamknięta kuchnia
Wysokość pomieszczeń
od 260 do 280 cm wysokości
Ilość poziomów
1 poziom
Oznaczenie oferty
B3-M2

Raport o deweloperze
Poznaj dewelopera bliżej! Pobierz raport, w którym znajdziesz kluczowe informacje o firmie, jej doświadczeniu, nagrodach oraz aktualnych i zrealizowanych inwestycjach.
Budynek i otoczenie
Miejsca postojowe | |
|---|---|
Komórki lokatorskie | dostępne |
Standard wykończenia | standard deweloperski Ogrzewanie gaz, pompa ciepła |
Realizacja inwestycji | rozpoczęcie budowy w 1 kw. 2024 roku, planowane oddanie do użytkowania w 2 kw. 2026 roku |
Udogodnienia | teren ogrodzony, internet, rowerownia, przystosowane dla niepełnosprawnych, TV kablowa |
Przyroda | w okolicy inwestycji znajduje się park, staw |
Charakterystyka energetyczna nieruchomości | informacja u dewelopera |
Rezerwacja i finanse
Rodzaj własności | Odrębna własność z własnością gruntu |
|---|---|
Wysokość czynszu | informacja u dewelopera |
Warunki rezerwacji | Informacja u dewelopera |
Zabezpieczenie środków | Otwarty mieszkaniowy rachunek powierniczy |
Zdjęcia z budowy
Zobacz na jakim etapie budowy jest ta inwestycja
Lokalizacja inwestycji
Stacja kolejowa - Łódź Chojny - 718 m
Przystanek Tramwajowy - 301 m
Przystanek Autobusowy - 210 m
Dojazd do centrum: pokaż
W pobliżu 1 km od tej inwestycji znajdują się:
10 kawiarni i restauracji, 45 sklepów, 35 obiektów sportowych, 2 placówki medyczne, 44 placówki edukacyjne, 67 placów zabaw
Przeczytaj więcej o lokalizacji
Południowa część Łodzi rozciągnięta na powierzchni ok. 70 km. kw i zamieszkana jest przez 170 tys. osób. Dzielnica dzieli się na rejony Chojny-Dąbrowa, Chojny, Górniak, Piastów-Kurak, Rokicie, Ruda, Nad Nerem, Wiskitno. Główne ulice dzielnicy to u. Pabianicka, ul. Rzgowska i odchodząca od niej w kierunku wschodnim ul. Jarosława Dąbrowskiego. To dzielnica bogata w parki i ośrodki rekreacyjne, takie jak Stawy Jana, Młynek, Rudzka Góra czy Las Ruda Popioły. Na terenie dzielnicy znajdują się też zabytki takie, jak dwór Benedykta Górskiego, Muzeum Włókiennictwa, Willa Ferdynanda Koninga czy liczne parki. Dzielnica jest doskonale skomunikowana dzięki sieci komunikacji miejskiej ale też dworcowi PKP Łódź Chojny i położonego we wschodniej części dzielnicy portowi lotniczemu. Dzielnica ma dobry odstęp do punktów usługowych dzięki kilku hipermarketom, centrum handlowemu Guliwer i supermarketom budowlanym. Zabudowa mieszkalna to głównie bloki, przedwojenne kamienice i robotnicze domki jednorodzinne. Mieszczą się tu też cmentarze katolickie i ewangelicko-augsburski. Główne centrum handlowe to Guliwer z hipermarketem Carrefour.
Opis oferty
Nowe 1-pokojowe mieszkanie na sprzedaż o powierzchni 37,12 m² znajduje się w nowo budowanej inwestycji deweloperskiej Śląska Park Chojnach-Dąbrowie, ul. śląska 39 (4.4 km od centrum Łodzi).
Inwestycja jest realizowana przez Rorbach Development Sp. z o.o.
Cała inwestycja składa się z 9 budynków, w których łącznie znajduje się 100 nowych mieszkań.
Na sprzedaż pozostaje 28 ofert o powierzchni od 32 do 50 m².
W budynkach są 3 kondygnacje naziemne. Budynek nie posiada kondygnacji podziemnych.
Inwestycja Śląska Park jest w trakcie budowy z planowanym na 2 kw. 2026 roku terminem oddania do użytkowania.
Nowe mieszkanie o oznaczeniu B3-M2 znajduje się na parterze i jest 1-poziomowe. Pomieszczenia mają od 260 do 280 centymetrów wysokości. W mieszkaniu znajduje się 1 pokój.
Okna w mieszkaniu wychodzą na wschód, zachód.
Wschodnia orientacja zapewnia dostęp do łagodnego porannego światła, idealnego dla rozpoczęcia dnia pełnego energii. Wnętrza pozostają jasne, ale nieprzegrzane, co sprzyja utrzymaniu komfortowej temperatury. Przebywanie w pomieszczeniu z oknami na wschód inspiruje do działania i pozytywnie wpływa na poranny rytuał.
Zachodnia ekspozycja to gwarancja intensywnego popołudniowego światła, które nadaje wnętrzom przytulności i ciepła. Idealne dla miłośników słonecznych wieczorów, którzy pragną cieszyć się pięknymi zachodami słońca we własnym domu. Zachodnie światło podkreśla kolory i faktury w aranżacji wnętrz, tworząc atmosferę sprzyjającą relaksowi po długim dniu.
Dla przyszłych mieszkańców Śląska Park deweloper przewidział miejsca postojowe naziemne.
Dzięki temu przyszli właściciele nie będą musieli poszukiwać wolnej przestrzeni parkingowej.
Opis Inwestycji
Okazyjna cena
Pow. dodatkowe
Projekt Śląska Park to nowe miejsce na mapie Łodzi zlokalizowane przy ul. Śląskiej 39
Główne atuty inwestycji:
- Doskonała lokalizacja - bliskość centrum miasta a zarazem terenów zielonych takich jak ,, Młynek" czy też ,,Stawy Jana"
- Zamknięta forma osiedla - dwie bramy wjazdowe, miejsca postojowe na terenie osiedla.
- Mieszkania na parterze posiadają ogródki, z kolei lokale powyżej balkony.
- Przemyślany i funkcjonalny układ mieszkań w powierzchniach od 27 m2 do 83 m2.
- Miejsce na przechowywanie rowerów zamykane na klucz
- Nowoczesny charakter osiedla
Termin rozpoczęcia prac: I kw. 2024
Termin zakończenia prac: IV kw. 2025
Termin przeniesienia własności: II kw. 2026
Mieszkanie znajduje się w inwestycji Śląska Park, w której znajdują się w sprzedaży jeszcze 22 podobne nowe mieszkania.
Rorbach Development Sp. z o.o.
Strona internetowa inwestycjiAdres biura sprzedaży:
ul. Wieniawskiego 5, 93-564 ŁódźGodziny otwarcia biura sprzedaży:
- Poniedziałek: 08:00 - 16:00
- Wtorek: 08:00 - 16:00
- Środa: 08:00 - 16:00
- Czwartek: 08:00 - 16:00
- Piątek: 08:00 - 16:00





