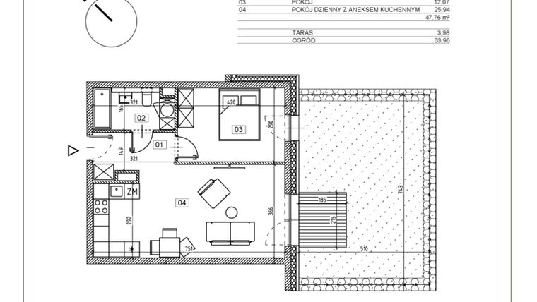
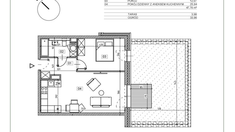
Mieszkanie na sprzedaż 2 pokoje o powierzchni 47,78 m² numer J.M01
Inwestycja:
Osiedle Glivia ZachodniaDeweloper:
Renner Sp. z o.o.
Inwestycja:
Osiedle Glivia ZachodniaDeweloper:
Renner Sp. z o.o.Gliwice, ul. Daszyńskiego 68
Gliwice, ul. Daszyńskiego 68
Termin oddania
Gotowe
Ilość pokoi
2 pokoje
Metraż
47,78 m²
Piętro
Parter
Kuchnia
otwarta kuchnia
Wysokość pomieszczeń
265 cm wysokości
Ilość poziomów
1 poziom
Oznaczenie oferty
J.M01

Raport o deweloperze
Poznaj dewelopera bliżej! Pobierz raport, w którym znajdziesz kluczowe informacje o firmie, jej doświadczeniu, nagrodach oraz aktualnych i zrealizowanych inwestycjach.
Budynek i otoczenie
Miejsca postojowe | |
|---|---|
Standard wykończenia | standard deweloperski Ogrzewanie PEC miejskie, podłogowe |
Realizacja inwestycji | rozpoczęcie budowy w 4 kw. 2024 roku, inwestycja została oddana do użytkowania w 4 kw. 2025 roku |
Udogodnienia | informacja u dewelopera |
Przyroda | informacja u dewelopera |
Charakterystyka energetyczna nieruchomości | informacja u dewelopera |
Rezerwacja i finanse
Rodzaj własności | Odrębna własność z własnością gruntu |
|---|---|
Wysokość czynszu | informacja u dewelopera |
Warunki rezerwacji | Informacja u dewelopera |
Zabezpieczenie środków | informacja u dewelopera |
Zdjęcia z budowy
Zobacz na jakim etapie budowy jest ta inwestycja
Lokalizacja inwestycji
Stacja kolejowa - Gliwice - 2328 m
Przystanek Autobusowy - 117 m
Dojazd do centrum: pokaż
W pobliżu 1 km od tej inwestycji znajdują się:
5 kawiarni i restauracji, 30 sklepów, 43 obiekty sportowe, 15 placówek medycznych, 37 placówek edukacyjnych, 21 placów zabaw
Przeczytaj więcej o lokalizacji
Gliwice są miastem powiatowym, należącym do Metropolii Silesia. Leżą w południowo-zachodniej części kraju, nad rzeką Kłodnicą. Zabudowa miasta ulega stałym modyfikacjom wskutek rozbudowy sektora mieszkalnego. Przybywa głównie domów jednorodzinnych. Jeśli chodzi o nieruchomości komercyjne, to z reguły w ciekawy sposób adaptowane są do tych celów stare budynki. Gliwice to ośrodek przemysłowy, biznesowy, edukacyjny i kulturalny, oferujący mieszkańcom dostęp do wszystkich niezbędnych instytucji. Znajduje się tu cenione w Europie Centrum Onkologii, działa kilkanaście galerii i muzeów, wiele szkół i zespołów szkół, a swoją siedzibę ma tu również Politechnika Śląska. Miasto ma bogatą infrastrukturę sportową i handlową. W Gliwicach znajduje się największy polski węzeł autostradowy Gliwice-Sośnica. 43 km stąd mieści się lotnisko. Dzięki transportowi drogowemu, kolejowemu i wodnemu, obszar jest świetnie skomunikowany z resztą kraju, a kilkaset przystanków komunikacji miejskiej zapewnia doskonałe połączenia z resztą Górnośląskiego Okręgu Przemysłowego.
Opis oferty
Nowe 2-pokojowe mieszkanie na sprzedaż o powierzchni 47,78 m² znajduje się w nowo budowanej inwestycji deweloperskiej Osiedle Glivia Zachodnia w Gliwicach, ul. Daszyńskiego 68 (1.8 km od centrum Gliwic).
Inwestycja jest realizowana przez Renner Sp. z o.o.
Cała inwestycja składa się z 2 budynków, w których łącznie znajduje się 48 nowych mieszkań.
Na sprzedaż pozostaje 26 ofert o powierzchni od 36 do 86 m².
W budynkach są 4 kondygnacje naziemne oraz 1 kondygnacja podziemna.
Inwestycja Osiedle Glivia Zachodnia została wybudowana i oddana do użytkowania w 4 kw. 2025 roku.
Nowe mieszkanie o oznaczeniu J.M01 znajduje się na parterze i jest 1-poziomowe. Pomieszczenia mają 265 centymetrów wysokości. W mieszkaniu znajdują się 2 pokoje.
Dla przyszłych mieszkańców Osiedle Glivia Zachodnia deweloper przewidział miejsca postojowe naziemne.
Dzięki temu przyszli właściciele nie będą musieli poszukiwać wolnej przestrzeni parkingowej.
Opis Inwestycji
Tereny zielone
To współczesne osiedle położone w bliskim sąsiedztwie centrum miasta, przy ulicy Daszyńskiego 68. Niezwykła koncepcja i architektura, opracowane przez renomowane biuro architektoniczne Medusagroup, oraz funkcjonalny układ mieszkań o różnorodnych metrażach czynią naszą ofertę atrakcyjną dla każdego, kto poszukuje wyjątkowego miejsca do zamieszkania. Zapewniamy komfortowe mieszkania z wszelkimi udogodnieniami.
Osiedle Glivia w Gliwicach to nowoczesna inwestycja, która łączy przemyślaną architekturę, wysokiej jakości materiały oraz solidne wykonanie. To miejsce stworzone z myślą o komforcie i wygodzie mieszkańców, oferujące funkcjonalne układy mieszkań oraz atrakcyjną lokalizację.
Mieszkanie znajduje się w inwestycji Osiedle Glivia Zachodnia, w której znajdują się w sprzedaży jeszcze 4 podobne nowe mieszkania.
Renner Sp. z o.o.
Strona internetowa inwestycjiAdres biura sprzedaży:
ul. Ignacego Daszyńskiego 68, GliwiceGodziny otwarcia biura sprzedaży:
- Poniedziałek: 09:00 - 17:00
- Wtorek: 09:00 - 17:00
- Środa: 09:00 - 17:00
- Czwartek: 09:00 - 17:00
- Piątek: 09:00 - 17:00





