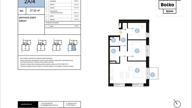
Mieszkanie na sprzedaż 3 pokoje o powierzchni 57,52 m² numer 2A/4
Inwestycja:
Osiedle Bolko etap IIDeweloper:
Renner Sp. z o.o.
Inwestycja:
Osiedle Bolko etap IIDeweloper:
Renner Sp. z o.o.Bytom, ul. Północna 1
Bytom, ul. Północna 1
Termin oddania
Gotowe
Ilość pokoi
3 pokoje
Metraż
57,52 m²
Piętro
1 piętro
Kuchnia
otwarta kuchnia
Wysokość pomieszczeń
od 260 do 280 cm wysokości
Ilość poziomów
1 poziom
Oznaczenie oferty
2A/4

Raport o deweloperze
Poznaj dewelopera bliżej! Pobierz raport, w którym znajdziesz kluczowe informacje o firmie, jej doświadczeniu, nagrodach oraz aktualnych i zrealizowanych inwestycjach.
Budynek i otoczenie
Miejsca postojowe | |
|---|---|
Standard wykończenia | standard deweloperski |
Realizacja inwestycji | rozpoczęcie budowy w 1 kw. 2024 roku, inwestycja została oddana do użytkowania w 4 kw. 2025 roku |
Udogodnienia | informacja u dewelopera |
Przyroda | w okolicy inwestycji znajduje się park |
Charakterystyka energetyczna nieruchomości | informacja u dewelopera |
Rezerwacja i finanse
Rodzaj własności | Odrębna własność z własnością gruntu |
|---|---|
Wysokość czynszu | informacja u dewelopera |
Warunki rezerwacji | Informacja u dewelopera |
Zabezpieczenie środków | Informacja u dewelopera |
Zdjęcia z budowy
Zobacz na jakim etapie budowy jest ta inwestycja
Lokalizacja inwestycji
Stacja kolejowa - Bytom - 2505 m
Przystanek Tramwajowy - 904 m
Przystanek Autobusowy - 287 m
Dojazd do centrum Chorzowa: pokaż
W pobliżu 1 km od tej inwestycji znajdują się:
11 sklepów, 8 obiektów sportowych, 1 placówka medyczna, 7 placówek edukacyjnych, 6 placów zabaw
Przeczytaj więcej o lokalizacji
Bytom to miasto na prawach powiatu, położone w w centrum konurbacji górnośląskiej. Bytom leży w centralnej części Wyżyny Śląskiej na Wyżynie Miechowickiej, części Płaskowyżu Bytomsko-Katowickiego. Położenie geograficzne Bytomia wyznaczają współrzędne: 50°19′ i 50°26′ szerokości geograficznej północnej oraz 18°47′ i 18°58′ długości geograficznej wschodniej. Miasto znajduje się na średniej wysokości 280–290 m n.p.m., wahając się od 249 m n.p.m. w dolinie rzeki Bytomki do 346 m n.p.m. w rejonie rezerwatu Segiet. W rejonie Bytomia wydziela się kilka mniejszych jednostek morfologicznych. Centralny obszar miasta zajmuje Wyżyna Miechowicka otoczona od północy dolinami Dramy, Szarlejki i Brynicy, od południa Bytomką, natomiast od wschodu Wyżyna Miechowicka przechodzi w Wyżynę Siemianowicką. Północna część Bytomia znajduje się na terenie Garbu Tarnogórskiego.
Opis oferty
Nowe 3-pokojowe mieszkanie na sprzedaż o powierzchni 57,52 m² znajduje się w nowo budowanej inwestycji deweloperskiej Osiedle Bolko etap II w Bytomiu, ul. Północna 1 (3.5 km od Chorzowa).
Inwestycja jest realizowana przez Renner Sp. z o.o.
Cała inwestycja składa się z 4 budynków, w których łącznie znajduje się 48 nowych mieszkań.
Na sprzedaż pozostaje 16 ofert o powierzchni od 28 do 101 m².
W budynkach są 4 kondygnacje naziemne. Budynek nie posiada kondygnacji podziemnych.
Inwestycja Osiedle Bolko etap II została wybudowana i oddana do użytkowania w 4 kw. 2025 roku.
Nowe mieszkanie o oznaczeniu 2A/4 znajduje się na 1 piętrze i jest 1-poziomowe. Pomieszczenia mają od 260 do 280 centymetrów wysokości. W mieszkaniu znajdują się 3 pokoje.
Dla przyszłych mieszkańców Osiedle Bolko etap II deweloper przewidział miejsca postojowe naziemne.
Dzięki temu przyszli właściciele nie będą musieli poszukiwać wolnej przestrzeni parkingowej.
Opis Inwestycji
W lutym 2024 roku wystartowaliśmy z budową II ETAPU Osiedla Bolko w Bytomiu. To wyjątkowa okazja, by zapoznać się z naszą najnowszą ofertą mieszkań w Bytomiu. Bolko łączy śląską tradycję z nowoczesnością i… odczarowuje znane nam wszystkim smutne familoki, które kojarzą się z Bytomiem.
Znajdziesz tutaj miejsce dla siebie i swojej rodziny.
Osiedle Bolko to bezpieczne miejsce, usytuowane w dogodnej lokalizacji. Znajdziesz tutaj place zabaw szkoły i przedszkola. Bez problemu dotrzesz również do piekarni po świeże bułeczki na śniadanie!
Mieszkanie po śląsku.
Jesteśmy ze Śląska, więc budujemy po śląsku. Jako Ślązacy słyniemy z dobrego smaku, uczciwej pracy i dbałości o wielopokoleniowe tradycje. Takie jest też nasze osiedle - trwałe, domowe i wybudowane z najwyższą starannością, czyli po ŚLĄSKU.
Bezpośrednie sąsiedztwo zieleni i dobra komunikacja
Dla każdego mieszkańca - bez wyjątku. Część naszych mieszkań ma dodatkową przestrzeń w postaci ogródka, balkonu lub tarasu, a wszyscy mieszkańcy mają bezpośredni dostęp do otaczających parków i ścieżek rowerowych.
Jak będzie wyglądać Twoje mieszkanie?
Wiele zależy od Twoich potrzeb.
Wszystkie mieszkania sprzedawane są w stanie deweloperskim. Stanowią przestrzeń, którą zagospodarujesz zgodnie ze swoimi marzeniami, przekonaniami i pomysłem.
Mieszkanie znajduje się w inwestycji Osiedle Bolko etap II, w której znajduje się w sprzedaży jeszcze 8 podobnych nowych mieszkań.





