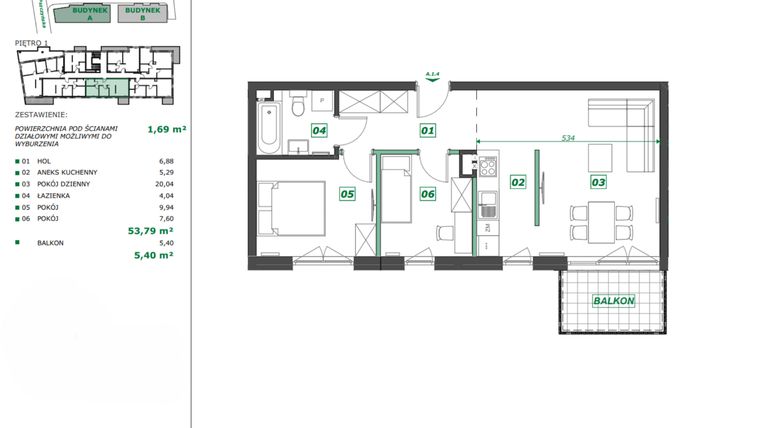
Mieszkanie na sprzedaż 3 pokoje o powierzchni 55,43 m² numer A.1.4
Inwestycja:
Apartamenty PszczyńskaDeweloper:
Pszczyńska 61
Inwestycja:
Apartamenty PszczyńskaDeweloper:
Pszczyńska 61Gliwice, ul. Pszczyńska 61
Gliwice, ul. Pszczyńska 61
Termin oddania
Gotowe
Ilość pokoi
3 pokoje
Metraż
55,43 m²
Piętro
1 piętro
Powierzchnie dodatkowe
Balkon
Kuchnia
otwarta kuchnia
Wysokość pomieszczeń
270 cm wysokości
Ilość poziomów
1 poziom
Oznaczenie oferty
A.1.4

Raport o deweloperze
Poznaj dewelopera bliżej! Pobierz raport, w którym znajdziesz kluczowe informacje o firmie, jej doświadczeniu, nagrodach oraz aktualnych i zrealizowanych inwestycjach.
Budynek i otoczenie
Miejsca postojowe | |
|---|---|
Komórki lokatorskie | dostępne |
Standard wykończenia | standard deweloperski podwyższony Ogrzewanie miejskie |
Realizacja inwestycji | rozpoczęcie budowy w 1 kw. 2022 roku, inwestycja została oddana do użytkowania w 1 kw. 2025 roku |
Udogodnienia | monitoring, teren ogrodzony, klimatyzacja, usługi w budynku, winda |
Przyroda | informacja u dewelopera |
Charakterystyka energetyczna nieruchomości |
|
Rezerwacja i finanse
Rodzaj własności | Odrębna własność z własnością gruntu |
|---|---|
Wysokość czynszu | informacja u dewelopera |
Warunki rezerwacji | Informacja u dewelopera |
Zabezpieczenie środków | Otwarty mieszkaniowy rachunek powierniczy |
Zdjęcia z budowy
Zobacz na jakim etapie budowy jest ta inwestycja
Lokalizacja inwestycji
Stacja kolejowa - Gliwice - 1581 m
Przystanek Autobusowy - 91 m
Dojazd do centrum: pokaż
W pobliżu 1 km od tej inwestycji znajdują się:
51 kawiarni i restauracji, 44 sklepy, 60 obiektów sportowych, 31 placówek medycznych, 37 placówek edukacyjnych, 10 placów zabaw
Przeczytaj więcej o lokalizacji
Gliwice są miastem powiatowym, należącym do Metropolii Silesia. Leżą w południowo-zachodniej części kraju, nad rzeką Kłodnicą. Zabudowa miasta ulega stałym modyfikacjom wskutek rozbudowy sektora mieszkalnego. Przybywa głównie domów jednorodzinnych. Jeśli chodzi o nieruchomości komercyjne, to z reguły w ciekawy sposób adaptowane są do tych celów stare budynki. Gliwice to ośrodek przemysłowy, biznesowy, edukacyjny i kulturalny, oferujący mieszkańcom dostęp do wszystkich niezbędnych instytucji. Znajduje się tu cenione w Europie Centrum Onkologii, działa kilkanaście galerii i muzeów, wiele szkół i zespołów szkół, a swoją siedzibę ma tu również Politechnika Śląska. Miasto ma bogatą infrastrukturę sportową i handlową. W Gliwicach znajduje się największy polski węzeł autostradowy Gliwice-Sośnica. 43 km stąd mieści się lotnisko. Dzięki transportowi drogowemu, kolejowemu i wodnemu, obszar jest świetnie skomunikowany z resztą kraju, a kilkaset przystanków komunikacji miejskiej zapewnia doskonałe połączenia z resztą Górnośląskiego Okręgu Przemysłowego.
Opis oferty
Nowe 3-pokojowe mieszkanie na sprzedaż o powierzchni 55,43 m² znajduje się w nowo budowanej inwestycji deweloperskiej Apartamenty Pszczyńska w Gliwicach, ul. Pszczyńska 61 (0.9 km od centrum Gliwic).
Inwestycja jest realizowana przez Pszczyńska 61.
Cała inwestycja składa się z 2 budynków, w których łącznie znajduje się 50 nowych mieszkań.
Na sprzedaż pozostają 32 oferty o powierzchni od 30 do 116 m².
W budynkach są 4 kondygnacje naziemne oraz 1 kondygnacja podziemna.
Inwestycja Apartamenty Pszczyńska została wybudowana i oddana do użytkowania w 1 kw. 2025 roku.
Nowe mieszkanie o oznaczeniu A.1.4 znajduje się na 1 piętrze i jest 1-poziomowe. Pomieszczenia mają 270 centymetrów wysokości. W mieszkaniu znajdują się 3 pokoje.
Dla przyszłych mieszkańców Apartamenty Pszczyńska deweloper przewidział miejsca postojowe podziemne.
Dzięki temu przyszli właściciele nie będą musieli poszukiwać wolnej przestrzeni parkingowej. Dodatkowo, miejsce postojowe w garażu podziemnym zabezpiecza przed niekorzystnymi warunkami atmosferycznymi.
Opis Inwestycji
Tereny zielone
Pow. dodatkowe
Dlaczego warto wybrać Apartamenty Pszczyńska?
Apartamenty Pszczyńska to zlokalizowane przy ul Pszczyńskiej w Gliwicach osiedle mieszkaniowe składające się z dwóch eleganckich budynków mieszkalnych połączonych komfortowym garażem podziemnym.
Architektura osiedla doskonale wkomponowuje się w otoczenie centrum Gliwic łącząc tradycję z nowoczesnymi i komfortowymi rozwiązaniami technicznymi np., garaż podziemny przewidziany dla wszystkich mieszkań skomunikowane cichobieżnymi windami.
Doskonały dojazd do całej aglomeracji śląskiej poprzez bezpośrednie położenie przy ulicy Pszczyńskiej będącej arterią komunikacyjną łączącą Gliwice z DTŚ i autostradami A4/A1 .
Niezależnie czy pracujesz, czy jesteś studentem Apartamenty Pszczyńska to świetne miejsce do wypoczynku po ciężkim dniu w pracy czy na uczelni, a jego lokalizacja umożliwia szybkie przemieszczanie się i skraca do minimum czas jaki trzeba poświęcić na dotarcie do pracy czy na uczelnię.
Dla maksymalnego komfortu mieszkańców zaplanowaliśmy na naszym osiedlu sklep spożywczy znanej sieci handlowej. Większe zakupy zrobisz w bezpośrednim sąsiedztwie.
Apartamenty Pszczyńska to miejsce dla ludzi aktywnych, chcących czerpać z atrakcji Gliwic jak najwięcej radości. .Wszystkie atrakcje począwszy od Rynku, Parku im. Bolesława Chrobrego ,Teatru, Centrum Sportowego Jasna i wielu innych jest dostępne kilkuminutowym spacerem
Mieszkanie znajduje się w inwestycji Apartamenty Pszczyńska, w której znajduje się w sprzedaży jeszcze 20 podobnych nowych mieszkań.





