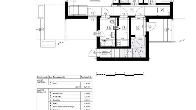
Mieszkanie na sprzedaż 3 pokoje o powierzchni 60,95 m² numer C.0
Inwestycja:
Osiedle PaprociowaDeweloper:
PPHU Jordan Radosław Godlewski
Inwestycja:
Osiedle PaprociowaDeweloper:
PPHU Jordan Radosław GodlewskiŁódź, Górna, Wiskitno, ul. Paprociowa
Łódź, Górna, Wiskitno, ul. Paprociowa
Promocje
Promocja
Promocja - wykończenie kuchni do 30 tys. brutto w lokalu na parterze z bud.C.
Wykończenie kuchni zostanie wykonane zgodnie z wizją klienta lub na życzenie deweloper nie zajmie się wykończeniem kuchni, ale obniży cenę mieszkania o wskazaną wcześniej wartość. Informacja ta zostanie zawarta w akcie notarialnym.
Oddanie
Gotowe
Ilość pokoi
3 pokoje
Metraż
60,95 m²
Piętro
Parter
Dodatkowe
Taras, Ogródek
Kuchnia
otwarta kuchnia
Wysokość
275 cm wysokości
Poziomy
1 poziom
Oznaczenie oferty
C.0

Raport o deweloperze
Poznaj dewelopera bliżej! Pobierz raport, w którym znajdziesz kluczowe informacje o firmie, jej doświadczeniu, nagrodach oraz aktualnych i zrealizowanych inwestycjach.
Budynek i otoczenie
Miejsca postojowe | |
|---|---|
Standard wykończenia | standard deweloperski Ogrzewanie pompa ciepła, podłogowe |
Realizacja inwestycji | rozpoczęcie budowy w 1 kw. 2024 roku, inwestycja została oddana do użytkowania w 4 kw. 2024 roku |
Udogodnienia | monitoring, teren ogrodzony, instalacja fotowoltaiczna |
Przyroda | informacja u dewelopera |
Charakterystyka energetyczna nieruchomości | informacja u dewelopera |
Rezerwacja i finanse
Rodzaj własności | Odrębna własność z własnością gruntu |
|---|---|
Wysokość czynszu | informacja u dewelopera |
Warunki rezerwacji | umowa rezerwacyjna nienotarialna na 1% wartości mieszkania, a później akt notarialny |
Zabezpieczenie środków | Informacja u dewelopera |
Postępy i zdjęcia z budowy
Zobacz na jakim etapie budowy jest ta inwestycja
Lokalizacja inwestycji
Stacja kolejowa - Łódź Olechów Wiadukt - 2968 m
Przystanek Autobusowy - 413 m
Dojazd do centrum: pokaż
Przeczytaj więcej o lokalizacji
Południowa część Łodzi rozciągnięta na powierzchni ok. 70 km. kw i zamieszkana jest przez 170 tys. osób. Dzielnica dzieli się na rejony Chojny-Dąbrowa, Chojny, Górniak, Piastów-Kurak, Rokicie, Ruda, Nad Nerem, Wiskitno. Główne ulice dzielnicy to u. Pabianicka, ul. Rzgowska i odchodząca od niej w kierunku wschodnim ul. Jarosława Dąbrowskiego. To dzielnica bogata w parki i ośrodki rekreacyjne, takie jak Stawy Jana, Młynek, Rudzka Góra czy Las Ruda Popioły. Na terenie dzielnicy znajdują się też zabytki takie, jak dwór Benedykta Górskiego, Muzeum Włókiennictwa, Willa Ferdynanda Koninga czy liczne parki. Dzielnica jest doskonale skomunikowana dzięki sieci komunikacji miejskiej ale też dworcowi PKP Łódź Chojny i położonego we wschodniej części dzielnicy portowi lotniczemu. Dzielnica ma dobry odstęp do punktów usługowych dzięki kilku hipermarketom, centrum handlowemu Guliwer i supermarketom budowlanym. Zabudowa mieszkalna to głównie bloki, przedwojenne kamienice i robotnicze domki jednorodzinne. Mieszczą się tu też cmentarze katolickie i ewangelicko-augsburski. Główne centrum handlowe to Guliwer z hipermarketem Carrefour.
Opis oferty
Promocja - wykończenie kuchni do 30 tys. brutto w lokalu na parterze z bud.C. Wykończenie kuchni zostanie wykonane zgodnie z wizją klienta lub na życzenie deweloper nie zajmie się wykończeniem kuchni, ale obniży cenę mieszkania o wskazaną wcześniej wartość. Informacja ta zostanie zawarta w akcie notarialnym.
Nowe 3-pokojowe mieszkanie na sprzedaż o powierzchni 60,95 m² znajduje się w nowo budowanej inwestycji deweloperskiej Osiedle Paprociowa na Wiskitnie, ul. Paprociowa (8.6 km od centrum Łodzi).
Inwestycja jest realizowana przez PPHU Jordan Radosław Godlewski.
Cała inwestycja składa się z 3 budynków, w których łącznie znajduje się 5 nowych mieszkań.
Na sprzedaż pozostają 4 oferty o powierzchni od 61 do 79 m².
W budynkach są 2 kondygnacje naziemne. Budynek nie posiada kondygnacji podziemnych.
Inwestycja Osiedle Paprociowa została wybudowana i oddana do użytkowania w 4 kw. 2024 roku.
Nowe mieszkanie o oznaczeniu C.0 znajduje się na parterze i jest 1-poziomowe. Pomieszczenia mają 275 centymetrów wysokości. W mieszkaniu znajdują się 3 pokoje.
Dla przyszłych mieszkańców Osiedle Paprociowa deweloper przewidział miejsca postojowe naziemne.
Dzięki temu przyszli właściciele nie będą musieli poszukiwać wolnej przestrzeni parkingowej.
Opis Inwestycji
Okazyjna cena
Pow. dodatkowe
Osiedle Paprociowa Park to kameralna inwestycja zlokalizowana w spokojnej i cichej okolicy, z dala od zgiełku miasta, a jednocześnie w bardzo dobrej lokalizacji — tuż obok Trasy Górnej, która zapewnia szybki dojazd do centrum Łodzi. Co ważne, mimo bliskości arterii, w samym osiedlu panuje pełen komfort akustyczny — drogi ekspresowej nie słychać.
W najbliższym sąsiedztwie znajduje się teren rekreacyjny Stawy Jana, idealny na spacery, rower czy aktywny wypoczynek z rodziną.
Całość inwestycji jest ogrodzona i zamknięta, co gwarantuje bezpieczeństwo i prywatność mieszkańców. Budynki zostały wykonane z nowoczesnych, energooszczędnych materiałów, zapewniających trwałość i wysoki standard użytkowania.
Do każdego mieszkania przynależy jedno miejsce parkingowe, z możliwością dokupienia drugiego miejsca w późniejszym czasie.
Mieszkanie znajduje się w inwestycji Osiedle Paprociowa, w której znajdują się w sprzedaży jeszcze 3 podobne nowe mieszkania.





