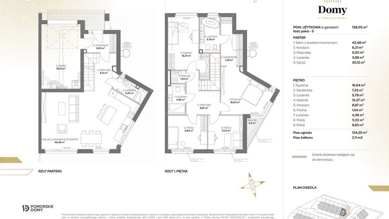
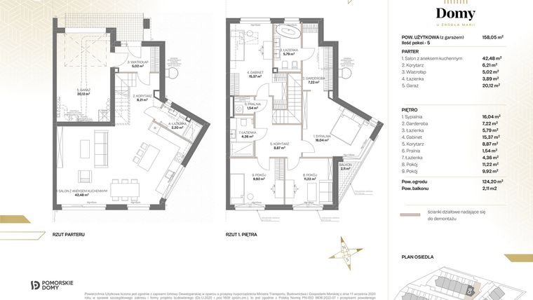
Dom na sprzedaż 5 pokoi o powierzchni 158,05 m² numer C6
Inwestycja:
Domy u Źródła MariiDeweloper:
Pomorskie Domy
Inwestycja:
Domy u Źródła MariiDeweloper:
Pomorskie DomyGdynia, Wielki Kack, ul. Źródło Marii
Gdynia, Wielki Kack, ul. Źródło Marii
Termin oddania
1 kw. 2027
Ilość pokoi
5 pokoi
Metraż
158,05 m²
Strona świata
wschód, północ, południe
Powierzchnie dodatkowe
Ogródek
Kuchnia
otwarta kuchnia
Wysokość pomieszczeń
270 cm wysokości
Ilość kondygnacji
2 poziomy
Oznaczenie oferty
C6

Raport o deweloperze
Poznaj dewelopera bliżej! Pobierz raport, w którym znajdziesz kluczowe informacje o firmie, jej doświadczeniu, nagrodach oraz aktualnych i zrealizowanych inwestycjach.
Budynek i otoczenie
Miejsca postojowe | |
|---|---|
Standard wykończenia | standard deweloperski Ogrzewanie gruntowe pompy ciepła |
Realizacja inwestycji | oddanie do użytkowania w 1 kw. 2027 roku |
Udogodnienia | teren ogrodzony, rekuperacja, pompa ciepła |
Przyroda | w okolicy inwestycji znajduje się park, las |
Charakterystyka energetyczna nieruchomości | informacja u dewelopera |
Rezerwacja i finanse
Rodzaj własności | Odrębna własność z własnością gruntu |
|---|---|
Wysokość czynszu | informacja u dewelopera |
Warunki rezerwacji | Umowa rezerwacyjna |
Zabezpieczenie środków | Otwarty mieszkaniowy rachunek powierniczy |
Zdjęcia z budowy
Zobacz na jakim etapie budowy jest ta inwestycja
Lokalizacja inwestycji
Stacja kolejowa - Gdynia Karwiny - 1522 m
Przystanek Autobusowy - 356 m
Dojazd do centrum: pokaż
W pobliżu 1 km od tej inwestycji znajdują się:
3 kawiarnie i restauracje, 17 sklepów, 11 obiektów sportowych, 3 placówki medyczne, 9 placówek edukacyjnych, 24 place zabaw
Przeczytaj więcej o lokalizacji
Wielki Kack to południowa, położona w dużej części na wysokości Sopotu dzielnica Gdyni ograniczona ul. Sopocką, Spacerową i drogami krajowymi 20 i E28, co sprawia, że można z niej wygodnie dojechać zarówno do innych dzielnic miasta, jak i w pozostałe miejsca kraju. Dużą część Wielkiego Kacka stanowią lasy miejskie, w tym Lasy Sopockie. Na liczącej 15 km kw powierzchni Wielkiego Kacka mieszka 10 tys. mieszkańców. Dzielnica składa się w dużej mierze z domków jednorodzinnych a jej cześć ma charakter wiejski. Z Wielkiego Kacka można wygodnie dostać się do ośrodków opieki zdrowotnej: Uniwersyteckiego Centrum Medycyny i Szpitala Morskiego im. PCK ( 3 km) i oddalonego o zaledwie 5 m od granic dzielnicy NZOZ Dąbrowa-Dąbrówka. W odległości ok. 2 km można znaleźć SZOZ Uzdrowisko Sopot. W dzielnicy działają markety m.in. Stokrotka i Lewiatan a najbliższe centrum handlowe znajduje się w odległości 1 km (CH Osowa). Atrakcją okolicy jest Sopocki Teatr Tańca i Ogród Zoologiczny Wybrzeże (ok. 2 km).
Opis oferty
Nowy 5-pokojowy dom szeregowy na sprzedaż o powierzchni 158,05 m² znajduje się w nowo wybudowanej inwestycji deweloperskiej Domy u Źródła Marii na Wielkim Kacku, ul. Źródło Marii (6.8 km od centrum Gdyni).
Inwestycja została zrealizowana przez Pomorskie Domy.
Cała inwestycja składa się z 20 nowych domów.
Inwestycja Domy u Źródła Marii jest w trakcie budowy z planowanym na 1 kw. 2027 roku terminem oddania do użytkowania.
Nowy dom szeregowy o oznaczeniu C6 , składa się z 2 kondygnacji bez poddasza, nie posiada podpiwniczenia. Wysokość pomieszczeń wynosi 270 cm.
W domu szeregowym numer C6 znajduje się się 5 pokoi.
Okna domu wychodzą na wschód, północ, południe.
Do domu przynależy ogródek o powierzchni 124,2 m².
Dla przyszłych mieszkańców Domy u Źródła Marii deweloper przewidział miejsca postojowe naziemne
Opis Inwestycji
Pow. dodatkowe
Domy u Źródła Marii to luksusowe, zamknięte osiedle, które oferuje 16 domów szeregowych oraz 4 domy w zabudowie bliźniaczej, zlokalizowane w prestiżowej gdyńskiej dzielnicy Wielki Kack.
Inwestycja łączy nowoczesną architekturę z najwyższymi standardami komfortu i elegancji, a także szereg ekologicznych rozwiązań, które zapewniają oszczędności i wygodę na co dzień.
Wszystkie domy zostały wzniesione z materiałów najwyższej jakości – elewacje zdobi naturalna cegła klinkierowa, a dachy pokrywa elegancka dachówka. Dekoracyjne panele na elewacjach dodają ciepła, a okna tarasowe typu przesuwnego wpuszczają do wnętrz naturalne światło. Wnętrza zaprojektowano z dbałością o każdy detal: szerokie blaty w kuchniach, szlachetne wykończenia w łazienkach i miękkie materiały w sypialniach, które zapewniają mieszkańcom poczucie komfortu i luksusu.
Domy u Źródła Marii to przestronność i nowoczesność, w połączeniu z rozwiązaniami, które zapewniają pełną niezależność energetyczną i komfort przez cały rok. Osiedle wyposażono w gruntowe pompy ciepła, rekuperację oraz ogrzewanie podłogowe w każdym pomieszczeniu, co wpływa na oszczędności i komfort życia. To również przestrzeń, w której mieszkańcy mogą cieszyć się pełną obsługą, co zapewnia im wygodę i eliminuje konieczność angażowania się w prace konserwacyjne.
Osiedle o powierzchni ponad 3000 m2 zostało zaprojektowane z myślą o wypoczynku i integracji mieszkańców, oferując im rozległe tereny zielone, w tym przestrzeń do jogi, relaksu oraz rekreacji w pobliżu malowniczego potoku. Zaletą osiedla jest także jego zamknięty charakter – tereny wspólne są dostępne tylko dla mieszkańców, co zapewnia prywatność oraz poczucie bezpieczeństwa. Osiedle jest monitorowane, co dodatkowo podkreśla komfort i spokój codziennego życia.
Lokalizacja inwestycji łączy spokojne, zielone otoczenie z łatwym dostępem do miejskich udogodnień. W pobliżu znajduje się historyczny potok, a sama dzielnica zachowuje zabytkowy charakter, co sprawia, że to idealne miejsce do życia dla osób ceniących zarówno bliskość natury, jak i udogodnienia współczesnego miasta.
Domy u Źródła Marii to przestrzeń, która odpowiada na potrzeby osób szukających harmonii między nowoczesnym stylem życia a naturą, oferując jednocześnie komfort i wygodę na najwyższym poziomie.
Dom znajduje się w inwestycji Domy u Źródła Marii, w której znajduje się w sprzedaży jeszcze 14 podobnych nowych domów.
Pomorskie Domy
Strona internetowa inwestycjiAdres biura sprzedaży:
ul. Kielnieńska 57, 80-299 GdańskGodziny otwarcia biura sprzedaży:
- Poniedziałek: 08:00 - 16:00
- Wtorek: 08:00 - 16:00
- Środa: 08:00 - 16:00
- Czwartek: 08:00 - 16:00
- Piątek: 08:00 - 16:00





