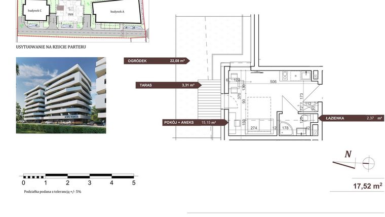
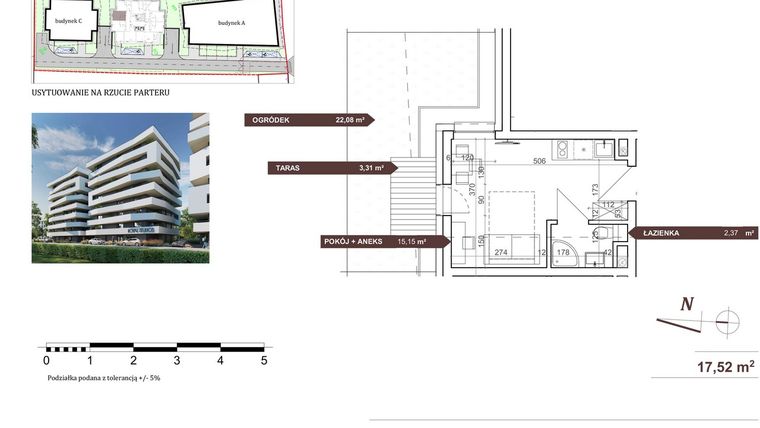
Mieszkanie na sprzedaż 1 pokój o powierzchni 17,52 m² numer L.B.0.6
Inwestycja:
Royal Studios Smart Apartments etap 2Deweloper:
Platforma Mieszkaniowa
Inwestycja:
Royal Studios Smart Apartments etap 2Deweloper:
Platforma MieszkaniowaGliwice, ul. Pszczyńska
Gliwice, ul. Pszczyńska
Termin oddania
Gotowe
Ilość pokoi
1 pokój
Metraż
17,52 m²
Piętro
Parter
Kuchnia
otwarta kuchnia
Wysokość pomieszczeń
270 cm wysokości
Ilość poziomów
1 poziom
Oznaczenie oferty
L.B.0.6

Raport o deweloperze
Poznaj dewelopera bliżej! Pobierz raport, w którym znajdziesz kluczowe informacje o firmie, jej doświadczeniu, nagrodach oraz aktualnych i zrealizowanych inwestycjach.
Budynek i otoczenie
Miejsca postojowe | |
|---|---|
Standard wykończenia | standard deweloperski Ogrzewanie miejskie |
Realizacja inwestycji | rozpoczęcie budowy w 1 kw. 2022 roku, inwestycja została oddana do użytkowania w 2 kw. 2023 roku |
Udogodnienia | teren ogrodzony, recepcja, winda, usługi w budynku, monitoring |
Przyroda | informacja u dewelopera |
Charakterystyka energetyczna nieruchomości | informacja u dewelopera |
Rezerwacja i finanse
Rodzaj własności | Odrębna własność z własnością gruntu |
|---|---|
Wysokość czynszu | informacja u dewelopera |
Warunki rezerwacji | Informacja u dewelopera |
Zabezpieczenie środków | Informacja u dewelopera |
Zdjęcia z budowy
Zobacz na jakim etapie budowy jest ta inwestycja
Lokalizacja inwestycji
Stacja kolejowa - Gliwice - 1500 m
Przystanek Autobusowy - 82 m
Dojazd do centrum: pokaż
W pobliżu 1 km od tej inwestycji znajdują się:
90 kawiarni i restauracji, 55 sklepów, 61 obiektów sportowych, 34 placówki medyczne, 40 placówek edukacyjnych, 10 placów zabaw
Przeczytaj więcej o lokalizacji
Gliwice są miastem powiatowym, należącym do Metropolii Silesia. Leżą w południowo-zachodniej części kraju, nad rzeką Kłodnicą. Zabudowa miasta ulega stałym modyfikacjom wskutek rozbudowy sektora mieszkalnego. Przybywa głównie domów jednorodzinnych. Jeśli chodzi o nieruchomości komercyjne, to z reguły w ciekawy sposób adaptowane są do tych celów stare budynki. Gliwice to ośrodek przemysłowy, biznesowy, edukacyjny i kulturalny, oferujący mieszkańcom dostęp do wszystkich niezbędnych instytucji. Znajduje się tu cenione w Europie Centrum Onkologii, działa kilkanaście galerii i muzeów, wiele szkół i zespołów szkół, a swoją siedzibę ma tu również Politechnika Śląska. Miasto ma bogatą infrastrukturę sportową i handlową. W Gliwicach znajduje się największy polski węzeł autostradowy Gliwice-Sośnica. 43 km stąd mieści się lotnisko. Dzięki transportowi drogowemu, kolejowemu i wodnemu, obszar jest świetnie skomunikowany z resztą kraju, a kilkaset przystanków komunikacji miejskiej zapewnia doskonałe połączenia z resztą Górnośląskiego Okręgu Przemysłowego.
Opis oferty
Nowe 1-pokojowe mieszkanie na sprzedaż o powierzchni 17,52 m² znajduje się w nowo budowanej inwestycji deweloperskiej Royal Studios Smart Apartments etap 2 w Gliwicach, ul. Pszczyńska (0.8 km od centrum Gliwic).
Sprzedaż prowadzi Platforma Mieszkaniowa.
Cała inwestycja składa się z 2 budynków, w których łącznie znajdują się 154 nowe mieszkania.
Na sprzedaż pozostaje 8 ofert o powierzchni od 18 do 20 m².
W budynkach jest 8 kondygnacji naziemnych oraz 1 kondygnacja podziemna.
Inwestycja Royal Studios Smart Apartments etap 2 została wybudowana i oddana do użytkowania w 2 kw. 2023 roku.
Nowe mieszkanie o oznaczeniu L.B.0.6 znajduje się na parterze i jest 1-poziomowe. Pomieszczenia mają 270 centymetrów wysokości. W mieszkaniu znajduje się 1 pokój.
Dla przyszłych mieszkańców Royal Studios Smart Apartments etap 2 deweloper przewidział miejsca postojowe podziemne.
Dzięki temu przyszli właściciele nie będą musieli poszukiwać wolnej przestrzeni parkingowej. Dodatkowo, miejsce postojowe w garażu podziemnym zabezpiecza przed niekorzystnymi warunkami atmosferycznymi.
Opis Inwestycji
Tereny zielone
Oferowane Mikro Apartamenty są budowane w podwyższonym standardzie wykończenia deweloperskiego – wyposażone będą m.in. we wszystkie instalacje wewnętrzne, włącznie z grzejnikami, TV/SAT, Internet, wysokiej jakości tynki i wylewki oraz wykończone balkony. Budynki zaprojektowane są w nowoczesnych technologiach zapewniających klientom wyjątkowy komfort użytkowania. Poprzez zastosowanie wysoko energooszczędnych materiałów elewacyjnych zapewnione będą niezwykle niskie koszty eksploatacji.
Wszystkie lokale parterowe posiadają tarasy wykonane z wysokiej jakości płyt tarasowych oraz ogrody do wyłącznego korzystania przez ich właścicieli. Wykończenie ogrodów przygotowane zostanie z dbałością o szczegóły małej architektury - projekt i wykonanie nasadzeń unikatowej roślinności zostanie zlecony profesjonalnej firmie ogrodniczej. Royal Investment zapewnia również pielęgnację ogrodów przez 1-szy sezon letni i zabezpieczenie roślin na okres zimowy.
Co wyróżnia projekt:
- Nowoczesna i elegancka architektura oraz wysublimowany klimat apartamentowca „Royal Studios”
- Pralnio - suszarnie do dyspozycji użytkowników
- Monitoring całą dobę wraz z recepcją
- Podwyższony standard wykończenia deweloperskiego, w tym silikonowe samo oczyszczające się i najtrwalsze tynki zewnętrzne, wszystkie instalacje wewnętrzne, grzejniki, TV/SAT, Internet
- Wysokiej klasy tynki oraz wylewki
- Wyszukany komfort użytkowania przy jednoczesnej wysokiej energooszczędności
- Eleganckie wykończenie klatek schodowych i korytarzy
- Nowoczesne windy komunikacyjne
- Profesjonalne zagospodarowanie terenu wokół budynku, nasadzenia i pielęgnacja terenów zielonych przez profesjonalną firmę ogrodniczą.
Mieszkanie znajduje się w inwestycji Royal Studios Smart Apartments etap 2, w której znajduje się w sprzedaży jeszcze 12 podobnych nowych mieszkań.





