Apartament na sprzedaż 2 pokoje o powierzchni 41,43 m² numer A.2.11
Inwestycja:
RemediumDeweloper:
Platforma Mieszkaniowa
Inwestycja:
RemediumDeweloper:
Platforma MieszkaniowaGdańsk, Aniołki, ul. Mariana Smoluchowskiego
Gdańsk, Aniołki, ul. Mariana Smoluchowskiego
Termin oddania
Gotowe
Ilość pokoi
2 pokoje
Metraż
41,43 m²
Piętro
1 piętro
Strona świata
wschód, południe
Powierzchnie dodatkowe
Loggia
Kuchnia
otwarta kuchnia
Wysokość pomieszczeń
od 260 do 280 cm wysokości
Ilość poziomów
1 poziom
Oznaczenie oferty
A.2.11

Raport o deweloperze
Poznaj dewelopera bliżej! Pobierz raport, w którym znajdziesz kluczowe informacje o firmie, jej doświadczeniu, nagrodach oraz aktualnych i zrealizowanych inwestycjach.
Budynek i otoczenie
Miejsca postojowe | |
|---|---|
Standard wykończenia | wykończenie pod klucz |
Realizacja inwestycji | rozpoczęcie budowy w 3 kw. 2023 roku, inwestycja została oddana do użytkowania w 3 kw. 2025 roku |
Udogodnienia | monitoring, recepcja, usługi w budynku |
Przyroda | w okolicy inwestycji znajduje się morze, park |
Charakterystyka energetyczna nieruchomości |
|
Rezerwacja i finanse
Rodzaj własności | Odrębna własność z użytkowaniem wieczystym gruntu |
|---|---|
Wysokość czynszu | informacja u dewelopera |
Warunki rezerwacji | Informacja u dewelopera |
Zabezpieczenie środków | Informacja u dewelopera |
Zdjęcia z budowy
Zobacz na jakim etapie budowy jest ta inwestycja
Lokalizacja inwestycji
Stacja kolejowa - Gdańsk Politechnika - 687 m
Przystanek Tramwajowy - 157 m
Przystanek Autobusowy - 52 m
Dojazd do centrum: pokaż
W pobliżu 1 km od tej inwestycji znajdują się:
31 kawiarni i restauracji, 18 sklepów, 50 obiektów sportowych, 47 placówek medycznych, 22 placówki edukacyjne, 7 placów zabaw
Przeczytaj więcej o lokalizacji
Aniołki to niewielka dzielnica położona w środkowej części Gdańska o powierzchni 226 hektarów ograniczona od południa ul. Powstańców Warszawskich, od północy linią kolejową a od zachodu ul. Mariana Smoluchowskiego i zamieszkana przez 5 tys. mieszkańców. Aniołki dzieli Wielka Aleja, jedna z głównych arterii komunikacyjnych całego Trójmiasta. Na terenie tej cichej, zielonej dzielnicy znajduje się Uniwersyteckie Centrum Kliniczne, zabytkowy Park Steffensa i Stadion MOSiR. Tuż za północną granicą miasta znajduje się stacja SKM Gdańsk Stocznia a na wschodzie ogólnokrajowa stacja PKP Gdańsk Główny. Od zachodu z dzielnicą sąsiaduje Góra Szubieniczna z parkiem im. Traugutta, Wydziałem Zarządzania i Ekonomii Politechniki Gdańskiej, Gdańskim Uniwersytetem Medycznym i zabytkową cerkwią im. Św. Mikołaja. Na zabudowę Gdańska Aniołki składają się głównie bloki i nowoczesne osiedla.
Opis oferty
Apartament A.2.11 to apartament inwestycyjny o powierzchni 41,43 m² z loggią 4,13 m² , położony na 1. piętrze budynku Remedium. Dwupokojowy układ i wyposażenie dobrze sprawdzają się w najmie krótkoterminowym dla 4 osób (oddzielna sypialnia i rozkładana sofa w salonie) oraz w najmie średnio- i długoterminowym dla pary , która szuka wygodnej bazy w pobliżu uczelni, szpitali i centrum Gdańska. Apartament jest wykończony „pod klucz” z użyciem materiałów i mebli dedykowanych obiektom noclegowym, co ułatwia intensywne użytkowanie przy zachowaniu dobrego stanu wnętrza. Za oknami rozciąga się ładny, zielony widok na park, który podnosi komfort codziennego pobytu i atrakcyjność oferty w oczach najemców.
Funkcjonalny układ pod najem
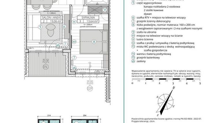
Hol – 3,71 m²
zabudowana szafa na ubrania – praktyczna strefa wejściowa z miejscem na odzież i bagaż.
Salon z aneksem – 19,06 m²
zabudowa kuchenna: lodówka wysoka w zabudowie, zmywarka 45 cm, szafka ze zlewozmywakiem i szufladą na kosze, szafka ścienna zamykana, szafka stojąca z szufladami, szafka z piekarnikiem i płytą grzewczą, kolejna szafka stojąca z szufladami, szafka ścienna z okapem, półka otwarta;
stół z 4 krzesłami tapicerowanymi – miejsce do posiłków i pracy;
część dzienna: kanapa rozkładana 2-osobowa, 2 stoliki kawowe, dywan, szafka RTV z miejscem na telewizor wiszący, dekoracyjny grzejnik ścienny.
Sypialnia – 13,64 m²
łóżko podwójne z materacem 160 × 200 cm i tapicerowanym wezgłowiem,
2 szafki nocne, szafa na ubrania,
lustro ścienne, miejsce na telewizor wiszący.
Łazienka – 5,02 m²
szafka z pralką i umywalką z baterią podtynkową,
miska WC podwieszana z deską wolnoopadającą i szafką gospodarczą,
wanna z baterią podtynkową,
grzejnik łazienkowy.
Loggia – 4,13 m²
kameralna przestrzeń zewnętrzna dostępna z części dziennej – dodatkowe miejsce do wypoczynku na świeżym powietrzu.
Taki układ pozwala w najmie krótkoterminowym przyjąć do 4 osób , a w najmie średnio- i długoterminowym zapewnia wygodny standard dla pary , z czytelnym podziałem na część dzienną i prywatną sypialnię.
Standard wykończenia i gotowość do najmu
Apartament jest wykończony „pod klucz” w standardzie inwestycji Remedium: panele laminowane w salonie i sypialni, gres w holu i łazience, kompletna zabudowa kuchenna z AGD w zabudowie, umeblowana strefa dzienna, wyposażona sypialnia i łazienka oraz zasłony. Lokal nie wymaga dodatkowych nakładów – po zakupie może od razu zacząć pracować w najmie (samodzielnie lub we współpracy z operatorem) i służyć również na pobyty właścicielskie.
Remedium, operator, lokalizacja
Remedium to ukończony budynek apartamentów inwestycyjnych na gdańskich Aniołkach, zrealizowany przez Domesta – lokalnego dewelopera z ponad 30-letnim doświadczeniem i nagrodą 5 gwiazdek w European Property Awards w kategorii apartamentów inwestycyjnych. Właściciel może prowadzić najem samodzielnie lub powierzyć obsługę doświadczonemu operatorowi butikowemu, który zajmuje się doposażeniem, przygotowaniem ofert w serwisach rezerwacyjnych, zarządzaniem kalendarzem i cenami, obsługą gości oraz sprzątaniem.
Lokalizacja między kampusami uczelni, kompleksem szpitali klinicznych a historycznym śródmieściem i terenami postoczniowymi sprzyja całorocznemu popytowi na pobyty związane z nauką, leczeniem, pracą i city breakami.
Podana cena lokalu to cena netto, należy do niej doliczyć 23%VAT - cena lokalu brutto 959 400 PLN.
Zapraszamy do odwiedzenia biura sprzedaży przy inwestycji Remedium oraz obejrzenia apartamentu A.2.11 na żywo.
Nowy 2-pokojowy apartament na sprzedaż o powierzchni 41,43 m² znajduje się w nowo budowanej inwestycji deweloperskiej Remedium w Aniołkach, ul. Mariana Smoluchowskiego (2.1 km od centrum Gdańska).
Sprzedaż prowadzi Platforma Mieszkaniowa.
Cała inwestycja składa się z 2 budynków, w których łącznie znajduje się 65 nowych apartamentów.
Na sprzedaż pozostaje 27 ofert o powierzchni od 37 do 63 m².
W budynkach są 4 kondygnacje naziemne oraz 1 kondygnacja podziemna.
Inwestycja Remedium została wybudowana i oddana do użytkowania w 3 kw. 2025 roku.
Nowy apartament o oznaczeniu A.2.11 znajduje się na 1 piętrze i jest 1-poziomowy. Pomieszczenia mają od 260 do 280 centymetrów wysokości. W apartamencie znajdują się 2 pokoje.
Okna w apartamencie wychodzą na wschód, południe.
Okna wychodzące na południe gwarantują maksymalną ilość naturalnego światła, co czyni wnętrza jasnymi i ciepłymi. Dodatkowo południowa ekspozycja pomaga obniżyć koszty ogrzewania w zimie. Okna na południe są idealne dla osób pragnących cieszyć się jasnym otoczeniem, które sprzyja dobremu samopoczuciu oraz pozytywnej energii.
Wschodnia orientacja zapewnia dostęp do łagodnego porannego światła, idealnego dla rozpoczęcia dnia pełnego energii. Wnętrza pozostają jasne, ale nieprzegrzane, co sprzyja utrzymaniu komfortowej temperatury. Przebywanie w pomieszczeniu z oknami na wschód inspiruje do działania i pozytywnie wpływa na poranny rytuał.
Dla przyszłych mieszkańców Remedium deweloper przewidział miejsca postojowe podziemne, miejsca postojowe naziemne.
Dzięki temu przyszli właściciele nie będą musieli poszukiwać wolnej przestrzeni parkingowej. Dodatkowo, miejsce postojowe w garażu podziemnym zabezpiecza przed niekorzystnymi warunkami atmosferycznymi.
Opis Inwestycji
Tereny zielone
Pow. dodatkowe
Remedium to wyjątkowy projekt położony w kameralnej i centralnie położonej dzielnicy Gdańska - Aniołki. Lokalizacja inwestycji jest gwarancją komfortu, sąsiedztwa natury i łatwego dostępu do wszelkich usług. Bliskość tętniącego życiem centrum Gdańska umożliwia korzystanie z bogatej oferty kulturalno-rozrywkowej i nowoczesnej strefy biznesowej. W bezpośrednim sąsiedztwie znajduje się Gdański Uniwersytet Medyczny, Politechnika Gdańska, Opera Bałtycka, Pływalnia oraz Multikino. Bogata siatka połączeń komunikacji miejskiej usprawnia poruszanie się po całym Trójmieście.
W ramach inwestycji powstaje 65 nowoczesnych apartamentów, wykończonych pod klucz w najwyższym standardzie oraz 3 lokale usługowe umieszczone na parterze budynku, z własnymi miejscami postojowymi. Jasne, przestronne wnętrza apartamentów posiadają przyjazny i domowy charakter. Wysoka jakość użytych materiałów gwarantuje trwałość i odporność produktów na zużycie. Mając na uwadze dbałość o przyrodę, zastosowane elementy wyposażenia i rozwiązania są ekologiczne oraz bezpieczne dla środowiska. Podniesienie poziomu bezpieczeństwa i dodatkowe zabezpieczenia mienia przyszłych mieszkańców zagwarantuje monitoring oraz recepcja budynku.
Budynek został wkomponowany w działkę w sposób umożliwiający stworzenie ustronnej strefy rekreacyjnej - przestrzeni, w której będzie można odpocząć, spędzić czas wolny na łonie natury, w spokojnym zakątku, w oddali od miejskiego zgiełku. Inwestycję charakteryzuje ponadczasowa architektura, która powstała z myślą o osobach ceniących wysoką jakość, precyzję wykończenia oraz niepowtarzalną estetykę. Harmonię i ład przestrzenny pozwalają zachować detale elewacji wprowadzające analogię do pobliskich budynków.
Apartament znajduje się w inwestycji Remedium, w której znajdują się w sprzedaży jeszcze 34 podobne nowe apartamenty.





