Apartament na sprzedaż 2 pokoje o powierzchni 42,87 m² numer A.2.5
Inwestycja:
RemediumDeweloper:
Platforma Mieszkaniowa
Inwestycja:
RemediumDeweloper:
Platforma MieszkaniowaGdańsk, Aniołki, ul. Mariana Smoluchowskiego
Gdańsk, Aniołki, ul. Mariana Smoluchowskiego
Termin oddania
Gotowe
Ilość pokoi
2 pokoje
Metraż
42,87 m²
Piętro
1 piętro
Strona świata
zachód, południe
Powierzchnie dodatkowe
Loggia
Kuchnia
otwarta kuchnia
Wysokość pomieszczeń
od 260 do 280 cm wysokości
Ilość poziomów
1 poziom
Oznaczenie oferty
A.2.5

Raport o deweloperze
Poznaj dewelopera bliżej! Pobierz raport, w którym znajdziesz kluczowe informacje o firmie, jej doświadczeniu, nagrodach oraz aktualnych i zrealizowanych inwestycjach.
Budynek i otoczenie
Miejsca postojowe | |
|---|---|
Standard wykończenia | wykończenie pod klucz |
Realizacja inwestycji | rozpoczęcie budowy w 3 kw. 2023 roku, inwestycja została oddana do użytkowania w 3 kw. 2025 roku |
Udogodnienia | monitoring, recepcja, usługi w budynku |
Przyroda | w okolicy inwestycji znajduje się morze, park |
Charakterystyka energetyczna nieruchomości |
|
Rezerwacja i finanse
Rodzaj własności | Odrębna własność z użytkowaniem wieczystym gruntu |
|---|---|
Wysokość czynszu | informacja u dewelopera |
Warunki rezerwacji | Informacja u dewelopera |
Zabezpieczenie środków | Informacja u dewelopera |
Zdjęcia z budowy
Zobacz na jakim etapie budowy jest ta inwestycja
Lokalizacja inwestycji
Stacja kolejowa - Gdańsk Politechnika - 687 m
Przystanek Tramwajowy - 157 m
Przystanek Autobusowy - 52 m
Dojazd do centrum: pokaż
W pobliżu 1 km od tej inwestycji znajdują się:
31 kawiarni i restauracji, 18 sklepów, 50 obiektów sportowych, 47 placówek medycznych, 22 placówki edukacyjne, 7 placów zabaw
Przeczytaj więcej o lokalizacji
Aniołki to niewielka dzielnica położona w środkowej części Gdańska o powierzchni 226 hektarów ograniczona od południa ul. Powstańców Warszawskich, od północy linią kolejową a od zachodu ul. Mariana Smoluchowskiego i zamieszkana przez 5 tys. mieszkańców. Aniołki dzieli Wielka Aleja, jedna z głównych arterii komunikacyjnych całego Trójmiasta. Na terenie tej cichej, zielonej dzielnicy znajduje się Uniwersyteckie Centrum Kliniczne, zabytkowy Park Steffensa i Stadion MOSiR. Tuż za północną granicą miasta znajduje się stacja SKM Gdańsk Stocznia a na wschodzie ogólnokrajowa stacja PKP Gdańsk Główny. Od zachodu z dzielnicą sąsiaduje Góra Szubieniczna z parkiem im. Traugutta, Wydziałem Zarządzania i Ekonomii Politechniki Gdańskiej, Gdańskim Uniwersytetem Medycznym i zabytkową cerkwią im. Św. Mikołaja. Na zabudowę Gdańska Aniołki składają się głównie bloki i nowoczesne osiedla.
Opis oferty
Apartament A.2.5 to 2-pokojowy apartament inwestycyjny o powierzchni 42,87 m² z dużą, zadaszoną loggią 8,38 m² , położony na 1. piętrze budynku Remedium. To format, który łączy bezpieczną lokatę kapitału z realnym potencjałem zarabiania na najmie – na doby wygodnie dla 4 osób (sypialnia + rozkładana sofa w salonie), przy dłuższych pobytach komfortowo dla pary pracującej, studiującej lub pozostającej w Gdańsku na czas projektu. Lokal jest wykończony „pod klucz” i wyposażony, gotowy do włączenia do oferty najmu od razu po zakupie.
Układ zaprojektowany pod wynajem
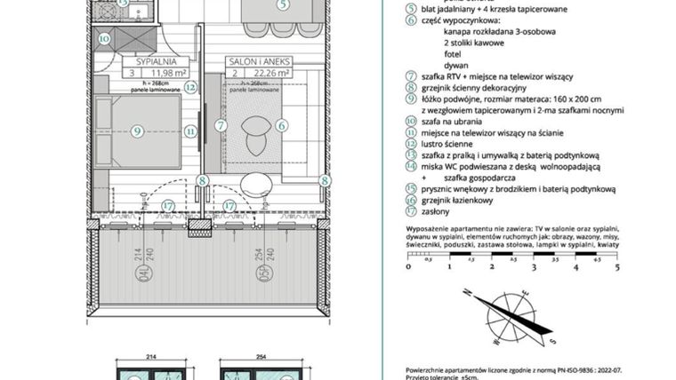
Hol – 4,05 m²
zabudowana szafa na ubrania, dekoracyjne lustro ścienne z siedziskiem – wygodna strefa wejściowa z miejscem na odzież i bagaż.
Salon z aneksem – 22,26 m²
zabudowa kuchenna: wysoka lodówka w zabudowie, szafka stojąca z piekarnikiem i płytą grzewczą, szafka ścienna z okapem, szafka stojąca z szufladami, szafka ze zlewozmywakiem i szufladą na kosze, zmywarka 45 cm, dodatkowa szafka stojąca z szufladami, zamykana szafka wisząca i półka otwarta;
blat jadalniany z 4 krzesłami tapicerowanymi (posiłki i praca);
część wypoczynkowa: kanapa rozkładana 3-osobowa, 2 stoliki kawowe, fotel, dywan, szafka RTV z miejscem na telewizor wiszący, dekoracyjny grzejnik ścienny.
Sypialnia – 11,98 m²
łóżko podwójne z materacem 160 × 200 cm i tapicerowanym wezgłowiem,
2 szafki nocne, szafa na ubrania,
lustro ścienne oraz miejsce na telewizor wiszący.
Łazienka – 4,58 m²
szafka z pralką i umywalką z baterią podtynkową,
podwieszana miska WC z deską wolnoopadającą i szafką gospodarczą,
prysznic wnękowy z brodzikiem i baterią podtynkową,
grzejnik łazienkowy.
Loggia – 8,38 m²
duża, zadaszona przestrzeń zewnętrzna dostępna z części dziennej – wygodna strefa wypoczynku dla najemców, szczególnie atrakcyjna przy pobytach średnio- i długoterminowych.
Taki układ i standard dają właścicielowi elastyczność w strategii najmu : od najmu dobowego dla 4 osób po stabilny najem średnio- i długoterminowy dla pary, przy zachowaniu atrakcyjnej prezentacji oferty w serwisach rezerwacyjnych i ogłoszeniowych.
Standard wykończenia i gotowość do najmu
Apartament jest wykończony „pod klucz” w standardzie inwestycji Remedium: panele laminowane w salonie i sypialni, gres w holu i łazience, kompletna zabudowa kuchenna z AGD w zabudowie, umeblowana strefa dzienna, w pełni wyposażona łazienka oraz zasłony. Neutralna kolorystyka i obiektowy charakter zastosowanych materiałów sprzyjają utrzymaniu wnętrza w dobrym stanie przy intensywnym użytkowaniu. Lokal nie wymaga dodatkowych nakładów – po zakupie może od razu zostać włączony do najmu (samodzielnie lub we współpracy z operatorem).
Remedium – gotowy budynek apartamentów inwestycyjnych
Remedium to ukończony, reprezentacyjny budynek apartamentów inwestycyjnych na gdańskich Aniołkach, realizowany przez Domesta – lokalnego dewelopera z ponad 30-letnim doświadczeniem. Projekt otrzymał 5 gwiazdek w European Property Awards w kategorii apartamentów inwestycyjnych. Budynek wyróżnia współczesna architektura z cegły i paneli kompozytowych, dopracowane części wspólne (recepcja, korytarze, hala garażowa, zieleń z altaną) oraz lokalizacja naprzeciw parku.
Operator najmu i lokalizacja z całorocznym popytem
Właściciel może powierzyć obsługę apartamentu doświadczonemu operatorowi najmu butikowego, działającemu w modelu prowizyjnym od przychodów. Operator zajmuje się m.in. doposażeniem, przygotowaniem oferty w serwisach rezerwacyjnych, zarządzaniem kalendarzem i cenami, obsługą gości, sprzątaniem oraz bieżącym utrzymaniem lokalu.
Remedium jest położone pomiędzy Gdańskim Uniwersytetem Medycznym, Politechniką Gdańską i kompleksem szpitali klinicznych a historycznym śródmieściem i terenami postoczniowymi, co sprzyja całorocznemu popytowi na najem krótko-, średnio- i długoterminowy. Zapraszamy do biura sprzedaży zlokalizowanego przy inwestycji Remedium – na miejscu można obejrzeć budynek i porozmawiać o dopasowaniu apartamentu do planowanej strategii najmu.
Podana cena lokalu to cena netto, należy do niej doliczyć 23%VAT - cena lokalu brutto 1 002 450 PLN.
Zapraszamy do obejrzenia gotowego lokalu po wcześniejszym umówieniu się w biurze sprzedaży.
Nowy 2-pokojowy apartament na sprzedaż o powierzchni 42,87 m² znajduje się w nowo budowanej inwestycji deweloperskiej Remedium w Aniołkach, ul. Mariana Smoluchowskiego (2.1 km od centrum Gdańska).
Sprzedaż prowadzi Platforma Mieszkaniowa.
Cała inwestycja składa się z 2 budynków, w których łącznie znajduje się 65 nowych apartamentów.
Na sprzedaż pozostaje 27 ofert o powierzchni od 37 do 63 m².
W budynkach są 4 kondygnacje naziemne oraz 1 kondygnacja podziemna.
Inwestycja Remedium została wybudowana i oddana do użytkowania w 3 kw. 2025 roku.
Nowy apartament o oznaczeniu A.2.5 znajduje się na 1 piętrze i jest 1-poziomowy. Pomieszczenia mają od 260 do 280 centymetrów wysokości. W apartamencie znajdują się 2 pokoje.
Okna w apartamencie wychodzą na zachód, południe.
Okna wychodzące na południe gwarantują maksymalną ilość naturalnego światła, co czyni wnętrza jasnymi i ciepłymi. Dodatkowo południowa ekspozycja pomaga obniżyć koszty ogrzewania w zimie. Okna na południe są idealne dla osób pragnących cieszyć się jasnym otoczeniem, które sprzyja dobremu samopoczuciu oraz pozytywnej energii.
Zachodnia ekspozycja to gwarancja intensywnego popołudniowego światła, które nadaje wnętrzom przytulności i ciepła. Idealne dla miłośników słonecznych wieczorów, którzy pragną cieszyć się pięknymi zachodami słońca we własnym domu. Zachodnie światło podkreśla kolory i faktury w aranżacji wnętrz, tworząc atmosferę sprzyjającą relaksowi po długim dniu.
Dla przyszłych mieszkańców Remedium deweloper przewidział miejsca postojowe podziemne, miejsca postojowe naziemne.
Dzięki temu przyszli właściciele nie będą musieli poszukiwać wolnej przestrzeni parkingowej. Dodatkowo, miejsce postojowe w garażu podziemnym zabezpiecza przed niekorzystnymi warunkami atmosferycznymi.
Opis Inwestycji
Tereny zielone
Pow. dodatkowe
Remedium to wyjątkowy projekt położony w kameralnej i centralnie położonej dzielnicy Gdańska - Aniołki. Lokalizacja inwestycji jest gwarancją komfortu, sąsiedztwa natury i łatwego dostępu do wszelkich usług. Bliskość tętniącego życiem centrum Gdańska umożliwia korzystanie z bogatej oferty kulturalno-rozrywkowej i nowoczesnej strefy biznesowej. W bezpośrednim sąsiedztwie znajduje się Gdański Uniwersytet Medyczny, Politechnika Gdańska, Opera Bałtycka, Pływalnia oraz Multikino. Bogata siatka połączeń komunikacji miejskiej usprawnia poruszanie się po całym Trójmieście.
W ramach inwestycji powstaje 65 nowoczesnych apartamentów, wykończonych pod klucz w najwyższym standardzie oraz 3 lokale usługowe umieszczone na parterze budynku, z własnymi miejscami postojowymi. Jasne, przestronne wnętrza apartamentów posiadają przyjazny i domowy charakter. Wysoka jakość użytych materiałów gwarantuje trwałość i odporność produktów na zużycie. Mając na uwadze dbałość o przyrodę, zastosowane elementy wyposażenia i rozwiązania są ekologiczne oraz bezpieczne dla środowiska. Podniesienie poziomu bezpieczeństwa i dodatkowe zabezpieczenia mienia przyszłych mieszkańców zagwarantuje monitoring oraz recepcja budynku.
Budynek został wkomponowany w działkę w sposób umożliwiający stworzenie ustronnej strefy rekreacyjnej - przestrzeni, w której będzie można odpocząć, spędzić czas wolny na łonie natury, w spokojnym zakątku, w oddali od miejskiego zgiełku. Inwestycję charakteryzuje ponadczasowa architektura, która powstała z myślą o osobach ceniących wysoką jakość, precyzję wykończenia oraz niepowtarzalną estetykę. Harmonię i ład przestrzenny pozwalają zachować detale elewacji wprowadzające analogię do pobliskich budynków.
Apartament znajduje się w inwestycji Remedium, w której znajdują się w sprzedaży jeszcze 34 podobne nowe apartamenty.





