Mieszkanie na sprzedaż 3 pokoje o powierzchni 51,95 m² numer A1/1/6
Inwestycja:
Metr KwadratDeweloper:
Platforma Mieszkaniowa
Inwestycja:
Metr KwadratDeweloper:
Platforma MieszkaniowaWrocław, Fabryczna, Muchobór Mały, ul. Nowodworska
Wrocław, Fabryczna, Muchobór Mały, ul. Nowodworska
Termin oddania
Gotowe
Ilość pokoi
3 pokoje
Metraż
51,95 m²
Piętro
1 piętro
Kuchnia
otwarta kuchnia
Wysokość pomieszczeń
od 260 do 280 cm wysokości
Ilość poziomów
1 poziom
Oznaczenie oferty
A1/1/6

Raport o deweloperze
Poznaj dewelopera bliżej! Pobierz raport, w którym znajdziesz kluczowe informacje o firmie, jej doświadczeniu, nagrodach oraz aktualnych i zrealizowanych inwestycjach.
Budynek i otoczenie
Miejsca postojowe | |
|---|---|
Standard wykończenia | standard deweloperski |
Realizacja inwestycji | rozpoczęcie budowy w 1 kw. 2024 roku, inwestycja została oddana do użytkowania w 1 kw. 2026 roku |
Udogodnienia | usługi w budynku |
Przyroda | informacja u dewelopera |
Charakterystyka energetyczna nieruchomości | informacja u dewelopera |
Rezerwacja i finanse
Rodzaj własności | Odrębna własność z własnością gruntu |
|---|---|
Wysokość czynszu | informacja u dewelopera |
Warunki rezerwacji | Informacja u dewelopera |
Zabezpieczenie środków | Informacja u dewelopera |
Zdjęcia z budowy
Zobacz na jakim etapie budowy jest ta inwestycja
Lokalizacja inwestycji
Stacja kolejowa - Wrocław Muchobór - 811 m
Przystanek Tramwajowy - 225 m
Przystanek Autobusowy - 222 m
Dojazd do centrum: pokaż
W pobliżu 1 km od tej inwestycji znajdują się:
24 kawiarnie i restauracje, 40 sklepów, 36 obiektów sportowych, 11 placówek medycznych, 46 placówek edukacyjnych, 51 placów zabaw
Przeczytaj więcej o lokalizacji
Wrocław Fabryczna to największa dzielnica w mieście. Obejmuje całą północno - zachodnią część miasta. Zamieszkuję ją blisko 200 tysięcy mieszkańców. Na terenie Fabrycznej znajduję się najwięcej osiedli mieszkaniowych. Ich nazwy pochodzą od wsi i miast, które włączane były w granice administracyjne miasta. Przy ulicy Trzemielowickiej znajdziemy dawne obiekty koszarowe. Jest to też dzielnica rekreacyjna, głównie ze względu na dużą ilość terenów zielonych takich jak Las Leśnicki czy Las Ratyński. Wschodnia granica tej dzielnicy przebiega wzdłuż Odry. Ceniący sobie zdrowy tryb życia znajdą tu wiele obiektów sportowych jak Centrum Basenowo – Sportowe czy liczne orliki, kluby fitness i siłownie. W północnej części dzielnicy znajduje się Stadion Miejski, który był jedną z aren Euro 2012. Przez Fabryczną przebiega droga krajowa nr 94 oraz obwodnica miasta. Dzielnica jest dobrze skomunikowana z centrum miasta poprzez liczne trasy autobusowe oraz tramwajowe. Znajduję się tu również międzynarodowe lotnisko – Copernicus Airport.
Opis oferty
Nowe 3-pokojowe mieszkanie na sprzedaż o powierzchni 51,95 m² znajduje się w nowo budowanej inwestycji deweloperskiej Metr Kwadrat na Muchoborze Małym, ul. Nowodworska (5.2 km od centrum Wrocławia).
Sprzedaż prowadzi Platforma Mieszkaniowa.
Cała inwestycja składa się z 2 budynków, w których łącznie znajdują się 94 nowe mieszkania.
Na sprzedaż pozostają 33 oferty o powierzchni od 38 do 56 m².
W budynkach jest 6 kondygnacji naziemnych. Budynek nie posiada kondygnacji podziemnych.
Inwestycja Metr Kwadrat została wybudowana i oddana do użytkowania w 1 kw. 2026 roku.
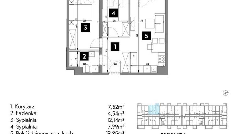
Nowe mieszkanie o oznaczeniu A1/1/6 znajduje się na 1 piętrze i jest 1-poziomowe. Pomieszczenia mają od 260 do 280 centymetrów wysokości. W mieszkaniu znajdują się 3 pokoje.
Dla przyszłych mieszkańców Metr Kwadrat deweloper przewidział miejsca postojowe naziemne.
Dzięki temu przyszli właściciele nie będą musieli poszukiwać wolnej przestrzeni parkingowej.
Opis Inwestycji
Okazyjna cena
Osiedle Metr Kwadrat powstaje w północnej części Nowego Dworu we Wrocławiu. Mieszkania położone przy ul. Nowodworskiej będą doskonałym wyborem zarówno dla młodych poszukujących pierwszego lokum, jak i rodzin, które cenią sobie funkcjonalność i wygodę.
Projekt tej inwestycji tworzyliśmy w szczególności z myślą o potrzebach i wymaganiach wrocławian, którzy chcą być częścią dużego, prężnie rozwijającego się miasta, a jednocześnie zapewnić sobie przestrzeń na własne potrzeby i komfortowy odpoczynek. To osiedle kompletne, samowystarczalne, z pełną infrastrukturą handlowo-usługową, a do tego świetnie skomunikowane.
Mieszkanie znajduje się w inwestycji Metr Kwadrat, w której znajduje się w sprzedaży jeszcze 28 podobnych nowych mieszkań.





