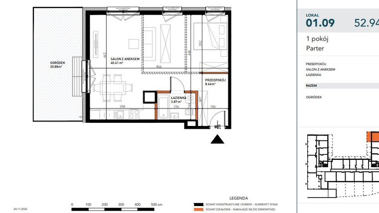
Mieszkanie na sprzedaż 1 pokój o powierzchni 52,84 m² numer 01.09
Inwestycja:
Czysta 4Deweloper:
Platforma Mieszkaniowa
Inwestycja:
Czysta 4Deweloper:
Platforma MieszkaniowaWrocław, Stare Miasto, ul. Czysta 4
Wrocław, Stare Miasto, ul. Czysta 4
Termin oddania
Gotowe
Ilość pokoi
1 pokój
Metraż
52,84 m²
Piętro
Parter
Kuchnia
otwarta kuchnia
Wysokość pomieszczeń
od 269 do 286 cm wysokości
Ilość poziomów
1 poziom
Oznaczenie oferty
01.09

Raport o deweloperze
Poznaj dewelopera bliżej! Pobierz raport, w którym znajdziesz kluczowe informacje o firmie, jej doświadczeniu, nagrodach oraz aktualnych i zrealizowanych inwestycjach.
Budynek i otoczenie
Miejsca postojowe | |
|---|---|
Komórki lokatorskie | dostępne |
Standard wykończenia | standard deweloperski podwyższony |
Realizacja inwestycji | rozpoczęcie budowy w 3 kw. 2022 roku, inwestycja została oddana do użytkowania w 3 kw. 2024 roku |
Udogodnienia | ochrona całodobowa, pomieszczenie rekreacyjne, monitoring, internet, klimatyzacja, przystosowane dla niepełnosprawnych, recepcja, TV kablowa, usługi w budynku, winda, rowerownia, inteligentny dom, videodomofon, wózkarnia, patio / dziedziniec, instalacja fotowoltaiczna |
Przyroda | w okolicy inwestycji znajduje się park |
Charakterystyka energetyczna nieruchomości |
|
Rezerwacja i finanse
Rodzaj własności | Odrębna własność z własnością gruntu |
|---|---|
Wysokość czynszu | informacja u dewelopera |
Warunki rezerwacji | umowa deweloperska |
Zabezpieczenie środków | Otwarty mieszkaniowy rachunek powierniczy |
Zdjęcia z budowy
Zobacz na jakim etapie budowy jest ta inwestycja
Lokalizacja inwestycji
Stacja kolejowa - Wrocław Główny - 634 m
Przystanek Tramwajowy - 210 m
Przystanek Autobusowy - 129 m
Dojazd do centrum: pokaż
W pobliżu 1 km od tej inwestycji znajdują się:
523 kawiarnie i restauracje, 145 sklepów, 61 obiektów sportowych, 61 placówek medycznych, 116 placówek edukacyjnych, 63 place zabaw
Przeczytaj więcej o lokalizacji
Wrocławskie Stare Miasto to najstarsza część lewobrzeżnej części miasta. Zajmuje prawie 7 km2 i zamieszkuje ją nieco ponad 52 tysiące osób. Do dzielnicy należą osiedla takie jak: Stare Miasto, Przedmieście Świdnickie oraz Szczepin. Przeważa tu architektura zabytkowa, jednak najmłodsze z osiedli, Szczepin to głównie wysokie, nowoczesne bloki mieszkalne. Na Starym Mieście znajduje się gmach główny Uniwersytetu Wrocławskiego oraz blisko 20 innych szkół wyższych. Swoją siedzibę mają tu wszystkie ważniejsze teatry oraz Opera Dolnośląska. Stare Miasto to główny punkt wycieczek turystycznych we Wrocławiu, dlatego posiada rozbudowaną ofertę rozrywkową oraz kulturalną. To tu występuje największe skupisko zabytków we Wrocławiu – z Panoramą Racławicką i Ratuszem na czele. Na Stare Miasto można dostać się zarówno tramwajem wodnym jak i tramwajami czy autobusami. W dzielnicy znajduję się także znany park Juliusza Słowackiego.
Opis oferty
Nowe 1-pokojowe mieszkanie na sprzedaż o powierzchni 52,84 m² znajduje się w nowo budowanej inwestycji deweloperskiej Czysta 4 na Starym Mieście, ul. Czysta 4 (0.6 km od centrum Wrocławia).
Sprzedaż prowadzi Platforma Mieszkaniowa.
Cała inwestycja składa się z 1 budynku, w którym łącznie znajdują się 183 nowe mieszkania.
Na sprzedaż pozostają 2 oferty o powierzchni od 31 do 53 m².
W budynku jest od 5 do 7 kondygnacji naziemnych oraz 1 kondygnacja podziemna.
Inwestycja Czysta 4 została wybudowana i oddana do użytkowania w 3 kw. 2024 roku.
Nowe mieszkanie o oznaczeniu 01.09 znajduje się na parterze i jest 1-poziomowe. Pomieszczenia mają od 269 do 286 centymetrów wysokości. W mieszkaniu znajduje się 1 pokój.
Dla przyszłych mieszkańców Czysta 4 deweloper przewidział miejsca postojowe podziemne.
Dzięki temu przyszli właściciele nie będą musieli poszukiwać wolnej przestrzeni parkingowej. Dodatkowo, miejsce postojowe w garażu podziemnym zabezpiecza przed niekorzystnymi warunkami atmosferycznymi.
Opis Inwestycji
Tereny zielone
Poznaj inwestycję Czysta 4
Czysta 4 to nowoczesna inwestycja klasy premium zlokalizowana w centrum Wrocławia, oferująca wielowymiarowy komfort życia w mieście. W prostej formie łączy piękno nowoczesnej architektury z funkcjonalnością rozwiązań służących mieszkańcom.
Czysta 4 powstaje w topowej lokalizacji, która doskonale wpisuje się w koncepcję 15-minutowego miasta. W sąsiedztwie inwestycji odnajdziemy m.in. Operę Wrocławską, Teatr Lalek, Galerię Renoma oraz zieloną Promenadę Staromiejską, a w zaledwie 10 minut spacerem można dojść do wrocławskiego Rynku. Bliskość komunikacji miejskiej, punktów usługowych i placówek edukacyjnych oraz terenów rekreacyjnych czyni jej położenie wygodne i komfortowe.
Starannie przemyślany projekt odpowiada oczekiwaniom mieszkańców i doskonale komponuje się z charakterem centrum Wrocławia. W nowoczesnym 6-piętrowym budynku zaprojektowano 183 apartamenty w rozkładzie 1-, 2-, 3- i 4-pokojowym z przynależnymi ogródkami, balkonami lub tarasami. Wejścia do budynku będą zlokalizowane od strony wewnętrznego dziedzińca. W bryle wydzielono przestrzeń na 3 lokale usługowe, komórki lokatorskie, rowerownie oraz podziemną halę garażową.
Projekt wzbogacają liczne udogodnienia dla mieszkańców, m.in. taras widokowy ze strefą rekreacji na dachu budynku, przestrzeń coworkingową dla osób pracujących zdalnie oraz rozwiązania typu smart home. W inwestycji zaplanowano szereg przychylnych rozwiązań dla korzystających z rowerów.
Projekt przewiduje liczne rozwiązania ekologiczne tj. panele fotowoltaiczne, system nawadniania roślinności oparty o wykorzystanie wody opadowej, budki lęgowe dla ptaków oraz zielone dachy i dużą ilość miejsc rowerowych.
Na uwagę zasługuje szacunek dla historii miejsca, uwzględniający recykling materiałów kamiennej elewacji odzyskanych z poprzedniego budynku oraz ochronę naturalnych walorów poprzez zachowanie większości drzew rosnących na terenie inwestycji.
Mieszkanie znajduje się w inwestycji Czysta 4, w której znajdują się w sprzedaży jeszcze 2 podobne nowe mieszkania.





