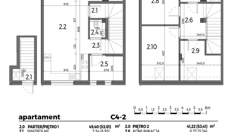
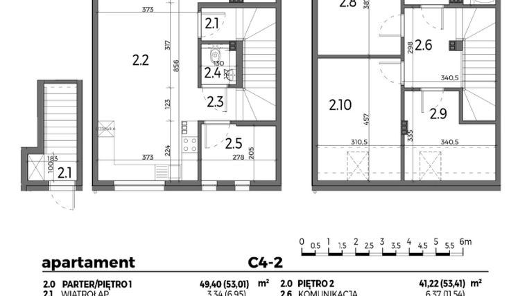
Mieszkanie na sprzedaż 4 pokoje o powierzchni 90,63 m² numer C4-2
Inwestycja:
Aleja MiodowaDeweloper:
Platforma Mieszkaniowa
Inwestycja:
Aleja MiodowaDeweloper:
Platforma Mieszkaniowawrocławski, Iwiny, ul. Miodowa
wrocławski, Iwiny, ul. Miodowa
Termin oddania
Gotowe
Ilość pokoi
4 pokoje
Metraż
90,63 m²
Piętro
Parter
Kuchnia
otwarta kuchnia
Wysokość pomieszczeń
od 260 do 280 cm wysokości
Ilość poziomów
2 poziomy
Oznaczenie oferty
C4-2

Raport o deweloperze
Poznaj dewelopera bliżej! Pobierz raport, w którym znajdziesz kluczowe informacje o firmie, jej doświadczeniu, nagrodach oraz aktualnych i zrealizowanych inwestycjach.
Budynek i otoczenie
Miejsca postojowe | |
|---|---|
Standard wykończenia | standard deweloperski |
Realizacja inwestycji | rozpoczęcie budowy w 3 kw. 2023 roku, inwestycja została oddana do użytkowania w 2 kw. 2025 roku |
Udogodnienia | teren ogrodzony, monitoring, videodomofon, plac zabaw |
Przyroda | w okolicy inwestycji znajduje się park |
Charakterystyka energetyczna nieruchomości | informacja u dewelopera |
Rezerwacja i finanse
Rodzaj własności | Odrębna własność z własnością gruntu |
|---|---|
Wysokość czynszu | informacja u dewelopera |
Warunki rezerwacji | Informacja u dewelopera |
Zabezpieczenie środków | Informacja u dewelopera |
Zdjęcia z budowy
Zobacz na jakim etapie budowy jest ta inwestycja
Lokalizacja inwestycji
Stacja kolejowa - Iwiny - 934 m
Przystanek Autobusowy - 395 m
Dojazd do centrum Wrocławia: pokaż
W pobliżu 1 km od tej inwestycji znajdują się:
2 sklepy, 2 obiekty sportowe, 3 placówki edukacyjne, 11 placów zabaw
Przeczytaj więcej o lokalizacji
Powiat wrocławski zlokalizowany jest w środkowowschodniej części województwa dolnośląskiego, w sąsiedztwie Wrocławia. W jego skład wchodzą miasta i gminy: Kąty Wrocławskie, Siechnice, Sobótka, Czernica, Długołęka, Jordanów Śląski, Kobierzyce, Mietków, Żórawina. Przez wzgląd na unikalne walory przyrodnicze - Górę Ślęża i zbiornik Mietkowski - powiat wrocławski może pochwalić się doskonałymi warunkami do wypoczynku i rekreacji. Z uwagi na spore zróżnicowanie terenu (obszar ponad 1116 km2), powiat wrocławski można podzielić na część zachodnią i wschodnią. Część zachodnia obejmuje gminy Mietków, Sobótka, Jordanów Śląski, Kąty Wrocławskie, Kobierzyce, Żórawina, część wschodnia - gminy Siechnice, Czernica, Długołęka. Warto wyróżnić również takie miejscowości, jak Kamieniec Wrocławski, Dobrzykowice, Jelcz Laskowice. Zabudowę mieszkalną powiatu wrocławskiego, w przeważającej części stanowią domy jednorodzinne i wielorodzinne a pejzaż zdominowany jest przez grunty rolne - blisko 11% powierzchni powiatu zajmują kompleksy leśne. Na terenie powiatu znajduje się również Ślężański Park Krajobrazowy, Park Krajobrazowy Dolina Bystrzycy a także poszczególne strefy wyznaczone Obszarem Natura 2000. Sporą popularnością zarówno wśród mieszkańców, jak i turystów cieszy się oferta Ośrodka Sportów Wodnych i Rekreacji Powiatu Wrocławskiego w Borzygniewie. Atrakcyjna lokalizacja, dogodne połączenia komunikacyjne i proinwestycyjna postawa władz lokalnych sprawiają, że powiat wrocławski cieszy się nieustannym zainteresowaniem deweloperów. Mając na uwadze dobro mieszkańców, turystów i inwestorów, na terenie powiatu realizowane są różnego rodzaju projektu - rozbudowywana jest infrastruktura drogowa, prowadzone są inwestycje wspierające rozwój edukacji ekologicznej oraz turystyki.
Opis oferty
Nowe 4-pokojowe mieszkanie na sprzedaż o powierzchni 90,63 m² znajduje się w nowo budowanej inwestycji deweloperskiej Aleja Miodowa w Iwinach, ul. Miodowa (0.5 km od Wrocławia).
Sprzedaż prowadzi Platforma Mieszkaniowa.
Cała inwestycja składa się z 8 budynków, w których łącznie znajduje się 80 nowych mieszkań.
Na sprzedaż pozostaje 6 ofert o powierzchni od 40 do 103 m².
W budynkach są 2 kondygnacje naziemne. Budynek nie posiada kondygnacji podziemnych.
Inwestycja Aleja Miodowa została wybudowana i oddana do użytkowania w 2 kw. 2025 roku.
Nowe mieszkanie o oznaczeniu C4-2 znajduje się na parterze i jest 2-poziomowe. Pomieszczenia mają od 260 do 280 centymetrów wysokości. W mieszkaniu znajdują się 4 pokoje.
Dla przyszłych mieszkańców Aleja Miodowa deweloper przewidział miejsca postojowe naziemne.
Dzięki temu przyszli właściciele nie będą musieli poszukiwać wolnej przestrzeni parkingowej.
Opis Inwestycji
Apartamenty przy Miodowej Alei to kameralna i rodzinna inwestycja. Osiedle tworzyć będą 4 szeregi budynków o niskiej zabudowie. Proste i estetyczne bryły zwieńczą dachy dwuspadowe z lukarnami. Budynki utrzymane w jasnej tonacji z ekologicznymi akcentacji, harmonijnie wkomponują się w otoczenie. Aby zapewnić komfort i bezpieczeństwo Mieszkańców, teren osiedla będzie ogrodzony oraz monitorowany. Kontrolowany dostęp zapewni brama z furtką wraz z wideodomofonem. Z przestrzennych dwupoziomowych mieszkań rozciągać się będzie widok na panoramę Wrocławia, sprawiając, że inwestycja ma swój unikatowy charakter.
Zakończenie budowy Inwestycji przywidujemy na II kwartał 2025r..
Mieszkanie znajduje się w inwestycji Aleja Miodowa, w której znajduje się w sprzedaży jeszcze 5 podobnych nowych mieszkań.





