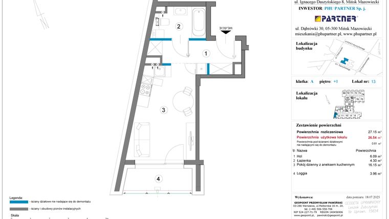
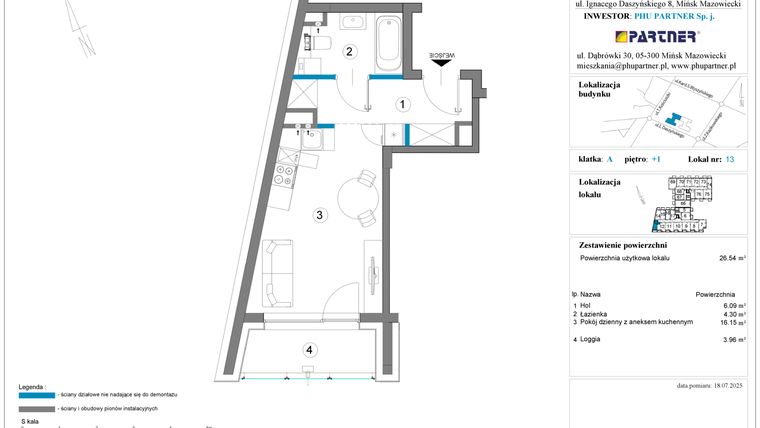
Mieszkanie na sprzedaż 1 pokój o powierzchni 27,15 m² numer A.1.13
Rezerwacja
Inwestycja:
Daszyńskiego Square etap 1Deweloper:
P.H.U. Partner
Inwestycja:
Daszyńskiego Square etap 1Deweloper:
P.H.U. PartnerMińsk Mazowiecki, ul. Ignacego Daszyńskiego 8
Mińsk Mazowiecki, ul. Ignacego Daszyńskiego 8
Termin oddania
Gotowe
Ilość pokoi
1 pokój
Metraż
27,15 m²
Piętro
1 piętro
Powierzchnie dodatkowe
Balkon
Kuchnia
otwarta kuchnia
Wysokość pomieszczeń
265 cm wysokości
Ilość poziomów
1 poziom
Oznaczenie oferty
A.1.13

Raport o deweloperze
Poznaj dewelopera bliżej! Pobierz raport, w którym znajdziesz kluczowe informacje o firmie, jej doświadczeniu, nagrodach oraz aktualnych i zrealizowanych inwestycjach.
Budynek i otoczenie
Miejsca postojowe | |
|---|---|
Standard wykończenia | standard deweloperski Ogrzewanie miejskie |
Realizacja inwestycji | rozpoczęcie budowy w 2 kw. 2024 roku, inwestycja została oddana do użytkowania w 4 kw. 2025 roku |
Udogodnienia | monitoring, usługi w budynku, winda, rowerownia, wózkarnia |
Przyroda | informacja u dewelopera |
Charakterystyka energetyczna nieruchomości |
|
Rezerwacja i finanse
Rodzaj własności | Odrębna własność z własnością gruntu |
|---|---|
Wysokość czynszu | informacja u dewelopera |
Warunki rezerwacji | Informacja u dewelopera |
Zabezpieczenie środków | Otwarty mieszkaniowy rachunek powierniczy |
Zdjęcia z budowy
Zobacz na jakim etapie budowy jest ta inwestycja
Lokalizacja inwestycji
Stacja kolejowa - Mińsk Mazowiecki - 359 m
Przystanek Autobusowy - 120 m
Dojazd do centrum: pokaż
W pobliżu 1 km od tej inwestycji znajdują się:
26 kawiarni i restauracji, 38 sklepów, 22 obiekty sportowe, 9 placówek medycznych, 24 placówki edukacyjne, 11 placów zabaw
Przeczytaj więcej o lokalizacji
Mińsk Mazowiecki to miasto we wschodniej części województwa mazowieckiego, położone w odległości 38 km od centrum Warszawy. Na obszarze o powierzchni ok. 13 km2 zamieszkuje prawie 40 tys. mieszkańców. W mieście dominuje niska zabudowa handlowo-usługowa i mieszkaniowa, na którą składają się bloki o 2 lub 4 kondygnacjach i domy jednorodzinne. Występuje tutaj zarówno dawne drewniane budownictwo, jak i socrealistyczne czy nowoczesne obiekty. Zabytkami są stylowe wille, kamienice i pałace, np. Pałac Dernałowiczów i Pałac Łubieńskich. W części południowej znajdują się zakłady przemysłowe, m.in. Fabryka Urządzeń Dźwigowych, Harper Hygienics i zakłady obuwia Bartek. Zieleń miejska to skwery i tereny leśno-parkowe, jak Park Dernałowiczów czy Leśnictwo Stankowizna, a także łąki i lasy należące do Mińskiego Obszaru Chronionego Krajobrazu.
Opis oferty
Nowe 1-pokojowe mieszkanie na sprzedaż o powierzchni 27,15 m² znajduje się w nowo budowanej inwestycji deweloperskiej Daszyńskiego Square etap 1 w Mińsku Mazowieckim, ul. Ignacego Daszyńskiego 8 (0.2 km od centrum Mińska Mazowieckiego).
Inwestycja jest realizowana przez P.H.U. Partner.
Cała inwestycja składa się z 1 budynku, w którym łącznie znajduje się 113 nowych mieszkań.
Na sprzedaż pozostaje 8 ofert o powierzchni od 27 do 69 m².
W budynku są 4 kondygnacje naziemne oraz 1 kondygnacja podziemna.
Inwestycja Daszyńskiego Square etap 1 została wybudowana i oddana do użytkowania w 4 kw. 2025 roku.
Nowe mieszkanie o oznaczeniu A.1.13 znajduje się na 1 piętrze i jest 1-poziomowe. Pomieszczenia mają 265 centymetrów wysokości. W mieszkaniu znajduje się 1 pokój.
Dla przyszłych mieszkańców Daszyńskiego Square etap 1 deweloper przewidział miejsca postojowe podziemne.
Dzięki temu przyszli właściciele nie będą musieli poszukiwać wolnej przestrzeni parkingowej. Dodatkowo, miejsce postojowe w garażu podziemnym zabezpiecza przed niekorzystnymi warunkami atmosferycznymi.
Opis Inwestycji
Tereny zielone
Pow. dodatkowe
Nowo powstała inwestycja mieszkaniowa w centrum Mińska Mazowieckiego to nowoczesny kompleks, który oferuje 113 mieszkań jedno-, dwu- i trzypokojowych. Budynki wyróżniają się ciemną elewacją, która nadaje im elegancki i nowoczesny wygląd, doskonale komponując się z miejskim krajobrazem. Przestronne loggie i balkony stanowią integralną część każdego mieszkania, oferując dodatkową przestrzeń do relaksu i podziwiania widoków na okolicę. Wysoki standard wykończenia wnętrz, w tym zastosowanie wysokiej jakości materiałów oraz dbałość o detale, zapewnia komfort i wygodę na co dzień.
Dodatkowym atutem inwestycji są starannie zaprojektowane tereny zielone, które otaczają budynki. Pięknie urządzony dziedziniec, z licznymi nasadzeniami i miejscami do odpoczynku, tworzą przyjazne miejsce do spędzania wolnego czasu na świeżym powietrzu. Inwestycja ta jest idealnym wyborem dla osób ceniących sobie wysoki standard życia w połączeniu z dogodną lokalizacją oraz bliskością natury.
Lokale w stanie deweloperskim oferują przestronne i dobrze doświetlone wnętrza, które można zaaranżować według własnych potrzeb i preferencji. Ściany są przygotowane do malowania lub tapetowania, a podłogi wylewane, gotowe do położenia ostatecznej nawierzchni. W każdym mieszkaniu zamontowane są wysokiej jakości okna o podwyższonych parametrach izolacyjnych oraz drzwi wejściowe o podwyższonej odporności na włamania, co zapewnia bezpieczeństwo i komfort termiczny. Wszystkie instalacje są już doprowadzone: elektryczna, wodno-kanalizacyjna oraz grzewcza z nowoczesnymi grzejnikami. W łazienkach wykonano pełną instalację wodno-kanalizacyjną, przygotowaną do montażu armatury sanitarnej. Balkony i loggie są wykończone, co pozwala od razu korzystać z dodatkowej przestrzeni na świeżym powietrzu.
Ulica Daszyńskiego 8 znajduje się w sercu Mińska Mazowieckiego, co gwarantuje doskonały dostęp do wszystkich niezbędnych udogodnień. W pobliżu inwestycji znajdują się liczne sklepy spożywcze, supermarkety, apteki oraz punkty usługowe co ułatwia, że życie codzienne staje się łatwiejsze i bardziej komfortowe Mieszkańcy mają także dostęp do bogatej oferty gastronomicznej – w okolicy znajdują się kawiarnie, restauracje i bary, oferujące różnorodne dania kuchni polskiej i międzynarodowej. Doskonała i darmowa komunikacja miejska umożliwia szybkie i wygodne przemieszczanie się po całym Mińsku Mazowieckim a dzięki bliskości PKP można szybko i bezpiecznie dojechać do Warszawy. W bezpośrednim sąsiedztwie znajduje się również kilka szkół podstawowych, przedszkoli oraz liceów, co czyni lokalizację idealną dla rodzin z dziećmi. Mińsk Mazowiecki oferuje także liczne tereny zielone i rekreacyjne – parki, skwery oraz ścieżki rowerowe, które sprzyjają aktywnemu wypoczynkowi na świeżym powietrzu.
Inwestycja przy Daszyńskiego 8 w Mińsku Mazowieckim to idealne miejsce dla osób poszukujących nowoczesnych mieszkań o wysokim standardzie wykończenia, w doskonałej lokalizacji. Przestronne loggie i balkony, starannie zaprojektowane tereny zielone oraz bliskość wszystkich niezbędnych udogodnień miejskich sprawiają, że życie tutaj jest komfortowe i wygodne. To doskonała propozycja zarówno dla singli, par, jak i rodzin z dziećmi, które pragną zamieszkać w nowoczesnym, przyjaznym środowisku.
Mieszkanie znajduje się w inwestycji Daszyńskiego Square etap 1, w której znajduje się w sprzedaży jeszcze 6 podobnych nowych mieszkań.
P.H.U. Partner
Strona internetowa inwestycjiAdres biura sprzedaży:
Dąbrówki 30, 05-300 Mińsk MazowieckiGodziny otwarcia biura sprzedaży:
- Poniedziałek: 08:00 - 16:00
- Wtorek: 08:00 - 16:00
- Środa: 10:00 - 18:00
- Czwartek: 10:00 - 18:00
- Piątek: 08:00 - 16:00





